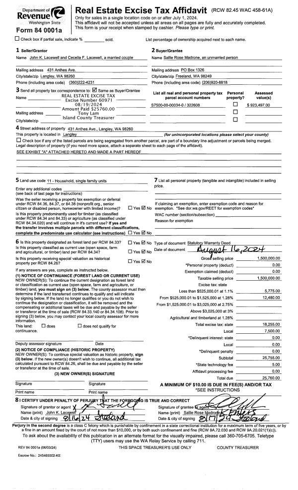
Property
Account |
| Property ID: | 806449 | Abbreviated Legal Description: | S/2 S/2 NW SE EX N30' OF W483' EX W260' TGW N/2 SW SE EX W542' EX E439' TGW EZ AF#86013181 |
| Geographic ID: | R13208-114-3350 | Agent Code: | |
| Type: | Real | | |
| Tax Area: | 112 - APPRAISER-OH Schl Dist, outside OH, improved, greater than 1 acre | Land Use Code | 83 |
| Open Space: | Y | DFL | N |
| Historic Property: | N | Remodel Property: | N |
| Multi-Family Redevelopment: | N | | |
| Township: | 32 | Section: | 08 |
| Range: | R1 |
Location |
| Address: | 2022 ZYLSTRA RD OAK HARBOR, WA 98277 | Mapsco: | |
| Neighborhood: | Cycle 1 | Map ID: | 109 |
| Neighborhood CD: | 1 |
Owner |
| Name: | RIEPMA, KELLY | Owner ID: | 197111 |
| Mailing Address: | 2022 ZYLSTRA RD OAK HARBOR, WA 98277-8816 | % Ownership: | 100.0000000000% |
| | | Exemptions: | |
Taxes and Assessment Details
Values
| (+) Improvement Homesite Value: | + | $0 | |
| (+) Improvement Non-Homesite Value: | + | $191,706 | |
| (+) Land Homesite Value: | + | $0 | |
| (+) Land Non-Homesite Value: | + | $260,000 | |
| (+) Curr Use (HS): | + | $0 | $0 |
| (+) Curr Use (NHS): | + | $140,000 | $5,608 |
| | | -------------------------- | |
| (=) Market Value: | = | $591,706 | |
| (–) Productivity Loss: | – | $134,392 | |
| | | -------------------------- | |
| (=) Subtotal: | = | $457,314 | |
| (+) Senior Appraised Value: | + | $0 | |
| (+) Non-Senior Appraised Value: | + | $457,314 | |
| | | -------------------------- | |
| (=) Total Appraised Value: | = | $457,314 | |
| (–) Senior Exemption Loss: | – | $0 | |
| (–) Exemption Loss: | – | $0 | |
| | | -------------------------- | |
| (=) Taxable Value: | = | $457,314 | |
Taxing Jurisdiction
| Owner: | RIEPMA, KELLY | | |
| % Ownership: | 100.0000000000% | | |
| Total Value: | $591,706 | | |
| Tax Area: | 112 - APPRAISER-OH Schl Dist, outside OH, improved, greater than 1 acre |
| CF | Conservation Futures | 0.0316035091 | $457,314 | $457,314 | $14.45 | | |
| CEM1 | Cemetery #1 | 0.0040320932 | $457,314 | $457,314 | $1.84 | | |
| FIRE2 | Fire & Rescue Dist #2 N Whidbey GEN | 0.5475949600 | $457,314 | $457,314 | $250.42 | | |
| HOBOND | Hospital BOND | 0.1910887512 | $457,314 | $457,314 | $87.39 | | |
| HOGEN | Hospital GEN | 0.3902502903 | $457,314 | $457,314 | $178.47 | | |
| CE | County Current Expense | 0.3708482477 | $457,314 | $457,314 | $169.59 | | |
| CR | County Roads | 0.4584763726 | $457,314 | $457,314 | $209.67 | | |
| ISLANDEMS | Hospital GEN (EMS) | 0.5000000000 | $457,314 | $457,314 | $228.66 | | |
| LIB | Library Sno-Isle GEN | 0.3153421757 | $457,314 | $457,314 | $144.21 | | |
| NWHIDPRMT | P & R N Whidbey GEN | 0.2004466701 | $457,314 | $457,314 | $91.67 | | |
| SCH201MO | School 201 Enrichment | 1.8559231640 | $457,314 | $457,314 | $848.74 | | |
| ST | State School | 1.3035497053 | $457,314 | $457,314 | $596.13 | | |
| ST2 | State School Part 2 | 0.8169543533 | $457,314 | $457,314 | $373.60 | | |
| | Total Tax Rate: | 6.9861102925 | | | | | |
| | | | | Taxes w/Current Exemptions: | $3,194.84 | | |
| | | | | Taxes w/o Exemptions: | $3,194.84 | | |
Improvement / Building
| Improvement #1: | MANUFACTURED HOME | State Code: | Y | 1728.0 sqft | Value: | $191,706 |
| Bathrooms: | 0 | Bedrooms: | 0 | | Ceiling: | PLASTER PAINTED | Cooling: | EVAP NO DUCT | | Exterior Wall/Cover: | VINYL | Floor Covering: | CARPET 100% | | Floor Structure: | SLAB ON GRADE | Foundation: | SLAB | | Heating: | FHA ELECTRIC | Interior Finish: | PLASTER | | Plumbing Fixture Cnt: | 1 | Roof Slope: | FLAT | | Roof Structure/Cover: | CJ ALUMINIUM HEAVY |   |   |
|
| | Type | Description | Class CD | Sub Class CD | Year Built | Area |
| | BAS | BASE/MAIN FLOOR | 3 | 0 | 2010 | 1728.0 |
| | OWP | OPEN WOOD PORCH W/STEPS | 3 | 0 | 2010 | 272.0 |
| | DGR | DETACHED GARAGE | 3 | 0 | 2010 | 864.0 |
| | CPD | OPEN CARPORT DIRT FLOOR | 3 | 0 | 2010 | 288.0 |
| | DGR | DETACHED GARAGE | 3 | 0 | 2010 | 1152.0 |
| | OWR | OPEN WOOD PORCH W/STEPS/ROOF | 3 | 0 | 2010 | 32.0 |
Sketch
Property Image
Land
| 1 | HS | HOMESITE | 1.0000 | 43560.00 | 0.00 | 0.00 | 1.00 | $260,000 | $0 |
| 2 | 83 | OPEN AGRICULTURE | 9.1200 | 397267.20 | 0.00 | 0.00 | 1.00 | $140,000 | $5,608 |
Roll Value History
| 2026 | N/A | N/A | N/A | N/A | N/A |
| 2025 | $191,706 | $400,000 | $5,608 | $457,314 | $457,314 |
| 2024 | $193,934 | $370,000 | $5,608 | $441,253 | $441,253 |
| 2023 | $198,393 | $290,000 | $5,608 | $236,096 | $236,096 |
| 2022 | $181,677 | $270,000 | $5,608 | $214,285 | $214,285 |
| 2021 | $161,492 | $255,000 | $5,608 | $192,600 | $192,600 |
| 2020 | $158,484 | $200,000 | $5,608 | $186,226 | $186,226 |
| 2019 | $126,171 | $250,000 | $5,608 | $159,447 | $159,447 |
| 2018 | $128,857 | $170,000 | $0 | $298,857 | $298,857 |
| 2017 | $100,839 | $160,000 | $0 | $260,839 | $260,839 |
| 2016 | $101,696 | $160,000 | $0 | $261,696 | $261,696 |
| 2015 | $102,553 | $150,000 | $0 | $252,553 | $252,553 |
| 2014 | $104,268 | $150,000 | $0 | $254,268 | $254,268 |
| 2013 | $105,124 | $154,836 | $0 | $259,960 | $259,960 |
| 2012 | $105,981 | $154,836 | $0 | $260,817 | $260,817 |
| 2011 | $106,838 | $172,040 | $0 | $278,878 | $278,878 |
| 2010 | $29,995 | $172,040 | $0 | $202,035 | $202,035 |
| 2009 | $84,217 | $192,280 | $0 | $276,497 | $276,497 |
| 2008 | $84,799 | $192,280 | $0 | $277,079 | $277,079 |
| 2007 | $72,649 | $206,771 | $0 | $279,420 | $279,420 |
Deed and Sales History
| 1 | 07/03/2006 | QCD | Quit Claim Deed | RIEPMA, KELLY | RIEPMA, KELLY | | | $0.00 | 62919 | 4175019 |
| 2 | 07/28/2005 | SEG | DNU - Segregation | Unknown | RIEPMA, KELLY | | | $0.00 | 70590 | 0 |
Payout Agreement
| No payout information available.. |