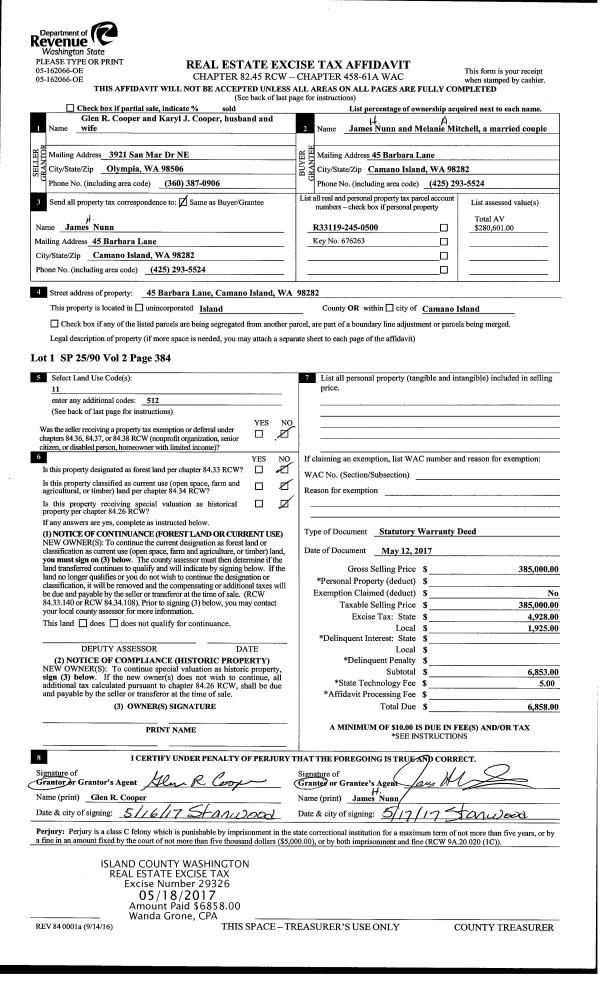
Property
Account |
| Property ID: | 806527 | Abbreviated Legal Description: | CAVALERO HILLS - 1 LOT 20 |
| Geographic ID: | S6348-00-00020-0 | Agent Code: | |
| Type: | Real | | |
| Tax Area: | 510 - APPRAISER-Stan/Cam Schl Dist, improved & 1 acre or less | Land Use Code | 11 |
| Open Space: | N | DFL | N |
| Historic Property: | N | Remodel Property: | N |
| Multi-Family Redevelopment: | N | | |
| Township: | | Section: | |
| Range: | |
Location |
| Address: | 27 ZURICH CT CAMANO ISLAND, WA 98282 | Mapsco: | |
| Neighborhood: | Cycle 5 | Map ID: | 927 |
| Neighborhood CD: | 5 |
Owner |
| Name: | RULE, JODY A | Owner ID: | 286173 |
| Mailing Address: | 27 ZURICH CT CAMANO ISLAND, WA 98282 | % Ownership: | 100.0000000000% |
| | | Exemptions: | |
Taxes and Assessment Details
Values
| (+) Improvement Homesite Value: | + | $0 | |
| (+) Improvement Non-Homesite Value: | + | $450,969 | |
| (+) Land Homesite Value: | + | $0 | |
| (+) Land Non-Homesite Value: | + | $230,000 | |
| (+) Curr Use (HS): | + | $0 | $0 |
| (+) Curr Use (NHS): | + | $0 | $0 |
| | | -------------------------- | |
| (=) Market Value: | = | $680,969 | |
| (–) Productivity Loss: | – | $0 | |
| | | -------------------------- | |
| (=) Subtotal: | = | $680,969 | |
| (+) Senior Appraised Value: | + | $0 | |
| (+) Non-Senior Appraised Value: | + | $680,969 | |
| | | -------------------------- | |
| (=) Total Appraised Value: | = | $680,969 | |
| (–) Senior Exemption Loss: | – | $0 | |
| (–) Exemption Loss: | – | $0 | |
| | | -------------------------- | |
| (=) Taxable Value: | = | $680,969 | |
Taxing Jurisdiction
| Owner: | RULE, JODY A | | |
| % Ownership: | 100.0000000000% | | |
| Total Value: | $680,969 | | |
| Tax Area: | 510 - APPRAISER-Stan/Cam Schl Dist, improved & 1 acre or less |
| CF | Conservation Futures | 0.0316035091 | $680,969 | $680,969 | $21.52 | | |
| EMS1 | Fire & Rescue Dist #1 Camano GEN (EMS) | 0.3677864386 | $680,969 | $680,969 | $250.45 | | |
| FIRE1 | Fire & Rescue Dist #1 Camano GEN | 1.2502910536 | $680,969 | $680,969 | $851.41 | | |
| FIRE1BOND | Fire & Rescue Dist #1 Camano BOND | 0.1570001679 | $680,969 | $680,969 | $106.91 | | |
| CE | County Current Expense | 0.3708482477 | $680,969 | $680,969 | $252.54 | | |
| CR | County Roads | 0.4584763726 | $680,969 | $680,969 | $312.21 | | |
| LCIB | Library Sno-Isle BOND (Camano Island) | 0.0396325772 | $680,969 | $680,969 | $26.99 | | |
| LIB | Library Sno-Isle GEN | 0.3153421757 | $680,969 | $680,969 | $214.74 | | |
| SCH205_401 | School 205-401 Enrichment | 1.2698420524 | $680,969 | $680,969 | $864.72 | | |
| SCH205BOND | School 205-401 BOND | 0.9396497583 | $680,969 | $680,969 | $639.87 | | |
| ST | State School | 1.3035497053 | $680,969 | $680,969 | $887.68 | | |
| ST2 | State School Part 2 | 0.8169543533 | $680,969 | $680,969 | $556.32 | | |
| | Total Tax Rate: | 7.3209764117 | | | | | |
| | | | | Taxes w/Current Exemptions: | $4,985.36 | | |
| | | | | Taxes w/o Exemptions: | $4,985.36 | | |
Improvement / Building
| Improvement #1: | RESIDENTIAL | State Code: | Y | 1871.5 sqft | Value: | $450,969 |
| Bathrooms: | 2 | Bedrooms: | 3 | | Ceiling: | DRYWALL PAINTED | Cooling: | HEAT PUMP/CONV/V | | Exterior Wall/Cover: | WOOD SIDING | Floor Covering: | HARDWOOD/CARP 20-80 | | Floor Structure: | WOOD W/SUBFLOOR | Foundation: | CONCRETE | | Interior Finish: | DRYWALL PAINT | Plumbing Fixture Cnt: | 14 | | Roof Slope: | 6" IN 12" | Roof Structure/Cover: | CJ ASPHALT |
|
| | Type | Description | Class CD | Sub Class CD | Year Built | Area |
| | BAS | BASE/MAIN FLOOR | 4 | 0 | 2006 | 1871.5 |
| | AGR | ATTACHED GARAGE | 4 | 0 | 2006 | 528.0 |
| | OWC | OPEN WOOD PORCH W/STEPS/ROOF/C | 4 | 0 | 2006 | 120.0 |
| | OWC | OPEN WOOD PORCH W/STEPS/ROOF/C | 4 | 0 | 2006 | 145.0 |
Sketch
Property Image
Land
| 1 | 15 | SQ (12001-21780) | 0.0000 | 0.00 | 0.00 | 0.00 | 1.00 | $230,000 | $0 |
Roll Value History
| 2026 | N/A | N/A | N/A | N/A | N/A |
| 2025 | $450,969 | $230,000 | $0 | $680,969 | $680,969 |
| 2024 | $454,446 | $210,000 | $0 | $664,446 | $664,446 |
| 2023 | $458,169 | $210,000 | $0 | $668,169 | $668,169 |
| 2022 | $418,253 | $200,000 | $0 | $618,253 | $618,253 |
| 2021 | $349,034 | $120,000 | $0 | $469,034 | $469,034 |
| 2020 | $334,136 | $100,000 | $0 | $434,136 | $434,136 |
| 2019 | $243,274 | $180,000 | $0 | $423,274 | $423,274 |
| 2018 | $243,941 | $140,000 | $0 | $383,941 | $383,941 |
| 2017 | $245,272 | $90,000 | $0 | $335,272 | $335,272 |
| 2016 | $247,939 | $65,000 | $0 | $312,939 | $312,939 |
| 2015 | $219,760 | $45,000 | $0 | $264,760 | $264,760 |
| 2014 | $222,201 | $45,000 | $0 | $267,201 | $267,201 |
| 2013 | $224,643 | $45,000 | $0 | $269,643 | $269,643 |
| 2012 | $227,085 | $56,000 | $0 | $283,085 | $283,085 |
| 2011 | $229,526 | $84,000 | $0 | $313,526 | $313,526 |
| 2010 | $238,479 | $84,000 | $0 | $322,479 | $322,479 |
| 2009 | $254,657 | $90,000 | $0 | $344,657 | $344,657 |
| 2008 | $257,388 | $115,000 | $0 | $372,388 | $372,388 |
| 2007 | $257,594 | $115,000 | $0 | $372,594 | $372,594 |
Deed and Sales History
| 1 | 07/24/2018 | WD | Warranty Deed | LARSON, GERALD L | RULE, JODY A | | | $450,000.00 | 35171 | 4448721 |
| 2 | 01/03/2008 | WD | Warranty Deed | PAC NW HOMES LLC, | LARSON, GERALD L | | | $367,000.00 | 80032 | 4219200 |
| 3 | 12/09/2005 | WD | Warranty Deed | CROSSWIND LANDINGS INC, | PAC NW HOMES LLC, | | | $109,000.00 | 56176 | 4156953 |
| 4 | 01/01/1900 | OTHER | Other - Misc. Documents | Unknown | CROSSWIND LANDINGS INC, | | | $0.00 | 0 | 0 |
Payout Agreement
| No payout information available.. |