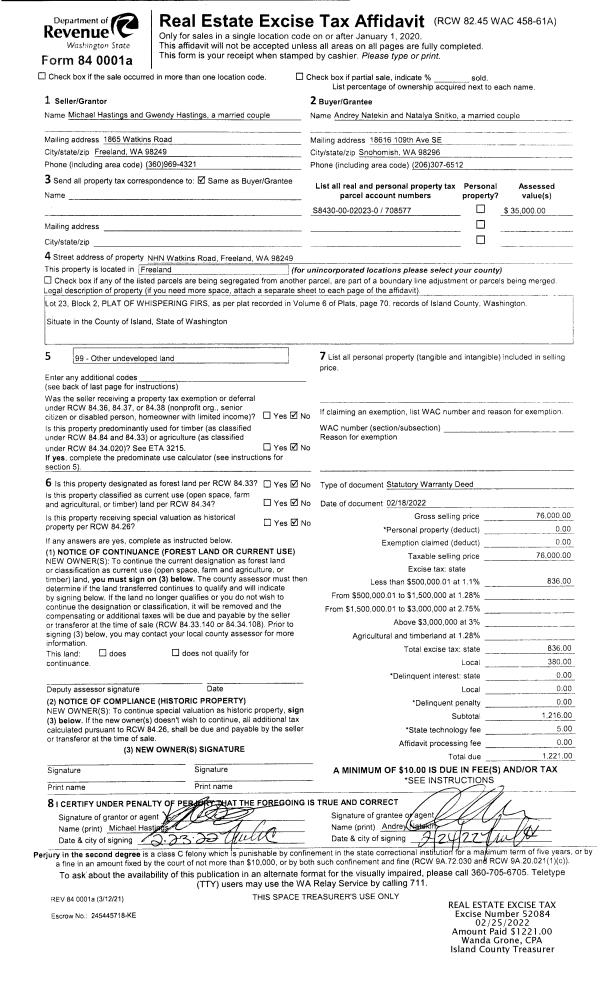
Property
Account |
| Property ID: | 806543 | Abbreviated Legal Description: | CAVALERO HILLS - 1 LOT 36 |
| Geographic ID: | S6348-00-00036-0 | Agent Code: | |
| Type: | Real | | |
| Tax Area: | 510 - APPRAISER-Stan/Cam Schl Dist, improved & 1 acre or less | Land Use Code | 11 |
| Open Space: | N | DFL | N |
| Historic Property: | N | Remodel Property: | N |
| Multi-Family Redevelopment: | N | | |
| Township: | | Section: | |
| Range: | |
Location |
| Address: | 1172 MATTERHORN LOOP CAMANO ISLAND, WA 98282 | Mapsco: | |
| Neighborhood: | Cycle 5 | Map ID: | 927 |
| Neighborhood CD: | 5 |
Owner |
| Name: | HANSEN, RAY A | Owner ID: | 282496 |
| Mailing Address: | CHERI L HANSEN 1172 MATTERHORN LOOP CAMANO ISLAND, WA 98282 | % Ownership: | 100.0000000000% |
| | | Exemptions: | |
Taxes and Assessment Details
Values
| (+) Improvement Homesite Value: | + | $0 | |
| (+) Improvement Non-Homesite Value: | + | $574,339 | |
| (+) Land Homesite Value: | + | $0 | |
| (+) Land Non-Homesite Value: | + | $230,000 | |
| (+) Curr Use (HS): | + | $0 | $0 |
| (+) Curr Use (NHS): | + | $0 | $0 |
| | | -------------------------- | |
| (=) Market Value: | = | $804,339 | |
| (–) Productivity Loss: | – | $0 | |
| | | -------------------------- | |
| (=) Subtotal: | = | $804,339 | |
| (+) Senior Appraised Value: | + | $0 | |
| (+) Non-Senior Appraised Value: | + | $804,339 | |
| | | -------------------------- | |
| (=) Total Appraised Value: | = | $804,339 | |
| (–) Senior Exemption Loss: | – | $0 | |
| (–) Exemption Loss: | – | $0 | |
| | | -------------------------- | |
| (=) Taxable Value: | = | $804,339 | |
Taxing Jurisdiction
| Owner: | HANSEN, RAY A | | |
| % Ownership: | 100.0000000000% | | |
| Total Value: | $804,339 | | |
| Tax Area: | 510 - APPRAISER-Stan/Cam Schl Dist, improved & 1 acre or less |
| CF | Conservation Futures | 0.0316035091 | $804,339 | $804,339 | $25.42 | | |
| EMS1 | Fire & Rescue Dist #1 Camano GEN (EMS) | 0.3677864386 | $804,339 | $804,339 | $295.82 | | |
| FIRE1 | Fire & Rescue Dist #1 Camano GEN | 1.2502910536 | $804,339 | $804,339 | $1,005.66 | | |
| FIRE1BOND | Fire & Rescue Dist #1 Camano BOND | 0.1570001679 | $804,339 | $804,339 | $126.28 | | |
| CE | County Current Expense | 0.3708482477 | $804,339 | $804,339 | $298.29 | | |
| CR | County Roads | 0.4584763726 | $804,339 | $804,339 | $368.77 | | |
| LCIB | Library Sno-Isle BOND (Camano Island) | 0.0396325772 | $804,339 | $804,339 | $31.88 | | |
| LIB | Library Sno-Isle GEN | 0.3153421757 | $804,339 | $804,339 | $253.64 | | |
| SCH205_401 | School 205-401 Enrichment | 1.2698420524 | $804,339 | $804,339 | $1,021.38 | | |
| SCH205BOND | School 205-401 BOND | 0.9396497583 | $804,339 | $804,339 | $755.80 | | |
| ST | State School | 1.3035497053 | $804,339 | $804,339 | $1,048.50 | | |
| ST2 | State School Part 2 | 0.8169543533 | $804,339 | $804,339 | $657.11 | | |
| | Total Tax Rate: | 7.3209764117 | | | | | |
| | | | | Taxes w/Current Exemptions: | $5,888.55 | | |
| | | | | Taxes w/o Exemptions: | $5,888.55 | | |
Improvement / Building
| Improvement #1: | RESIDENTIAL | State Code: | Y | 3196.0 sqft | Value: | $574,339 |
| Bathrooms: | 2.5 | Bedrooms: | 3 | | Ceiling: | DRYWALL PAINTED | Cooling: | HEAT PUMP/CONV/V | | Exterior Wall/Cover: | CEMENT FIBER | Floor Covering: | CARPET/VINYL 80-20 | | Floor Structure: | WOOD W/SUBFLOOR | Foundation: | CONCRETE | | Interior Finish: | DRYWALL PAINT | Plumbing Fixture Cnt: | 14 | | Roof Slope: | 8" IN 12" | Roof Structure/Cover: | CJ ASPHALT |
|
| | Type | Description | Class CD | Sub Class CD | Year Built | Area |
| | BAS | BASE/MAIN FLOOR | 4 | 0 | 2018 | 3196.0 |
| | AGR | ATTACHED GARAGE | 4 | 0 | 2018 | 528.0 |
Sketch
Property Image
Land
| 1 | 16 | AC (00.51-01.00) | 0.0000 | 0.00 | 0.00 | 0.00 | 1.00 | $230,000 | $0 |
Roll Value History
| 2026 | N/A | N/A | N/A | N/A | N/A |
| 2025 | $574,339 | $230,000 | $0 | $804,339 | $804,339 |
| 2024 | $578,933 | $210,000 | $0 | $788,933 | $788,933 |
| 2023 | $583,528 | $210,000 | $0 | $793,528 | $793,528 |
| 2022 | $533,931 | $200,000 | $0 | $733,931 | $733,931 |
| 2021 | $459,474 | $120,000 | $0 | $579,474 | $579,474 |
| 2020 | $447,718 | $100,000 | $0 | $547,718 | $547,718 |
| 2019 | $358,652 | $180,000 | $0 | $538,652 | $538,652 |
| 2018 | $195,873 | $70,000 | $0 | $265,873 | $265,873 |
| 2017 | $0 | $70,000 | $0 | $70,000 | $70,000 |
| 2016 | $0 | $45,000 | $0 | $45,000 | $45,000 |
| 2015 | $0 | $45,000 | $0 | $45,000 | $45,000 |
| 2014 | $0 | $45,000 | $0 | $45,000 | $45,000 |
| 2013 | $0 | $45,000 | $0 | $45,000 | $45,000 |
| 2012 | $0 | $50,000 | $0 | $50,000 | $50,000 |
| 2011 | $0 | $80,000 | $0 | $80,000 | $80,000 |
| 2010 | $0 | $80,000 | $0 | $80,000 | $80,000 |
| 2009 | $0 | $90,000 | $0 | $90,000 | $90,000 |
| 2008 | $0 | $120,000 | $0 | $120,000 | $120,000 |
| 2007 | $0 | $120,000 | $0 | $120,000 | $120,000 |
Deed and Sales History
| 1 | 10/13/2017 | WD | Warranty Deed | CROSSWIND LANDINGS INC | HANSEN, RAY A | | | $105,000.00 | 31566 | 4432397 |
| 2 | 01/01/1900 | OTHER | Other - Misc. Documents | Unknown | CROSSWIND LANDINGS INC, | | | $0.00 | 0 | 0 |
Payout Agreement
| No payout information available.. |