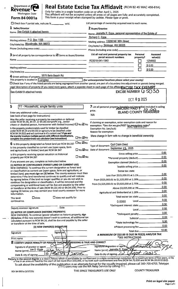
Property
Account |
| Property ID: | 806544 | Abbreviated Legal Description: | CAVALERO HILLS - 1 LOT 37 |
| Geographic ID: | S6348-00-00037-0 | Agent Code: | |
| Type: | Real | | |
| Tax Area: | 510 - APPRAISER-Stan/Cam Schl Dist, improved & 1 acre or less | Land Use Code | 11 |
| Open Space: | N | DFL | N |
| Historic Property: | N | Remodel Property: | N |
| Multi-Family Redevelopment: | N | | |
| Township: | | Section: | |
| Range: | |
Location |
| Address: | 1180 MATTERHORN LOOP CAMANO ISLAND, WA 98282 | Mapsco: | |
| Neighborhood: | Cycle 5 | Map ID: | 927 |
| Neighborhood CD: | 5 |
Owner |
| Name: | GERITY II TTEE, GEORGE MICHAEL | Owner ID: | 315104 |
| Mailing Address: | DONNA L GERITY TTEE 1180 MATTERHORN LOOP CAMANO ISLAND, WA 98282 | % Ownership: | 100.0000000000% |
| | | Exemptions: | |
Taxes and Assessment Details
Values
| (+) Improvement Homesite Value: | + | $0 | |
| (+) Improvement Non-Homesite Value: | + | $496,847 | |
| (+) Land Homesite Value: | + | $0 | |
| (+) Land Non-Homesite Value: | + | $230,000 | |
| (+) Curr Use (HS): | + | $0 | $0 |
| (+) Curr Use (NHS): | + | $0 | $0 |
| | | -------------------------- | |
| (=) Market Value: | = | $726,847 | |
| (–) Productivity Loss: | – | $0 | |
| | | -------------------------- | |
| (=) Subtotal: | = | $726,847 | |
| (+) Senior Appraised Value: | + | $0 | |
| (+) Non-Senior Appraised Value: | + | $726,847 | |
| | | -------------------------- | |
| (=) Total Appraised Value: | = | $726,847 | |
| (–) Senior Exemption Loss: | – | $0 | |
| (–) Exemption Loss: | – | $0 | |
| | | -------------------------- | |
| (=) Taxable Value: | = | $726,847 | |
Taxing Jurisdiction
| Owner: | GERITY II TTEE, GEORGE MICHAEL | | |
| % Ownership: | 100.0000000000% | | |
| Total Value: | $726,847 | | |
| Tax Area: | 510 - APPRAISER-Stan/Cam Schl Dist, improved & 1 acre or less |
| CF | Conservation Futures | 0.0316035091 | $726,847 | $726,847 | $22.97 | | |
| EMS1 | Fire & Rescue Dist #1 Camano GEN (EMS) | 0.3677864386 | $726,847 | $726,847 | $267.32 | | |
| FIRE1 | Fire & Rescue Dist #1 Camano GEN | 1.2502910536 | $726,847 | $726,847 | $908.77 | | |
| FIRE1BOND | Fire & Rescue Dist #1 Camano BOND | 0.1570001679 | $726,847 | $726,847 | $114.12 | | |
| CE | County Current Expense | 0.3708482477 | $726,847 | $726,847 | $269.55 | | |
| CR | County Roads | 0.4584763726 | $726,847 | $726,847 | $333.24 | | |
| LCIB | Library Sno-Isle BOND (Camano Island) | 0.0396325772 | $726,847 | $726,847 | $28.81 | | |
| LIB | Library Sno-Isle GEN | 0.3153421757 | $726,847 | $726,847 | $229.21 | | |
| SCH205_401 | School 205-401 Enrichment | 1.2698420524 | $726,847 | $726,847 | $922.98 | | |
| SCH205BOND | School 205-401 BOND | 0.9396497583 | $726,847 | $726,847 | $682.98 | | |
| ST | State School | 1.3035497053 | $726,847 | $726,847 | $947.48 | | |
| ST2 | State School Part 2 | 0.8169543533 | $726,847 | $726,847 | $593.80 | | |
| | Total Tax Rate: | 7.3209764117 | | | | | |
| | | | | Taxes w/Current Exemptions: | $5,321.23 | | |
| | | | | Taxes w/o Exemptions: | $5,321.23 | | |
Improvement / Building
| Improvement #1: | RESIDENTIAL | State Code: | Y | 3138.0 sqft | Value: | $496,847 |
| Bathrooms: | 2.5 | Bedrooms: | 2 | | Ceiling: | DRYWALL PAINTED | Cooling: | HEAT PUMP/CONV/V | | Exterior Wall/Cover: | CEMENT FIBER | Floor Covering: | CARPET/VINYL 60-40 | | Floor Structure: | WOOD W/SUBFLOOR | Foundation: | CONCRETE | | Interior Finish: | DRYWALL PAINT | Plumbing Fixture Cnt: | 13 | | Roof Slope: | 5" IN 12" | Roof Structure/Cover: | CJ ASPHALT |
|
| | Type | Description | Class CD | Sub Class CD | Year Built | Area |
| | BAS | BASE/MAIN FLOOR | 4 | 0 | 2020 | 1538.0 |
| | AGR | ATTACHED GARAGE | 4 | 0 | 2020 | 462.0 |
| | DWN | DOWNSTAIRS LIVING AREA | 4 | 0 | 2020 | 1600.0 |
| | OP3 | OPEN PORCH W/ROOF | 4 | 0 | 2020 | 30.0 |
| | OWR | OPEN WOOD PORCH W/STEPS/ROOF | 4 | 0 | 2020 | 100.0 |
Sketch
Property Image
Land
| 1 | 16 | AC (00.51-01.00) | 0.0000 | 0.00 | 0.00 | 0.00 | 1.00 | $230,000 | $0 |
Roll Value History
| 2026 | N/A | N/A | N/A | N/A | N/A |
| 2025 | $496,847 | $230,000 | $0 | $726,847 | $726,847 |
| 2024 | $500,822 | $210,000 | $0 | $710,822 | $710,822 |
| 2023 | $504,795 | $210,000 | $0 | $714,795 | $714,795 |
| 2022 | $461,880 | $200,000 | $0 | $661,880 | $661,880 |
| 2021 | $408,945 | $120,000 | $0 | $528,945 | $528,945 |
| 2020 | $27,929 | $70,000 | $0 | $97,929 | $97,929 |
| 2019 | $0 | $70,000 | $0 | $70,000 | $70,000 |
| 2018 | $0 | $70,000 | $0 | $70,000 | $70,000 |
| 2017 | $0 | $70,000 | $0 | $70,000 | $70,000 |
| 2016 | $0 | $45,000 | $0 | $45,000 | $45,000 |
| 2015 | $0 | $45,000 | $0 | $45,000 | $45,000 |
| 2014 | $0 | $45,000 | $0 | $45,000 | $45,000 |
| 2013 | $0 | $45,000 | $0 | $45,000 | $45,000 |
| 2012 | $0 | $50,000 | $0 | $50,000 | $50,000 |
| 2011 | $0 | $80,000 | $0 | $80,000 | $80,000 |
| 2010 | $0 | $80,000 | $0 | $80,000 | $80,000 |
| 2009 | $0 | $90,000 | $0 | $90,000 | $90,000 |
| 2008 | $0 | $120,000 | $0 | $120,000 | $120,000 |
| 2007 | $0 | $120,000 | $0 | $120,000 | $120,000 |
Deed and Sales History
| 1 | 01/09/2025 | QCD | Quit Claim Deed | GERITY, GEORGE M | GERITY II TTEE, GEORGE MICHAEL | | | $0.00 | 62296 | 4581210 |
| 2 | 12/21/2020 | WD | Warranty Deed | CORNERSTONE HOMES NW LLC | GERITY, GEORGE M | | | $530,000.00 | 46546 | 4507926 |
| 3 | 11/06/2019 | WD | Warranty Deed | CROSSWIND LANDINGS INC | CORNERSTONE HOMES NW LLC | | | $65,000.00 | 41060 | 4475309 |
| 4 | 01/01/1900 | OTHER | Other - Misc. Documents | Unknown | CROSSWIND LANDINGS INC, | | | $0.00 | 0 | 0 |
Payout Agreement
| No payout information available.. |