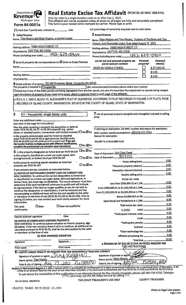
Property
Account |
| Property ID: | 806550 | Abbreviated Legal Description: | CAVALERO HILLS - 1 LOT 43 |
| Geographic ID: | S6348-00-00043-0 | Agent Code: | |
| Type: | Real | | |
| Tax Area: | 510 - APPRAISER-Stan/Cam Schl Dist, improved & 1 acre or less | Land Use Code | 11 |
| Open Space: | N | DFL | N |
| Historic Property: | N | Remodel Property: | N |
| Multi-Family Redevelopment: | N | | |
| Township: | | Section: | |
| Range: | |
Location |
| Address: | 1123 SWISS ALPS LOOP CAMANO ISLAND, WA 98282 | Mapsco: | |
| Neighborhood: | Cycle 5 | Map ID: | 927 |
| Neighborhood CD: | 5 |
Owner |
| Name: | TRAN, JAY TRI MINH | Owner ID: | 256505 |
| Mailing Address: | ANNE LONG TRAN NGUYEN 1123 SWISS ALPS LOOP CAMANO ISLAND, WA 98282 | % Ownership: | 100.0000000000% |
| | | Exemptions: | |
Taxes and Assessment Details
Values
| (+) Improvement Homesite Value: | + | $0 | |
| (+) Improvement Non-Homesite Value: | + | $547,910 | |
| (+) Land Homesite Value: | + | $0 | |
| (+) Land Non-Homesite Value: | + | $230,000 | |
| (+) Curr Use (HS): | + | $0 | $0 |
| (+) Curr Use (NHS): | + | $0 | $0 |
| | | -------------------------- | |
| (=) Market Value: | = | $777,910 | |
| (–) Productivity Loss: | – | $0 | |
| | | -------------------------- | |
| (=) Subtotal: | = | $777,910 | |
| (+) Senior Appraised Value: | + | $0 | |
| (+) Non-Senior Appraised Value: | + | $777,910 | |
| | | -------------------------- | |
| (=) Total Appraised Value: | = | $777,910 | |
| (–) Senior Exemption Loss: | – | $0 | |
| (–) Exemption Loss: | – | $0 | |
| | | -------------------------- | |
| (=) Taxable Value: | = | $777,910 | |
Taxing Jurisdiction
| Owner: | TRAN, JAY TRI MINH | | |
| % Ownership: | 100.0000000000% | | |
| Total Value: | $777,910 | | |
| Tax Area: | 510 - APPRAISER-Stan/Cam Schl Dist, improved & 1 acre or less |
| CF | Conservation Futures | 0.0316035091 | $777,910 | $777,910 | $24.58 | | |
| EMS1 | Fire & Rescue Dist #1 Camano GEN (EMS) | 0.3677864386 | $777,910 | $777,910 | $286.10 | | |
| FIRE1 | Fire & Rescue Dist #1 Camano GEN | 1.2502910536 | $777,910 | $777,910 | $972.61 | | |
| FIRE1BOND | Fire & Rescue Dist #1 Camano BOND | 0.1570001679 | $777,910 | $777,910 | $122.13 | | |
| CE | County Current Expense | 0.3708482477 | $777,910 | $777,910 | $288.49 | | |
| CR | County Roads | 0.4584763726 | $777,910 | $777,910 | $356.65 | | |
| LCIB | Library Sno-Isle BOND (Camano Island) | 0.0396325772 | $777,910 | $777,910 | $30.83 | | |
| LIB | Library Sno-Isle GEN | 0.3153421757 | $777,910 | $777,910 | $245.31 | | |
| SCH205_401 | School 205-401 Enrichment | 1.2698420524 | $777,910 | $777,910 | $987.82 | | |
| SCH205BOND | School 205-401 BOND | 0.9396497583 | $777,910 | $777,910 | $730.96 | | |
| ST | State School | 1.3035497053 | $777,910 | $777,910 | $1,014.04 | | |
| ST2 | State School Part 2 | 0.8169543533 | $777,910 | $777,910 | $635.52 | | |
| | Total Tax Rate: | 7.3209764117 | | | | | |
| | | | | Taxes w/Current Exemptions: | $5,695.04 | | |
| | | | | Taxes w/o Exemptions: | $5,695.04 | | |
Improvement / Building
| Improvement #1: | RESIDENTIAL | State Code: | Y | 2600.5 sqft | Value: | $547,910 |
| Bathrooms: | 2.5 | Bedrooms: | 3 | | Ceiling: | DRYWALL PAINTED | Exterior Wall/Cover: | CEMENT FIBER | | Floor Covering: | HARDWOOD/CARP 60-40 | Floor Structure: | WOOD W/SUBFLOOR | | Foundation: | CONCRETE | Heating: | FLOOR/WALL GAS | | Interior Finish: | DRYWALL PAINT | Plumbing Fixture Cnt: | 16 | | Roof Slope: | 5" IN 12" | Roof Structure/Cover: | CJ ASPHALT |
|
| | Type | Description | Class CD | Sub Class CD | Year Built | Area |
| | BAS | BASE/MAIN FLOOR | 4 | 0 | 2005 | 1658.5 |
| | OP4 | OPEN PORCH W/CEILING-ROOF | 4 | 0 | 2005 | 35.0 |
| | AGR | ATTACHED GARAGE | 4 | 0 | 2005 | 792.0 |
| | OWP | OPEN WOOD PORCH W/STEPS | 4 | 0 | 2005 | 458.0 |
| | OWP | OPEN WOOD PORCH W/STEPS | 4 | 0 | 2005 | 176.0 |
| | DWN | DOWNSTAIRS LIVING AREA | 4 | 0 | 2005 | 942.0 |
Sketch
Property Image
Land
| 1 | 15 | SQ (12001-21780) | 0.0000 | 0.00 | 0.00 | 0.00 | 1.00 | $230,000 | $0 |
Roll Value History
| 2026 | N/A | N/A | N/A | N/A | N/A |
| 2025 | $547,910 | $230,000 | $0 | $777,910 | $777,910 |
| 2024 | $552,515 | $210,000 | $0 | $762,515 | $762,515 |
| 2023 | $557,427 | $210,000 | $0 | $767,427 | $767,427 |
| 2022 | $508,655 | $200,000 | $0 | $708,655 | $708,655 |
| 2021 | $421,760 | $120,000 | $0 | $541,760 | $541,760 |
| 2020 | $410,458 | $100,000 | $0 | $510,458 | $510,458 |
| 2019 | $308,266 | $180,000 | $0 | $488,266 | $488,266 |
| 2018 | $309,128 | $140,000 | $0 | $449,128 | $449,128 |
| 2017 | $310,856 | $90,000 | $0 | $400,856 | $400,856 |
| 2016 | $314,309 | $65,000 | $0 | $379,309 | $379,309 |
| 2015 | $321,652 | $45,000 | $0 | $366,652 | $366,652 |
| 2014 | $325,266 | $45,000 | $0 | $370,266 | $370,266 |
| 2013 | $328,880 | $45,000 | $0 | $373,880 | $373,880 |
| 2012 | $332,495 | $56,000 | $0 | $388,495 | $388,495 |
| 2011 | $336,108 | $84,000 | $0 | $420,108 | $420,108 |
| 2010 | $354,761 | $84,000 | $0 | $438,761 | $438,761 |
| 2009 | $365,021 | $90,000 | $0 | $455,021 | $455,021 |
| 2008 | $368,941 | $115,000 | $0 | $483,941 | $483,941 |
| 2007 | $372,906 | $115,000 | $0 | $487,906 | $487,906 |
Deed and Sales History
| 1 | 11/22/2011 | SPLTDWARDE | Special Limited Warranty Deed | THE BANK OF NEW YORK MELLON CORPORATION | TRAN, JAY TRI MINH | | | $224,900.00 | 6510 | 4307260 |
| 2 | 05/06/2011 | TRUSTEED | Trustee's Deed | NGUYEN, STEVEN D | THE BANK OF NEW YORK MELLON CORPORATION | | | $215,200.00 | 4388 | 4295009 |
| 3 | 01/09/2007 | WD | Warranty Deed | WITHERS, JAYSON W | NGUYEN, STEVEN D | | | $466,000.00 | 70122 | 4191536 |
| 4 | 09/21/2005 | ESTSEPPROP | Establish Separate Property | WITHERS, JAYSON W | WITHERS, JAYSON W | | | $0.00 | 54825 | 4148851 |
| 5 | 09/21/2005 | WD | Warranty Deed | CROSSWIND LANDINGS INC, | WITHERS, JAYSON W | | | $0.00 | 54824 | 4148850 |
| 6 | 01/01/1900 | OTHER | Other - Misc. Documents | Unknown | CROSSWIND LANDINGS INC, | | | $0.00 | 0 | 0 |
Payout Agreement
| No payout information available.. |