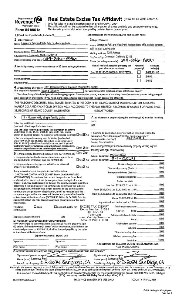
Property
Account |
| Property ID: | 806592 | Abbreviated Legal Description: | SW NE NE EX PT TO IS CO AF#4376492 (AKA LOT 6 HIGHLAND ESTATES SURVEY V13 SUR P379-380 AF#4155796) |
| Geographic ID: | R23119-427-4390 | Agent Code: | |
| Type: | Real | | |
| Tax Area: | 312 - APPRAISER-Cpvl Schl Dist, outside Cpvl, improved, greater than 1 acre | Land Use Code | 88 |
| Open Space: | N | DFL | Y |
| Historic Property: | N | Remodel Property: | N |
| Multi-Family Redevelopment: | N | | |
| Township: | 31 | Section: | 19 |
| Range: | R2 |
Location |
| Address: | 369 HIGHLAND TRAIL RD COUPEVILLE, WA 98239 | Mapsco: | |
| Neighborhood: | Cycle 2 | Map ID: | 496 |
| Neighborhood CD: | 2 |
Owner |
| Name: | GREENE, RONALD C. | Owner ID: | 268080 |
| Mailing Address: | CRISTINA M GREENE 369 HIGHLAND TRAIL RD COUPEVILLE, WA 98239 | % Ownership: | 100.0000000000% |
| | | Exemptions: | |
Taxes and Assessment Details
Values
| (+) Improvement Homesite Value: | + | $0 | |
| (+) Improvement Non-Homesite Value: | + | $504,970 | |
| (+) Land Homesite Value: | + | $0 | |
| (+) Land Non-Homesite Value: | + | $252,846 | |
| (+) Curr Use (HS): | + | $0 | $0 |
| (+) Curr Use (NHS): | + | $102,271 | $1,047 |
| | | -------------------------- | |
| (=) Market Value: | = | $860,087 | |
| (–) Productivity Loss: | – | $101,224 | |
| | | -------------------------- | |
| (=) Subtotal: | = | $758,863 | |
| (+) Senior Appraised Value: | + | $0 | |
| (+) Non-Senior Appraised Value: | + | $758,863 | |
| | | -------------------------- | |
| (=) Total Appraised Value: | = | $758,863 | |
| (–) Senior Exemption Loss: | – | $0 | |
| (–) Exemption Loss: | – | $0 | |
| | | -------------------------- | |
| (=) Taxable Value: | = | $758,863 | |
Taxing Jurisdiction
| Owner: | GREENE, RONALD C. | | |
| % Ownership: | 100.0000000000% | | |
| Total Value: | $860,087 | | |
| Tax Area: | 312 - APPRAISER-Cpvl Schl Dist, outside Cpvl, improved, greater than 1 acre |
| CF | Conservation Futures | 0.0316035091 | $758,863 | $758,863 | $23.98 | | |
| CEM2 | Cemetery #2 | 0.0095056933 | $758,863 | $758,863 | $7.21 | | |
| FIRE5 | Fire & Rescue Dist #5 C Whidbey GEN | 1.2008080668 | $758,863 | $758,863 | $911.25 | | |
| FIRE5BOND | Fire & Rescue Dist #5 C Whidbey BOND | 0.1400090713 | $758,863 | $758,863 | $106.25 | | |
| HOBOND | Hospital BOND | 0.1910887512 | $758,863 | $758,863 | $145.01 | | |
| HOGEN | Hospital GEN | 0.3902502903 | $758,863 | $758,863 | $296.15 | | |
| CE | County Current Expense | 0.3708482477 | $758,863 | $758,863 | $281.42 | | |
| CR | County Roads | 0.4584763726 | $758,863 | $758,863 | $347.92 | | |
| ISLANDEMS | Hospital GEN (EMS) | 0.5000000000 | $758,863 | $758,863 | $379.43 | | |
| LIB | Library Sno-Isle GEN | 0.3153421757 | $758,863 | $758,863 | $239.30 | | |
| LIBCAP | Library Sno-Isle BOND (Cap Fac Imp Area) | 0.0543427938 | $758,863 | $758,863 | $41.24 | | |
| POCOUP | Port of Coupeville GEN | 0.1093371703 | $758,863 | $758,863 | $82.97 | | |
| POCOUPIDD | Port of Coupeville IDD | 0.3409740022 | $758,863 | $758,863 | $258.75 | | |
| COUPSDTECH | School 204 CP (TECH) | 0.7545480007 | $758,863 | $758,863 | $572.60 | | |
| SCH204MO | School 204 Enrichment | 0.6716186034 | $758,863 | $758,863 | $509.67 | | |
| ST | State School | 1.3035497053 | $758,863 | $758,863 | $989.22 | | |
| ST2 | State School Part 2 | 0.8169543533 | $758,863 | $758,863 | $619.96 | | |
| | Total Tax Rate: | 7.6592568070 | | | | | |
| | | | | Taxes w/Current Exemptions: | $5,812.33 | | |
| | | | | Taxes w/o Exemptions: | $5,812.33 | | |
Improvement / Building
| Improvement #1: | RESIDENTIAL | State Code: | Y | 2315.0 sqft | Value: | $504,970 |
| Bathrooms: | 2 | Bedrooms: | 3 | | Ceiling: | DRYWALL PAINTED | Cooling: | HEAT PUMP/CONV/V | | Exterior Wall/Cover: | CEMENT FIBER | Floor Covering: | VINYL 100% | | Floor Structure: | WOOD W/SUBFLOOR | Foundation: | CONCRETE | | Interior Finish: | DRYWALL PAINT | Plumbing Fixture Cnt: | 12 | | Roof Slope: | 5" IN 12" | Roof Structure/Cover: | CJ ASPHALT |
|
| | Type | Description | Class CD | Sub Class CD | Year Built | Area |
| | BAS | BASE/MAIN FLOOR | 4 | 0 | 2006 | 2315.0 |
| | OP3 | OPEN PORCH W/ROOF | 4 | 0 | 2006 | 212.0 |
| | AGR | ATTACHED GARAGE | 4 | 0 | 2006 | 712.7 |
| | DGR | DETACHED GARAGE | 4 | 0 | 2006 | 624.0 |
Sketch
Property Image
Land
| 1 | 88 | DESIGNATED FOREST | 1.3000 | 56628.00 | 0.00 | 0.00 | 1.00 | $19,409 | $242 |
| 2 | HS | HOMESITE | 1.0000 | 43560.00 | 0.00 | 0.00 | 1.00 | $220,000 | $0 |
| 3 | 88 | DESIGNATED FOREST | 5.5500 | 241758.00 | 0.00 | 0.00 | 1.00 | $82,862 | $805 |
| 4 | 91 | UNDEVELOPED LAND-METES AND BOUNDS | 2.2000 | 95832.00 | 0.00 | 0.00 | 1.00 | $32,846 | $0 |
Roll Value History
| 2026 | N/A | N/A | N/A | N/A | N/A |
| 2025 | $504,970 | $355,117 | $1,047 | $758,863 | $758,863 |
| 2024 | $476,594 | $310,000 | $1,053 | $711,956 | $711,956 |
| 2023 | $481,976 | $290,000 | $1,010 | $575,324 | $575,324 |
| 2022 | $442,481 | $260,000 | $1,010 | $526,691 | $526,691 |
| 2021 | $390,639 | $225,000 | $1,010 | $463,291 | $463,291 |
| 2020 | $379,763 | $215,000 | $1,010 | $449,231 | $449,231 |
| 2019 | $286,036 | $250,000 | $974 | $366,612 | $366,612 |
| 2018 | $277,137 | $200,000 | $960 | $341,782 | $341,782 |
| 2017 | $250,171 | $135,000 | $960 | $294,570 | $294,570 |
| 2016 | $252,982 | $135,000 | $1,016 | $297,437 | $297,437 |
| 2015 | $255,793 | $136,350 | $1,016 | $300,684 | $300,684 |
| 2014 | $258,603 | $136,350 | $692 | $303,170 | $303,170 |
| 2013 | $261,414 | $136,350 | $692 | $305,981 | $305,981 |
| 2012 | $0 | $100,555 | $692 | $692 | $692 |
| 2011 | $0 | $118,300 | $692 | $692 | $692 |
| 2010 | $0 | $118,300 | $692 | $692 | $692 |
| 2009 | $0 | $182,000 | $692 | $692 | $692 |
| 2008 | $0 | $1,384 | $692 | $692 | $692 |
| 2007 | $0 | $0 | $0 | $693 | $693 |
Deed and Sales History
| 1 | 03/07/2016 | EZ | Easement | GREENE, RONALD C. | GREENE, RONALD C. | | | $0.00 | 34829 | 4447308 |
| 2 | 12/04/2014 | WD | Warranty Deed | GREENE, RONALD C. | GREENE, RONALD C. | | | $0.00 | 19116 | 4376492 |
| 3 | 09/02/2014 | WD | Warranty Deed | KELLISON, KODY L | GREENE, RONALD C. | | | $382,500.00 | 16761 | 4365368 |
| 4 | 07/30/2009 | WD | Warranty Deed | STRAIN, MARY JO CICCIA | KELLISON, KODY L | | | $0.00 | 91805 | 4257880 |
| 5 | 01/23/2008 | SEG | DNU - Segregation | Unknown | ISLAND PROPERTIES LLC, | | | $0.00 | 80576 | 0 |
| 6 | 01/26/2006 | WD | Warranty Deed | ISLAND PROPERTIES LLC, | STRAIN, MARY JO CICCIA | | | $135,000.00 | 60389 | 4161055 |
Payout Agreement
| No payout information available.. |