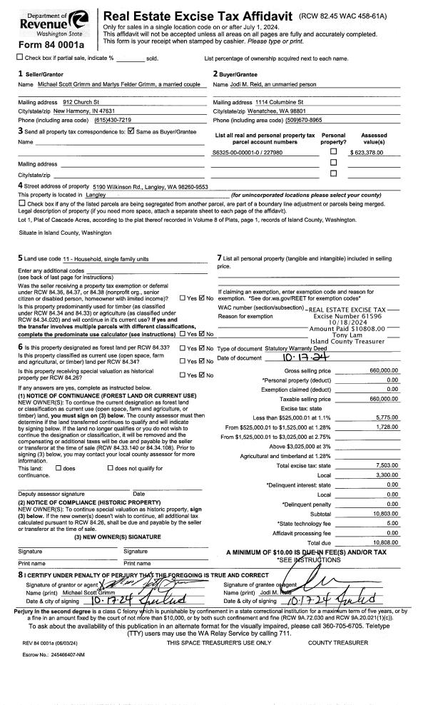
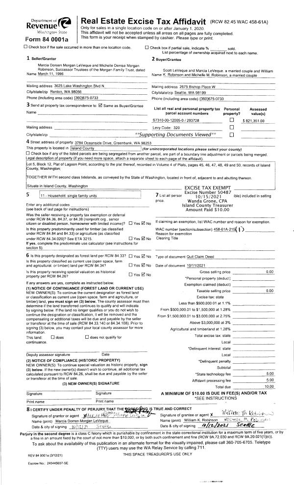
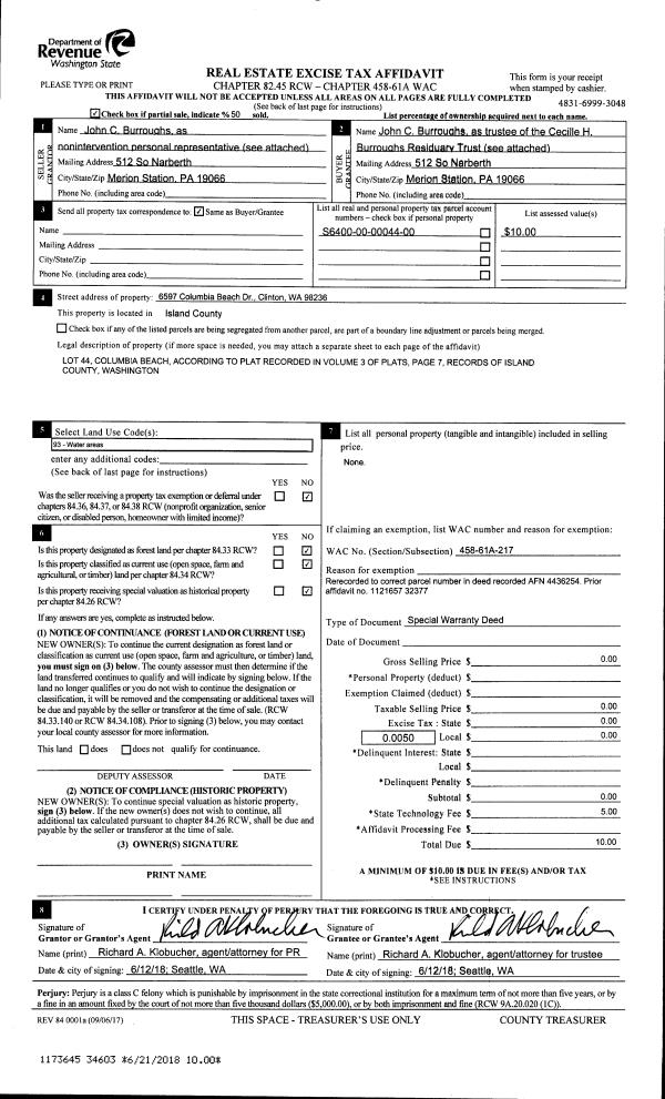
Property
Account |
| Property ID: | 806597 | Abbreviated Legal Description: | NE SE NE EZ AF#4406131 & AF#4406130 (AKA LOT 9 HIGHLAND ESTATES SURVEY V13 SUR P379-380 AF#4155796) |
| Geographic ID: | R23119-361-5050 | Agent Code: | |
| Type: | Real | | |
| Tax Area: | 312 - APPRAISER-Cpvl Schl Dist, outside Cpvl, improved, greater than 1 acre | Land Use Code | 11 |
| Open Space: | N | DFL | N |
| Historic Property: | N | Remodel Property: | N |
| Multi-Family Redevelopment: | N | | |
| Township: | 31 | Section: | 19 |
| Range: | R2 |
Location |
| Address: | 354 HIGHLAND TRAIL RD COUPEVILLE, WA 98239 | Mapsco: | |
| Neighborhood: | Cycle 2 | Map ID: | 496 |
| Neighborhood CD: | 2 |
Owner |
| Name: | SWEETWOOD, AMY | Owner ID: | 315569 |
| Mailing Address: | DAVID BRAZELL 354 HIGHLAND TRAIL COUPEVILLE, WA 98239 | % Ownership: | 100.0000000000% |
| | | Exemptions: | |
Taxes and Assessment Details
Values
| (+) Improvement Homesite Value: | + | $0 | |
| (+) Improvement Non-Homesite Value: | + | $891,005 | |
| (+) Land Homesite Value: | + | $0 | |
| (+) Land Non-Homesite Value: | + | $355,183 | |
| (+) Curr Use (HS): | + | $0 | $0 |
| (+) Curr Use (NHS): | + | $0 | $0 |
| | | -------------------------- | |
| (=) Market Value: | = | $1,246,188 | |
| (–) Productivity Loss: | – | $0 | |
| | | -------------------------- | |
| (=) Subtotal: | = | $1,246,188 | |
| (+) Senior Appraised Value: | + | $0 | |
| (+) Non-Senior Appraised Value: | + | $1,246,188 | |
| | | -------------------------- | |
| (=) Total Appraised Value: | = | $1,246,188 | |
| (–) Senior Exemption Loss: | – | $0 | |
| (–) Exemption Loss: | – | $0 | |
| | | -------------------------- | |
| (=) Taxable Value: | = | $1,246,188 | |
Taxing Jurisdiction
| Owner: | SWEETWOOD, AMY | | |
| % Ownership: | 100.0000000000% | | |
| Total Value: | $1,246,188 | | |
| Tax Area: | 312 - APPRAISER-Cpvl Schl Dist, outside Cpvl, improved, greater than 1 acre |
| CF | Conservation Futures | 0.0316035091 | $1,246,188 | $1,246,188 | $39.38 | | |
| CEM2 | Cemetery #2 | 0.0095056933 | $1,246,188 | $1,246,188 | $11.85 | | |
| FIRE5 | Fire & Rescue Dist #5 C Whidbey GEN | 1.2008080668 | $1,246,188 | $1,246,188 | $1,496.43 | | |
| FIRE5BOND | Fire & Rescue Dist #5 C Whidbey BOND | 0.1400090713 | $1,246,188 | $1,246,188 | $174.48 | | |
| HOBOND | Hospital BOND | 0.1910887512 | $1,246,188 | $1,246,188 | $238.13 | | |
| HOGEN | Hospital GEN | 0.3902502903 | $1,246,188 | $1,246,188 | $486.33 | | |
| CE | County Current Expense | 0.3708482477 | $1,246,188 | $1,246,188 | $462.15 | | |
| CR | County Roads | 0.4584763726 | $1,246,188 | $1,246,188 | $571.35 | | |
| ISLANDEMS | Hospital GEN (EMS) | 0.5000000000 | $1,246,188 | $1,246,188 | $623.09 | | |
| LIB | Library Sno-Isle GEN | 0.3153421757 | $1,246,188 | $1,246,188 | $392.98 | | |
| LIBCAP | Library Sno-Isle BOND (Cap Fac Imp Area) | 0.0543427938 | $1,246,188 | $1,246,188 | $67.72 | | |
| POCOUP | Port of Coupeville GEN | 0.1093371703 | $1,246,188 | $1,246,188 | $136.25 | | |
| POCOUPIDD | Port of Coupeville IDD | 0.3409740022 | $1,246,188 | $1,246,188 | $424.92 | | |
| COUPSDTECH | School 204 CP (TECH) | 0.7545480007 | $1,246,188 | $1,246,188 | $940.31 | | |
| SCH204MO | School 204 Enrichment | 0.6716186034 | $1,246,188 | $1,246,188 | $836.96 | | |
| ST | State School | 1.3035497053 | $1,246,188 | $1,246,188 | $1,624.47 | | |
| ST2 | State School Part 2 | 0.8169543533 | $1,246,188 | $1,246,188 | $1,018.08 | | |
| | Total Tax Rate: | 7.6592568070 | | | | | |
| | | | | Taxes w/Current Exemptions: | $9,544.88 | | |
| | | | | Taxes w/o Exemptions: | $9,544.88 | | |
Improvement / Building
| Improvement #1: | RESIDENTIAL | State Code: | Y | 4634.4 sqft | Value: | $891,005 |
| Bathrooms: | 4 | Bedrooms: | 3 | | Ceiling: | DRYWALL PAINTED | Exterior Wall/Cover: | CEMENT FIBER | | Floor Covering: | CERAMIC TILE/HWD 40/60 | Floor Structure: | WOOD W/SUBFLOOR | | Foundation: | CONCRETE | Heating: | FHA GAS | | Interior Finish: | DRYWALL PAINT | Plumbing Fixture Cnt: | 17 | | Roof Slope: | 10" IN 12" | Roof Structure/Cover: | CJ ASPHALT |
|
| | Type | Description | Class CD | Sub Class CD | Year Built | Area |
| | BAS | BASE/MAIN FLOOR | 5 | 0 | 2007 | 2641.4 |
| | OP1 | OPEN PORCH SLAB | 5 | 0 | 2007 | 361.7 |
| | OP4 | OPEN PORCH W/CEILING-ROOF | 5 | 0 | 2007 | 172.0 |
| | BIG | BUILT IN GARAGE | 5 | 0 | 2007 | 546.0 |
| | DWN | DOWNSTAIRS LIVING AREA | 5 | 0 | 2007 | 1236.0 |
| | UPH | HALF STORY | 5 | 0 | 2007 | 757.0 |
| | OWP | OPEN WOOD PORCH W/STEPS | 5 | 0 | 2007 | 360.4 |
| | UB8 | BASEMENT UNFINISHED 8" | 5 | 0 | 2007 | 1391.1 |
Sketch
Property Image
Land
| 1 | 91 | UNDEVELOPED LAND-METES AND BOUNDS | 9.0800 | 395524.80 | 0.00 | 0.00 | 1.00 | $135,183 | $0 |
| 2 | HS | HOMESITE | 1.0000 | 43560.00 | 0.00 | 0.00 | 1.00 | $220,000 | $0 |
Roll Value History
| 2026 | N/A | N/A | N/A | N/A | N/A |
| 2025 | $891,005 | $355,183 | $0 | $1,246,188 | $1,246,188 |
| 2024 | $956,891 | $310,000 | $0 | $1,266,891 | $1,266,891 |
| 2023 | $968,384 | $290,000 | $0 | $1,258,384 | $1,258,384 |
| 2022 | $887,297 | $260,000 | $0 | $1,147,297 | $1,147,297 |
| 2021 | $780,595 | $225,000 | $0 | $1,005,595 | $1,005,595 |
| 2020 | $678,141 | $215,000 | $1,088 | $764,546 | $764,546 |
| 2019 | $576,356 | $250,000 | $1,052 | $676,614 | $676,614 |
| 2018 | $383,701 | $200,000 | $1,040 | $463,992 | $463,992 |
| 2017 | $385,791 | $135,000 | $1,040 | $440,402 | $440,402 |
| 2016 | $390,128 | $135,000 | $614 | $444,313 | $444,313 |
| 2015 | $394,461 | $111,384 | $614 | $439,275 | $439,275 |
| 2014 | $398,796 | $111,384 | $614 | $443,610 | $443,610 |
| 2013 | $403,132 | $111,384 | $614 | $447,946 | $447,946 |
| 2012 | $0 | $67,184 | $614 | $614 | $614 |
| 2011 | $0 | $79,040 | $614 | $614 | $614 |
| 2010 | $0 | $79,040 | $614 | $614 | $614 |
| 2009 | $0 | $121,600 | $614 | $614 | $614 |
| 2008 | $473 | $755 | $614 | $614 | $614 |
| 2007 | $0 | $0 | $0 | $618 | $618 |
Deed and Sales History
| 1 | 02/21/2025 | WD | Warranty Deed | BAKER, STANLEY J | SWEETWOOD, AMY | | | $1,195,000.00 | 62648 | 4582587 |
| 2 | 04/06/2021 | WD | Warranty Deed | LAUDERDALE, ROBERT J | BAKER, STANLEY J | | | $1,140,000.00 | 47806 | 4516630 |
| 3 | 08/29/2016 | EZ | Easement | LAUDERDALE, ROBERT J | LAUDERDALE, ROBERT J | | | $0.00 | 34940 | 4447762 |
| 4 | 07/22/2016 | EZ | Easement | LAUDERDALE, ROBERT J | ISLAND COUNTY PUBLIC WORKS | | | $0.00 | 25877 | 4406130 |
| 5 | 03/16/2010 | EZ | Easement | LAUDERDALE, ROBERT J | LAUDERDALE, ROBERT J | | | $2,475.00 | 782 | 4271588 |
| 6 | 01/23/2008 | SEG | DNU - Segregation | Unknown | ISLAND PROPERTIES LLC, | | | $0.00 | 80576 | 0 |
| 7 | 12/08/2005 | WD | Warranty Deed | ISLAND PROPERTIES LLC, | LAUDERDALE, ROBERT J | | | $130,000.00 | 56203 | 4157105 |
Payout Agreement
| No payout information available.. |