Property
Account |
| Property ID: | 806598 | Abbreviated Legal Description: | SE SE NE EX PT TO IS CO AF#4383864 (AKA LOT 10 HIGHLAND ESTATES SURVEY V13 SUR P379-380 AF#4155796) |
| Geographic ID: | R23119-297-5060 | Agent Code: | |
| Type: | Real | | |
| Tax Area: | 312 - APPRAISER-Cpvl Schl Dist, outside Cpvl, improved, greater than 1 acre | Land Use Code | 11 |
| Open Space: | N | DFL | N |
| Historic Property: | N | Remodel Property: | N |
| Multi-Family Redevelopment: | N | | |
| Township: | 31 | Section: | 19 |
| Range: | R2 |
Location |
| Address: | 363 RUSTIC RIDGE LN COUPEVILLE, WA 98239 | Mapsco: | |
| Neighborhood: | Cycle 2 | Map ID: | 496 |
| Neighborhood CD: | 2 |
Owner |
| Name: | KESSLER, DARYL | Owner ID: | 274110 |
| Mailing Address: | BRYANNA KESSLER 363 RUSTIC RIDGE LN COUPEVILLE, WA 98239 | % Ownership: | 100.0000000000% |
| | | Exemptions: | |
Taxes and Assessment Details
Values
| (+) Improvement Homesite Value: | + | $0 | |
| (+) Improvement Non-Homesite Value: | + | $692,174 | |
| (+) Land Homesite Value: | + | $0 | |
| (+) Land Non-Homesite Value: | + | $348,619 | |
| (+) Curr Use (HS): | + | $0 | $0 |
| (+) Curr Use (NHS): | + | $0 | $0 |
| | | -------------------------- | |
| (=) Market Value: | = | $1,040,793 | |
| (–) Productivity Loss: | – | $0 | |
| | | -------------------------- | |
| (=) Subtotal: | = | $1,040,793 | |
| (+) Senior Appraised Value: | + | $0 | |
| (+) Non-Senior Appraised Value: | + | $1,040,793 | |
| | | -------------------------- | |
| (=) Total Appraised Value: | = | $1,040,793 | |
| (–) Senior Exemption Loss: | – | $0 | |
| (–) Exemption Loss: | – | $0 | |
| | | -------------------------- | |
| (=) Taxable Value: | = | $1,040,793 | |
Taxing Jurisdiction
| Owner: | KESSLER, DARYL | | |
| % Ownership: | 100.0000000000% | | |
| Total Value: | $1,040,793 | | |
| Tax Area: | 312 - APPRAISER-Cpvl Schl Dist, outside Cpvl, improved, greater than 1 acre |
| CF | Conservation Futures | 0.0316035091 | $1,040,793 | $1,040,793 | $32.89 | | |
| CEM2 | Cemetery #2 | 0.0095056933 | $1,040,793 | $1,040,793 | $9.89 | | |
| FIRE5 | Fire & Rescue Dist #5 C Whidbey GEN | 1.2008080668 | $1,040,793 | $1,040,793 | $1,249.79 | | |
| FIRE5BOND | Fire & Rescue Dist #5 C Whidbey BOND | 0.1400090713 | $1,040,793 | $1,040,793 | $145.72 | | |
| HOBOND | Hospital BOND | 0.1910887512 | $1,040,793 | $1,040,793 | $198.88 | | |
| HOGEN | Hospital GEN | 0.3902502903 | $1,040,793 | $1,040,793 | $406.17 | | |
| CE | County Current Expense | 0.3708482477 | $1,040,793 | $1,040,793 | $385.98 | | |
| CR | County Roads | 0.4584763726 | $1,040,793 | $1,040,793 | $477.18 | | |
| ISLANDEMS | Hospital GEN (EMS) | 0.5000000000 | $1,040,793 | $1,040,793 | $520.40 | | |
| LIB | Library Sno-Isle GEN | 0.3153421757 | $1,040,793 | $1,040,793 | $328.21 | | |
| LIBCAP | Library Sno-Isle BOND (Cap Fac Imp Area) | 0.0543427938 | $1,040,793 | $1,040,793 | $56.56 | | |
| POCOUP | Port of Coupeville GEN | 0.1093371703 | $1,040,793 | $1,040,793 | $113.80 | | |
| POCOUPIDD | Port of Coupeville IDD | 0.3409740022 | $1,040,793 | $1,040,793 | $354.88 | | |
| COUPSDTECH | School 204 CP (TECH) | 0.7545480007 | $1,040,793 | $1,040,793 | $785.33 | | |
| SCH204MO | School 204 Enrichment | 0.6716186034 | $1,040,793 | $1,040,793 | $699.02 | | |
| ST | State School | 1.3035497053 | $1,040,793 | $1,040,793 | $1,356.73 | | |
| ST2 | State School Part 2 | 0.8169543533 | $1,040,793 | $1,040,793 | $850.28 | | |
| | Total Tax Rate: | 7.6592568070 | | | | | |
| | | | | Taxes w/Current Exemptions: | $7,971.71 | | |
| | | | | Taxes w/o Exemptions: | $7,971.71 | | |
Improvement / Building
| Improvement #1: | RESIDENTIAL | State Code: | Y | 2690.2 sqft | Value: | $692,174 |
| Bathrooms: | 3.5 | Bedrooms: | 3 | | Ceiling: | TONGUE & GROOVE | Exterior Wall/Cover: | CEMENT FIBER | | Floor Covering: | CARPET/VINYL 60-40 | Floor Structure: | WOOD W/SUBFLOOR | | Foundation: | CONCRETE | Heating: | RADIANT FLOOR | | Interior Finish: | DRYWALL PAINT | Plumbing Fixture Cnt: | 16 | | Roof Slope: | 10" IN 12" | Roof Structure/Cover: | BEAM ASPHALT |
|
| | Type | Description | Class CD | Sub Class CD | Year Built | Area |
| | BAS | BASE/MAIN FLOOR | 4 | 0 | 2014 | 2690.2 |
| | AGR | ATTACHED GARAGE | 4 | 0 | 2014 | 986.0 |
| | OWC | OPEN WOOD PORCH W/STEPS/ROOF/C | 4 | 0 | 2014 | 58.8 |
| | OWP | OPEN WOOD PORCH W/STEPS | 4 | 0 | 2014 | 360.0 |
| | oCAR | CARPORT | 4 | 0 | 2019 | 432.0 |
| | oPOL | POLE BARN | 4 | 0 | 2019 | 1440.0 |
Sketch
| No sketches available for this property. |
Property Image
Land
| 1 | HS | HOMESITE | 1.0000 | 43560.00 | 0.00 | 0.00 | 1.00 | $220,000 | $0 |
| 2 | 91 | UNDEVELOPED LAND-METES AND BOUNDS | 8.1900 | 356756.40 | 0.00 | 0.00 | 1.00 | $128,619 | $0 |
Roll Value History
| 2026 | N/A | N/A | N/A | N/A | N/A |
| 2025 | $692,174 | $348,619 | $0 | $1,040,793 | $1,040,793 |
| 2024 | $670,151 | $290,000 | $0 | $960,151 | $960,151 |
| 2023 | $675,643 | $280,000 | $0 | $955,643 | $955,643 |
| 2022 | $616,787 | $250,000 | $0 | $866,787 | $866,787 |
| 2021 | $540,651 | $170,000 | $0 | $710,651 | $710,651 |
| 2020 | $524,576 | $160,000 | $0 | $684,576 | $684,576 |
| 2019 | $353,624 | $230,000 | $0 | $583,624 | $583,624 |
| 2018 | $301,191 | $200,000 | $0 | $501,191 | $501,191 |
| 2017 | $302,768 | $200,000 | $0 | $502,768 | $502,768 |
| 2016 | $305,921 | $140,000 | $0 | $445,921 | $445,921 |
| 2015 | $232,235 | $130,000 | $0 | $362,235 | $362,235 |
| 2014 | $232,434 | $131,040 | $0 | $363,474 | $363,474 |
| 2013 | $126,730 | $131,040 | $0 | $257,770 | $257,770 |
| 2012 | $128,036 | $131,040 | $0 | $259,076 | $259,076 |
| 2011 | $130,649 | $131,040 | $0 | $261,689 | $261,689 |
| 2010 | $0 | $131,040 | $0 | $131,040 | $131,040 |
| 2009 | $0 | $201,600 | $0 | $201,600 | $201,600 |
| 2008 | $0 | $100,800 | $0 | $100,800 | $100,800 |
| 2007 | $0 | $0 | $0 | $115,932 | $115,932 |
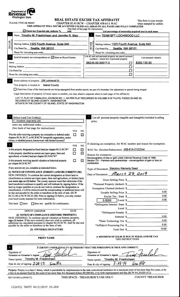
Deed and Sales History
| 1 | 07/24/2018 | EZ | Easement | KESSLER, DARYL | KESSLER, DARYL | | | $0.00 | 35403 | 4449721 |
| 2 | 07/31/2015 | WD | Warranty Deed | KESSLER, DARYL | KESSLER, DARYL | | | $0.00 | 20862 | 4383864 |
| 3 | 03/17/2016 | WD | Warranty Deed | MARLEY, RICHARD DOUGLAS | KESSLER, DARYL | | | $500,000.00 | 23573 | 4396029 |
| 4 | 09/30/2009 | WD | Warranty Deed | ANGULO, SHELLEY | MARLEY, RICHARD DOUGLAS | | | $149,000.00 | 92375 | 4261465 |
| 5 | 03/03/2009 | EZ | Easement | ANGULO, SHELLEY | ANGULO, SHELLEY | | | $2,475.00 | 91575 | 4259010 |
| 6 | 01/23/2008 | SEG | DNU - Segregation | Unknown | ISLAND PROPERTIES LLC, | | | $0.00 | 80576 | 0 |
| 7 | 01/04/2006 | WD | Warranty Deed | ISLAND PROPERTIES LLC, | ANGULO, SHELLEY | | | $142,000.00 | 60115 | 4159334 |
| 8 | 01/04/2006 | ESTSEPPROP | Establish Separate Property | ANGULO, SHELLEY | ANGULO, SHELLEY | | | $0.00 | 60111 | 4159327 |
Payout Agreement
| No payout information available.. |