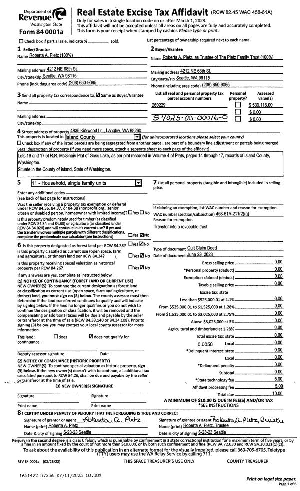
Property
Account |
| Property ID: | 80673 | Abbreviated Legal Description: | 191 - IN E/2 SW NE: BG SWCR E/2 SW NE N400' TPB N207.27 TO SWCR TR A CAMANO HTS #4 N89*E108.24' S26*E258.75' ALG CUR/SW 77.94' N70*W165 .96' TPB |
| Geographic ID: | R23114-314-3400 | Agent Code: | |
| Type: | Real | | |
| Tax Area: | 510 - APPRAISER-Stan/Cam Schl Dist, improved & 1 acre or less | Land Use Code | 11 |
| Open Space: | N | DFL | N |
| Historic Property: | N | Remodel Property: | N |
| Multi-Family Redevelopment: | N | | |
| Township: | 31 | Section: | 14 |
| Range: | R2 |
Location |
| Address: | 988 HADLEY WAY CAMANO ISLAND, WA 98282 | Mapsco: | |
| Neighborhood: | Cycle 5 | Map ID: | 484 |
| Neighborhood CD: | 5 |
Owner |
| Name: | THOMAS, ELIZA FAYE | Owner ID: | 307770 |
| Mailing Address: | JAREK GALEN THOMAS 988 HADLEY WAY CAMANO ISLAND, WA 98282 | % Ownership: | 100.0000000000% |
| | | Exemptions: | |
Taxes and Assessment Details
Values
| (+) Improvement Homesite Value: | + | $0 | |
| (+) Improvement Non-Homesite Value: | + | $209,933 | |
| (+) Land Homesite Value: | + | $0 | |
| (+) Land Non-Homesite Value: | + | $250,000 | |
| (+) Curr Use (HS): | + | $0 | $0 |
| (+) Curr Use (NHS): | + | $0 | $0 |
| | | -------------------------- | |
| (=) Market Value: | = | $459,933 | |
| (–) Productivity Loss: | – | $0 | |
| | | -------------------------- | |
| (=) Subtotal: | = | $459,933 | |
| (+) Senior Appraised Value: | + | $0 | |
| (+) Non-Senior Appraised Value: | + | $459,933 | |
| | | -------------------------- | |
| (=) Total Appraised Value: | = | $459,933 | |
| (–) Senior Exemption Loss: | – | $0 | |
| (–) Exemption Loss: | – | $0 | |
| | | -------------------------- | |
| (=) Taxable Value: | = | $459,933 | |
Taxing Jurisdiction
| Owner: | THOMAS, ELIZA FAYE | | |
| % Ownership: | 100.0000000000% | | |
| Total Value: | $459,933 | | |
| Tax Area: | 510 - APPRAISER-Stan/Cam Schl Dist, improved & 1 acre or less |
| CF | Conservation Futures | 0.0316035091 | $459,933 | $459,933 | $14.54 | | |
| EMS1 | Fire & Rescue Dist #1 Camano GEN (EMS) | 0.3677864386 | $459,933 | $459,933 | $169.16 | | |
| FIRE1 | Fire & Rescue Dist #1 Camano GEN | 1.2502910536 | $459,933 | $459,933 | $575.05 | | |
| FIRE1BOND | Fire & Rescue Dist #1 Camano BOND | 0.1570001679 | $459,933 | $459,933 | $72.21 | | |
| CE | County Current Expense | 0.3708482477 | $459,933 | $459,933 | $170.57 | | |
| CR | County Roads | 0.4584763726 | $459,933 | $459,933 | $210.87 | | |
| LCIB | Library Sno-Isle BOND (Camano Island) | 0.0396325772 | $459,933 | $459,933 | $18.23 | | |
| LIB | Library Sno-Isle GEN | 0.3153421757 | $459,933 | $459,933 | $145.04 | | |
| SCH205_401 | School 205-401 Enrichment | 1.2698420524 | $459,933 | $459,933 | $584.04 | | |
| SCH205BOND | School 205-401 BOND | 0.9396497583 | $459,933 | $459,933 | $432.18 | | |
| ST | State School | 1.3035497053 | $459,933 | $459,933 | $599.55 | | |
| ST2 | State School Part 2 | 0.8169543533 | $459,933 | $459,933 | $375.74 | | |
| | Total Tax Rate: | 7.3209764117 | | | | | |
| | | | | Taxes w/Current Exemptions: | $3,367.18 | | |
| | | | | Taxes w/o Exemptions: | $3,367.18 | | |
Improvement / Building
| Improvement #1: | RESIDENTIAL | State Code: | Y | 1550.0 sqft | Value: | $209,933 |
| Bathrooms: | 1.25 | Bedrooms: | 2 | | Ceiling: | TONGUE & GROOVE | Exterior Wall/Cover: | PLY/HARDBOARD T-111 | | Floor Covering: | CARPET/VINYL 60-40 | Floor Structure: | WOOD W/SUBFLOOR | | Foundation: | CONCRETE | Heating: | FHA ELECTRIC | | Interior Finish: | DRYWALL PAINT | Plumbing Fixture Cnt: | 8 | | Roof Slope: | 18" IN 12" | Roof Structure/Cover: | BEAM ASPHALT |
|
| | Type | Description | Class CD | Sub Class CD | Year Built | Area |
| | BAS | BASE/MAIN FLOOR | 3 | 0 | 1970 | 650.0 |
| | DWN | DOWNSTAIRS LIVING AREA | 3 | 0 | 1970 | 500.0 |
| | BAW | BALCONY WOOD RAIL | 3 | 0 | 1970 | 80.0 |
| | OWP | OPEN WOOD PORCH W/STEPS | 3 | 0 | 1970 | 216.0 |
| | OWP | OPEN WOOD PORCH W/STEPS | 3 | 0 | 1970 | 156.0 |
| | LOF | LOFT | 3 | 0 | 1970 | 400.0 |
| | DGR | DETACHED GARAGE | 3 | 0 | 1970 | 320.0 |
Sketch
Property Image
Land
| 1 | 16 | AC (00.51-01.00) | 0.8800 | 38332.80 | 0.00 | 0.00 | 1.00 | $250,000 | $0 |
Roll Value History
| 2026 | N/A | N/A | N/A | N/A | N/A |
| 2025 | $209,933 | $250,000 | $0 | $459,933 | $459,933 |
| 2024 | $212,838 | $230,000 | $0 | $442,838 | $442,838 |
| 2023 | $215,744 | $230,000 | $0 | $445,744 | $445,744 |
| 2022 | $195,119 | $210,000 | $0 | $405,119 | $405,119 |
| 2021 | $144,497 | $150,000 | $0 | $294,497 | $294,497 |
| 2020 | $141,134 | $120,000 | $0 | $261,134 | $261,134 |
| 2019 | $102,207 | $160,000 | $0 | $262,207 | $262,207 |
| 2018 | $102,541 | $120,000 | $0 | $222,541 | $222,541 |
| 2017 | $103,211 | $100,000 | $0 | $203,211 | $203,211 |
| 2016 | $104,552 | $100,000 | $0 | $204,552 | $204,552 |
| 2015 | $99,416 | $65,000 | $0 | $164,416 | $164,416 |
| 2014 | $100,645 | $65,000 | $0 | $165,645 | $165,645 |
| 2013 | $101,871 | $41,600 | $0 | $143,471 | $143,471 |
| 2012 | $103,100 | $41,600 | $0 | $144,700 | $144,700 |
| 2011 | $104,326 | $52,000 | $0 | $156,326 | $156,326 |
| 2010 | $106,938 | $52,000 | $0 | $158,938 | $158,938 |
| 2009 | $96,514 | $90,000 | $0 | $186,514 | $186,514 |
| 2008 | $98,197 | $95,000 | $0 | $193,197 | $193,197 |
| 2007 | $85,270 | $108,526 | $0 | $193,796 | $193,796 |
Deed and Sales History
| 1 | 02/24/2023 | WD | Warranty Deed | THOMAS, GLENDA | THOMAS, ELIZA FAYE | | | $545,000.00 | 55956 | 4557128 |
|   | |
| 2 | 09/01/1989 | WD | Warranty Deed | STARR, MARGARET M | THOMAS, GLENDA | | | $50,000.00 | 93867 | 89012896 |
| 3 | 02/01/1988 | TRUSTEED | Trustee's Deed | KAMINSKI, MICHAEL | STARR, MARGARET M | | | $0.00 | 80530 | 88002249 |
| 4 | 12/01/1983 | WD | Warranty Deed | STARR, MARGARET M | KAMINSKI, MICHAEL | | | $47,500.00 | 33696 | 418928 |
| 5 | 05/01/1978 | OTHER | Other - Misc. Documents | Unknown | STARR, MARGARET M | | | $31,500.00 | 81946 | 332092 |
Payout Agreement
| No payout information available.. |