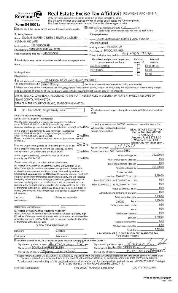
Property
Account |
| Property ID: | 806730 | Abbreviated Legal Description: | LOT 2 SHP 45-04. R32920-300-0720 V 4 SP P 72 AF# 4121910 |
| Geographic ID: | R32920-319-1050 | Agent Code: | |
| Type: | Real | | |
| Tax Area: | 712 - APPRAISER-S Whid Schl Dist, outside Langley, improved, greater than 1 acre | Land Use Code | 11 |
| Open Space: | N | DFL | N |
| Historic Property: | N | Remodel Property: | N |
| Multi-Family Redevelopment: | N | | |
| Township: | 29 | Section: | 20 |
| Range: | R3 |
Location |
| Address: | 6165 COUNTER CT CLINTON, WA 98236 | Mapsco: | |
| Neighborhood: | Cycle 4 | Map ID: | 793 |
| Neighborhood CD: | 4 |
Owner |
| Name: | VANDER POL, DARYL | Owner ID: | 253204 |
| Mailing Address: | PO BOX 1249 CLINTON, WA 98236 | % Ownership: | 100.0000000000% |
| | | Exemptions: | |
Taxes and Assessment Details
Values
| (+) Improvement Homesite Value: | + | $0 | |
| (+) Improvement Non-Homesite Value: | + | $1,339,175 | |
| (+) Land Homesite Value: | + | $0 | |
| (+) Land Non-Homesite Value: | + | $420,000 | |
| (+) Curr Use (HS): | + | $0 | $0 |
| (+) Curr Use (NHS): | + | $0 | $0 |
| | | -------------------------- | |
| (=) Market Value: | = | $1,759,175 | |
| (–) Productivity Loss: | – | $0 | |
| | | -------------------------- | |
| (=) Subtotal: | = | $1,759,175 | |
| (+) Senior Appraised Value: | + | $0 | |
| (+) Non-Senior Appraised Value: | + | $1,759,175 | |
| | | -------------------------- | |
| (=) Total Appraised Value: | = | $1,759,175 | |
| (–) Senior Exemption Loss: | – | $0 | |
| (–) Exemption Loss: | – | $0 | |
| | | -------------------------- | |
| (=) Taxable Value: | = | $1,759,175 | |
Taxing Jurisdiction
| Owner: | VANDER POL, DARYL | | |
| % Ownership: | 100.0000000000% | | |
| Total Value: | $1,759,175 | | |
| Tax Area: | 712 - APPRAISER-S Whid Schl Dist, outside Langley, improved, greater than 1 acre |
| CF | Conservation Futures | 0.0316035091 | $1,759,175 | $1,759,175 | $55.60 | | |
| FIRE3 | Fire & Rescue Dist #3 S Whidbey GEN | 1.2004855531 | $1,759,175 | $1,759,175 | $2,111.86 | | |
| HOBOND | Hospital BOND | 0.1910887512 | $1,759,175 | $1,759,175 | $336.16 | | |
| HOGEN | Hospital GEN | 0.3902502903 | $1,759,175 | $1,759,175 | $686.52 | | |
| CE | County Current Expense | 0.3708482477 | $1,759,175 | $1,759,175 | $652.39 | | |
| CR | County Roads | 0.4584763726 | $1,759,175 | $1,759,175 | $806.54 | | |
| ISLANDEMS | Hospital GEN (EMS) | 0.5000000000 | $1,759,175 | $1,759,175 | $879.59 | | |
| LIB | Library Sno-Isle GEN | 0.3153421757 | $1,759,175 | $1,759,175 | $554.74 | | |
| PORTWHID | Port of S Whidbey GEN | 0.1094540357 | $1,759,175 | $1,759,175 | $192.55 | | |
| SCH206BOND | School 206 BOND | 0.3161759235 | $1,759,175 | $1,759,175 | $556.21 | | |
| SCH206MO | School 206 Enrichment | 0.4547169547 | $1,759,175 | $1,759,175 | $799.93 | | |
| ST | State School | 1.3035497053 | $1,759,175 | $1,759,175 | $2,293.17 | | |
| ST2 | State School Part 2 | 0.8169543533 | $1,759,175 | $1,759,175 | $1,437.17 | | |
| SWHIDPRBD | P & R S Whidbey BOND | 0.0152817568 | $1,759,175 | $1,759,175 | $26.88 | | |
| SWHIDPRBD2 | P & R S Whidbey BOND2 | 0.0138911264 | $1,759,175 | $1,759,175 | $24.44 | | |
| SWHIDPRMT | P & R S Whidbey GEN | 0.2053334452 | $1,759,175 | $1,759,175 | $361.22 | | |
| | Total Tax Rate: | 6.6934522006 | | | | | |
| | | | | Taxes w/Current Exemptions: | $11,774.97 | | |
| | | | | Taxes w/o Exemptions: | $11,774.97 | | |
Improvement / Building
| Improvement #1: | RESIDENTIAL | State Code: | Y | 4158.5 sqft | Value: | $1,339,175 |
| Bathrooms: | 3 | Bedrooms: | 5 | | Ceiling: | BEAM PAINTED | Exterior Wall/Cover: | CEMENT FIBER | | Floor Covering: | HARDWOOD/CARP 60-40 | Floor Structure: | WOOD W/SUBFLOOR | | Foundation: | CONCRETE | Heating: | RADIANT FLOOR | | Interior Finish: | DRYWALL PAINT | Plumbing Fixture Cnt: | 19 | | Roof Slope: | 5" IN 12" | Roof Structure/Cover: | CJ ASPHALT |
|
| | Type | Description | Class CD | Sub Class CD | Year Built | Area |
| | BAS | BASE/MAIN FLOOR | 6 | 0 | 2013 | 4158.5 |
| | OP4 | OPEN PORCH W/CEILING-ROOF | 6 | 0 | 2013 | 229.0 |
| | OP4 | OPEN PORCH W/CEILING-ROOF | 6 | 0 | 2013 | 198.0 |
| | OP4 | OPEN PORCH W/CEILING-ROOF | 6 | 0 | 2013 | 167.7 |
| | OP4 | OPEN PORCH W/CEILING-ROOF | 6 | 0 | 2013 | 226.6 |
| | AGR | ATTACHED GARAGE | 6 | 0 | 2013 | 1501.6 |
| | OP1 | OPEN PORCH SLAB | 6 | 0 | 2013 | 932.4 |
| | OCP | OPEN CARPORT | 6 | 0 | 2013 | 576.0 |
| | UTY | STORAGE/UTILITY | 6 | 0 | 2013 | 2016.0 |
Sketch
Property Image
Land
| 1 | 32 | AC (03.01-09.99) | 4.8200 | 0.00 | 0.00 | 0.00 | 1.00 | $420,000 | $0 |
Roll Value History
| 2026 | N/A | N/A | N/A | N/A | N/A |
| 2025 | $1,339,175 | $420,000 | $0 | $1,759,175 | $1,759,175 |
| 2024 | $1,323,930 | $390,000 | $0 | $1,713,930 | $1,713,930 |
| 2023 | $1,334,137 | $350,000 | $0 | $1,684,137 | $1,684,137 |
| 2022 | $1,217,978 | $350,000 | $0 | $1,567,978 | $1,567,978 |
| 2021 | $1,067,714 | $300,000 | $0 | $1,367,714 | $1,367,714 |
| 2020 | $872,519 | $260,000 | $0 | $1,132,519 | $1,132,519 |
| 2019 | $768,775 | $300,000 | $0 | $1,068,775 | $1,068,775 |
| 2018 | $770,815 | $300,000 | $0 | $1,070,815 | $1,070,815 |
| 2017 | $774,892 | $250,000 | $0 | $1,024,892 | $1,024,892 |
| 2016 | $783,049 | $250,000 | $0 | $1,033,049 | $1,033,049 |
| 2015 | $791,207 | $165,000 | $0 | $956,207 | $956,207 |
| 2014 | $796,001 | $168,700 | $0 | $964,701 | $964,701 |
| 2013 | $131,334 | $192,800 | $0 | $324,134 | $324,134 |
| 2012 | $0 | $237,000 | $0 | $237,000 | $237,000 |
| 2011 | $0 | $237,000 | $0 | $237,000 | $237,000 |
| 2010 | $0 | $237,000 | $0 | $237,000 | $237,000 |
| 2009 | $0 | $284,200 | $0 | $284,200 | $284,200 |
| 2008 | $0 | $298,660 | $0 | $298,660 | $298,660 |
| 2007 | $0 | $298,660 | $0 | $298,660 | $298,660 |
Deed and Sales History
| 1 | 04/25/2011 | QCD | Quit Claim Deed | VANDER POL, DARYL | VANDER POL, DARYL | | | $0.00 | 4546 | 4295857 |
| 2 | 01/12/2011 | WD | Warranty Deed | USIBELLI TTEE, JOSEPH EMIL | VANDER POL, DARYL | | | $269,000.00 | 3432 | 4289300 |
| 3 | 07/18/2008 | WD | Warranty Deed | NICHOLS, MATTHEW J | USIBELLI TTEE, JOSEPH EMIL | | | $599,000.00 | 81912 | 4233346 |
| 4 | 01/27/2005 | WD | Warranty Deed | GABELEIN, VERLANE | NICHOLS, MATTHEW J | | | $300,000.00 | 50576 | 4125838 |
| 5 | 01/01/1900 | OTHER | Other - Misc. Documents | Unknown | GABELEIN, VERLANE | | | $0.00 | 0 | 0 |
Payout Agreement
| No payout information available.. |