Property
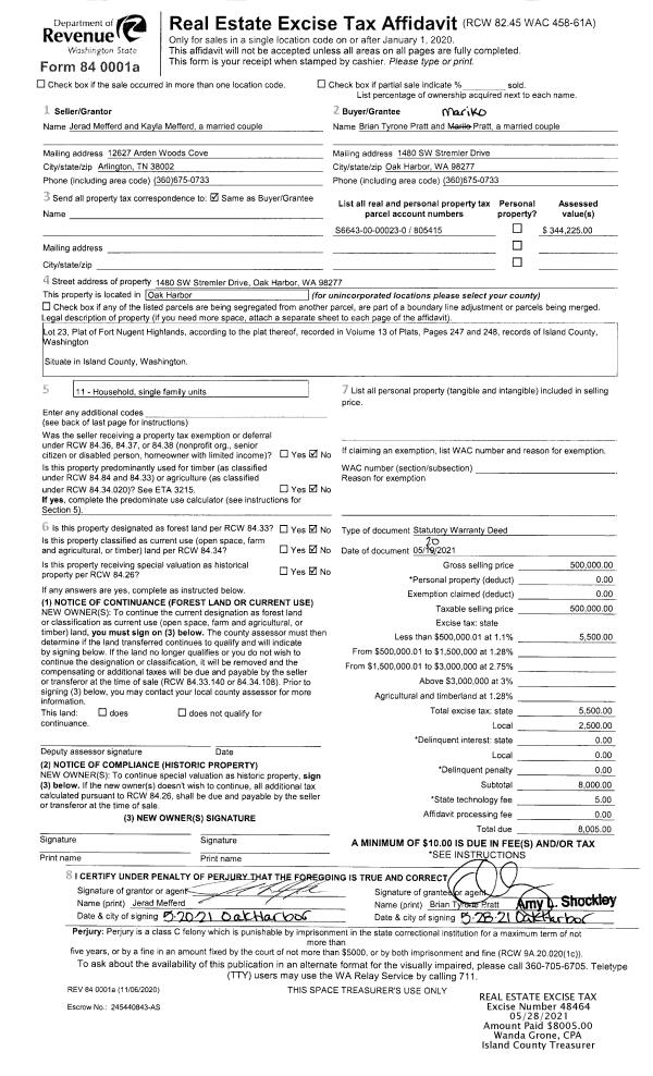
Account |
| Property ID: | 806736 | Abbreviated Legal Description: | LOT 2 SP 300-04.32920.018-0670 V4 SP P121 AF# 4147671 ALTERATION (MISC# 80803) V4 SP P239 AF#4200280 |
| Geographic ID: | R32920-005-0680 | Agent Code: | |
| Type: | Real | | |
| Tax Area: | 712 - APPRAISER-S Whid Schl Dist, outside Langley, improved, greater than 1 acre | Land Use Code | 11 |
| Open Space: | N | DFL | N |
| Historic Property: | N | Remodel Property: | N |
| Multi-Family Redevelopment: | N | | |
| Township: | 29 | Section: | 20 |
| Range: | R3 |
Location |
| Address: | | Mapsco: | |
| Neighborhood: | Cycle 4 | Map ID: | 791 |
| Neighborhood CD: | 4 |
Owner |
| Name: | TANNER, TRUDIE A | Owner ID: | 192833 |
| Mailing Address: | PO BOX1329 FREELAND, WA 98249 | % Ownership: | 100.0000000000% |
| | | Exemptions: | |
Taxes and Assessment Details
Values
| (+) Improvement Homesite Value: | + | $0 | |
| (+) Improvement Non-Homesite Value: | + | $50,000 | |
| (+) Land Homesite Value: | + | $0 | |
| (+) Land Non-Homesite Value: | + | $280,000 | |
| (+) Curr Use (HS): | + | $0 | $0 |
| (+) Curr Use (NHS): | + | $0 | $0 |
| | | -------------------------- | |
| (=) Market Value: | = | $330,000 | |
| (–) Productivity Loss: | – | $0 | |
| | | -------------------------- | |
| (=) Subtotal: | = | $330,000 | |
| (+) Senior Appraised Value: | + | $0 | |
| (+) Non-Senior Appraised Value: | + | $330,000 | |
| | | -------------------------- | |
| (=) Total Appraised Value: | = | $330,000 | |
| (–) Senior Exemption Loss: | – | $0 | |
| (–) Exemption Loss: | – | $0 | |
| | | -------------------------- | |
| (=) Taxable Value: | = | $330,000 | |
Taxing Jurisdiction
| Owner: | TANNER, TRUDIE A | | |
| % Ownership: | 100.0000000000% | | |
| Total Value: | $330,000 | | |
| Tax Area: | 712 - APPRAISER-S Whid Schl Dist, outside Langley, improved, greater than 1 acre |
| CF | Conservation Futures | 0.0316035091 | $330,000 | $330,000 | $10.43 | | |
| FIRE3 | Fire & Rescue Dist #3 S Whidbey GEN | 1.2004855531 | $330,000 | $330,000 | $396.16 | | |
| HOBOND | Hospital BOND | 0.1910887512 | $330,000 | $330,000 | $63.06 | | |
| HOGEN | Hospital GEN | 0.3902502903 | $330,000 | $330,000 | $128.78 | | |
| CE | County Current Expense | 0.3708482477 | $330,000 | $330,000 | $122.38 | | |
| CR | County Roads | 0.4584763726 | $330,000 | $330,000 | $151.30 | | |
| ISLANDEMS | Hospital GEN (EMS) | 0.5000000000 | $330,000 | $330,000 | $165.00 | | |
| LIB | Library Sno-Isle GEN | 0.3153421757 | $330,000 | $330,000 | $104.06 | | |
| PORTWHID | Port of S Whidbey GEN | 0.1094540357 | $330,000 | $330,000 | $36.12 | | |
| SCH206BOND | School 206 BOND | 0.3161759235 | $330,000 | $330,000 | $104.34 | | |
| SCH206MO | School 206 Enrichment | 0.4547169547 | $330,000 | $330,000 | $150.06 | | |
| ST | State School | 1.3035497053 | $330,000 | $330,000 | $430.17 | | |
| ST2 | State School Part 2 | 0.8169543533 | $330,000 | $330,000 | $269.59 | | |
| SWHIDPRBD | P & R S Whidbey BOND | 0.0152817568 | $330,000 | $330,000 | $5.04 | | |
| SWHIDPRBD2 | P & R S Whidbey BOND2 | 0.0138911264 | $330,000 | $330,000 | $4.58 | | |
| SWHIDPRMT | P & R S Whidbey GEN | 0.2053334452 | $330,000 | $330,000 | $67.76 | | |
| | Total Tax Rate: | 6.6934522006 | | | | | |
| | | | | Taxes w/Current Exemptions: | $2,208.83 | | |
| | | | | Taxes w/o Exemptions: | $2,208.83 | | |
Improvement / Building
| Improvement #1: | MISC | State Code: | Y | 896.0 sqft | Value: | $50,000 |
| | Type | Description | Class CD | Sub Class CD | Year Built | Area |
| | DGR | DETACHED GARAGE | 3 | 0 | 2010 | 1344.1 |
| | LOF | LOFT | 3 | 0 | 2010 | 896.0 |
| | CPD | OPEN CARPORT DIRT FLOOR | 3 | 0 | 2010 | 336.0 |
Sketch
Property Image
Land
| 1 | 32 | AC (03.01-09.99) | 4.9400 | 0.00 | 0.00 | 0.00 | 1.00 | $280,000 | $0 |
Roll Value History
| 2026 | N/A | N/A | N/A | N/A | N/A |
| 2025 | $50,000 | $280,000 | $0 | $330,000 | $330,000 |
| 2024 | $50,000 | $280,000 | $0 | $330,000 | $330,000 |
| 2023 | $50,000 | $240,000 | $0 | $290,000 | $290,000 |
| 2022 | $50,000 | $230,000 | $0 | $280,000 | $280,000 |
| 2021 | $50,000 | $170,000 | $0 | $220,000 | $220,000 |
| 2020 | $50,000 | $170,000 | $0 | $220,000 | $220,000 |
| 2019 | $50,400 | $170,000 | $0 | $220,400 | $220,400 |
| 2018 | $50,400 | $160,000 | $0 | $210,400 | $210,400 |
| 2017 | $50,400 | $160,000 | $0 | $210,400 | $210,400 |
| 2016 | $50,400 | $130,000 | $0 | $180,400 | $180,400 |
| 2015 | $50,400 | $130,000 | $0 | $180,400 | $180,400 |
| 2014 | $53,115 | $148,200 | $0 | $201,315 | $201,315 |
| 2013 | $53,115 | $133,380 | $0 | $186,495 | $186,495 |
| 2012 | $53,115 | $133,380 | $0 | $186,495 | $186,495 |
| 2011 | $53,115 | $133,380 | $0 | $186,495 | $186,495 |
| 2010 | $54,165 | $133,380 | $0 | $187,545 | $187,545 |
| 2009 | $0 | $167,960 | $0 | $167,960 | $167,960 |
| 2008 | $0 | $166,600 | $0 | $166,600 | $166,600 |
| 2007 | $0 | $0 | $0 | $125,000 | $125,000 |
Deed and Sales History
| 1 | 12/04/2006 | ESTSEPPROP | Establish Separate Property | TANNER, TRUDIE A | TANNER, TRUDIE A | | | $0.00 | 65091 | 4188579 |
| 2 | 12/04/2006 | WD | Warranty Deed | KING, ROBERT E | TANNER, TRUDIE A | | | $260,000.00 | 65084 | 4188578 |
| 3 | 01/01/1900 | OTHER | Other - Misc. Documents | Unknown | KING, ROBERT E | | | $0.00 | 0 | 0 |
Payout Agreement
| No payout information available.. |