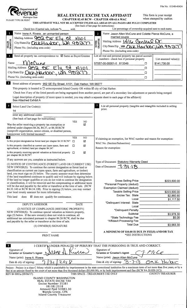
Property
Account |
| Property ID: | 806812 | Abbreviated Legal Description: | SCENIC TERRACE CONDO UNIT I-3 3.05% INT |
| Geographic ID: | S8117-00-0000I-3 | Agent Code: | |
| Type: | Real | | |
| Tax Area: | 100 - APPRAISER-OH Schl Dist, in OH | Land Use Code | 14 |
| Open Space: | N | DFL | N |
| Historic Property: | N | Remodel Property: | N |
| Multi-Family Redevelopment: | N | | |
| Township: | | Section: | |
| Range: | |
Location |
| Address: | 1890 SW SCENIC HEIGHTS ST UNIT I3 OAK HARBOR, WA 98277 | Mapsco: | |
| Neighborhood: | 3A*OH-scenic terr | Map ID: | 91 |
| Neighborhood CD: | 3A*OHscntr |
Owner |
| Name: | DEPPE, KAYLIN | Owner ID: | 286501 |
| Mailing Address: | 1890 SW SCENIC HEIGHTS ST #I3 OAK HARBOR, WA 98277 | % Ownership: | 100.0000000000% |
| | | Exemptions: | |
Taxes and Assessment Details
Values
| (+) Improvement Homesite Value: | + | $0 | |
| (+) Improvement Non-Homesite Value: | + | $230,608 | |
| (+) Land Homesite Value: | + | $0 | |
| (+) Land Non-Homesite Value: | + | $160,000 | |
| (+) Curr Use (HS): | + | $0 | $0 |
| (+) Curr Use (NHS): | + | $0 | $0 |
| | | -------------------------- | |
| (=) Market Value: | = | $390,608 | |
| (–) Productivity Loss: | – | $0 | |
| | | -------------------------- | |
| (=) Subtotal: | = | $390,608 | |
| (+) Senior Appraised Value: | + | $0 | |
| (+) Non-Senior Appraised Value: | + | $390,608 | |
| | | -------------------------- | |
| (=) Total Appraised Value: | = | $390,608 | |
| (–) Senior Exemption Loss: | – | $0 | |
| (–) Exemption Loss: | – | $0 | |
| | | -------------------------- | |
| (=) Taxable Value: | = | $390,608 | |
Taxing Jurisdiction
| Owner: | DEPPE, KAYLIN | | |
| % Ownership: | 100.0000000000% | | |
| Total Value: | $390,608 | | |
| Tax Area: | 100 - APPRAISER-OH Schl Dist, in OH |
| CF | Conservation Futures | 0.0316035091 | $390,608 | $390,608 | $12.34 | | |
| CEM1 | Cemetery #1 | 0.0040320932 | $390,608 | $390,608 | $1.57 | | |
| COH | City of Oak Harbor | 2.3001546061 | $390,608 | $390,608 | $898.46 | | |
| OAKBOND | City of Oak Harbor BOND | 0.1926904192 | $390,608 | $390,608 | $75.27 | | |
| HOBOND | Hospital BOND | 0.1910887512 | $390,608 | $390,608 | $74.64 | | |
| HOGEN | Hospital GEN | 0.3902502903 | $390,608 | $390,608 | $152.43 | | |
| CE | County Current Expense | 0.3708482477 | $390,608 | $390,608 | $144.86 | | |
| ISLANDEMS | Hospital GEN (EMS) | 0.5000000000 | $390,608 | $390,608 | $195.30 | | |
| LIB | Library Sno-Isle GEN | 0.3153421757 | $390,608 | $390,608 | $123.18 | | |
| NWHIDPRMT | P & R N Whidbey GEN | 0.2004466701 | $390,608 | $390,608 | $78.30 | | |
| SCH201MO | School 201 Enrichment | 1.8559231640 | $390,608 | $390,608 | $724.94 | | |
| ST | State School | 1.3035497053 | $390,608 | $390,608 | $509.18 | | |
| ST2 | State School Part 2 | 0.8169543533 | $390,608 | $390,608 | $319.11 | | |
| | Total Tax Rate: | 8.4728839852 | | | | | |
| | | | | Taxes w/Current Exemptions: | $3,309.58 | | |
| | | | | Taxes w/o Exemptions: | $3,309.58 | | |
Improvement / Building
| Improvement #1: | RESIDENTIAL | State Code: | A1 | 1532.3 sqft | Value: | $230,608 |
| Bathrooms: | 2.5 | Bedrooms: | 3 | | Ceiling: | DRYWALL PAINTED | Exterior Wall/Cover: | CEMENT FIBER | | Floor Covering: | CARPET/VINYL 80-20 | Floor Structure: | SLAB ABOVE GRADE | | Foundation: | CONCRETE | Heating: | FHA GAS | | Interior Finish: | DRYWALL PAINT | Plumbing Fixture Cnt: | 11 | | Roof Slope: | 4" IN 12" | Roof Structure/Cover: | CJ ASPHALT |
|
| | Type | Description | Class CD | Sub Class CD | Year Built | Area |
| | BAS | BASE/MAIN FLOOR | 3 | 0 | 2005 | 412.9 |
| | OP1 | OPEN PORCH SLAB | 3 | 0 | 2005 | 96.2 |
| | OP1 | OPEN PORCH SLAB | 3 | 0 | 2005 | 96.4 |
| | BIG | BUILT IN GARAGE | 3 | 0 | 2005 | 252.5 |
| | UPS | UPPER STORY | 3 | 0 | 2005 | 707.1 |
| | OWP | OPEN WOOD PORCH W/STEPS | 3 | 0 | 2005 | 112.2 |
| | OWC | OPEN WOOD PORCH W/STEPS/ROOF/C | 3 | 0 | 2005 | 112.2 |
| | DWN | DOWNSTAIRS LIVING AREA | 3 | 0 | 2005 | 412.3 |
| | COMA | Common Area Improvement | 3 | 0 | 2005 | 0.0 |
Sketch
Property Image
Land
| 1 | 61 | MULTIPLE RESIDENCES | 0.0000 | 1624.00 | 0.00 | 0.00 | 1.00 | $160,000 | $0 |
Roll Value History
| 2026 | N/A | N/A | N/A | N/A | N/A |
| 2025 | $230,608 | $160,000 | $0 | $390,608 | $390,608 |
| 2024 | $233,478 | $140,000 | $0 | $373,478 | $373,478 |
| 2023 | $236,351 | $140,000 | $0 | $376,351 | $376,351 |
| 2022 | $216,634 | $140,000 | $0 | $356,634 | $356,634 |
| 2021 | $190,672 | $120,000 | $0 | $310,672 | $310,672 |
| 2020 | $185,510 | $80,000 | $0 | $265,510 | $265,510 |
| 2019 | $156,664 | $95,000 | $0 | $251,664 | $251,664 |
| 2018 | $157,102 | $65,000 | $0 | $222,102 | $222,102 |
| 2017 | $157,978 | $24,000 | $0 | $181,978 | $181,978 |
| 2016 | $159,726 | $24,000 | $0 | $183,726 | $183,726 |
| 2015 | $134,029 | $24,000 | $0 | $158,029 | $158,029 |
| 2014 | $135,481 | $24,000 | $0 | $159,481 | $159,481 |
| 2013 | $136,935 | $25,984 | $0 | $162,919 | $162,919 |
| 2012 | $168,484 | $25,984 | $0 | $194,468 | $194,468 |
| 2011 | $168,484 | $25,984 | $0 | $194,468 | $194,468 |
| 2010 | $171,069 | $34,937 | $0 | $206,006 | $206,006 |
| 2009 | $176,425 | $55,963 | $0 | $232,388 | $232,388 |
| 2008 | $178,387 | $55,963 | $0 | $234,350 | $234,350 |
| 2007 | $188,528 | $55,963 | $0 | $244,491 | $244,491 |
Deed and Sales History
| 1 | 08/13/2018 | WD | Warranty Deed | DIEZ JR, LUIS FELIPE | DEPPE, KAYLIN | | | $264,000.00 | 35500 | 4450045 |
| 2 | 06/01/2009 | TRUSTEED | Trustee's Deed | HSBC BANK USA NA TTEE, | DIEZ JR, LUIS FELIPE | | | $195,000.00 | 91216 | 4252890 |
| 3 | 01/27/2009 | TRUSTEED | Trustee's Deed | RUIZ, DANIEL L | HSBC BANK USA NA TTEE, | | | $219,845.00 | 90191 | 4243601 |
| 4 | 08/31/2005 | WD | Warranty Deed | TERRACE LLC, SCENIC | RUIZ, DANIEL L | | | $250,000.00 | 54373 | 4146292 |
| 5 | 01/01/1900 | OTHER | Other - Misc. Documents | Unknown | TERRACE LLC, SCENIC | | | $0.00 | 0 | 0 |
Payout Agreement
| No payout information available.. |