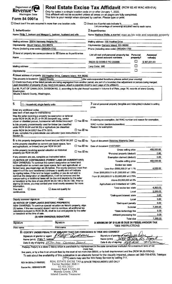
Property
Account |
| Property ID: | 806833 | Abbreviated Legal Description: | OAK TOWN COTTAGES CONDO BLDG A 16.667% |
| Geographic ID: | S7594-00-0000A-0 | Agent Code: | |
| Type: | Real | | |
| Tax Area: | 100 - APPRAISER-OH Schl Dist, in OH | Land Use Code | 14 |
| Open Space: | N | DFL | N |
| Historic Property: | N | Remodel Property: | N |
| Multi-Family Redevelopment: | N | | |
| Township: | | Section: | |
| Range: | |
Location |
| Address: | 475 SE BARRINGTON DR UNIT A OAK HARBOR, WA 98277 | Mapsco: | |
| Neighborhood: | 12*OH-oak town | Map ID: | 86 |
| Neighborhood CD: | 12*OHoktwn |
Owner |
| Name: | MARROW, JAMES P | Owner ID: | 296654 |
| Mailing Address: | PO BOX 2926 OAK HARBOR, WA 98277 | % Ownership: | 100.0000000000% |
| | | Exemptions: | |
Taxes and Assessment Details
Values
| (+) Improvement Homesite Value: | + | $0 | |
| (+) Improvement Non-Homesite Value: | + | $100,244 | |
| (+) Land Homesite Value: | + | $0 | |
| (+) Land Non-Homesite Value: | + | $70,000 | |
| (+) Curr Use (HS): | + | $0 | $0 |
| (+) Curr Use (NHS): | + | $0 | $0 |
| | | -------------------------- | |
| (=) Market Value: | = | $170,244 | |
| (–) Productivity Loss: | – | $0 | |
| | | -------------------------- | |
| (=) Subtotal: | = | $170,244 | |
| (+) Senior Appraised Value: | + | $0 | |
| (+) Non-Senior Appraised Value: | + | $170,244 | |
| | | -------------------------- | |
| (=) Total Appraised Value: | = | $170,244 | |
| (–) Senior Exemption Loss: | – | $0 | |
| (–) Exemption Loss: | – | $0 | |
| | | -------------------------- | |
| (=) Taxable Value: | = | $170,244 | |
Taxing Jurisdiction
| Owner: | MARROW, JAMES P | | |
| % Ownership: | 100.0000000000% | | |
| Total Value: | $170,244 | | |
| Tax Area: | 100 - APPRAISER-OH Schl Dist, in OH |
| CF | Conservation Futures | 0.0316035091 | $170,244 | $170,244 | $5.38 | | |
| CEM1 | Cemetery #1 | 0.0040320932 | $170,244 | $170,244 | $0.69 | | |
| COH | City of Oak Harbor | 2.3001546061 | $170,244 | $170,244 | $391.59 | | |
| OAKBOND | City of Oak Harbor BOND | 0.1926904192 | $170,244 | $170,244 | $32.80 | | |
| HOBOND | Hospital BOND | 0.1910887512 | $170,244 | $170,244 | $32.53 | | |
| HOGEN | Hospital GEN | 0.3902502903 | $170,244 | $170,244 | $66.44 | | |
| CE | County Current Expense | 0.3708482477 | $170,244 | $170,244 | $63.13 | | |
| ISLANDEMS | Hospital GEN (EMS) | 0.5000000000 | $170,244 | $170,244 | $85.12 | | |
| LIB | Library Sno-Isle GEN | 0.3153421757 | $170,244 | $170,244 | $53.69 | | |
| NWHIDPRMT | P & R N Whidbey GEN | 0.2004466701 | $170,244 | $170,244 | $34.12 | | |
| SCH201MO | School 201 Enrichment | 1.8559231640 | $170,244 | $170,244 | $315.96 | | |
| ST | State School | 1.3035497053 | $170,244 | $170,244 | $221.92 | | |
| ST2 | State School Part 2 | 0.8169543533 | $170,244 | $170,244 | $139.08 | | |
| | Total Tax Rate: | 8.4728839852 | | | | | |
| | | | | Taxes w/Current Exemptions: | $1,442.45 | | |
| | | | | Taxes w/o Exemptions: | $1,442.45 | | |
Improvement / Building
| Improvement #1: | MISC | State Code: | Y | 616.0 sqft | Value: | $100,244 |
| Bathrooms: | 1 | Bedrooms: | 1 | | Ceiling: | DRYWALL PAINTED | Exterior Wall/Cover: | WD/WD OR STEEL STUDS | | Floor Covering: | CARPET 100% | Floor Structure: | WOOD ON WOOD JOIST | | Foundation: | CONCRETE | Heating: | WALL HEAT ELECTRIC | | Interior Finish: | DRYWALL PAINT | Plumbing Fixture Cnt: | 5 | | Roof Slope: | 6" IN 12" | Roof Structure/Cover: | CJ ALUMINIUM HEAVY |
|
| | Type | Description | Class CD | Sub Class CD | Year Built | Area |
| | BAS | BASE/MAIN FLOOR | 3 | 0 | 1997 | 616.0 |
| | OP3 | OPEN PORCH W/ROOF | 3 | 0 | 1997 | 32.0 |
| | OP1 | OPEN PORCH SLAB | 3 | 0 | 1997 | 480.1 |
| | oPV1 | PV/ASPH 2" | 3 | 0 | 1997 | 726.0 |
Sketch
Property Image
Land
| 1 | 64 | PERSONAL BUSINESS | 0.0800 | 3484.80 | 0.00 | 0.00 | 1.00 | $70,000 | $0 |
Roll Value History
| 2026 | N/A | N/A | N/A | N/A | N/A |
| 2025 | $100,244 | $70,000 | $0 | $170,244 | $170,244 |
| 2024 | $101,409 | $50,000 | $0 | $151,409 | $151,409 |
| 2023 | $92,955 | $50,000 | $0 | $142,955 | $142,955 |
| 2022 | $85,224 | $50,000 | $0 | $135,224 | $135,224 |
| 2021 | $75,045 | $45,000 | $0 | $120,045 | $120,045 |
| 2020 | $72,672 | $45,000 | $0 | $117,672 | $117,672 |
| 2019 | $49,859 | $65,000 | $0 | $114,859 | $114,859 |
| 2018 | $50,001 | $65,000 | $0 | $115,001 | $115,001 |
| 2017 | $59,518 | $76,603 | $0 | $136,121 | $136,121 |
| 2016 | $59,518 | $76,603 | $0 | $136,121 | $136,121 |
| 2015 | $59,518 | $76,603 | $0 | $136,121 | $136,121 |
| 2014 | $59,518 | $76,603 | $0 | $136,121 | $136,121 |
| 2013 | $59,518 | $76,603 | $0 | $136,121 | $136,121 |
| 2012 | $59,518 | $76,603 | $0 | $136,121 | $136,121 |
| 2011 | $59,518 | $76,603 | $0 | $136,121 | $136,121 |
| 2010 | $70,603 | $76,603 | $0 | $147,206 | $147,206 |
| 2009 | $71,632 | $122,427 | $0 | $194,059 | $194,059 |
| 2008 | $73,373 | $122,427 | $0 | $195,800 | $195,800 |
| 2007 | $74,394 | $122,427 | $0 | $196,821 | $196,821 |
Deed and Sales History
| 1 | 11/05/2020 | WD | Warranty Deed | COUG HOLDINGS LLC | MARROW, JAMES P | | | $126,000.00 | 45609 | 4501880 |
| 2 | 04/14/2006 | WD | Warranty Deed | ANDERSON, CHRISTIAN A / LISA | COUG HOLDINGS LLC, | | | $185,000.00 | 61700 | 4168113 |
| 3 | 01/01/1900 | OTHER | Other - Misc. Documents | Unknown | ANDERSON, CHRISTIAN A / LISA | | | $0.00 | 0 | 0 |
Payout Agreement
| No payout information available.. |