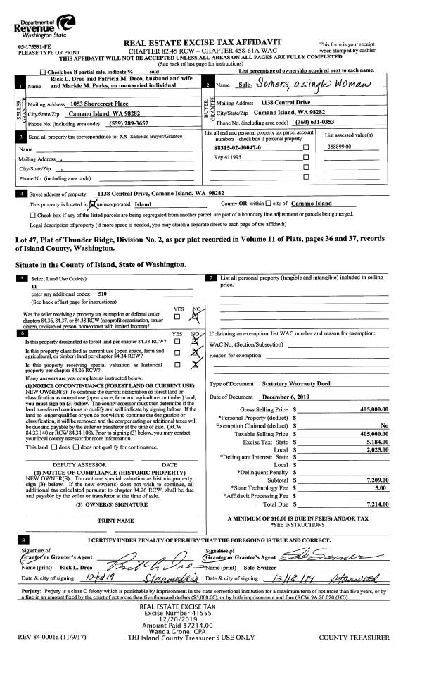
Property
Account |
| Property ID: | 806839 | Abbreviated Legal Description: | S100' OF N500' OF GL1 EX E HARBOR RD INCL ADJ TIDES TGW S50' OF N400' OF GL1 EX E HARBOR RD |
| Geographic ID: | R22902-486-4690 | Agent Code: | |
| Type: | Real | | |
| Tax Area: | 712 - APPRAISER-S Whid Schl Dist, outside Langley, improved, greater than 1 acre | Land Use Code | 11 |
| Open Space: | N | DFL | N |
| Historic Property: | N | Remodel Property: | N |
| Multi-Family Redevelopment: | N | | |
| Township: | 29 | Section: | 02 |
| Range: | R2 |
Location |
| Address: | 4832 EAST HARBOR RD FREELAND, WA 98249 | Mapsco: | |
| Neighborhood: | Cycle 3 | Map ID: | 286 |
| Neighborhood CD: | 3 |
Owner |
| Name: | COFER, RON | Owner ID: | 299027 |
| Mailing Address: | 814 W 16TH ST COSTA MESA, CA 92627 | % Ownership: | 100.0000000000% |
| | | Exemptions: | |
Taxes and Assessment Details
Values
| (+) Improvement Homesite Value: | + | $0 | |
| (+) Improvement Non-Homesite Value: | + | $353,715 | |
| (+) Land Homesite Value: | + | $0 | |
| (+) Land Non-Homesite Value: | + | $651,000 | |
| (+) Curr Use (HS): | + | $0 | $0 |
| (+) Curr Use (NHS): | + | $0 | $0 |
| | | -------------------------- | |
| (=) Market Value: | = | $1,004,715 | |
| (–) Productivity Loss: | – | $0 | |
| | | -------------------------- | |
| (=) Subtotal: | = | $1,004,715 | |
| (+) Senior Appraised Value: | + | $0 | |
| (+) Non-Senior Appraised Value: | + | $1,004,715 | |
| | | -------------------------- | |
| (=) Total Appraised Value: | = | $1,004,715 | |
| (–) Senior Exemption Loss: | – | $0 | |
| (–) Exemption Loss: | – | $0 | |
| | | -------------------------- | |
| (=) Taxable Value: | = | $1,004,715 | |
Taxing Jurisdiction
| Owner: | COFER, RON | | |
| % Ownership: | 100.0000000000% | | |
| Total Value: | $1,004,715 | | |
| Tax Area: | 712 - APPRAISER-S Whid Schl Dist, outside Langley, improved, greater than 1 acre |
| CF | Conservation Futures | 0.0316035091 | $1,004,715 | $1,004,715 | $31.75 | | |
| FIRE3 | Fire & Rescue Dist #3 S Whidbey GEN | 1.2004855531 | $1,004,715 | $1,004,715 | $1,206.15 | | |
| HOBOND | Hospital BOND | 0.1910887512 | $1,004,715 | $1,004,715 | $191.99 | | |
| HOGEN | Hospital GEN | 0.3902502903 | $1,004,715 | $1,004,715 | $392.09 | | |
| CE | County Current Expense | 0.3708482477 | $1,004,715 | $1,004,715 | $372.60 | | |
| CR | County Roads | 0.4584763726 | $1,004,715 | $1,004,715 | $460.64 | | |
| ISLANDEMS | Hospital GEN (EMS) | 0.5000000000 | $1,004,715 | $1,004,715 | $502.36 | | |
| LIB | Library Sno-Isle GEN | 0.3153421757 | $1,004,715 | $1,004,715 | $316.83 | | |
| PORTWHID | Port of S Whidbey GEN | 0.1094540357 | $1,004,715 | $1,004,715 | $109.97 | | |
| SCH206BOND | School 206 BOND | 0.3161759235 | $1,004,715 | $1,004,715 | $317.67 | | |
| SCH206MO | School 206 Enrichment | 0.4547169547 | $1,004,715 | $1,004,715 | $456.86 | | |
| ST | State School | 1.3035497053 | $1,004,715 | $1,004,715 | $1,309.70 | | |
| ST2 | State School Part 2 | 0.8169543533 | $1,004,715 | $1,004,715 | $820.81 | | |
| SWHIDPRBD | P & R S Whidbey BOND | 0.0152817568 | $1,004,715 | $1,004,715 | $15.35 | | |
| SWHIDPRBD2 | P & R S Whidbey BOND2 | 0.0138911264 | $1,004,715 | $1,004,715 | $13.96 | | |
| SWHIDPRMT | P & R S Whidbey GEN | 0.2053334452 | $1,004,715 | $1,004,715 | $206.30 | | |
| | Total Tax Rate: | 6.6934522006 | | | | | |
| | | | | Taxes w/Current Exemptions: | $6,725.03 | | |
| | | | | Taxes w/o Exemptions: | $6,725.03 | | |
Improvement / Building
| Improvement #1: | RESIDENTIAL | State Code: | Y | 3019.5 sqft | Value: | $353,715 |
| Bathrooms: | 2 | Bedrooms: | 3 | | Ceiling: | DRYWALL PAINTED | Exterior Wall/Cover: | WOOD SIDING | | Floor Covering: | CARPET/VINYL 80-20 | Floor Structure: | WOOD W/SUBFLOOR | | Foundation: | CONCRETE | Heating: | BASEBOARD ELECTRIC | | Interior Finish: | DRYWALL PAINT | Plumbing Fixture Cnt: | 9 | | Roof Slope: | 5" IN 12" | Roof Structure/Cover: | CJ ASPHALT |
|
| | Type | Description | Class CD | Sub Class CD | Year Built | Area |
| | BAS | BASE/MAIN FLOOR | 3 | 0 | 1959 | 3019.5 |
| | OP4 | OPEN PORCH W/CEILING-ROOF | 3 | 0 | 1959 | 50.4 |
| | AGR | ATTACHED GARAGE | 3 | 0 | 1959 | 832.5 |
| | OP4 | OPEN PORCH W/CEILING-ROOF | 3 | 0 | 1959 | 182.0 |
Sketch
Property Image
Land
| 1 | HB | HIGH BLUFF | 0.0000 | 0.00 | 150.00 | 0.00 | 1.00 | $650,000 | $0 |
| 2 | 55 | TIDES | 0.0000 | 0.00 | 0.00 | 0.00 | 1.00 | $1,000 | $0 |
Roll Value History
| 2026 | N/A | N/A | N/A | N/A | N/A |
| 2025 | $353,715 | $651,000 | $0 | $1,004,715 | $1,004,715 |
| 2024 | $366,899 | $651,000 | $0 | $1,017,899 | $1,017,899 |
| 2023 | $371,978 | $651,000 | $0 | $1,022,978 | $1,022,978 |
| 2022 | $341,428 | $626,000 | $0 | $967,428 | $967,428 |
| 2021 | $300,889 | $351,000 | $0 | $651,889 | $651,889 |
| 2020 | $294,699 | $351,000 | $0 | $645,699 | $645,699 |
| 2019 | $223,586 | $351,000 | $0 | $574,586 | $574,586 |
| 2018 | $224,361 | $351,000 | $0 | $575,361 | $575,361 |
| 2017 | $225,857 | $351,000 | $0 | $576,857 | $576,857 |
| 2016 | $228,950 | $351,000 | $0 | $579,950 | $579,950 |
| 2015 | $232,044 | $351,000 | $0 | $583,044 | $583,044 |
| 2014 | $235,138 | $351,000 | $0 | $586,138 | $586,138 |
| 2013 | $222,008 | $332,528 | $0 | $554,536 | $554,536 |
| 2012 | $224,955 | $332,528 | $0 | $557,483 | $557,483 |
| 2011 | $227,902 | $332,528 | $0 | $560,430 | $560,430 |
| 2010 | $234,221 | $332,528 | $0 | $566,749 | $566,749 |
| 2009 | $244,274 | $474,611 | $0 | $718,885 | $718,885 |
| 2008 | $247,795 | $548,284 | $0 | $796,079 | $796,079 |
| 2007 | $211,579 | $430,584 | $0 | $642,163 | $642,163 |
Deed and Sales History
| 1 | 04/13/2021 | QCD | Quit Claim Deed | COFER, RON | COFER, RON | | | $200,000.00 | 47929 | 4517314 |
| 2 | 10/11/2006 | BLA | DNU - Boundary Line Adjustment | Unknown | COFER, RON | | | $0.00 | 80036 | 4122368 |
Payout Agreement
| No payout information available.. |