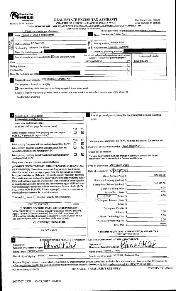
Property
Account |
| Property ID: | 806854 | Abbreviated Legal Description: | NW SW SW |
| Geographic ID: | R32909-114-0300 | Agent Code: | |
| Type: | Real | | |
| Tax Area: | 719 - APPRAISER-S Whid Schl Dist, outside Langley, vacant & 50 acres or less | Land Use Code | 88 |
| Open Space: | N | DFL | Y |
| Historic Property: | N | Remodel Property: | N |
| Multi-Family Redevelopment: | N | | |
| Township: | 29 | Section: | 09 |
| Range: | R3 |
Location |
| Address: | | Mapsco: | |
| Neighborhood: | Cycle 4 | Map ID: | 750 |
| Neighborhood CD: | 4 |
Owner |
| Name: | HANSON, VICTOR E | Owner ID: | 279339 |
| Mailing Address: | VERLANE GABELEIN 2863 EAST VERLANE ST LANGLEY, WA 98260 | % Ownership: | 100.0000000000% |
| | | Exemptions: | |
Taxes and Assessment Details
Values
| (+) Improvement Homesite Value: | + | $0 | |
| (+) Improvement Non-Homesite Value: | + | $0 | |
| (+) Land Homesite Value: | + | $0 | |
| (+) Land Non-Homesite Value: | + | $0 | |
| (+) Curr Use (HS): | + | $0 | $0 |
| (+) Curr Use (NHS): | + | $330,000 | $1,930 |
| | | -------------------------- | |
| (=) Market Value: | = | $330,000 | |
| (–) Productivity Loss: | – | $328,070 | |
| | | -------------------------- | |
| (=) Subtotal: | = | $1,930 | |
| (+) Senior Appraised Value: | + | $0 | |
| (+) Non-Senior Appraised Value: | + | $1,930 | |
| | | -------------------------- | |
| (=) Total Appraised Value: | = | $1,930 | |
| (–) Senior Exemption Loss: | – | $0 | |
| (–) Exemption Loss: | – | $0 | |
| | | -------------------------- | |
| (=) Taxable Value: | = | $1,930 | |
Taxing Jurisdiction
| Owner: | HANSON, VICTOR E | | |
| % Ownership: | 100.0000000000% | | |
| Total Value: | $330,000 | | |
| Tax Area: | 719 - APPRAISER-S Whid Schl Dist, outside Langley, vacant & 50 acres or less |
| CF | Conservation Futures | 0.0316035091 | $1,930 | $1,930 | $0.06 | | |
| HOBOND | Hospital BOND | 0.1910887512 | $1,930 | $1,930 | $0.37 | | |
| HOGEN | Hospital GEN | 0.3902502903 | $1,930 | $1,930 | $0.75 | | |
| CE | County Current Expense | 0.3708482477 | $1,930 | $1,930 | $0.72 | | |
| CR | County Roads | 0.4584763726 | $1,930 | $1,930 | $0.88 | | |
| ISLANDEMS | Hospital GEN (EMS) | 0.5000000000 | $1,930 | $1,930 | $0.97 | | |
| LIB | Library Sno-Isle GEN | 0.3153421757 | $1,930 | $1,930 | $0.61 | | |
| PORTWHID | Port of S Whidbey GEN | 0.1094540357 | $1,930 | $1,930 | $0.21 | | |
| SCH206BOND | School 206 BOND | 0.3161759235 | $1,930 | $1,930 | $0.61 | | |
| SCH206MO | School 206 Enrichment | 0.4547169547 | $1,930 | $1,930 | $0.88 | | |
| ST | State School | 1.3035497053 | $1,930 | $1,930 | $2.52 | | |
| ST2 | State School Part 2 | 0.8169543533 | $1,930 | $1,930 | $1.58 | | |
| SWHIDPRBD | P & R S Whidbey BOND | 0.0152817568 | $1,930 | $1,930 | $0.03 | | |
| SWHIDPRBD2 | P & R S Whidbey BOND2 | 0.0138911264 | $1,930 | $1,930 | $0.03 | | |
| SWHIDPRMT | P & R S Whidbey GEN | 0.2053334452 | $1,930 | $1,930 | $0.40 | | |
| | Total Tax Rate: | 5.4929666475 | | | | | |
| | | | | Taxes w/Current Exemptions: | $10.62 | | |
| | | | | Taxes w/o Exemptions: | $10.62 | | |
Improvement / Building
Sketch
| No sketches available for this property. |
Property Image
Land
| 1 | 35 | AC (10.00-30.99) | 10.0000 | 0.00 | 0.00 | 0.00 | 1.00 | $330,000 | $1,930 |
Roll Value History
| 2026 | N/A | N/A | N/A | N/A | N/A |
| 2025 | $0 | $330,000 | $1,930 | $1,930 | $1,930 |
| 2024 | $0 | $320,000 | $1,940 | $1,940 | $1,940 |
| 2023 | $0 | $280,000 | $1,860 | $1,860 | $1,860 |
| 2022 | $0 | $250,000 | $1,860 | $1,860 | $1,860 |
| 2021 | $0 | $190,000 | $1,860 | $1,860 | $1,860 |
| 2020 | $0 | $160,000 | $1,860 | $1,860 | $1,860 |
| 2019 | $0 | $160,000 | $1,800 | $1,800 | $1,800 |
| 2018 | $0 | $150,000 | $1,770 | $1,770 | $1,770 |
| 2017 | $0 | $150,000 | $1,770 | $1,770 | $1,770 |
| 2016 | $0 | $130,000 | $1,010 | $1,010 | $1,010 |
| 2015 | $0 | $130,000 | $1,010 | $1,010 | $1,010 |
| 2014 | $0 | $130,000 | $1,010 | $1,010 | $1,010 |
| 2013 | $0 | $110,500 | $1,010 | $1,010 | $1,010 |
| 2012 | $0 | $110,500 | $1,010 | $1,010 | $1,010 |
| 2011 | $0 | $130,000 | $1,010 | $1,010 | $1,010 |
| 2010 | $0 | $130,000 | $1,010 | $1,010 | $1,010 |
| 2009 | $0 | $200,000 | $1,010 | $1,010 | $1,010 |
Deed and Sales History
| 1 | 04/06/2017 | QCD | Quit Claim Deed | GABELEIN, MARILYN | HANSON, VICTOR E | | | $0.00 | 28791 | 4420316 |
| 2 | 04/07/2017 | WD | Warranty Deed | ANDERSON, LINDA M | HANSON, VICTOR E | | | $130,000.00 | 28789 | 4420315 |
| 3 | 09/11/2009 | PRD | Personal Representatives Deed | ANDERSON, LINDA M | ANDERSON, LINDA M | | | $11,985.00 | 92364 | 4261310 |
| 4 | 04/03/2009 | TRUSTEED | Trustee's Deed | SOUTH WHIDBEY AIRPARK LLC, | ANDERSON, LINDA M | | | $176,043.00 | 90747 | 4248082 |
| 5 | 11/01/2005 | SEG | DNU - Segregation | Unknown | ANDERSON ET AL, MILDRED M | | | $0.00 | 70736 | 0 |
| 6 | 07/29/2005 | WD | Warranty Deed | ANDERSON, LINDA | SOUTH WHIDBEY AIRPARK LLC, | | | $375,000.00 | 53701 | 4142681 |
| 7 | 03/03/2005 | QCD | Quit Claim Deed | ANDERSON, LINDA M | ANDERSON, LINDA | | | $0.00 | 50839 | 4127237 |
| 8 | 10/22/2004 | QCD | Quit Claim Deed | ANDERSON ET AL, MILDRED M | ANDERSON, LINDA M | | | $0.00 | 45430 | 4118459 |
Payout Agreement
| No payout information available.. |