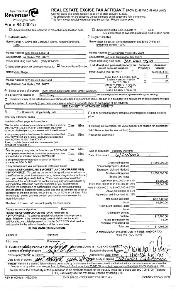
Property
Account |
| Property ID: | 806867 | Abbreviated Legal Description: | LOT 1 SP 315-04.32902.279-5340 V4 SP P118 AF#4146373 |
| Geographic ID: | R32902-279-5220 | Agent Code: | |
| Type: | Real | | |
| Tax Area: | 712 - APPRAISER-S Whid Schl Dist, outside Langley, improved, greater than 1 acre | Land Use Code | 11 |
| Open Space: | N | DFL | N |
| Historic Property: | N | Remodel Property: | N |
| Multi-Family Redevelopment: | N | | |
| Township: | 29 | Section: | 02 |
| Range: | R3 |
Location |
| Address: | 4973 BLUE LADY LN LANGLEY, WA 98260 | Mapsco: | |
| Neighborhood: | Cycle 4 | Map ID: | 722 |
| Neighborhood CD: | 4 |
Owner |
| Name: | LEIBMAN, BARRY H | Owner ID: | 198639 |
| Mailing Address: | CAROLINE H LEIBMAN 329 BELT AVE #601 ST LOUIS, MO 63112 | % Ownership: | 100.0000000000% |
| | | Exemptions: | |
Taxes and Assessment Details
Values
| (+) Improvement Homesite Value: | + | $0 | |
| (+) Improvement Non-Homesite Value: | + | $163,102 | |
| (+) Land Homesite Value: | + | $0 | |
| (+) Land Non-Homesite Value: | + | $290,000 | |
| (+) Curr Use (HS): | + | $0 | $0 |
| (+) Curr Use (NHS): | + | $0 | $0 |
| | | -------------------------- | |
| (=) Market Value: | = | $453,102 | |
| (–) Productivity Loss: | – | $0 | |
| | | -------------------------- | |
| (=) Subtotal: | = | $453,102 | |
| (+) Senior Appraised Value: | + | $0 | |
| (+) Non-Senior Appraised Value: | + | $453,102 | |
| | | -------------------------- | |
| (=) Total Appraised Value: | = | $453,102 | |
| (–) Senior Exemption Loss: | – | $0 | |
| (–) Exemption Loss: | – | $0 | |
| | | -------------------------- | |
| (=) Taxable Value: | = | $453,102 | |
Taxing Jurisdiction
| Owner: | LEIBMAN, BARRY H | | |
| % Ownership: | 100.0000000000% | | |
| Total Value: | $453,102 | | |
| Tax Area: | 712 - APPRAISER-S Whid Schl Dist, outside Langley, improved, greater than 1 acre |
| CF | Conservation Futures | 0.0316035091 | $453,102 | $453,102 | $14.32 | | |
| FIRE3 | Fire & Rescue Dist #3 S Whidbey GEN | 1.2004855531 | $453,102 | $453,102 | $543.94 | | |
| HOBOND | Hospital BOND | 0.1910887512 | $453,102 | $453,102 | $86.58 | | |
| HOGEN | Hospital GEN | 0.3902502903 | $453,102 | $453,102 | $176.82 | | |
| CE | County Current Expense | 0.3708482477 | $453,102 | $453,102 | $168.03 | | |
| CR | County Roads | 0.4584763726 | $453,102 | $453,102 | $207.74 | | |
| ISLANDEMS | Hospital GEN (EMS) | 0.5000000000 | $453,102 | $453,102 | $226.55 | | |
| LIB | Library Sno-Isle GEN | 0.3153421757 | $453,102 | $453,102 | $142.88 | | |
| PORTWHID | Port of S Whidbey GEN | 0.1094540357 | $453,102 | $453,102 | $49.59 | | |
| SCH206BOND | School 206 BOND | 0.3161759235 | $453,102 | $453,102 | $143.26 | | |
| SCH206MO | School 206 Enrichment | 0.4547169547 | $453,102 | $453,102 | $206.03 | | |
| ST | State School | 1.3035497053 | $453,102 | $453,102 | $590.64 | | |
| ST2 | State School Part 2 | 0.8169543533 | $453,102 | $453,102 | $370.16 | | |
| SWHIDPRBD | P & R S Whidbey BOND | 0.0152817568 | $453,102 | $453,102 | $6.92 | | |
| SWHIDPRBD2 | P & R S Whidbey BOND2 | 0.0138911264 | $453,102 | $453,102 | $6.29 | | |
| SWHIDPRMT | P & R S Whidbey GEN | 0.2053334452 | $453,102 | $453,102 | $93.04 | | |
| | Total Tax Rate: | 6.6934522006 | | | | | |
| | | | | Taxes w/Current Exemptions: | $3,032.79 | | |
| | | | | Taxes w/o Exemptions: | $3,032.79 | | |
Improvement / Building
| Improvement #1: | RESIDENTIAL | State Code: | Y | 800.0 sqft | Value: | $163,102 |
| Bathrooms: | 1.5 | Bedrooms: | 1 | | Ceiling: | DRYWALL PAINTED | Exterior Wall/Cover: | VINYL | | Floor Covering: | COLORED CONCRETE | Floor Structure: | SLAB ABOVE GRADE | | Foundation: | SLAB/CONCRETE | Heating: | RAD HOT WATER-GAS | | Interior Finish: | DRYWALL PAINT | Plumbing Fixture Cnt: | 8 | | Roof Slope: | 4" IN 12" | Roof Structure/Cover: | ALUM LIGHT |
|
| | Type | Description | Class CD | Sub Class CD | Year Built | Area |
| | BAS | BASE/MAIN FLOOR | 3 | 0 | 2012 | 400.0 |
| | OP4 | OPEN PORCH W/CEILING-ROOF | 3 | 0 | 2012 | 120.0 |
| | UPS | UPPER STORY | 3 | 0 | 2012 | 400.0 |
Sketch
Property Image
Land
| 1 | 17 | AC (01.01-02.00) | 0.0000 | 0.00 | 0.00 | 0.00 | 1.00 | $290,000 | $0 |
Roll Value History
| 2026 | N/A | N/A | N/A | N/A | N/A |
| 2025 | $163,102 | $290,000 | $0 | $453,102 | $453,102 |
| 2024 | $164,473 | $280,000 | $0 | $444,473 | $444,473 |
| 2023 | $165,935 | $260,000 | $0 | $425,935 | $425,935 |
| 2022 | $151,411 | $250,000 | $0 | $401,411 | $401,411 |
| 2021 | $132,740 | $175,000 | $0 | $307,740 | $307,740 |
| 2020 | $126,178 | $165,000 | $0 | $291,178 | $291,178 |
| 2019 | $87,010 | $200,000 | $0 | $287,010 | $287,010 |
| 2018 | $87,244 | $170,000 | $0 | $257,244 | $257,244 |
| 2017 | $87,709 | $150,000 | $0 | $237,709 | $237,709 |
| 2016 | $88,642 | $150,000 | $0 | $238,642 | $238,642 |
| 2015 | $89,577 | $90,000 | $0 | $179,577 | $179,577 |
| 2014 | $90,509 | $90,000 | $0 | $180,509 | $180,509 |
| 2013 | $91,442 | $90,000 | $0 | $181,442 | $181,442 |
| 2012 | $63,074 | $90,000 | $0 | $153,074 | $153,074 |
| 2011 | $0 | $90,000 | $0 | $90,000 | $90,000 |
| 2010 | $0 | $90,000 | $0 | $90,000 | $90,000 |
| 2009 | $0 | $145,000 | $0 | $145,000 | $145,000 |
| 2008 | $0 | $85,000 | $0 | $85,000 | $85,000 |
| 2007 | $0 | $85,000 | $0 | $85,000 | $85,000 |
Deed and Sales History
| 1 | 10/21/2005 | WD | Warranty Deed | ZZZ SP 315-04, | LEIBMAN, BARRY H | | | $130,000.00 | 55444 | 4152394 |
| 2 | 01/01/1900 | OTHER | Other - Misc. Documents | Unknown | ZZZ SP 315-04, | | | $0.00 | 0 | 0 |
Payout Agreement
| No payout information available.. |