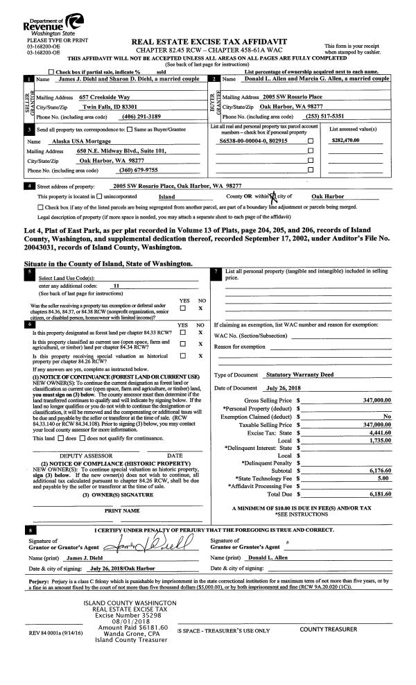
Property
Account |
| Property ID: | 806988 | Abbreviated Legal Description: | LOT 4 C-SP 4-01.13233.164-3100 V4 SP P68&69 AF#4121169 EX PT TO TOWN OF COUPEVILLE AF#4206570 |
| Geographic ID: | R13233-118-3290 | Agent Code: | |
| Type: | Real | | |
| Tax Area: | 300 - APPRAISER-Cpvl Schl Dist, in Cpvl | Land Use Code | 91 |
| Open Space: | N | DFL | N |
| Historic Property: | N | Remodel Property: | N |
| Multi-Family Redevelopment: | N | | |
| Township: | 32 | Section: | 33 |
| Range: | R1 |
Location |
| Address: | 40 NW BIRCH ST COUPEVILLE, WA 98239 | Mapsco: | |
| Neighborhood: | Area 2 Coupeville Non-Waterfront Residential | Map ID: | 173 |
| Neighborhood CD: | 2CPV02R |
Owner |
| Name: | ISLAND COUNTY | Owner ID: | 199145 |
| Mailing Address: | PUBLIC WORKS - COUNTY ROADS 1 NE 7TH ST COUPEVILLE, WA 98239 | % Ownership: | 100.0000000000% |
| | | Exemptions: | EX |
Taxes and Assessment Details
Values
| (+) Improvement Homesite Value: | + | $0 | |
| (+) Improvement Non-Homesite Value: | + | $0 | |
| (+) Land Homesite Value: | + | $0 | |
| (+) Land Non-Homesite Value: | + | $407,466 | |
| (+) Curr Use (HS): | + | $0 | $0 |
| (+) Curr Use (NHS): | + | $0 | $0 |
| | | -------------------------- | |
| (=) Market Value: | = | $407,466 | |
| (–) Productivity Loss: | – | $0 | |
| | | -------------------------- | |
| (=) Subtotal: | = | $407,466 | |
| (+) Senior Appraised Value: | + | $0 | |
| (+) Non-Senior Appraised Value: | + | $407,466 | |
| | | -------------------------- | |
| (=) Total Appraised Value: | = | $407,466 | |
| (–) Senior Exemption Loss: | – | $0 | |
| (–) Exemption Loss: | – | $407,466 | |
| | | -------------------------- | |
| (=) Taxable Value: | = | $0 | |
Taxing Jurisdiction
| Owner: | ISLAND COUNTY | | |
| % Ownership: | 100.0000000000% | | |
| Total Value: | $407,466 | | |
| Tax Area: | 300 - APPRAISER-Cpvl Schl Dist, in Cpvl |
| CF | Conservation Futures | 0.0316035091 | $407,466 | $0 | $0.00 | | |
| CEM2 | Cemetery #2 | 0.0095056933 | $407,466 | $0 | $0.00 | | |
| COUP | City: Town of Coupeville | 0.8426414490 | $407,466 | $0 | $0.00 | | |
| FIRE5 | Fire & Rescue Dist #5 C Whidbey GEN | 1.2008080668 | $407,466 | $0 | $0.00 | | |
| FIRE5BOND | Fire & Rescue Dist #5 C Whidbey BOND | 0.1400090713 | $407,466 | $0 | $0.00 | | |
| HOBOND | Hospital BOND | 0.1910887512 | $407,466 | $0 | $0.00 | | |
| HOGEN | Hospital GEN | 0.3902502903 | $407,466 | $0 | $0.00 | | |
| CE | County Current Expense | 0.3708482477 | $407,466 | $0 | $0.00 | | |
| ISLANDEMS | Hospital GEN (EMS) | 0.5000000000 | $407,466 | $0 | $0.00 | | |
| LIB | Library Sno-Isle GEN | 0.3153421757 | $407,466 | $0 | $0.00 | | |
| LIBCAP | Library Sno-Isle BOND (Cap Fac Imp Area) | 0.0543427938 | $407,466 | $0 | $0.00 | | |
| POCOUP | Port of Coupeville GEN | 0.1093371703 | $407,466 | $0 | $0.00 | | |
| POCOUPIDD | Port of Coupeville IDD | 0.3409740022 | $407,466 | $0 | $0.00 | | |
| COUPSDTECH | School 204 CP (TECH) | 0.7545480007 | $407,466 | $0 | $0.00 | | |
| SCH204MO | School 204 Enrichment | 0.6716186034 | $407,466 | $0 | $0.00 | | |
| ST | State School | 1.3035497053 | $407,466 | $0 | $0.00 | | |
| ST2 | State School Part 2 | 0.8169543533 | $407,466 | $0 | $0.00 | | |
| | Total Tax Rate: | 8.0434218834 | | | | | |
| | | | | Taxes w/Current Exemptions: | $0.00 | | |
| | | | | Taxes w/o Exemptions: | $3,277.41 | | |
Improvement / Building
Sketch
| No sketches available for this property. |
Property Image
Land
| 1 | 32 | AC (03.01-09.99) | 5.4227 | 236212.26 | 0.00 | 0.00 | 1.00 | $407,466 | $0 |
Roll Value History
| 2026 | N/A | N/A | N/A | N/A | N/A |
| 2025 | $0 | $407,466 | $0 | $407,466 | $0 |
| 2024 | $0 | $150,000 | $0 | $150,000 | $0 |
| 2023 | $0 | $1,000,000 | $0 | $1,000,000 | $0 |
| 2022 | $0 | $1,000,000 | $0 | $1,000,000 | $0 |
| 2021 | $0 | $1,000,000 | $0 | $1,000,000 | $0 |
| 2020 | $0 | $1,000,000 | $0 | $1,000,000 | $0 |
| 2019 | $0 | $1,000,000 | $0 | $1,000,000 | $0 |
| 2018 | $0 | $450,000 | $0 | $450,000 | $0 |
| 2017 | $0 | $450,000 | $0 | $450,000 | $0 |
| 2016 | $0 | $407,250 | $0 | $407,250 | $407,250 |
| 2015 | $0 | $407,250 | $0 | $407,250 | $407,250 |
| 2014 | $0 | $407,250 | $0 | $407,250 | $407,250 |
| 2013 | $0 | $407,250 | $0 | $407,250 | $407,250 |
| 2012 | $0 | $407,250 | $0 | $407,250 | $407,250 |
| 2011 | $0 | $407,250 | $0 | $407,250 | $407,250 |
| 2010 | $0 | $407,250 | $0 | $407,250 | $407,250 |
| 2009 | $0 | $407,250 | $0 | $407,250 | $407,250 |
| 2008 | $0 | $396,390 | $0 | $396,390 | $396,390 |
| 2007 | $0 | $396,390 | $0 | $396,390 | $396,390 |
Deed and Sales History
| 1 | 03/08/2018 | WD | Warranty Deed | STUURMANS, CECIL & CHERYL | ISLAND COUNTY | | | $1,063,953.00 | 33216 | 4440439 |
| 2 | 11/13/2008 | WD | Warranty Deed | STUURMANS, CECIL & CHERYL | STUURMANS, CECIL & CHERYL | | | $0.00 | 81024 | 4206570 |
| 3 | 01/01/1900 | OTHER | Other - Misc. Documents | Unknown | STUURMANS, CECIL & CHERYL | | | $0.00 | 0 | 0 |
Payout Agreement
| No payout information available.. |