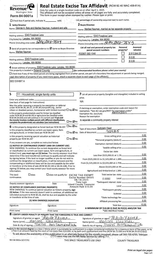
Property
Account |
| Property ID: | 807088 | Abbreviated Legal Description: | BG NWCR NW SW E440.20' S1080' W440.20' N1080' TPB EX RDS |
| Geographic ID: | R13113-212-0210 | Agent Code: | |
| Type: | Real | | |
| Tax Area: | 312 - APPRAISER-Cpvl Schl Dist, outside Cpvl, improved, greater than 1 acre | Land Use Code | 11 |
| Open Space: | N | DFL | N |
| Historic Property: | N | Remodel Property: | N |
| Multi-Family Redevelopment: | N | | |
| Township: | 31 | Section: | 13 |
| Range: | R1 |
Location |
| Address: | 1075 KEYSTONE HILL RD COUPEVILLE, WA 98239 | Mapsco: | |
| Neighborhood: | Cycle 2 | Map ID: | 58 |
| Neighborhood CD: | 2 |
Owner |
| Name: | MOAI KI LLC | Owner ID: | 301564 |
| Mailing Address: | 301 S MAIN ST COUPEVILLE, WA 98239 | % Ownership: | 100.0000000000% |
| | | Exemptions: | |
Taxes and Assessment Details
Values
| (+) Improvement Homesite Value: | + | $0 | |
| (+) Improvement Non-Homesite Value: | + | $195,382 | |
| (+) Land Homesite Value: | + | $0 | |
| (+) Land Non-Homesite Value: | + | $415,970 | |
| (+) Curr Use (HS): | + | $0 | $0 |
| (+) Curr Use (NHS): | + | $0 | $0 |
| | | -------------------------- | |
| (=) Market Value: | = | $611,352 | |
| (–) Productivity Loss: | – | $0 | |
| | | -------------------------- | |
| (=) Subtotal: | = | $611,352 | |
| (+) Senior Appraised Value: | + | $0 | |
| (+) Non-Senior Appraised Value: | + | $611,352 | |
| | | -------------------------- | |
| (=) Total Appraised Value: | = | $611,352 | |
| (–) Senior Exemption Loss: | – | $0 | |
| (–) Exemption Loss: | – | $0 | |
| | | -------------------------- | |
| (=) Taxable Value: | = | $611,352 | |
Taxing Jurisdiction
| Owner: | MOAI KI LLC | | |
| % Ownership: | 100.0000000000% | | |
| Total Value: | $611,352 | | |
| Tax Area: | 312 - APPRAISER-Cpvl Schl Dist, outside Cpvl, improved, greater than 1 acre |
| CF | Conservation Futures | 0.0316035091 | $611,352 | $611,352 | $19.32 | | |
| CEM2 | Cemetery #2 | 0.0095056933 | $611,352 | $611,352 | $5.81 | | |
| FIRE5 | Fire & Rescue Dist #5 C Whidbey GEN | 1.2008080668 | $611,352 | $611,352 | $734.12 | | |
| FIRE5BOND | Fire & Rescue Dist #5 C Whidbey BOND | 0.1400090713 | $611,352 | $611,352 | $85.59 | | |
| HOBOND | Hospital BOND | 0.1910887512 | $611,352 | $611,352 | $116.82 | | |
| HOGEN | Hospital GEN | 0.3902502903 | $611,352 | $611,352 | $238.58 | | |
| CE | County Current Expense | 0.3708482477 | $611,352 | $611,352 | $226.72 | | |
| CR | County Roads | 0.4584763726 | $611,352 | $611,352 | $280.29 | | |
| ISLANDEMS | Hospital GEN (EMS) | 0.5000000000 | $611,352 | $611,352 | $305.68 | | |
| LIB | Library Sno-Isle GEN | 0.3153421757 | $611,352 | $611,352 | $192.79 | | |
| LIBCAP | Library Sno-Isle BOND (Cap Fac Imp Area) | 0.0543427938 | $611,352 | $611,352 | $33.22 | | |
| POCOUP | Port of Coupeville GEN | 0.1093371703 | $611,352 | $611,352 | $66.84 | | |
| POCOUPIDD | Port of Coupeville IDD | 0.3409740022 | $611,352 | $611,352 | $208.46 | | |
| COUPSDTECH | School 204 CP (TECH) | 0.7545480007 | $611,352 | $611,352 | $461.29 | | |
| SCH204MO | School 204 Enrichment | 0.6716186034 | $611,352 | $611,352 | $410.60 | | |
| ST | State School | 1.3035497053 | $611,352 | $611,352 | $796.93 | | |
| ST2 | State School Part 2 | 0.8169543533 | $611,352 | $611,352 | $499.45 | | |
| | Total Tax Rate: | 7.6592568070 | | | | | |
| | | | | Taxes w/Current Exemptions: | $4,682.51 | | |
| | | | | Taxes w/o Exemptions: | $4,682.51 | | |
Improvement / Building
| Improvement #1: | RESIDENTIAL | State Code: | Y | 984.0 sqft | Value: | $195,382 |
| Bathrooms: | 1 | Bedrooms: | 2 | | Ceiling: | DRYWALL PAINTED | Exterior Wall/Cover: | PLY/HARDBOARD T-111 | | Floor Covering: | CERAMIC TILE/HWD 40/60 | Floor Structure: | WOOD W/SUBFLOOR | | Foundation: | CONCRETE | Heating: | FHA ELECTRIC | | Interior Finish: | DRYWALL PAINT | Plumbing Fixture Cnt: | 6 | | Roof Slope: | 8" IN 12" | Roof Structure/Cover: | CJ ASPHALT |
|
| | Type | Description | Class CD | Sub Class CD | Year Built | Area |
| | BAS | BASE/MAIN FLOOR | 3 | 0 | 1951 | 984.0 |
| | OP4 | OPEN PORCH W/CEILING-ROOF | 3 | 0 | 1951 | 32.0 |
| | OP4 | OPEN PORCH W/CEILING-ROOF | 3 | 0 | 1951 | 60.0 |
| | UTY | STORAGE/UTILITY | 3 | 0 | 1951 | 600.0 |
Sketch
| No sketches available for this property. |
Property Image
Land
| 1 | 91 | UNDEVELOPED LAND-METES AND BOUNDS | 9.9100 | 431679.60 | 0.00 | 0.00 | 1.00 | $75,970 | $0 |
| 2 | HS | HOMESITE | 1.0000 | 43560.00 | 0.00 | 0.00 | 1.00 | $340,000 | $0 |
Roll Value History
| 2026 | N/A | N/A | N/A | N/A | N/A |
| 2025 | $195,382 | $415,970 | $0 | $611,352 | $611,352 |
| 2024 | $200,952 | $390,000 | $0 | $590,952 | $590,952 |
| 2023 | $203,735 | $370,000 | $0 | $573,735 | $573,735 |
| 2022 | $187,001 | $350,000 | $0 | $537,001 | $537,001 |
| 2021 | $151,661 | $285,000 | $0 | $436,661 | $436,661 |
| 2020 | $148,195 | $285,000 | $0 | $433,195 | $433,195 |
| 2019 | $107,067 | $350,000 | $0 | $457,067 | $457,067 |
| 2018 | $78,420 | $300,000 | $0 | $378,420 | $378,420 |
| 2017 | $79,012 | $250,000 | $0 | $329,012 | $329,012 |
| 2016 | $80,197 | $250,000 | $0 | $330,197 | $330,197 |
| 2015 | $81,381 | $294,570 | $0 | $375,951 | $375,951 |
| 2014 | $82,567 | $294,570 | $0 | $377,137 | $377,137 |
| 2013 | $83,752 | $294,570 | $0 | $378,322 | $378,322 |
| 2012 | $87,436 | $294,570 | $0 | $382,006 | $382,006 |
| 2011 | $88,642 | $327,300 | $0 | $415,942 | $415,942 |
| 2010 | $96,976 | $327,300 | $0 | $424,276 | $424,276 |
| 2009 | $95,421 | $381,686 | $0 | $477,107 | $477,107 |
| 2008 | $96,451 | $381,850 | $0 | $478,301 | $478,301 |
| 2007 | $97,645 | $381,850 | $0 | $479,495 | $479,495 |
Deed and Sales History
| 1 | 09/30/2021 | QCD | Quit Claim Deed | IVERSON, KRISTOFER N | MOAI KI LLC | | | $0.00 | 50390 | 4530979 |
| 2 | 05/04/2021 | WD | Warranty Deed | EVANS, NANCY J | IVERSON, KRISTOFER N | | | $680,000.00 | 48352 | 4519868 |
| 3 | 01/11/2006 | SEG | DNU - Segregation | Unknown | EVANS, NANCY J | | | $0.00 | 70787 | 0 |
Payout Agreement
| No payout information available.. |