Property
Account |
| Property ID: | 807097 | Abbreviated Legal Description: | PT MILTON MOUNTS DLC DESC: BG ON NLN SD M MOUNTS DLC LY S88*E89.55' FR NWCR S88*E494.66' TPB N88*W494.66' S03*W797.41' TO SLN GL5 N88*W ALG SD SLN 59.40' TO WLN SD M MOUNTS DLC S01*W ALG SD WLN 781.89' TO SLN TR DESC AF#4157745 N83*E ALG SD SLN 254.62' N0 |
| Geographic ID: | R23330-133-2940 | Agent Code: | |
| Type: | Real | | |
| Tax Area: | 112 - APPRAISER-OH Schl Dist, outside OH, improved, greater than 1 acre | Land Use Code | 11 |
| Open Space: | N | DFL | N |
| Historic Property: | N | Remodel Property: | N |
| Multi-Family Redevelopment: | N | | |
| Township: | 33 | Section: | 30 |
| Range: | R2 |
Location |
| Address: | 260 WILDLIFE RANCH LN OAK HARBOR, WA 98277 | Mapsco: | |
| Neighborhood: | Cycle 6 | Map ID: | 640 |
| Neighborhood CD: | 6 |
Owner |
| Name: | SILVER, MATTHEW R | Owner ID: | 306897 |
| Mailing Address: | KELSEY R. W. SILVER 260 WILDLIFE RANCH LANE OAK HARBOR, WA 98277 | % Ownership: | 100.0000000000% |
| | | Exemptions: | |
Taxes and Assessment Details
Values
| (+) Improvement Homesite Value: | + | $0 | |
| (+) Improvement Non-Homesite Value: | + | $341,044 | |
| (+) Land Homesite Value: | + | $0 | |
| (+) Land Non-Homesite Value: | + | $340,000 | |
| (+) Curr Use (HS): | + | $0 | $0 |
| (+) Curr Use (NHS): | + | $0 | $0 |
| | | -------------------------- | |
| (=) Market Value: | = | $681,044 | |
| (–) Productivity Loss: | – | $0 | |
| | | -------------------------- | |
| (=) Subtotal: | = | $681,044 | |
| (+) Senior Appraised Value: | + | $0 | |
| (+) Non-Senior Appraised Value: | + | $681,044 | |
| | | -------------------------- | |
| (=) Total Appraised Value: | = | $681,044 | |
| (–) Senior Exemption Loss: | – | $0 | |
| (–) Exemption Loss: | – | $0 | |
| | | -------------------------- | |
| (=) Taxable Value: | = | $681,044 | |
Taxing Jurisdiction
| Owner: | SILVER, MATTHEW R | | |
| % Ownership: | 100.0000000000% | | |
| Total Value: | $681,044 | | |
| Tax Area: | 112 - APPRAISER-OH Schl Dist, outside OH, improved, greater than 1 acre |
| CF | Conservation Futures | 0.0316035091 | $681,044 | $681,044 | $21.52 | | |
| CEM1 | Cemetery #1 | 0.0040320932 | $681,044 | $681,044 | $2.75 | | |
| FIRE2 | Fire & Rescue Dist #2 N Whidbey GEN | 0.5475949600 | $681,044 | $681,044 | $372.94 | | |
| HOBOND | Hospital BOND | 0.1910887512 | $681,044 | $681,044 | $130.14 | | |
| HOGEN | Hospital GEN | 0.3902502903 | $681,044 | $681,044 | $265.78 | | |
| CE | County Current Expense | 0.3708482477 | $681,044 | $681,044 | $252.56 | | |
| CR | County Roads | 0.4584763726 | $681,044 | $681,044 | $312.24 | | |
| ISLANDEMS | Hospital GEN (EMS) | 0.5000000000 | $681,044 | $681,044 | $340.52 | | |
| LIB | Library Sno-Isle GEN | 0.3153421757 | $681,044 | $681,044 | $214.76 | | |
| NWHIDPRMT | P & R N Whidbey GEN | 0.2004466701 | $681,044 | $681,044 | $136.51 | | |
| SCH201MO | School 201 Enrichment | 1.8559231640 | $681,044 | $681,044 | $1,263.97 | | |
| ST | State School | 1.3035497053 | $681,044 | $681,044 | $887.77 | | |
| ST2 | State School Part 2 | 0.8169543533 | $681,044 | $681,044 | $556.38 | | |
| | Total Tax Rate: | 6.9861102925 | | | | | |
| | | | | Taxes w/Current Exemptions: | $4,757.84 | | |
| | | | | Taxes w/o Exemptions: | $4,757.84 | | |
Improvement / Building
| Improvement #1: | RESIDENTIAL | State Code: | Y | 1628.0 sqft | Value: | $341,044 |
| Bathrooms: | 2 | Bedrooms: | 3 | | Ceiling: | DRYWALL PAINTED | Exterior Wall/Cover: | CEMENT FIBER | | Floor Covering: | CARPET/VINYL 80-20 | Floor Structure: | WOOD W/SUBFLOOR | | Foundation: | CONCRETE | Heating: | FHA GAS | | Interior Finish: | DRYWALL PAINT | Plumbing Fixture Cnt: | 10 | | Roof Slope: | 6" IN 12" | Roof Structure/Cover: | CJ ALUMINIUM HEAVY |
|
| | Type | Description | Class CD | Sub Class CD | Year Built | Area |
| | BAS | BASE/MAIN FLOOR | 3 | 0 | 1942 | 1628.0 |
| | OWC | OPEN WOOD PORCH W/STEPS/ROOF/C | 3 | 0 | 1942 | 176.0 |
| | oPOL | POLE BARN | 3 | 0 | 1942 | 4160.0 |
| | AGR | ATTACHED GARAGE | 3 | 0 | 1942 | 484.0 |
Sketch
Property Image
Land
| 1 | 35 | AC (10.00-30.99) | 10.0000 | 435600.00 | 0.00 | 0.00 | 0.00 | $340,000 | $0 |
Roll Value History
| 2026 | N/A | N/A | N/A | N/A | N/A |
| 2025 | $341,044 | $340,000 | $0 | $681,044 | $681,044 |
| 2024 | $344,652 | $300,000 | $0 | $644,652 | $644,652 |
| 2023 | $348,259 | $280,000 | $0 | $628,259 | $628,259 |
| 2022 | $347,357 | $330,000 | $0 | $677,357 | $677,357 |
| 2021 | $189,494 | $250,000 | $0 | $439,494 | $439,494 |
| 2020 | $185,186 | $230,000 | $0 | $415,186 | $415,186 |
| 2019 | $139,655 | $270,000 | $0 | $409,655 | $409,655 |
| 2018 | $140,013 | $245,000 | $0 | $385,013 | $385,013 |
| 2017 | $139,286 | $165,000 | $2,185 | $157,971 | $157,971 |
| 2016 | $112,256 | $155,000 | $2,185 | $129,441 | $129,441 |
| 2015 | $113,574 | $155,000 | $2,185 | $130,759 | $130,759 |
| 2014 | $114,894 | $170,000 | $2,185 | $134,079 | $134,079 |
| 2013 | $116,211 | $170,000 | $2,185 | $135,396 | $135,396 |
| 2012 | $117,530 | $94,500 | $2,185 | $129,215 | $129,215 |
| 2011 | $69,567 | $100,000 | $2,429 | $71,996 | $71,996 |
| 2010 | $61,687 | $100,000 | $2,429 | $64,116 | $64,116 |
| 2009 | $63,892 | $220,000 | $2,429 | $66,321 | $66,321 |
| 2008 | $64,788 | $2,429 | $2,429 | $67,217 | $67,217 |
| 2007 | $0 | $0 | $0 | $68,261 | $68,261 |
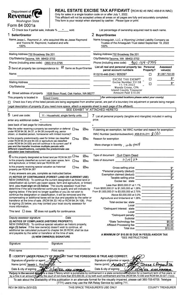
Deed and Sales History
| 1 | 08/17/2022 | WD | Warranty Deed | HIGGINBOTTOM, KEITH R | SILVER, MATTHEW R | | | $649,000.00 | 54273 | 4550133 |
| 2 | 12/10/2018 | WD | Warranty Deed | DUGGER, CHRISTINE | HIGGINBOTTOM, KEITH R | | | $405,000.00 | 36923 | 4456193 |
| 3 | 06/19/2018 | QCD | Quit Claim Deed | DUGGER, MARK K | DUGGER, CHRISTINE | | | $0.00 | 35212 | 4448887 |
| 4 | 02/23/2010 | WD | Warranty Deed | GOODWIN, CHRISTINE M | DUGGER, MARK K | | | $399,000.00 | 498 | 4269682 |
| 5 | 08/19/2008 | BLA | DNU - Boundary Line Adjustment | GOODWIN, CHRISTINE M | GOODWIN, CHRISTINE M | | | $0.00 | 80877 | 4218834 |
| 6 | 08/15/2008 | SEG | DNU - Segregation | Unknown | GOODWIN, CHRISTINE M | | | $0.00 | 80874 | 0 |
Payout Agreement
| No payout information available.. |