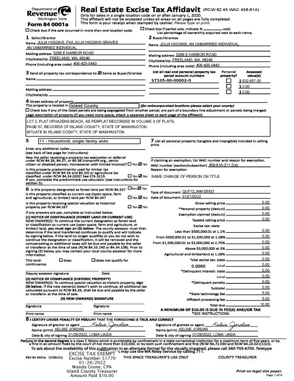
Property
Account |
| Property ID: | 807108 | Abbreviated Legal Description: | 1991 REDMOND 28X64 VIN#11816242 |
| Geographic ID: | M90250000001A | Agent Code: | |
| Type: | Mobile Home | | |
| Tax Area: | 100 - APPRAISER-OH Schl Dist, in OH | Land Use Code | 11 |
| Open Space: | N | DFL | N |
| Historic Property: | N | Remodel Property: | N |
| Multi-Family Redevelopment: | N | | |
| Township: | | Section: | |
| Range: | |
Location |
| Address: | 1361 NE GOLDIE ST # 1 OAK HARBOR, WA 98277 | Mapsco: | |
| Neighborhood: | Cycle 1 | Map ID: | |
| Neighborhood CD: | 1 |
Owner |
| Name: | OAKLEY, JOANNE R | Owner ID: | 300857 |
| Mailing Address: | 1361 NE GOLDIE ST #1A OAK HARBOR, WA 98277 | % Ownership: | 100.0000000000% |
| | | Exemptions: | |
Taxes and Assessment Details
Values
| (+) Improvement Homesite Value: | + | $0 | |
| (+) Improvement Non-Homesite Value: | + | $66,037 | |
| (+) Land Homesite Value: | + | $0 | |
| (+) Land Non-Homesite Value: | + | $0 | |
| (+) Curr Use (HS): | + | $0 | $0 |
| (+) Curr Use (NHS): | + | $0 | $0 |
| | | -------------------------- | |
| (=) Market Value: | = | $66,037 | |
| (–) Productivity Loss: | – | $0 | |
| | | -------------------------- | |
| (=) Subtotal: | = | $66,037 | |
| (+) Senior Appraised Value: | + | $0 | |
| (+) Non-Senior Appraised Value: | + | $66,037 | |
| | | -------------------------- | |
| (=) Total Appraised Value: | = | $66,037 | |
| (–) Senior Exemption Loss: | – | $0 | |
| (–) Exemption Loss: | – | $0 | |
| | | -------------------------- | |
| (=) Taxable Value: | = | $66,037 | |
Taxing Jurisdiction
| Owner: | OAKLEY, JOANNE R | | |
| % Ownership: | 100.0000000000% | | |
| Total Value: | $66,037 | | |
| Tax Area: | 100 - APPRAISER-OH Schl Dist, in OH |
| CF | Conservation Futures | 0.0316035091 | $66,037 | $66,037 | $2.09 | | |
| CEM1 | Cemetery #1 | 0.0040320932 | $66,037 | $66,037 | $0.27 | | |
| COH | City of Oak Harbor | 2.3001546061 | $66,037 | $66,037 | $151.90 | | |
| OAKBOND | City of Oak Harbor BOND | 0.1926904192 | $66,037 | $66,037 | $12.72 | | |
| HOBOND | Hospital BOND | 0.1910887512 | $66,037 | $66,037 | $12.62 | | |
| HOGEN | Hospital GEN | 0.3902502903 | $66,037 | $66,037 | $25.77 | | |
| CE | County Current Expense | 0.3708482477 | $66,037 | $66,037 | $24.49 | | |
| ISLANDEMS | Hospital GEN (EMS) | 0.5000000000 | $66,037 | $66,037 | $33.02 | | |
| LIB | Library Sno-Isle GEN | 0.3153421757 | $66,037 | $66,037 | $20.82 | | |
| NWHIDPRMT | P & R N Whidbey GEN | 0.2004466701 | $66,037 | $66,037 | $13.24 | | |
| SCH201MO | School 201 Enrichment | 1.8559231640 | $66,037 | $66,037 | $122.56 | | |
| ST | State School | 1.3035497053 | $66,037 | $66,037 | $86.08 | | |
| ST2 | State School Part 2 | 0.8169543533 | $66,037 | $66,037 | $53.95 | | |
| | Total Tax Rate: | 8.4728839852 | | | | | |
| | | | | Taxes w/Current Exemptions: | $559.53 | | |
| | | | | Taxes w/o Exemptions: | $559.53 | | |
Improvement / Building
| Improvement #1: | MANUFACTURED HOME | State Code: | Y | 1296.0 sqft | Value: | $66,037 |
| Bathrooms: | 0 | Bedrooms: | 0 | | Ceiling: | PLASTER PAINTED | Cooling: | EVAP NO DUCT | | Exterior Wall/Cover: | VINYL | Floor Covering: | CARPET 100% | | Floor Structure: | SLAB ON GRADE | Foundation: | SLAB | | Heating: | FHA ELECTRIC | Interior Finish: | PLASTER | | Plumbing Fixture Cnt: | 1 | Roof Slope: | FLAT | | Roof Structure/Cover: | CJ ALUMINIUM HEAVY |   |   |
|
Sketch
Property Image
Land
No land segments exist for this property.
Roll Value History
| 2026 | N/A | N/A | N/A | N/A | N/A |
| 2025 | $66,037 | $0 | $0 | $66,037 | $66,037 |
| 2024 | $68,908 | $0 | $0 | $68,908 | $68,908 |
| 2023 | $45,272 | $0 | $0 | $45,272 | $45,272 |
| 2022 | $42,777 | $0 | $0 | $42,777 | $42,777 |
| 2021 | $39,524 | $0 | $0 | $39,524 | $39,524 |
| 2020 | $39,871 | $0 | $0 | $39,871 | $39,871 |
| 2019 | $32,596 | $0 | $0 | $32,596 | $32,596 |
| 2018 | $33,782 | $0 | $0 | $33,782 | $33,782 |
| 2017 | $32,596 | $0 | $0 | $32,596 | $32,596 |
| 2016 | $33,782 | $0 | $0 | $33,782 | $33,782 |
| 2015 | $35,560 | $0 | $0 | $35,560 | $35,560 |
| 2014 | $36,745 | $0 | $0 | $36,745 | $36,745 |
| 2013 | $37,930 | $0 | $0 | $37,930 | $37,930 |
| 2012 | $39,116 | $0 | $0 | $39,116 | $39,116 |
| 2011 | $46,991 | $0 | $0 | $46,991 | $46,991 |
| 2010 | $53,730 | $0 | $0 | $53,730 | $53,730 |
| 2009 | $56,137 | $0 | $0 | $56,137 | $56,137 |
| 2008 | $57,662 | $0 | $0 | $57,662 | $0 |
| 2007 | $58,465 | $0 | $0 | $58,465 | $0 |
Deed and Sales History
| 1 | 08/24/2021 | MANHOME | Manufactured Home | WHIDBEY RE VENTURES LLC | OAKLEY, JOANNE R | | | $110,000.00 | 49746 | |
| 2 | 12/02/2009 | TRUSTEED | Trustee's Deed | AYRE, FLORENCE | VENTURES LLC, WHIDBEY RE | | | $21,000.00 | 92969 | 0 |
| 3 | 01/01/1900 | OTHER | Other - Misc. Documents | Unknown | AYRE, FLORENCE | | | $0.00 | 0 | 0 |
Payout Agreement
| No payout information available.. |