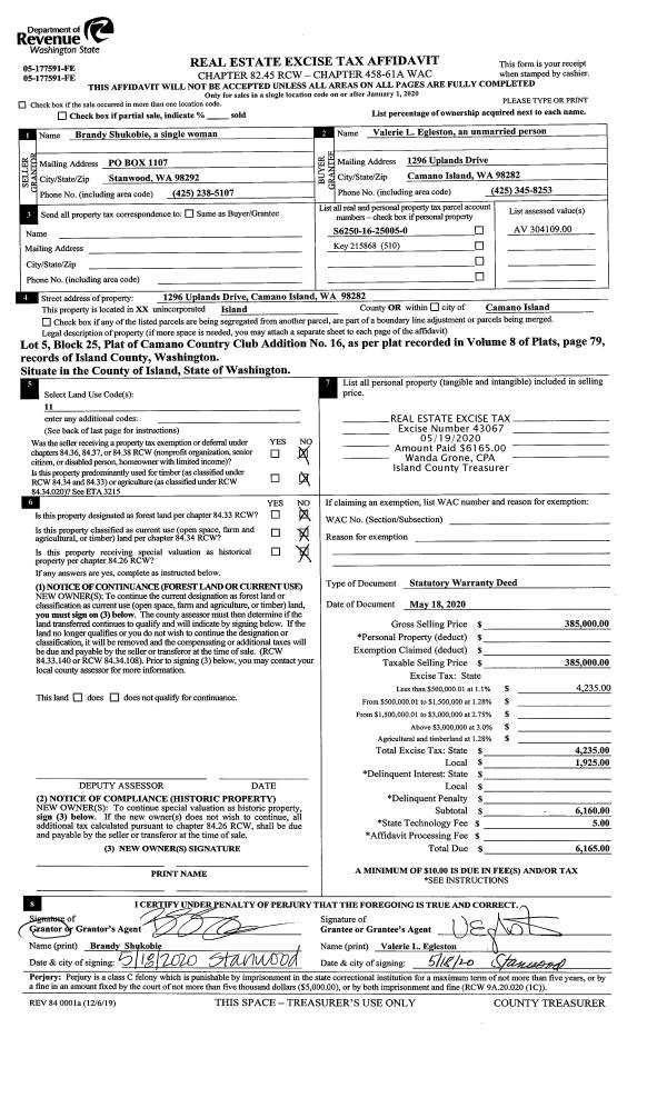
Property
Account |
| Property ID: | 807110 | Abbreviated Legal Description: | PT N/2 S/2 SW SW DESC: BG NECR OF N/2 S/2 SW SW N88*W ALG NLN OF SD N/2 420.43' TPB S2*W250.01' N88*W423.98' N6*W13.26' N88*W469.17' M/L TO WLN OF SD N/2 N2*E ALG SD WLN 237.35' M/L TO NWCR OF SD N/2 S88*E ALG SD NLN 895.25' TPB TGW EZ E60' AF#388308 |
| Geographic ID: | R23034-054-0440 | Agent Code: | |
| Type: | Real | | |
| Tax Area: | 312 - APPRAISER-Cpvl Schl Dist, outside Cpvl, improved, greater than 1 acre | Land Use Code | 11 |
| Open Space: | N | DFL | N |
| Historic Property: | N | Remodel Property: | N |
| Multi-Family Redevelopment: | N | | |
| Township: | 30 | Section: | 34 |
| Range: | R2 |
Location |
| Address: | 4758 EVENSTAR LN FREELAND, WA 98249 | Mapsco: | |
| Neighborhood: | Cycle 3 | Map ID: | 439 |
| Neighborhood CD: | 3 |
Owner |
| Name: | MCBILES, PATRICK F | Owner ID: | 196103 |
| Mailing Address: | FAITH S MCBILES 3636 E ARCADIA AVE MESA, AZ 85206-1015 | % Ownership: | 100.0000000000% |
| | | Exemptions: | |
Taxes and Assessment Details
Values
| (+) Improvement Homesite Value: | + | $0 | |
| (+) Improvement Non-Homesite Value: | + | $582,295 | |
| (+) Land Homesite Value: | + | $0 | |
| (+) Land Non-Homesite Value: | + | $370,000 | |
| (+) Curr Use (HS): | + | $0 | $0 |
| (+) Curr Use (NHS): | + | $0 | $0 |
| | | -------------------------- | |
| (=) Market Value: | = | $952,295 | |
| (–) Productivity Loss: | – | $0 | |
| | | -------------------------- | |
| (=) Subtotal: | = | $952,295 | |
| (+) Senior Appraised Value: | + | $0 | |
| (+) Non-Senior Appraised Value: | + | $952,295 | |
| | | -------------------------- | |
| (=) Total Appraised Value: | = | $952,295 | |
| (–) Senior Exemption Loss: | – | $0 | |
| (–) Exemption Loss: | – | $0 | |
| | | -------------------------- | |
| (=) Taxable Value: | = | $952,295 | |
Taxing Jurisdiction
| Owner: | MCBILES, PATRICK F | | |
| % Ownership: | 100.0000000000% | | |
| Total Value: | $952,295 | | |
| Tax Area: | 312 - APPRAISER-Cpvl Schl Dist, outside Cpvl, improved, greater than 1 acre |
| CF | Conservation Futures | 0.0316035091 | $952,295 | $952,295 | $30.10 | | |
| CEM2 | Cemetery #2 | 0.0095056933 | $952,295 | $952,295 | $9.05 | | |
| FIRE5 | Fire & Rescue Dist #5 C Whidbey GEN | 1.2008080668 | $952,295 | $952,295 | $1,143.52 | | |
| FIRE5BOND | Fire & Rescue Dist #5 C Whidbey BOND | 0.1400090713 | $952,295 | $952,295 | $133.33 | | |
| HOBOND | Hospital BOND | 0.1910887512 | $952,295 | $952,295 | $181.97 | | |
| HOGEN | Hospital GEN | 0.3902502903 | $952,295 | $952,295 | $371.63 | | |
| CE | County Current Expense | 0.3708482477 | $952,295 | $952,295 | $353.16 | | |
| CR | County Roads | 0.4584763726 | $952,295 | $952,295 | $436.60 | | |
| ISLANDEMS | Hospital GEN (EMS) | 0.5000000000 | $952,295 | $952,295 | $476.15 | | |
| LIB | Library Sno-Isle GEN | 0.3153421757 | $952,295 | $952,295 | $300.30 | | |
| LIBCAP | Library Sno-Isle BOND (Cap Fac Imp Area) | 0.0543427938 | $952,295 | $952,295 | $51.75 | | |
| POCOUP | Port of Coupeville GEN | 0.1093371703 | $952,295 | $952,295 | $104.12 | | |
| POCOUPIDD | Port of Coupeville IDD | 0.3409740022 | $952,295 | $952,295 | $324.71 | | |
| COUPSDTECH | School 204 CP (TECH) | 0.7545480007 | $952,295 | $952,295 | $718.55 | | |
| SCH204MO | School 204 Enrichment | 0.6716186034 | $952,295 | $952,295 | $639.58 | | |
| ST | State School | 1.3035497053 | $952,295 | $952,295 | $1,241.36 | | |
| ST2 | State School Part 2 | 0.8169543533 | $952,295 | $952,295 | $777.98 | | |
| | Total Tax Rate: | 7.6592568070 | | | | | |
| | | | | Taxes w/Current Exemptions: | $7,293.86 | | |
| | | | | Taxes w/o Exemptions: | $7,293.86 | | |
Improvement / Building
| Improvement #1: | RESIDENTIAL | State Code: | Y | 2790.0 sqft | Value: | $582,295 |
| Bathrooms: | 2.5 | Bedrooms: | 3 | | Ceiling: | DRYWALL PAINTED | Cooling: | HEAT PUMP/CONV/V | | Exterior Wall/Cover: | CEMENT FIBER | Floor Covering: | HARDWOOD/CARP 80-20 | | Floor Structure: | WOOD W/SUBFLOOR | Foundation: | CONCRETE | | Interior Finish: | DRYWALL PAINT | Plumbing Fixture Cnt: | 10 | | Roof Slope: | 8" IN 12" | Roof Structure/Cover: | CJ ASPHALT |
|
| | Type | Description | Class CD | Sub Class CD | Year Built | Area |
| | BAS | BASE/MAIN FLOOR | 4 | 0 | 2017 | 1564.0 |
| | UPS | UPPER STORY | 4 | 0 | 2017 | 1226.0 |
| | AGR | ATTACHED GARAGE | 4 | 0 | 2017 | 432.0 |
| | OWC | OPEN WOOD PORCH W/STEPS/ROOF/C | 4 | 0 | 2017 | 120.0 |
| | OWC | OPEN WOOD PORCH W/STEPS/ROOF/C | 4 | 0 | 2017 | 48.0 |
| | DGR | DETACHED GARAGE | 4 | 0 | 2017 | 720.0 |
| | OWC | OPEN WOOD PORCH W/STEPS/ROOF/C | 4 | 0 | 2017 | 120.0 |
Sketch
Property Image
Land
| 1 | 32 | AC (03.01-09.99) | 4.0000 | 0.00 | 0.00 | 0.00 | 1.00 | $370,000 | $0 |
| 2 | 53 | CRITICAL AREAS | 0.0000 | 0.00 | 0.00 | 0.00 | 1.00 | $0 | $0 |
Roll Value History
| 2026 | N/A | N/A | N/A | N/A | N/A |
| 2025 | $582,295 | $370,000 | $0 | $952,295 | $952,295 |
| 2024 | $587,068 | $350,000 | $0 | $937,068 | $937,068 |
| 2023 | $591,842 | $310,000 | $0 | $901,842 | $901,842 |
| 2022 | $540,219 | $290,000 | $0 | $830,219 | $830,219 |
| 2021 | $473,512 | $220,000 | $0 | $693,512 | $693,512 |
| 2020 | $460,954 | $180,000 | $0 | $640,954 | $640,954 |
| 2019 | $347,532 | $230,000 | $0 | $577,532 | $577,532 |
| 2018 | $348,416 | $200,000 | $0 | $548,416 | $548,416 |
| 2017 | $353,722 | $150,000 | $0 | $503,722 | $503,722 |
| 2016 | $25,000 | $150,000 | $0 | $175,000 | $175,000 |
| 2015 | $25,000 | $108,400 | $0 | $133,400 | $133,400 |
| 2014 | $25,000 | $108,400 | $0 | $133,400 | $133,400 |
| 2013 | $25,000 | $108,400 | $0 | $133,400 | $133,400 |
| 2012 | $4,000 | $108,400 | $0 | $112,400 | $112,400 |
| 2011 | $4,000 | $120,400 | $0 | $124,400 | $124,400 |
| 2010 | $4,000 | $120,400 | $0 | $124,400 | $124,400 |
| 2009 | $4,000 | $156,400 | $0 | $160,400 | $160,400 |
| 2008 | $4,000 | $160,320 | $0 | $164,320 | $164,320 |
| 2007 | $0 | $150,300 | $0 | $150,300 | $150,300 |
Deed and Sales History
| 1 | 01/30/2006 | BLA | DNU - Boundary Line Adjustment | Unknown | WHIDBEY ENTERPRISE LLC, | | | $0.00 | 70810 | 4087993 |
| 2 | 11/15/2005 | WD | Warranty Deed | WHIDBEY ENTERPRISE LLC, | MCBILES, PATRICK F | | | $147,000.00 | 55943 | 4155386 |
Payout Agreement
| No payout information available.. |