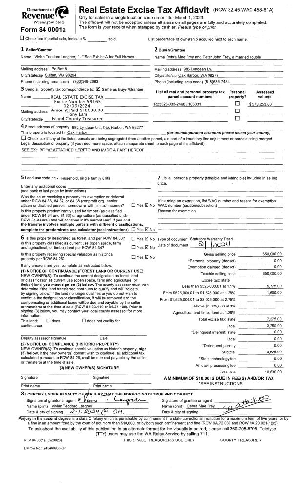
Property
Account |
| Property ID: | 807125 | Abbreviated Legal Description: | KIMBALL TREE LOT 2 OH-SP SPL 4-00001.7276.00.00009-0 V4 SP P67 AF#4119232 |
| Geographic ID: | S7276-00-00009-2 | Agent Code: | |
| Type: | Real | | |
| Tax Area: | 100 - APPRAISER-OH Schl Dist, in OH | Land Use Code | 11 |
| Open Space: | N | DFL | N |
| Historic Property: | N | Remodel Property: | N |
| Multi-Family Redevelopment: | N | | |
| Township: | | Section: | |
| Range: | |
Location |
| Address: | 246 SW JUDSON DR OAK HARBOR, WA 98277 | Mapsco: | |
| Neighborhood: | Cycle 1 | Map ID: | 92 |
| Neighborhood CD: | 1 |
Owner |
| Name: | MAN, GEORGE K | Owner ID: | 310833 |
| Mailing Address: | CONG LIU 316 SE PIONEER WAY #550 OAK HARBOR, WA 98277 | % Ownership: | 100.0000000000% |
| | | Exemptions: | |
Taxes and Assessment Details
Values
| (+) Improvement Homesite Value: | + | $0 | |
| (+) Improvement Non-Homesite Value: | + | $395,316 | |
| (+) Land Homesite Value: | + | $0 | |
| (+) Land Non-Homesite Value: | + | $190,000 | |
| (+) Curr Use (HS): | + | $0 | $0 |
| (+) Curr Use (NHS): | + | $0 | $0 |
| | | -------------------------- | |
| (=) Market Value: | = | $585,316 | |
| (–) Productivity Loss: | – | $0 | |
| | | -------------------------- | |
| (=) Subtotal: | = | $585,316 | |
| (+) Senior Appraised Value: | + | $0 | |
| (+) Non-Senior Appraised Value: | + | $585,316 | |
| | | -------------------------- | |
| (=) Total Appraised Value: | = | $585,316 | |
| (–) Senior Exemption Loss: | – | $0 | |
| (–) Exemption Loss: | – | $0 | |
| | | -------------------------- | |
| (=) Taxable Value: | = | $585,316 | |
Taxing Jurisdiction
| Owner: | MAN, GEORGE K | | |
| % Ownership: | 100.0000000000% | | |
| Total Value: | $585,316 | | |
| Tax Area: | 100 - APPRAISER-OH Schl Dist, in OH |
| CF | Conservation Futures | 0.0316035091 | $585,316 | $585,316 | $18.50 | | |
| CEM1 | Cemetery #1 | 0.0040320932 | $585,316 | $585,316 | $2.36 | | |
| COH | City of Oak Harbor | 2.3001546061 | $585,316 | $585,316 | $1,346.32 | | |
| OAKBOND | City of Oak Harbor BOND | 0.1926904192 | $585,316 | $585,316 | $112.78 | | |
| HOBOND | Hospital BOND | 0.1910887512 | $585,316 | $585,316 | $111.85 | | |
| HOGEN | Hospital GEN | 0.3902502903 | $585,316 | $585,316 | $228.42 | | |
| CE | County Current Expense | 0.3708482477 | $585,316 | $585,316 | $217.06 | | |
| ISLANDEMS | Hospital GEN (EMS) | 0.5000000000 | $585,316 | $585,316 | $292.66 | | |
| LIB | Library Sno-Isle GEN | 0.3153421757 | $585,316 | $585,316 | $184.57 | | |
| NWHIDPRMT | P & R N Whidbey GEN | 0.2004466701 | $585,316 | $585,316 | $117.32 | | |
| SCH201MO | School 201 Enrichment | 1.8559231640 | $585,316 | $585,316 | $1,086.30 | | |
| ST | State School | 1.3035497053 | $585,316 | $585,316 | $762.99 | | |
| ST2 | State School Part 2 | 0.8169543533 | $585,316 | $585,316 | $478.18 | | |
| | Total Tax Rate: | 8.4728839852 | | | | | |
| | | | | Taxes w/Current Exemptions: | $4,959.31 | | |
| | | | | Taxes w/o Exemptions: | $4,959.31 | | |
Improvement / Building
| Improvement #1: | RESIDENTIAL | State Code: | Y | 2518.5 sqft | Value: | $395,316 |
| Bathrooms: | 2.5 | Bedrooms: | 4 | | Ceiling: | DRYWALL PAINTED | Exterior Wall/Cover: | CEMENT FIBER | | Floor Covering: | HARDWOOD/CARP 20-80 | Floor Structure: | WOOD W/SUBFLOOR | | Foundation: | CONCRETE | Heating: | FHA GAS | | Interior Finish: | DRYWALL PAINT | Plumbing Fixture Cnt: | 12 | | Roof Slope: | 6" IN 12" | Roof Structure/Cover: | CJ ASPHALT |
|
| | Type | Description | Class CD | Sub Class CD | Year Built | Area |
| | BAS | BASE/MAIN FLOOR | 3 | 0 | 2005 | 1251.5 |
| | AGR | ATTACHED GARAGE | 3 | 0 | 2005 | 506.0 |
| | UPS | UPPER STORY | 3 | 0 | 2005 | 1267.0 |
| | OWP | OPEN WOOD PORCH W/STEPS | 3 | 0 | 2005 | 172.0 |
| | OWC | OPEN WOOD PORCH W/STEPS/ROOF/C | 3 | 0 | 2005 | 120.0 |
Sketch
Property Image
Land
| 1 | 14 | SQ (08001-12000) | 0.1900 | 8276.40 | 0.00 | 0.00 | 1.00 | $190,000 | $0 |
Roll Value History
| 2026 | N/A | N/A | N/A | N/A | N/A |
| 2025 | $395,316 | $190,000 | $0 | $585,316 | $585,316 |
| 2024 | $399,954 | $180,000 | $0 | $579,954 | $579,954 |
| 2023 | $381,405 | $190,000 | $0 | $571,405 | $571,405 |
| 2022 | $349,584 | $180,000 | $0 | $529,584 | $529,584 |
| 2021 | $307,640 | $120,000 | $0 | $427,640 | $427,640 |
| 2020 | $300,164 | $100,000 | $0 | $400,164 | $400,164 |
| 2019 | $233,208 | $150,000 | $0 | $383,208 | $383,208 |
| 2018 | $233,883 | $130,000 | $0 | $363,883 | $363,883 |
| 2017 | $239,899 | $110,000 | $0 | $349,899 | $349,899 |
| 2016 | $242,656 | $90,000 | $0 | $332,656 | $332,656 |
| 2015 | $245,413 | $70,000 | $0 | $315,413 | $315,413 |
| 2014 | $248,171 | $55,000 | $0 | $303,171 | $303,171 |
| 2013 | $250,928 | $55,000 | $0 | $305,928 | $305,928 |
| 2012 | $253,686 | $60,000 | $0 | $313,686 | $313,686 |
| 2011 | $264,753 | $50,000 | $0 | $314,753 | $314,753 |
| 2010 | $274,499 | $50,000 | $0 | $324,499 | $324,499 |
| 2009 | $283,018 | $60,000 | $0 | $343,018 | $343,018 |
| 2008 | $286,035 | $78,000 | $0 | $364,035 | $364,035 |
| 2007 | $289,042 | $78,000 | $0 | $367,042 | $367,042 |
Deed and Sales History
| 1 | 11/20/2023 | WD | Warranty Deed | CHARAPICH, JAMES M | MAN, GEORGE K | | | $622,000.00 | 58669 | 4567267 |
| 2 | 11/05/2012 | WD | Warranty Deed | HUNSAKER, BRADLEY N | CHARAPICH, JAMES M | | | $280,000.00 | 9414 | 4326992 |
| 3 | 05/12/2005 | WD | Warranty Deed | THOMPSON HOMEBUILDERS INC, | HUNSAKER, BRADLEY N | | | $325,900.00 | 52081 | 4133979 |
| 4 | 01/01/1900 | OTHER | Other - Misc. Documents | Unknown | THOMPSON HOMEBUILDERS INC, | | | $0.00 | 0 | 0 |
Payout Agreement
| No payout information available.. |