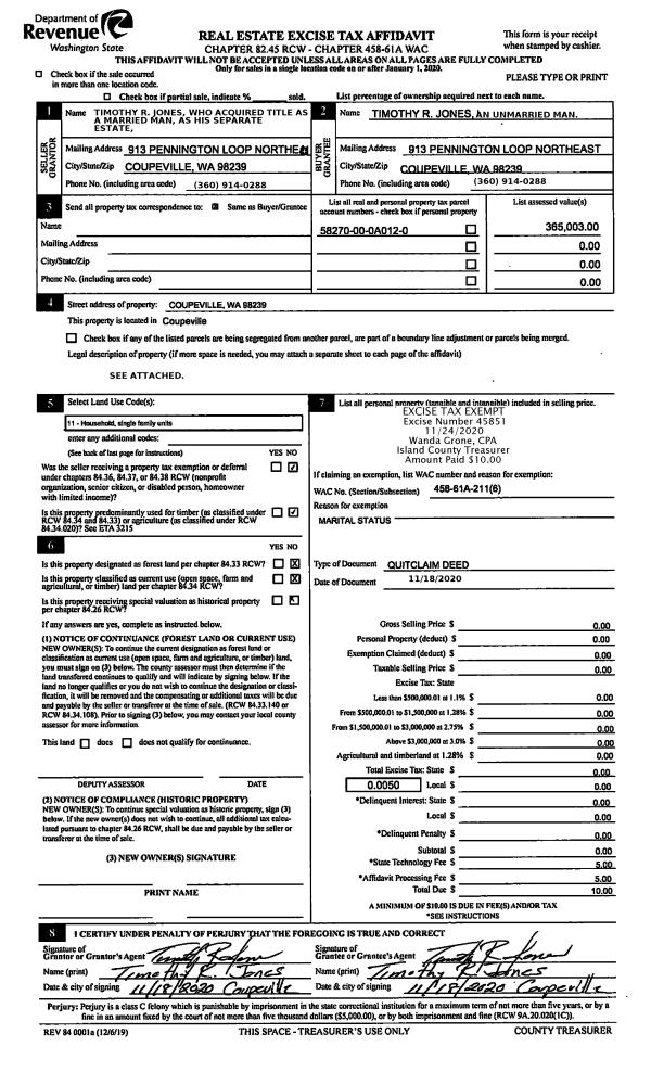
Property
Account |
| Property ID: | 807154 | Abbreviated Legal Description: | LOT 2 SP 244-05.23235.031-1980 V4 SP P144-145 AF# 4164144 |
| Geographic ID: | R23235-012-1610 | Agent Code: | |
| Type: | Real | | |
| Tax Area: | 519 - APPRAISER-Stan/Cam Schl Dist, vacant & 50 acres or less | Land Use Code | 91 |
| Open Space: | N | DFL | N |
| Historic Property: | N | Remodel Property: | N |
| Multi-Family Redevelopment: | N | | |
| Township: | 32 | Section: | 35 |
| Range: | R2 |
Location |
| Address: | 647 CARP LAKE RD CAMANO ISLAND, WA 98282 | Mapsco: | |
| Neighborhood: | North Camano | Map ID: | 575 |
| Neighborhood CD: | 06-C |
Owner |
| Name: | ANDERSON TTEE, ERIC A | Owner ID: | 294984 |
| Mailing Address: | ANNETTE M ANDERSON, TTEE PO BOX 1090 STANWOOD, WA 98292 | % Ownership: | 100.0000000000% |
| | | Exemptions: | |
Taxes and Assessment Details
Values
| (+) Improvement Homesite Value: | + | $0 | |
| (+) Improvement Non-Homesite Value: | + | $0 | |
| (+) Land Homesite Value: | + | $0 | |
| (+) Land Non-Homesite Value: | + | $270,000 | |
| (+) Curr Use (HS): | + | $0 | $0 |
| (+) Curr Use (NHS): | + | $0 | $0 |
| | | -------------------------- | |
| (=) Market Value: | = | $270,000 | |
| (–) Productivity Loss: | – | $0 | |
| | | -------------------------- | |
| (=) Subtotal: | = | $270,000 | |
| (+) Senior Appraised Value: | + | $0 | |
| (+) Non-Senior Appraised Value: | + | $270,000 | |
| | | -------------------------- | |
| (=) Total Appraised Value: | = | $270,000 | |
| (–) Senior Exemption Loss: | – | $0 | |
| (–) Exemption Loss: | – | $0 | |
| | | -------------------------- | |
| (=) Taxable Value: | = | $270,000 | |
Taxing Jurisdiction
| Owner: | ANDERSON TTEE, ERIC A | | |
| % Ownership: | 100.0000000000% | | |
| Total Value: | $270,000 | | |
| Tax Area: | 519 - APPRAISER-Stan/Cam Schl Dist, vacant & 50 acres or less |
| CF | Conservation Futures | 0.0316035091 | $270,000 | $270,000 | $8.53 | | |
| EMS1 | Fire & Rescue Dist #1 Camano GEN (EMS) | 0.3677864386 | $270,000 | $270,000 | $99.30 | | |
| CE | County Current Expense | 0.3708482477 | $270,000 | $270,000 | $100.13 | | |
| CR | County Roads | 0.4584763726 | $270,000 | $270,000 | $123.79 | | |
| LCIB | Library Sno-Isle BOND (Camano Island) | 0.0396325772 | $270,000 | $270,000 | $10.70 | | |
| LIB | Library Sno-Isle GEN | 0.3153421757 | $270,000 | $270,000 | $85.14 | | |
| SCH205_401 | School 205-401 Enrichment | 1.2698420524 | $270,000 | $270,000 | $342.86 | | |
| SCH205BOND | School 205-401 BOND | 0.9396497583 | $270,000 | $270,000 | $253.71 | | |
| ST | State School | 1.3035497053 | $270,000 | $270,000 | $351.96 | | |
| ST2 | State School Part 2 | 0.8169543533 | $270,000 | $270,000 | $220.58 | | |
| | Total Tax Rate: | 5.9136851902 | | | | | |
| | | | | Taxes w/Current Exemptions: | $1,596.70 | | |
| | | | | Taxes w/o Exemptions: | $1,596.70 | | |
Improvement / Building
Sketch
| No sketches available for this property. |
Property Image
Land
| 1 | 32 | AC (03.01-09.99) | 5.0100 | 0.00 | 0.00 | 0.00 | 1.00 | $270,000 | $0 |
Roll Value History
| 2026 | N/A | N/A | N/A | N/A | N/A |
| 2025 | $0 | $270,000 | $0 | $270,000 | $270,000 |
| 2024 | $0 | $250,000 | $0 | $250,000 | $250,000 |
| 2023 | $0 | $230,000 | $0 | $230,000 | $230,000 |
| 2022 | $0 | $290,000 | $0 | $290,000 | $290,000 |
| 2021 | $0 | $290,000 | $0 | $290,000 | $290,000 |
| 2020 | $0 | $220,000 | $0 | $220,000 | $220,000 |
| 2019 | $0 | $250,000 | $0 | $250,000 | $250,000 |
| 2018 | $0 | $250,000 | $0 | $250,000 | $250,000 |
| 2017 | $0 | $200,000 | $0 | $200,000 | $200,000 |
| 2016 | $0 | $150,000 | $0 | $150,000 | $150,000 |
| 2015 | $0 | $96,192 | $0 | $96,192 | $96,192 |
| 2014 | $0 | $96,192 | $0 | $96,192 | $96,192 |
| 2013 | $0 | $96,192 | $0 | $96,192 | $96,192 |
| 2012 | $0 | $96,192 | $0 | $96,192 | $96,192 |
| 2011 | $0 | $120,240 | $0 | $120,240 | $120,240 |
| 2010 | $0 | $120,240 | $0 | $120,240 | $120,240 |
Deed and Sales History
| 1 | 06/08/2020 | QCD | Quit Claim Deed | ANDERSON, ERIC | ANDERSON TTEE, ERIC A | | | $0.00 | 43608 | 4490247 |
| 2 | 06/23/2010 | QCD | Quit Claim Deed | ANDERSON DESIGN ARCHITECTS, | ANDERSON, ANNETTE | | | $0.00 | 1528 | 4275980 |
| 3 | 01/01/1900 | OTHER | Other - Misc. Documents | Unknown | ANDERSON DESIGN ARCHITECTS, | | | $0.00 | 0 | 0 |
Payout Agreement
| No payout information available.. |