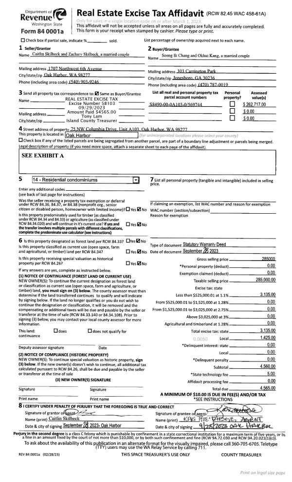
Property
Account |
| Property ID: | 807160 | Abbreviated Legal Description: | LOT 3 SP 375-04.23036.035-2900 & .105-2900 V4 SP P143 AF# 4164113 |
| Geographic ID: | R23036-034-2750 | Agent Code: | |
| Type: | Real | | |
| Tax Area: | 712 - APPRAISER-S Whid Schl Dist, outside Langley, improved, greater than 1 acre | Land Use Code | 11 |
| Open Space: | N | DFL | N |
| Historic Property: | N | Remodel Property: | N |
| Multi-Family Redevelopment: | N | | |
| Township: | 30 | Section: | 36 |
| Range: | R2 |
Location |
| Address: | 2230 GOSS LAKE RD FREELAND, WA 98249 | Mapsco: | |
| Neighborhood: | Cycle 3 | Map ID: | 446 |
| Neighborhood CD: | 3 |
Owner |
| Name: | STASIO, FRANK JOHN | Owner ID: | 310199 |
| Mailing Address: | PO BOX 686 FREELAND, WA 98249 | % Ownership: | 100.0000000000% |
| | | Exemptions: | |
Taxes and Assessment Details
Values
| (+) Improvement Homesite Value: | + | $0 | |
| (+) Improvement Non-Homesite Value: | + | $1,190 | |
| (+) Land Homesite Value: | + | $0 | |
| (+) Land Non-Homesite Value: | + | $210,000 | |
| (+) Curr Use (HS): | + | $0 | $0 |
| (+) Curr Use (NHS): | + | $0 | $0 |
| | | -------------------------- | |
| (=) Market Value: | = | $211,190 | |
| (–) Productivity Loss: | – | $0 | |
| | | -------------------------- | |
| (=) Subtotal: | = | $211,190 | |
| (+) Senior Appraised Value: | + | $0 | |
| (+) Non-Senior Appraised Value: | + | $211,190 | |
| | | -------------------------- | |
| (=) Total Appraised Value: | = | $211,190 | |
| (–) Senior Exemption Loss: | – | $0 | |
| (–) Exemption Loss: | – | $0 | |
| | | -------------------------- | |
| (=) Taxable Value: | = | $211,190 | |
Taxing Jurisdiction
| Owner: | STASIO, FRANK JOHN | | |
| % Ownership: | 100.0000000000% | | |
| Total Value: | $211,190 | | |
| Tax Area: | 712 - APPRAISER-S Whid Schl Dist, outside Langley, improved, greater than 1 acre |
| CF | Conservation Futures | 0.0316035091 | $211,190 | $211,190 | $6.67 | | |
| FIRE3 | Fire & Rescue Dist #3 S Whidbey GEN | 1.2004855531 | $211,190 | $211,190 | $253.53 | | |
| HOBOND | Hospital BOND | 0.1910887512 | $211,190 | $211,190 | $40.36 | | |
| HOGEN | Hospital GEN | 0.3902502903 | $211,190 | $211,190 | $82.42 | | |
| CE | County Current Expense | 0.3708482477 | $211,190 | $211,190 | $78.32 | | |
| CR | County Roads | 0.4584763726 | $211,190 | $211,190 | $96.83 | | |
| ISLANDEMS | Hospital GEN (EMS) | 0.5000000000 | $211,190 | $211,190 | $105.60 | | |
| LIB | Library Sno-Isle GEN | 0.3153421757 | $211,190 | $211,190 | $66.60 | | |
| PORTWHID | Port of S Whidbey GEN | 0.1094540357 | $211,190 | $211,190 | $23.12 | | |
| SCH206BOND | School 206 BOND | 0.3161759235 | $211,190 | $211,190 | $66.77 | | |
| SCH206MO | School 206 Enrichment | 0.4547169547 | $211,190 | $211,190 | $96.03 | | |
| ST | State School | 1.3035497053 | $211,190 | $211,190 | $275.30 | | |
| ST2 | State School Part 2 | 0.8169543533 | $211,190 | $211,190 | $172.53 | | |
| SWHIDPRBD | P & R S Whidbey BOND | 0.0152817568 | $211,190 | $211,190 | $3.23 | | |
| SWHIDPRBD2 | P & R S Whidbey BOND2 | 0.0138911264 | $211,190 | $211,190 | $2.93 | | |
| SWHIDPRMT | P & R S Whidbey GEN | 0.2053334452 | $211,190 | $211,190 | $43.36 | | |
| | Total Tax Rate: | 6.6934522006 | | | | | |
| | | | | Taxes w/Current Exemptions: | $1,413.60 | | |
| | | | | Taxes w/o Exemptions: | $1,413.60 | | |
Improvement / Building
| Improvement #1: | MISC | State Code: | Y | 0.0 sqft | Value: | $1,190 |
Sketch
| No sketches available for this property. |
Property Image
Land
| 1 | 32 | AC (03.01-09.99) | 4.7600 | 0.00 | 0.00 | 0.00 | 1.00 | $210,000 | $0 |
Roll Value History
| 2026 | N/A | N/A | N/A | N/A | N/A |
| 2025 | $1,190 | $210,000 | $0 | $211,190 | $211,190 |
| 2024 | $1,190 | $200,000 | $0 | $201,190 | $201,190 |
| 2023 | $1,190 | $180,000 | $0 | $181,190 | $181,190 |
| 2022 | $1,190 | $170,000 | $0 | $171,190 | $171,190 |
| 2021 | $1,190 | $135,000 | $0 | $136,190 | $136,190 |
| 2020 | $1,190 | $135,000 | $0 | $136,190 | $136,190 |
| 2019 | $1,190 | $135,000 | $0 | $136,190 | $136,190 |
| 2018 | $1,190 | $130,000 | $0 | $131,190 | $131,190 |
| 2017 | $1,190 | $110,000 | $0 | $111,190 | $111,190 |
| 2016 | $1,190 | $100,000 | $0 | $101,190 | $101,190 |
| 2015 | $1,190 | $100,000 | $0 | $101,190 | $101,190 |
| 2014 | $1,190 | $119,000 | $0 | $120,190 | $120,190 |
| 2013 | $1,190 | $128,520 | $0 | $129,710 | $129,710 |
| 2012 | $1,190 | $128,520 | $0 | $129,710 | $129,710 |
| 2011 | $1,190 | $128,520 | $0 | $129,710 | $129,710 |
| 2010 | $1,190 | $128,520 | $0 | $129,710 | $129,710 |
| 2009 | $1,247 | $185,640 | $0 | $186,887 | $186,887 |
| 2008 | $1,288 | $142,800 | $0 | $144,088 | $144,088 |
| 2007 | $0 | $0 | $0 | $143,231 | $143,231 |
Deed and Sales History
| 1 | 09/27/2023 | WD | Warranty Deed | HENNY, MARION F | STASIO, FRANK JOHN | | | $248,000.00 | 58097 | 4565161 |
| 2 | 04/02/2014 | WD | Warranty Deed | CLEAN MACHINE REBORN, LLC | HENNY, MARION F | | | $2,594.00 | 15024 | 4358306 |
| 3 | 10/30/2007 | WD | Warranty Deed | GREEN TEA NORTHWEST LLC, | CLEAN MACHINE REBORN, LLC, | | | $200,000.00 | 73609 | 4215289 |
| 4 | 01/01/1900 | OTHER | Other - Misc. Documents | Unknown | GREEN TEA NORTHWEST LLC, | | | $0.00 | 0 | 0 |
Payout Agreement
| No payout information available.. |