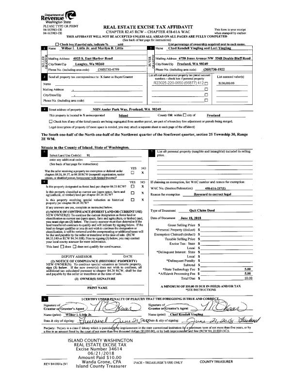
Property
Account |
| Property ID: | 807169 | Abbreviated Legal Description: | 1995 FLEETWOOD 14 X 66 VIN #ORFLR48A19938CP |
| Geographic ID: | M90150000027-2 | Agent Code: | |
| Type: | Mobile Home | | |
| Tax Area: | 110 - APPRAISER-OH Schl Dist, outside OH, improved & 1 acre or less | Land Use Code | 11 |
| Open Space: | N | DFL | N |
| Historic Property: | N | Remodel Property: | N |
| Multi-Family Redevelopment: | N | | |
| Township: | | Section: | |
| Range: | |
Location |
| Address: | 331 BOE RD OAK HARBOR, WA 98277 | Mapsco: | |
| Neighborhood: | Cycle 6 | Map ID: | |
| Neighborhood CD: | 6 |
Owner |
| Name: | LABELLE, RITA | Owner ID: | 285930 |
| Mailing Address: | EDWARD LABELLE 318 SILVERSPUR RD OAK HARBOR, WA 98277 | % Ownership: | 100.0000000000% |
| | | Exemptions: | |
Taxes and Assessment Details
Values
| (+) Improvement Homesite Value: | + | $0 | |
| (+) Improvement Non-Homesite Value: | + | $20,198 | |
| (+) Land Homesite Value: | + | $0 | |
| (+) Land Non-Homesite Value: | + | $0 | |
| (+) Curr Use (HS): | + | $0 | $0 |
| (+) Curr Use (NHS): | + | $0 | $0 |
| | | -------------------------- | |
| (=) Market Value: | = | $20,198 | |
| (–) Productivity Loss: | – | $0 | |
| | | -------------------------- | |
| (=) Subtotal: | = | $20,198 | |
| (+) Senior Appraised Value: | + | $0 | |
| (+) Non-Senior Appraised Value: | + | $20,198 | |
| | | -------------------------- | |
| (=) Total Appraised Value: | = | $20,198 | |
| (–) Senior Exemption Loss: | – | $0 | |
| (–) Exemption Loss: | – | $0 | |
| | | -------------------------- | |
| (=) Taxable Value: | = | $20,198 | |
Taxing Jurisdiction
| Owner: | LABELLE, RITA | | |
| % Ownership: | 100.0000000000% | | |
| Total Value: | $20,198 | | |
| Tax Area: | 110 - APPRAISER-OH Schl Dist, outside OH, improved & 1 acre or less |
| CF | Conservation Futures | 0.0316035091 | $20,198 | $20,198 | $0.64 | | |
| CEM1 | Cemetery #1 | 0.0040320932 | $20,198 | $20,198 | $0.08 | | |
| FIRE2 | Fire & Rescue Dist #2 N Whidbey GEN | 0.5475949600 | $20,198 | $20,198 | $11.06 | | |
| HOBOND | Hospital BOND | 0.1910887512 | $20,198 | $20,198 | $3.86 | | |
| HOGEN | Hospital GEN | 0.3902502903 | $20,198 | $20,198 | $7.88 | | |
| CE | County Current Expense | 0.3708482477 | $20,198 | $20,198 | $7.49 | | |
| CR | County Roads | 0.4584763726 | $20,198 | $20,198 | $9.26 | | |
| ISLANDEMS | Hospital GEN (EMS) | 0.5000000000 | $20,198 | $20,198 | $10.10 | | |
| LIB | Library Sno-Isle GEN | 0.3153421757 | $20,198 | $20,198 | $6.37 | | |
| NWHIDPRMT | P & R N Whidbey GEN | 0.2004466701 | $20,198 | $20,198 | $4.05 | | |
| SCH201MO | School 201 Enrichment | 1.8559231640 | $20,198 | $20,198 | $37.49 | | |
| ST | State School | 1.3035497053 | $20,198 | $20,198 | $26.33 | | |
| ST2 | State School Part 2 | 0.8169543533 | $20,198 | $20,198 | $16.50 | | |
| | Total Tax Rate: | 6.9861102925 | | | | | |
| | | | | Taxes w/Current Exemptions: | $141.11 | | |
| | | | | Taxes w/o Exemptions: | $141.11 | | |
Improvement / Building
| Improvement #1: | MANUFACTURED HOME | State Code: | Y | 924.0 sqft | Value: | $20,198 |
| Bathrooms: | 0 | Bedrooms: | 0 | | Ceiling: | PLASTER PAINTED | Cooling: | EVAP NO DUCT | | Exterior Wall/Cover: | VINYL | Floor Covering: | CARPET 100% | | Floor Structure: | SLAB ON GRADE | Foundation: | SLAB | | Heating: | FHA ELECTRIC | Interior Finish: | PLASTER | | Plumbing Fixture Cnt: | 9 | Roof Slope: | FLAT | | Roof Structure/Cover: | CJ ALUMINIUM HEAVY |   |   |
|
| | Type | Description | Class CD | Sub Class CD | Year Built | Area |
| | BAS | BASE/MAIN FLOOR | 3 | 0 | 1995 | 924.0 |
| | OWP | OPEN WOOD PORCH W/STEPS | 3 | 0 | 1995 | 132.0 |
Sketch
Property Image
Land
No land segments exist for this property.
Roll Value History
| 2026 | N/A | N/A | N/A | N/A | N/A |
| 2025 | $20,198 | $0 | $0 | $20,198 | $20,198 |
| 2024 | $20,932 | $0 | $0 | $20,932 | $20,932 |
| 2023 | $20,521 | $0 | $0 | $20,521 | $20,521 |
| 2022 | $14,403 | $0 | $0 | $14,403 | $14,403 |
| 2021 | $12,981 | $0 | $0 | $12,981 | $12,981 |
| 2020 | $13,266 | $0 | $0 | $13,266 | $13,266 |
| 2019 | $10,796 | $0 | $0 | $10,796 | $10,796 |
| 2018 | $11,144 | $0 | $0 | $11,144 | $11,144 |
| 2017 | $11,493 | $0 | $0 | $11,493 | $11,493 |
| 2016 | $11,757 | $0 | $0 | $11,757 | $11,757 |
| 2015 | $12,103 | $0 | $0 | $12,103 | $0 |
| 2014 | $12,448 | $0 | $0 | $12,448 | $0 |
| 2013 | $12,621 | $0 | $0 | $12,621 | $0 |
| 2012 | $12,967 | $0 | $0 | $12,967 | $0 |
| 2011 | $13,313 | $0 | $0 | $13,313 | $0 |
| 2010 | $13,626 | $0 | $0 | $13,626 | $0 |
| 2009 | $14,226 | $0 | $0 | $14,226 | $0 |
| 2008 | $14,599 | $0 | $0 | $14,599 | $0 |
| 2007 | $15,106 | $0 | $0 | $15,106 | $0 |
Deed and Sales History
| 1 | 07/09/2018 | MANHOME | Manufactured Home | M BOE FAMILY, LLC | LABELLE, RITA | | | $0.00 | 34917 | |
| 2 | 11/04/2016 | MANHOME | Manufactured Home | RICHARDS, CONNIE MAE | M BOE FAMILY, LLC | | | $6,000.00 | 28308 | |
Payout Agreement
| No payout information available.. |