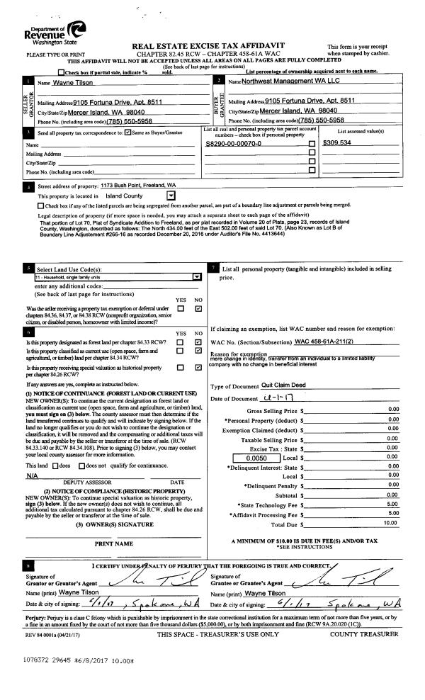
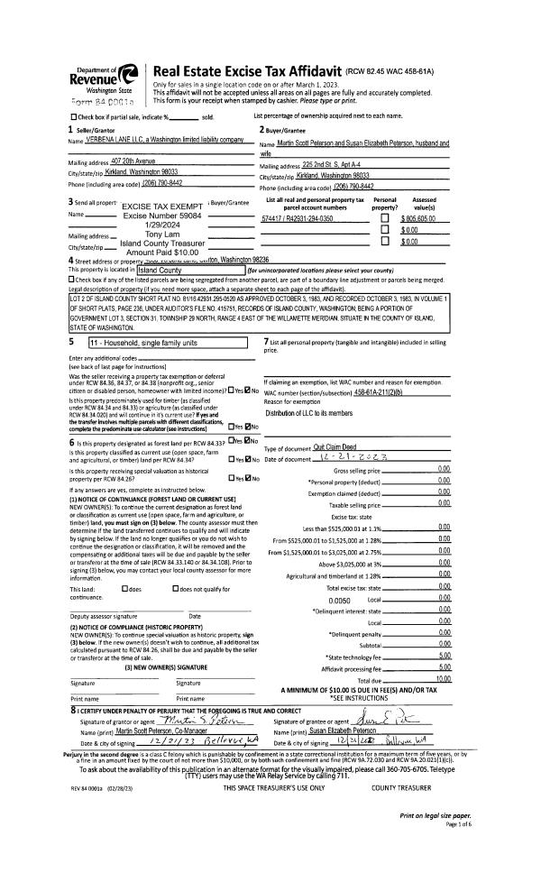
Property
Account |
| Property ID: | 807174 | Abbreviated Legal Description: | 2003 24X42 MARLETT VIN# HO21924 |
| Geographic ID: | M91750000031-1 | Agent Code: | |
| Type: | Mobile Home | | |
| Tax Area: | 100 - APPRAISER-OH Schl Dist, in OH | Land Use Code | 11 |
| Open Space: | N | DFL | N |
| Historic Property: | N | Remodel Property: | N |
| Multi-Family Redevelopment: | N | | |
| Township: | | Section: | |
| Range: | |
Location |
| Address: | 255 NE ERNST ST # 31 OAK HARBOR, WA 98277 | Mapsco: | |
| Neighborhood: | Cycle 1 | Map ID: | |
| Neighborhood CD: | 1 |
Owner |
| Name: | TEEL, MICHAEL T | Owner ID: | 280798 |
| Mailing Address: | BEVERLY A TEEL 225 NE ERNST ST #31 OAK HARBOR, WA 98277 | % Ownership: | 100.0000000000% |
| | | Exemptions: | |
Taxes and Assessment Details
Values
| (+) Improvement Homesite Value: | + | $0 | |
| (+) Improvement Non-Homesite Value: | + | $95,576 | |
| (+) Land Homesite Value: | + | $0 | |
| (+) Land Non-Homesite Value: | + | $0 | |
| (+) Curr Use (HS): | + | $0 | $0 |
| (+) Curr Use (NHS): | + | $0 | $0 |
| | | -------------------------- | |
| (=) Market Value: | = | $95,576 | |
| (–) Productivity Loss: | – | $0 | |
| | | -------------------------- | |
| (=) Subtotal: | = | $95,576 | |
| (+) Senior Appraised Value: | + | $0 | |
| (+) Non-Senior Appraised Value: | + | $95,576 | |
| | | -------------------------- | |
| (=) Total Appraised Value: | = | $95,576 | |
| (–) Senior Exemption Loss: | – | $0 | |
| (–) Exemption Loss: | – | $0 | |
| | | -------------------------- | |
| (=) Taxable Value: | = | $95,576 | |
Taxing Jurisdiction
| Owner: | TEEL, MICHAEL T | | |
| % Ownership: | 100.0000000000% | | |
| Total Value: | $95,576 | | |
| Tax Area: | 100 - APPRAISER-OH Schl Dist, in OH |
| CF | Conservation Futures | 0.0316035091 | $95,576 | $95,576 | $3.02 | | |
| CEM1 | Cemetery #1 | 0.0040320932 | $95,576 | $95,576 | $0.39 | | |
| COH | City of Oak Harbor | 2.3001546061 | $95,576 | $95,576 | $219.84 | | |
| OAKBOND | City of Oak Harbor BOND | 0.1926904192 | $95,576 | $95,576 | $18.42 | | |
| HOBOND | Hospital BOND | 0.1910887512 | $95,576 | $95,576 | $18.26 | | |
| HOGEN | Hospital GEN | 0.3902502903 | $95,576 | $95,576 | $37.30 | | |
| CE | County Current Expense | 0.3708482477 | $95,576 | $95,576 | $35.44 | | |
| ISLANDEMS | Hospital GEN (EMS) | 0.5000000000 | $95,576 | $95,576 | $47.79 | | |
| LIB | Library Sno-Isle GEN | 0.3153421757 | $95,576 | $95,576 | $30.14 | | |
| NWHIDPRMT | P & R N Whidbey GEN | 0.2004466701 | $95,576 | $95,576 | $19.16 | | |
| SCH201MO | School 201 Enrichment | 1.8559231640 | $95,576 | $95,576 | $177.38 | | |
| ST | State School | 1.3035497053 | $95,576 | $95,576 | $124.59 | | |
| ST2 | State School Part 2 | 0.8169543533 | $95,576 | $95,576 | $78.08 | | |
| | Total Tax Rate: | 8.4728839852 | | | | | |
| | | | | Taxes w/Current Exemptions: | $809.81 | | |
| | | | | Taxes w/o Exemptions: | $809.81 | | |
Improvement / Building
| Improvement #1: | MANUFACTURED HOME | State Code: | Y | 988.0 sqft | Value: | $95,576 |
| Bathrooms: | 0 | Bedrooms: | 0 | | Ceiling: | PLASTER PAINTED | Cooling: | EVAP NO DUCT | | Exterior Wall/Cover: | VINYL | Floor Covering: | CARPET 100% | | Floor Structure: | SLAB ON GRADE | Foundation: | SLAB | | Heating: | FHA ELECTRIC | Interior Finish: | PLASTER | | Plumbing Fixture Cnt: | 1 | Roof Slope: | FLAT | | Roof Structure/Cover: | CJ ALUMINIUM HEAVY |   |   |
|
| | Type | Description | Class CD | Sub Class CD | Year Built | Area |
| | BAS | BASE/MAIN FLOOR | 4 | 0 | 2003 | 988.0 |
| | OWC | OPEN WOOD PORCH W/STEPS/ROOF/C | 4 | 0 | 2003 | 60.0 |
| | OWP | OPEN WOOD PORCH W/STEPS | 4 | 0 | 2003 | 32.0 |
Sketch
Property Image
Land
No land segments exist for this property.
Roll Value History
| 2026 | N/A | N/A | N/A | N/A | N/A |
| 2025 | $95,576 | $0 | $0 | $95,576 | $95,576 |
| 2024 | $98,194 | $0 | $0 | $98,194 | $98,194 |
| 2023 | $64,966 | $0 | $0 | $64,966 | $64,966 |
| 2022 | $60,511 | $0 | $0 | $60,511 | $60,511 |
| 2021 | $53,348 | $0 | $0 | $53,348 | $53,348 |
| 2020 | $53,212 | $0 | $0 | $53,212 | $53,212 |
| 2019 | $43,031 | $0 | $0 | $43,031 | $43,031 |
| 2018 | $44,149 | $0 | $0 | $44,149 | $44,149 |
| 2017 | $43,989 | $0 | $0 | $43,989 | $43,989 |
| 2016 | $45,075 | $0 | $0 | $45,075 | $0 |
| 2015 | $46,162 | $0 | $0 | $46,162 | $0 |
| 2014 | $46,705 | $0 | $0 | $46,705 | $0 |
| 2013 | $47,248 | $0 | $0 | $47,248 | $0 |
| 2012 | $48,334 | $0 | $0 | $48,334 | $0 |
| 2011 | $50,755 | $0 | $0 | $50,755 | $0 |
| 2010 | $52,173 | $0 | $0 | $52,173 | $0 |
| 2009 | $55,001 | $0 | $0 | $55,001 | $55,001 |
| 2008 | $56,909 | $0 | $0 | $56,909 | $56,909 |
| 2007 | $58,164 | $0 | $0 | $58,164 | $58,164 |
Deed and Sales History
| 1 | 06/15/2017 | MANHOME | Manufactured Home | WHITCOMB, RUSSELL W | TEEL, MICHAEL T | | | $40,500.00 | 29774 | |
| 2 | 07/06/2010 | OTHER | Other - Misc. Documents | LEBLANC, JOSEPH M | WHITCOMB, RUSSELL W | | | $30,000.00 | 1793 | 0 |
| 3 | 10/20/2006 | OTHER | Other - Misc. Documents | WILBORG, MARGARET M | LEBLANC, JOSEPH M | | | $79,900.00 | 64659 | 0 |
| 4 | 09/01/2003 | OTHER | Other - Misc. Documents | Unknown | , | | | $65,000.00 | 70976 | 0 |
| 5 | 01/01/1900 | OTHER | Other - Misc. Documents | , | WILBORG, MARGARET M | | | $0.00 | 0 | 0 |
Payout Agreement
| No payout information available.. |