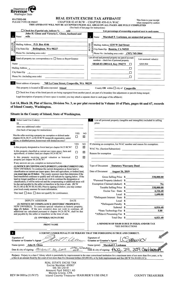
Property
Account |
| Property ID: | 807193 | Abbreviated Legal Description: | LOT 4 SP 328-99.32927.065-1800 V4 SP P148-149 AF# 4165095 |
| Geographic ID: | R32927-034-1500 | Agent Code: | |
| Type: | Real | | |
| Tax Area: | 712 - APPRAISER-S Whid Schl Dist, outside Langley, improved, greater than 1 acre | Land Use Code | 11 |
| Open Space: | N | DFL | N |
| Historic Property: | N | Remodel Property: | N |
| Multi-Family Redevelopment: | N | | |
| Township: | 29 | Section: | 27 |
| Range: | R3 |
Location |
| Address: | 3610 LOG CABIN RD CLINTON, WA 98236 | Mapsco: | |
| Neighborhood: | Cycle 4 | Map ID: | 820 |
| Neighborhood CD: | 4 |
Owner |
| Name: | EGENES, DARIN | Owner ID: | 315011 |
| Mailing Address: | LISA EGENES 18802 FIRLANDS WY N SHORELINE, WA 98133 | % Ownership: | 100.0000000000% |
| | | Exemptions: | |
Taxes and Assessment Details
Values
| (+) Improvement Homesite Value: | + | $0 | |
| (+) Improvement Non-Homesite Value: | + | $420,772 | |
| (+) Land Homesite Value: | + | $0 | |
| (+) Land Non-Homesite Value: | + | $370,000 | |
| (+) Curr Use (HS): | + | $0 | $0 |
| (+) Curr Use (NHS): | + | $0 | $0 |
| | | -------------------------- | |
| (=) Market Value: | = | $790,772 | |
| (–) Productivity Loss: | – | $0 | |
| | | -------------------------- | |
| (=) Subtotal: | = | $790,772 | |
| (+) Senior Appraised Value: | + | $0 | |
| (+) Non-Senior Appraised Value: | + | $790,772 | |
| | | -------------------------- | |
| (=) Total Appraised Value: | = | $790,772 | |
| (–) Senior Exemption Loss: | – | $0 | |
| (–) Exemption Loss: | – | $0 | |
| | | -------------------------- | |
| (=) Taxable Value: | = | $790,772 | |
Taxing Jurisdiction
| Owner: | EGENES, DARIN | | |
| % Ownership: | 100.0000000000% | | |
| Total Value: | $790,772 | | |
| Tax Area: | 712 - APPRAISER-S Whid Schl Dist, outside Langley, improved, greater than 1 acre |
| CF | Conservation Futures | 0.0316035091 | $790,772 | $790,772 | $24.99 | | |
| FIRE3 | Fire & Rescue Dist #3 S Whidbey GEN | 1.2004855531 | $790,772 | $790,772 | $949.31 | | |
| HOBOND | Hospital BOND | 0.1910887512 | $790,772 | $790,772 | $151.11 | | |
| HOGEN | Hospital GEN | 0.3902502903 | $790,772 | $790,772 | $308.60 | | |
| CE | County Current Expense | 0.3708482477 | $790,772 | $790,772 | $293.26 | | |
| CR | County Roads | 0.4584763726 | $790,772 | $790,772 | $362.55 | | |
| ISLANDEMS | Hospital GEN (EMS) | 0.5000000000 | $790,772 | $790,772 | $395.39 | | |
| LIB | Library Sno-Isle GEN | 0.3153421757 | $790,772 | $790,772 | $249.36 | | |
| PORTWHID | Port of S Whidbey GEN | 0.1094540357 | $790,772 | $790,772 | $86.55 | | |
| SCH206BOND | School 206 BOND | 0.3161759235 | $790,772 | $790,772 | $250.02 | | |
| SCH206MO | School 206 Enrichment | 0.4547169547 | $790,772 | $790,772 | $359.58 | | |
| ST | State School | 1.3035497053 | $790,772 | $790,772 | $1,030.81 | | |
| ST2 | State School Part 2 | 0.8169543533 | $790,772 | $790,772 | $646.02 | | |
| SWHIDPRBD | P & R S Whidbey BOND | 0.0152817568 | $790,772 | $790,772 | $12.08 | | |
| SWHIDPRBD2 | P & R S Whidbey BOND2 | 0.0138911264 | $790,772 | $790,772 | $10.98 | | |
| SWHIDPRMT | P & R S Whidbey GEN | 0.2053334452 | $790,772 | $790,772 | $162.37 | | |
| | Total Tax Rate: | 6.6934522006 | | | | | |
| | | | | Taxes w/Current Exemptions: | $5,292.98 | | |
| | | | | Taxes w/o Exemptions: | $5,292.98 | | |
Improvement / Building
| Improvement #1: | RESIDENTIAL | State Code: | Y | 2152.4 sqft | Value: | $420,772 |
| Bathrooms: | 2.5 | Bedrooms: | 2 | | Ceiling: | DRYWALL PAINTED | Cooling: | HEAT PUMP/CONV/V | | Exterior Wall/Cover: | PLY/HARDBOARD T-111 | Floor Covering: | CARPET/VINYL 60-40 | | Floor Structure: | WOOD W/SUBFLOOR | Foundation: | CONCRETE | | Interior Finish: | DRYWALL PAINT | Plumbing Fixture Cnt: | 13 | | Roof Slope: | 6" IN 12" | Roof Structure/Cover: | CJ ASPHALT |
|
| | Type | Description | Class CD | Sub Class CD | Year Built | Area |
| | BAS | BASE/MAIN FLOOR | 3 | 0 | 2018 | 2152.4 |
| | AGR | ATTACHED GARAGE | 3 | 0 | 2018 | 484.0 |
| | OWC | OPEN WOOD PORCH W/STEPS/ROOF/C | 3 | 0 | 2018 | 187.4 |
| | OWC | OPEN WOOD PORCH W/STEPS/ROOF/C | 3 | 0 | 2018 | 94.5 |
| | OWP | OPEN WOOD PORCH W/STEPS | 3 | 0 | 2018 | 396.3 |
Sketch
Property Image
Land
| 1 | 32 | AC (03.01-09.99) | 3.4500 | 150282.00 | 0.00 | 0.00 | 1.00 | $251,800 | $0 |
| 2 | 32 | AC (03.01-09.99) | 1.6200 | 70567.20 | 0.00 | 0.00 | 1.00 | $118,200 | $0 |
Roll Value History
| 2026 | N/A | N/A | N/A | N/A | N/A |
| 2025 | $420,772 | $370,000 | $0 | $790,772 | $790,772 |
| 2024 | $424,192 | $350,000 | $0 | $774,192 | $774,192 |
| 2023 | $427,613 | $280,000 | $233 | $618,379 | $618,379 |
| 2022 | $390,306 | $280,000 | $0 | $670,306 | $670,306 |
| 2021 | $342,089 | $230,000 | $0 | $572,089 | $572,089 |
| 2020 | $332,791 | $190,000 | $0 | $522,791 | $522,791 |
| 2019 | $258,150 | $250,000 | $0 | $508,150 | $508,150 |
| 2018 | $53,920 | $130,000 | $0 | $183,920 | $183,920 |
| 2017 | $0 | $130,000 | $0 | $130,000 | $130,000 |
| 2016 | $0 | $130,000 | $0 | $130,000 | $130,000 |
| 2015 | $0 | $100,000 | $0 | $100,000 | $100,000 |
| 2014 | $0 | $116,357 | $0 | $116,357 | $116,357 |
| 2013 | $0 | $116,357 | $0 | $116,357 | $116,357 |
| 2012 | $0 | $116,357 | $0 | $116,357 | $116,357 |
| 2011 | $0 | $136,890 | $0 | $136,890 | $136,890 |
| 2010 | $0 | $136,890 | $0 | $136,890 | $136,890 |
| 2009 | $0 | $172,380 | $0 | $172,380 | $172,380 |
| 2008 | $0 | $172,380 | $0 | $172,380 | $172,380 |
Deed and Sales History
| 1 | 12/26/2024 | WD | Warranty Deed | CUNEO, CHRISTOPHER | EGENES, DARIN | | | $840,000.00 | 62214 | 4580836 |
| 2 | 11/23/2016 | TRUSTEED | Trustee's Deed | CUNEO CO TRUSTEE, EDWARD A | CUNEO, CHRISTOPHER | | | $0.00 | 27094 | 4412289 |
| 3 | 09/22/2014 | WD | Warranty Deed | KEY, EDDIE C | CUNEO CO TRUSTEE, EDWARD A | | | $150,000.00 | 16932 | 4366035 |
| 4 | 10/30/2007 | QCD | Quit Claim Deed | KEY ET AL, EDDIE C | KEY, EDDIE C | | | $0.00 | 73764 | 4216312 |
Payout Agreement
| No payout information available.. |