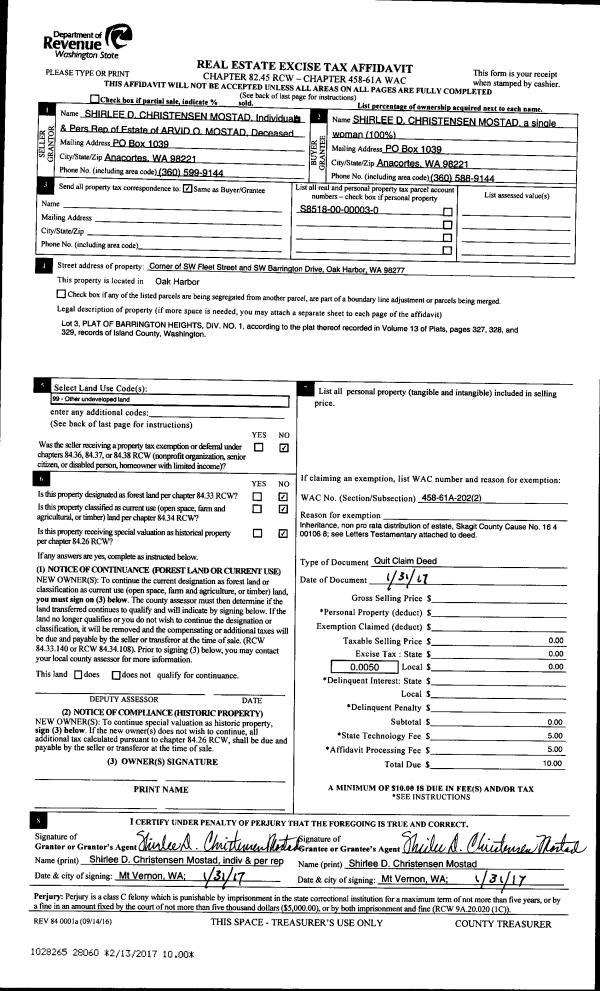
Property
Account |
| Property ID: | 807230 | Abbreviated Legal Description: | LOT 2 SP 127-04.23329.316-5100 V4 SP P129 AF# 4158095 |
| Geographic ID: | R23329-341-5120 | Agent Code: | |
| Type: | Real | | |
| Tax Area: | 112 - APPRAISER-OH Schl Dist, outside OH, improved, greater than 1 acre | Land Use Code | 11 |
| Open Space: | N | DFL | N |
| Historic Property: | N | Remodel Property: | N |
| Multi-Family Redevelopment: | N | | |
| Township: | 33 | Section: | 29 |
| Range: | R2 |
Location |
| Address: | 784 CARNATION LN OAK HARBOR, WA 98277 | Mapsco: | |
| Neighborhood: | Cycle 6 | Map ID: | 638 |
| Neighborhood CD: | 6 |
Owner |
| Name: | BIERBOWER TTEE, WILLIAM B | Owner ID: | 289797 |
| Mailing Address: | ELISABETH B BIERBOWER 784 CARNATION LN OAK HARBOR, WA 98277 | % Ownership: | 100.0000000000% |
| | | Exemptions: | |
Taxes and Assessment Details
Values
| (+) Improvement Homesite Value: | + | $0 | |
| (+) Improvement Non-Homesite Value: | + | $602,174 | |
| (+) Land Homesite Value: | + | $0 | |
| (+) Land Non-Homesite Value: | + | $300,000 | |
| (+) Curr Use (HS): | + | $0 | $0 |
| (+) Curr Use (NHS): | + | $0 | $0 |
| | | -------------------------- | |
| (=) Market Value: | = | $902,174 | |
| (–) Productivity Loss: | – | $0 | |
| | | -------------------------- | |
| (=) Subtotal: | = | $902,174 | |
| (+) Senior Appraised Value: | + | $0 | |
| (+) Non-Senior Appraised Value: | + | $902,174 | |
| | | -------------------------- | |
| (=) Total Appraised Value: | = | $902,174 | |
| (–) Senior Exemption Loss: | – | $0 | |
| (–) Exemption Loss: | – | $0 | |
| | | -------------------------- | |
| (=) Taxable Value: | = | $902,174 | |
Taxing Jurisdiction
| Owner: | BIERBOWER TTEE, WILLIAM B | | |
| % Ownership: | 100.0000000000% | | |
| Total Value: | $902,174 | | |
| Tax Area: | 112 - APPRAISER-OH Schl Dist, outside OH, improved, greater than 1 acre |
| CF | Conservation Futures | 0.0316035091 | $902,174 | $902,174 | $28.51 | | |
| CEM1 | Cemetery #1 | 0.0040320932 | $902,174 | $902,174 | $3.64 | | |
| FIRE2 | Fire & Rescue Dist #2 N Whidbey GEN | 0.5475949600 | $902,174 | $902,174 | $494.03 | | |
| HOBOND | Hospital BOND | 0.1910887512 | $902,174 | $902,174 | $172.40 | | |
| HOGEN | Hospital GEN | 0.3902502903 | $902,174 | $902,174 | $352.07 | | |
| CE | County Current Expense | 0.3708482477 | $902,174 | $902,174 | $334.57 | | |
| CR | County Roads | 0.4584763726 | $902,174 | $902,174 | $413.63 | | |
| ISLANDEMS | Hospital GEN (EMS) | 0.5000000000 | $902,174 | $902,174 | $451.09 | | |
| LIB | Library Sno-Isle GEN | 0.3153421757 | $902,174 | $902,174 | $284.49 | | |
| NWHIDPRMT | P & R N Whidbey GEN | 0.2004466701 | $902,174 | $902,174 | $180.84 | | |
| SCH201MO | School 201 Enrichment | 1.8559231640 | $902,174 | $902,174 | $1,674.37 | | |
| ST | State School | 1.3035497053 | $902,174 | $902,174 | $1,176.03 | | |
| ST2 | State School Part 2 | 0.8169543533 | $902,174 | $902,174 | $737.03 | | |
| | Total Tax Rate: | 6.9861102925 | | | | | |
| | | | | Taxes w/Current Exemptions: | $6,302.70 | | |
| | | | | Taxes w/o Exemptions: | $6,302.70 | | |
Improvement / Building
| Improvement #1: | RESIDENTIAL | State Code: | Y | 2397.0 sqft | Value: | $602,174 |
| Bathrooms: | 2.5 | Bedrooms: | 3 | | Ceiling: | DRYWALL PAINTED | Cooling: | HEAT PUMP/CONV/V | | Exterior Wall/Cover: | STUCCO | Floor Covering: | HARDWOOD/CARP 60-40 | | Floor Structure: | WOOD W/SUBFLOOR | Foundation: | CONCRETE | | Interior Finish: | DRYWALL PAINT | Plumbing Fixture Cnt: | 12 | | Roof Slope: | 8" IN 12" | Roof Structure/Cover: | CJ ASPHALT |
|
| | Type | Description | Class CD | Sub Class CD | Year Built | Area |
| | BAS | BASE/MAIN FLOOR | 4 | 0 | 2006 | 2397.0 |
| | AGR | ATTACHED GARAGE | 4 | 0 | 2006 | 768.0 |
| | OWP | OPEN WOOD PORCH W/STEPS | 4 | 0 | 2006 | 140.0 |
| | OWC | OPEN WOOD PORCH W/STEPS/ROOF/C | 4 | 0 | 2006 | 56.0 |
| | ENP | ENCLOSED PORCH | 4 | 0 | 2006 | 224.0 |
| | UTY | STORAGE/UTILITY | 4 | 0 | 2006 | 1260.0 |
| | DGR | DETACHED GARAGE | 4 | 0 | 2006 | 390.0 |
Sketch
Property Image
Land
| 1 | 32 | AC (03.01-09.99) | 8.6000 | 374616.00 | 0.00 | 0.00 | 1.00 | $300,000 | $0 |
Roll Value History
| 2026 | N/A | N/A | N/A | N/A | N/A |
| 2025 | $602,174 | $300,000 | $0 | $902,174 | $902,174 |
| 2024 | $608,769 | $280,000 | $0 | $888,769 | $888,769 |
| 2023 | $615,362 | $270,000 | $0 | $885,362 | $885,362 |
| 2022 | $523,318 | $240,000 | $0 | $763,318 | $763,318 |
| 2021 | $463,688 | $160,000 | $0 | $623,688 | $623,688 |
| 2020 | $452,938 | $140,000 | $0 | $592,938 | $592,938 |
| 2019 | $345,379 | $200,000 | $0 | $545,379 | $545,379 |
| 2018 | $346,291 | $170,000 | $0 | $516,291 | $516,291 |
| 2017 | $348,116 | $150,000 | $0 | $498,116 | $498,116 |
| 2016 | $346,000 | $140,000 | $0 | $486,000 | $486,000 |
| 2015 | $349,641 | $155,000 | $0 | $504,641 | $504,641 |
| 2014 | $353,281 | $146,200 | $0 | $499,481 | $499,481 |
| 2013 | $356,922 | $146,200 | $0 | $503,122 | $503,122 |
| 2012 | $360,561 | $77,400 | $0 | $437,961 | $437,961 |
| 2011 | $364,202 | $86,000 | $0 | $450,202 | $450,202 |
| 2010 | $376,328 | $86,000 | $0 | $462,328 | $462,328 |
| 2009 | $391,407 | $189,200 | $0 | $580,607 | $580,607 |
| 2008 | $399,267 | $154,800 | $0 | $554,067 | $554,067 |
| 2007 | $24,505 | $150,534 | $0 | $175,039 | $175,039 |
Deed and Sales History
| 1 | 04/18/2019 | QCD | Quit Claim Deed | WILLIAM B BIERBOWER | BIERBOWER TTEE, WILLIAM B | | | $0.00 | 38326 | 4462520 |
| 2 | 01/01/1900 | OTHER | Other - Misc. Documents | Unknown | WILLIAM B BIERBOWER, | | | $0.00 | 0 | 0 |
Payout Agreement
| No payout information available.. |