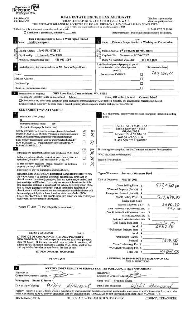
Property
Account |
| Property ID: | 807232 | Abbreviated Legal Description: | LOT 2 SP 396-03.33031.344-1140 V4 SP P125 & 126 AF# 4154056 |
| Geographic ID: | R33031-391-1150 | Agent Code: | |
| Type: | Real | | |
| Tax Area: | 712 - APPRAISER-S Whid Schl Dist, outside Langley, improved, greater than 1 acre | Land Use Code | 11 |
| Open Space: | N | DFL | N |
| Historic Property: | N | Remodel Property: | N |
| Multi-Family Redevelopment: | N | | |
| Township: | 30 | Section: | 31 |
| Range: | R3 |
Location |
| Address: | 4521 PINTAIL RD LANGLEY, WA 98260 | Mapsco: | |
| Neighborhood: | Cycle 4 | Map ID: | 902 |
| Neighborhood CD: | 4 |
Owner |
| Name: | DORSH, JOHN | Owner ID: | 198665 |
| Mailing Address: | HELEN DORSH PO BOX 682 CLINTON, WA 98236-0682 | % Ownership: | 100.0000000000% |
| | | Exemptions: | |
Taxes and Assessment Details
Values
| (+) Improvement Homesite Value: | + | $0 | |
| (+) Improvement Non-Homesite Value: | + | $380,277 | |
| (+) Land Homesite Value: | + | $0 | |
| (+) Land Non-Homesite Value: | + | $380,000 | |
| (+) Curr Use (HS): | + | $0 | $0 |
| (+) Curr Use (NHS): | + | $0 | $0 |
| | | -------------------------- | |
| (=) Market Value: | = | $760,277 | |
| (–) Productivity Loss: | – | $0 | |
| | | -------------------------- | |
| (=) Subtotal: | = | $760,277 | |
| (+) Senior Appraised Value: | + | $0 | |
| (+) Non-Senior Appraised Value: | + | $760,277 | |
| | | -------------------------- | |
| (=) Total Appraised Value: | = | $760,277 | |
| (–) Senior Exemption Loss: | – | $0 | |
| (–) Exemption Loss: | – | $0 | |
| | | -------------------------- | |
| (=) Taxable Value: | = | $760,277 | |
Taxing Jurisdiction
| Owner: | DORSH, JOHN | | |
| % Ownership: | 100.0000000000% | | |
| Total Value: | $760,277 | | |
| Tax Area: | 712 - APPRAISER-S Whid Schl Dist, outside Langley, improved, greater than 1 acre |
| CF | Conservation Futures | 0.0316035091 | $760,277 | $760,277 | $24.03 | | |
| FIRE3 | Fire & Rescue Dist #3 S Whidbey GEN | 1.2004855531 | $760,277 | $760,277 | $912.70 | | |
| HOBOND | Hospital BOND | 0.1910887512 | $760,277 | $760,277 | $145.28 | | |
| HOGEN | Hospital GEN | 0.3902502903 | $760,277 | $760,277 | $296.70 | | |
| CE | County Current Expense | 0.3708482477 | $760,277 | $760,277 | $281.95 | | |
| CR | County Roads | 0.4584763726 | $760,277 | $760,277 | $348.57 | | |
| ISLANDEMS | Hospital GEN (EMS) | 0.5000000000 | $760,277 | $760,277 | $380.14 | | |
| LIB | Library Sno-Isle GEN | 0.3153421757 | $760,277 | $760,277 | $239.75 | | |
| PORTWHID | Port of S Whidbey GEN | 0.1094540357 | $760,277 | $760,277 | $83.22 | | |
| SCH206BOND | School 206 BOND | 0.3161759235 | $760,277 | $760,277 | $240.38 | | |
| SCH206MO | School 206 Enrichment | 0.4547169547 | $760,277 | $760,277 | $345.71 | | |
| ST | State School | 1.3035497053 | $760,277 | $760,277 | $991.06 | | |
| ST2 | State School Part 2 | 0.8169543533 | $760,277 | $760,277 | $621.11 | | |
| SWHIDPRBD | P & R S Whidbey BOND | 0.0152817568 | $760,277 | $760,277 | $11.62 | | |
| SWHIDPRBD2 | P & R S Whidbey BOND2 | 0.0138911264 | $760,277 | $760,277 | $10.56 | | |
| SWHIDPRMT | P & R S Whidbey GEN | 0.2053334452 | $760,277 | $760,277 | $156.11 | | |
| | Total Tax Rate: | 6.6934522006 | | | | | |
| | | | | Taxes w/Current Exemptions: | $5,088.89 | | |
| | | | | Taxes w/o Exemptions: | $5,088.89 | | |
Improvement / Building
| Improvement #1: | RESIDENTIAL | State Code: | Y | 1968.8 sqft | Value: | $380,277 |
| Bathrooms: | 2 | Bedrooms: | 3 | | Ceiling: | DRYWALL PAINTED | Exterior Wall/Cover: | CEMENT FIBER | | Floor Covering: | CARPET/VINYL 80-20 | Floor Structure: | WOOD W/SUBFLOOR | | Foundation: | CONCRETE | Heating: | FHA ELECTRIC | | Interior Finish: | DRYWALL PAINT | Plumbing Fixture Cnt: | 11 | | Roof Slope: | 4" IN 12" | Roof Structure/Cover: | CJ ASPHALT |
|
| | Type | Description | Class CD | Sub Class CD | Year Built | Area |
| | BAS | BASE/MAIN FLOOR | 3 | 0 | 2006 | 1968.8 |
| | AGR | ATTACHED GARAGE | 3 | 0 | 2006 | 630.3 |
| | OP3 | OPEN PORCH W/ROOF | 3 | 0 | 2006 | 231.0 |
| | UTY | STORAGE/UTILITY | 3 | 0 | 2006 | 80.0 |
| | OWR | OPEN WOOD PORCH W/STEPS/ROOF | 3 | 0 | 2006 | 120.0 |
| | DGR | DETACHED GARAGE | 3 | 0 | 2006 | 1360.0 |
Sketch
Property Image
Land
| 1 | 32 | AC (03.01-09.99) | 4.9000 | 0.00 | 0.00 | 0.00 | 1.00 | $380,000 | $0 |
Roll Value History
| 2026 | N/A | N/A | N/A | N/A | N/A |
| 2025 | $380,277 | $380,000 | $0 | $760,277 | $760,277 |
| 2024 | $384,737 | $350,000 | $0 | $734,737 | $734,737 |
| 2023 | $389,198 | $330,000 | $0 | $719,198 | $719,198 |
| 2022 | $356,462 | $290,000 | $0 | $646,462 | $646,462 |
| 2021 | $313,480 | $230,000 | $0 | $543,480 | $543,480 |
| 2020 | $298,548 | $190,000 | $0 | $488,548 | $488,548 |
| 2019 | $223,523 | $250,000 | $0 | $473,523 | $473,523 |
| 2018 | $224,147 | $210,000 | $0 | $434,147 | $434,147 |
| 2017 | $225,346 | $190,000 | $0 | $415,346 | $415,346 |
| 2016 | $227,849 | $135,000 | $0 | $362,849 | $362,849 |
| 2015 | $230,351 | $135,000 | $0 | $365,351 | $365,351 |
| 2014 | $238,405 | $132,300 | $0 | $370,705 | $370,705 |
| 2013 | $240,488 | $132,300 | $0 | $372,788 | $372,788 |
| 2012 | $242,571 | $132,300 | $0 | $374,871 | $374,871 |
| 2011 | $244,654 | $132,300 | $0 | $376,954 | $376,954 |
| 2010 | $251,186 | $132,300 | $0 | $383,486 | $383,486 |
| 2009 | $260,084 | $215,600 | $0 | $475,684 | $475,684 |
| 2008 | $269,532 | $245,000 | $0 | $514,532 | $514,532 |
| 2007 | $69,122 | $245,000 | $0 | $314,122 | $314,122 |
Deed and Sales History
| 1 | 11/16/2005 | WD | Warranty Deed | STANDINGER, MICHAEL C | DORSH, JOHN | | | $100,000.00 | 55865 | 4154997 |
| 2 | 01/01/1900 | OTHER | Other - Misc. Documents | Unknown | STANDINGER, MICHAEL C | | | $0.00 | 0 | 0 |
Payout Agreement
| No payout information available.. |