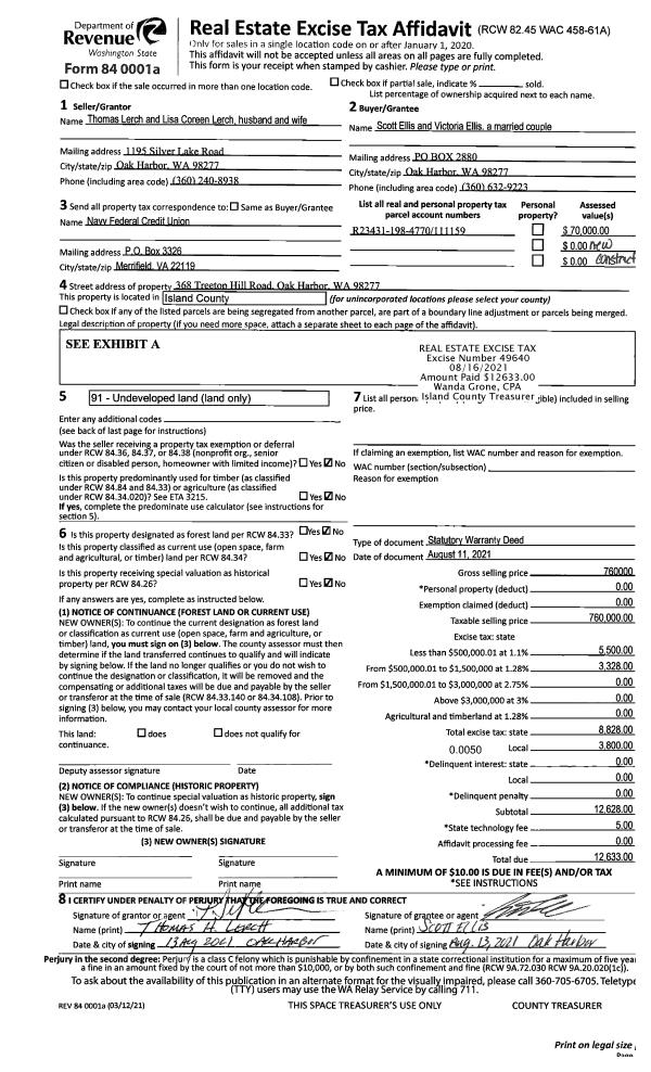
Property
Account |
| Property ID: | 807236 | Abbreviated Legal Description: | PT OF FOLL DESC LY ELY OF BAILEY RD: 18 - N/2 S/2 SE NE |
| Geographic ID: | R32804-319-5060 | Agent Code: | |
| Type: | Real | | |
| Tax Area: | 712 - APPRAISER-S Whid Schl Dist, outside Langley, improved, greater than 1 acre | Land Use Code | 11 |
| Open Space: | N | DFL | N |
| Historic Property: | N | Remodel Property: | N |
| Multi-Family Redevelopment: | N | | |
| Township: | 28 | Section: | 04 |
| Range: | R3 |
Location |
| Address: | 7381 BAILEY RD CLINTON, WA 98236 | Mapsco: | |
| Neighborhood: | Cycle 4 | Map ID: | 690 |
| Neighborhood CD: | 4 |
Owner |
| Name: | MOZES, BARRY G | Owner ID: | 198869 |
| Mailing Address: | NICHOLE J MOZES 7381 BAILEY RD CLINTON, WA 98236-9716 | % Ownership: | 100.0000000000% |
| | | Exemptions: | |
Taxes and Assessment Details
Values
| (+) Improvement Homesite Value: | + | $0 | |
| (+) Improvement Non-Homesite Value: | + | $370,206 | |
| (+) Land Homesite Value: | + | $0 | |
| (+) Land Non-Homesite Value: | + | $370,000 | |
| (+) Curr Use (HS): | + | $0 | $0 |
| (+) Curr Use (NHS): | + | $0 | $0 |
| | | -------------------------- | |
| (=) Market Value: | = | $740,206 | |
| (–) Productivity Loss: | – | $0 | |
| | | -------------------------- | |
| (=) Subtotal: | = | $740,206 | |
| (+) Senior Appraised Value: | + | $0 | |
| (+) Non-Senior Appraised Value: | + | $740,206 | |
| | | -------------------------- | |
| (=) Total Appraised Value: | = | $740,206 | |
| (–) Senior Exemption Loss: | – | $0 | |
| (–) Exemption Loss: | – | $0 | |
| | | -------------------------- | |
| (=) Taxable Value: | = | $740,206 | |
Taxing Jurisdiction
| Owner: | MOZES, BARRY G | | |
| % Ownership: | 100.0000000000% | | |
| Total Value: | $740,206 | | |
| Tax Area: | 712 - APPRAISER-S Whid Schl Dist, outside Langley, improved, greater than 1 acre |
| CF | Conservation Futures | 0.0316035091 | $740,206 | $740,206 | $23.39 | | |
| FIRE3 | Fire & Rescue Dist #3 S Whidbey GEN | 1.2004855531 | $740,206 | $740,206 | $888.61 | | |
| HOBOND | Hospital BOND | 0.1910887512 | $740,206 | $740,206 | $141.45 | | |
| HOGEN | Hospital GEN | 0.3902502903 | $740,206 | $740,206 | $288.87 | | |
| CE | County Current Expense | 0.3708482477 | $740,206 | $740,206 | $274.50 | | |
| CR | County Roads | 0.4584763726 | $740,206 | $740,206 | $339.37 | | |
| ISLANDEMS | Hospital GEN (EMS) | 0.5000000000 | $740,206 | $740,206 | $370.10 | | |
| LIB | Library Sno-Isle GEN | 0.3153421757 | $740,206 | $740,206 | $233.42 | | |
| PORTWHID | Port of S Whidbey GEN | 0.1094540357 | $740,206 | $740,206 | $81.02 | | |
| SCH206BOND | School 206 BOND | 0.3161759235 | $740,206 | $740,206 | $234.04 | | |
| SCH206MO | School 206 Enrichment | 0.4547169547 | $740,206 | $740,206 | $336.58 | | |
| ST | State School | 1.3035497053 | $740,206 | $740,206 | $964.90 | | |
| ST2 | State School Part 2 | 0.8169543533 | $740,206 | $740,206 | $604.71 | | |
| SWHIDPRBD | P & R S Whidbey BOND | 0.0152817568 | $740,206 | $740,206 | $11.31 | | |
| SWHIDPRBD2 | P & R S Whidbey BOND2 | 0.0138911264 | $740,206 | $740,206 | $10.28 | | |
| SWHIDPRMT | P & R S Whidbey GEN | 0.2053334452 | $740,206 | $740,206 | $151.99 | | |
| | Total Tax Rate: | 6.6934522006 | | | | | |
| | | | | Taxes w/Current Exemptions: | $4,954.54 | | |
| | | | | Taxes w/o Exemptions: | $4,954.54 | | |
Improvement / Building
| Improvement #1: | RESIDENTIAL | State Code: | Y | 1888.1 sqft | Value: | $370,206 |
| Bathrooms: | 1.75 | Bedrooms: | 3 | | Ceiling: | DRYWALL PAINTED | Exterior Wall/Cover: | WOOD SIDING | | Floor Covering: | CERAMIC TILE/HWD 40/60 | Floor Structure: | WOOD W/SUBFLOOR | | Foundation: | CONCRETE | Heating: | WALL HEAT ELECTRIC | | Interior Finish: | DRYWALL PAINT | Plumbing Fixture Cnt: | 10 | | Roof Slope: | 6" IN 12" | Roof Structure/Cover: | CJ ASPHALT |
|
| | Type | Description | Class CD | Sub Class CD | Year Built | Area |
| | BAS | BASE/MAIN FLOOR | 3 | 0 | 2007 | 1888.1 |
| | OP1 | OPEN PORCH SLAB | 3 | 0 | 2007 | 93.9 |
| | OP1 | OPEN PORCH SLAB | 3 | 0 | 2007 | 440.0 |
| | OP1 | OPEN PORCH SLAB | 3 | 0 | 2007 | 8.0 |
| | OP1 | OPEN PORCH SLAB | 3 | 0 | 2007 | 370.9 |
| | OP3 | OPEN PORCH W/ROOF | 3 | 0 | 2007 | 191.1 |
| | AGR | ATTACHED GARAGE | 3 | 0 | 2007 | 651.2 |
Sketch
Property Image
Land
| 1 | 32 | AC (03.01-09.99) | 3.5900 | 0.00 | 0.00 | 0.00 | 1.00 | $370,000 | $0 |
Roll Value History
| 2026 | N/A | N/A | N/A | N/A | N/A |
| 2025 | $370,206 | $370,000 | $0 | $740,206 | $740,206 |
| 2024 | $374,601 | $350,000 | $0 | $724,601 | $724,601 |
| 2023 | $378,996 | $330,000 | $0 | $708,996 | $708,996 |
| 2022 | $347,155 | $280,000 | $0 | $627,155 | $627,155 |
| 2021 | $305,321 | $230,000 | $0 | $535,321 | $535,321 |
| 2020 | $297,678 | $190,000 | $0 | $487,678 | $487,678 |
| 2019 | $224,437 | $250,000 | $0 | $474,437 | $474,437 |
| 2018 | $225,057 | $210,000 | $0 | $435,057 | $435,057 |
| 2017 | $226,296 | $190,000 | $0 | $416,296 | $416,296 |
| 2016 | $228,783 | $135,000 | $0 | $363,783 | $363,783 |
| 2015 | $231,271 | $135,000 | $0 | $366,271 | $366,271 |
| 2014 | $238,867 | $110,000 | $0 | $348,867 | $348,867 |
| 2013 | $239,614 | $110,000 | $0 | $349,614 | $349,614 |
| 2012 | $242,181 | $122,060 | $0 | $364,241 | $364,241 |
| 2011 | $244,751 | $122,060 | $0 | $366,811 | $366,811 |
| 2010 | $251,833 | $122,060 | $0 | $373,893 | $373,893 |
| 2009 | $262,237 | $157,960 | $0 | $420,197 | $420,197 |
| 2008 | $262,421 | $179,500 | $0 | $441,921 | $441,921 |
Deed and Sales History
| 1 | 02/02/2021 | QCD | Quit Claim Deed | MOZES, LEE ANN | MOZES, BARRY G | | | $0.00 | 46867 | 4510363 |
| 2 | 09/14/2007 | SEG | DNU - Segregation | Unknown | DA ROSA, ERIC V | | | $0.00 | 80352 | 0 |
| 3 | 02/02/2006 | WD | Warranty Deed | DA ROSA, ERIC V | MOZES, BARRY G | | | $159,000.00 | 60896 | 4163595 |
Payout Agreement
| No payout information available.. |