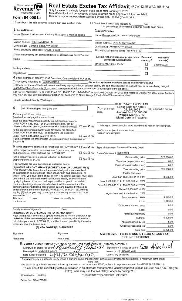
Property
Account |
| Property ID: | 807311 | Abbreviated Legal Description: | WILKINSON FARM LOT 4 |
| Geographic ID: | S8462-00-00004-0 | Agent Code: | |
| Type: | Real | | |
| Tax Area: | 710 - APPRAISER-S Whid Schl Dist, outside Langley, improved & 1 acre or less | Land Use Code | 11 |
| Open Space: | N | DFL | N |
| Historic Property: | N | Remodel Property: | N |
| Multi-Family Redevelopment: | N | | |
| Township: | | Section: | |
| Range: | |
Location |
| Address: | 4274 WILKINSON FARM LN LANGLEY, WA 98260 | Mapsco: | |
| Neighborhood: | Cycle 4 | Map ID: | 722 |
| Neighborhood CD: | 4 |
Owner |
| Name: | LEISHER, KENNETH R | Owner ID: | 198469 |
| Mailing Address: | ELIZABETH S LEISHER 4274 WILKINSON FARM LN LANGLEY, WA 98260 | % Ownership: | 100.0000000000% |
| | | Exemptions: | |
Taxes and Assessment Details
Values
| (+) Improvement Homesite Value: | + | $0 | |
| (+) Improvement Non-Homesite Value: | + | $631,544 | |
| (+) Land Homesite Value: | + | $0 | |
| (+) Land Non-Homesite Value: | + | $280,000 | |
| (+) Curr Use (HS): | + | $0 | $0 |
| (+) Curr Use (NHS): | + | $0 | $0 |
| | | -------------------------- | |
| (=) Market Value: | = | $911,544 | |
| (–) Productivity Loss: | – | $0 | |
| | | -------------------------- | |
| (=) Subtotal: | = | $911,544 | |
| (+) Senior Appraised Value: | + | $0 | |
| (+) Non-Senior Appraised Value: | + | $911,544 | |
| | | -------------------------- | |
| (=) Total Appraised Value: | = | $911,544 | |
| (–) Senior Exemption Loss: | – | $0 | |
| (–) Exemption Loss: | – | $0 | |
| | | -------------------------- | |
| (=) Taxable Value: | = | $911,544 | |
Taxing Jurisdiction
| Owner: | LEISHER, KENNETH R | | |
| % Ownership: | 100.0000000000% | | |
| Total Value: | $911,544 | | |
| Tax Area: | 710 - APPRAISER-S Whid Schl Dist, outside Langley, improved & 1 acre or less |
| CF | Conservation Futures | 0.0316035091 | $911,544 | $911,544 | $28.81 | | |
| FIRE3 | Fire & Rescue Dist #3 S Whidbey GEN | 1.2004855531 | $911,544 | $911,544 | $1,094.30 | | |
| HOBOND | Hospital BOND | 0.1910887512 | $911,544 | $911,544 | $174.19 | | |
| HOGEN | Hospital GEN | 0.3902502903 | $911,544 | $911,544 | $355.73 | | |
| CE | County Current Expense | 0.3708482477 | $911,544 | $911,544 | $338.04 | | |
| CR | County Roads | 0.4584763726 | $911,544 | $911,544 | $417.92 | | |
| ISLANDEMS | Hospital GEN (EMS) | 0.5000000000 | $911,544 | $911,544 | $455.77 | | |
| LIB | Library Sno-Isle GEN | 0.3153421757 | $911,544 | $911,544 | $287.45 | | |
| PORTWHID | Port of S Whidbey GEN | 0.1094540357 | $911,544 | $911,544 | $99.77 | | |
| SCH206BOND | School 206 BOND | 0.3161759235 | $911,544 | $911,544 | $288.21 | | |
| SCH206MO | School 206 Enrichment | 0.4547169547 | $911,544 | $911,544 | $414.49 | | |
| ST | State School | 1.3035497053 | $911,544 | $911,544 | $1,188.24 | | |
| ST2 | State School Part 2 | 0.8169543533 | $911,544 | $911,544 | $744.69 | | |
| SWHIDPRBD | P & R S Whidbey BOND | 0.0152817568 | $911,544 | $911,544 | $13.93 | | |
| SWHIDPRBD2 | P & R S Whidbey BOND2 | 0.0138911264 | $911,544 | $911,544 | $12.66 | | |
| SWHIDPRMT | P & R S Whidbey GEN | 0.2053334452 | $911,544 | $911,544 | $187.17 | | |
| | Total Tax Rate: | 6.6934522006 | | | | | |
| | | | | Taxes w/Current Exemptions: | $6,101.37 | | |
| | | | | Taxes w/o Exemptions: | $6,101.37 | | |
Improvement / Building
| Improvement #1: | RESIDENTIAL | State Code: | Y | 2306.2 sqft | Value: | $631,544 |
| Bathrooms: | 2.5 | Bedrooms: | 3 | | Ceiling: | DRYWALL PAINTED | Cooling: | HEAT PUMP/CONV/V | | Exterior Wall/Cover: | SHINGLE | Floor Covering: | HARDWOOD/CARP 80-20 | | Floor Structure: | WOOD W/SUBFLOOR | Foundation: | CONCRETE | | Interior Finish: | DRYWALL PAINT | Plumbing Fixture Cnt: | 13 | | Roof Slope: | 8" IN 12" | Roof Structure/Cover: | CJ ASPHALT |
|
| | Type | Description | Class CD | Sub Class CD | Year Built | Area |
| | BAS | BASE/MAIN FLOOR | 4 | 0 | 2007 | 2306.2 |
| | OP4 | OPEN PORCH W/CEILING-ROOF | 4 | 0 | 2007 | 123.5 |
| | AGR | ATTACHED GARAGE | 4 | 0 | 2007 | 803.0 |
| | OWC | OPEN WOOD PORCH W/STEPS/ROOF/C | 4 | 0 | 2007 | 269.2 |
| | OWP | OPEN WOOD PORCH W/STEPS | 4 | 0 | 2007 | 794.7 |
Sketch
Property Image
Land
| 1 | 16 | AC (00.51-01.00) | 0.0000 | 0.00 | 0.00 | 0.00 | 1.00 | $280,000 | $0 |
Roll Value History
| 2026 | N/A | N/A | N/A | N/A | N/A |
| 2025 | $631,544 | $280,000 | $0 | $911,544 | $911,544 |
| 2024 | $638,781 | $270,000 | $0 | $908,781 | $908,781 |
| 2023 | $646,019 | $260,000 | $0 | $906,019 | $906,019 |
| 2022 | $589,903 | $240,000 | $0 | $829,903 | $829,903 |
| 2021 | $517,513 | $160,000 | $0 | $677,513 | $677,513 |
| 2020 | $451,554 | $135,000 | $0 | $586,554 | $586,554 |
| 2019 | $338,133 | $210,000 | $0 | $548,133 | $548,133 |
| 2018 | $339,045 | $170,000 | $0 | $509,045 | $509,045 |
| 2017 | $340,869 | $150,000 | $0 | $490,869 | $490,869 |
| 2016 | $344,516 | $150,000 | $0 | $494,516 | $494,516 |
| 2015 | $348,163 | $130,000 | $0 | $478,163 | $478,163 |
| 2014 | $342,940 | $130,000 | $0 | $472,940 | $472,940 |
| 2013 | $346,563 | $130,000 | $0 | $476,563 | $476,563 |
| 2012 | $350,185 | $139,500 | $0 | $489,685 | $489,685 |
| 2011 | $353,809 | $155,000 | $0 | $508,809 | $508,809 |
| 2010 | $364,656 | $155,000 | $0 | $519,656 | $519,656 |
| 2009 | $398,489 | $160,000 | $0 | $558,489 | $558,489 |
| 2008 | $378,251 | $158,400 | $0 | $536,651 | $536,651 |
Deed and Sales History
| 1 | 09/25/2009 | WD | Warranty Deed | CASA GROUP CORP, | LEISHER, KENNETH R | | | $410,000.00 | 92290 | 4260884 |
| 2 | 04/04/2006 | WD | Warranty Deed | CASA GROUP INC, | CASA GROUP CORP, | | | $0.00 | 80414 | 4222329 |
| 3 | 04/04/2006 | WD | Warranty Deed | AUTUMN VILLAGE INVESTORS LLC, | CASA GROUP INC, | | | $112,857.00 | 61504 | 4166876 |
| 4 | 01/01/1900 | OTHER | Other - Misc. Documents | Unknown | AUTUMN VILLAGE INVESTORS LLC, | | | $0.00 | 0 | 0 |
Payout Agreement
| No payout information available.. |