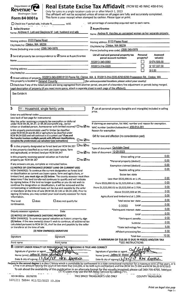
Property
Account |
| Property ID: | 807485 | Abbreviated Legal Description: | SUMMER WIND CONDO UNIT A-102 |
| Geographic ID: | S8516-00-0A102-0 | Agent Code: | |
| Type: | Real | | |
| Tax Area: | 100 - APPRAISER-OH Schl Dist, in OH | Land Use Code | 14 |
| Open Space: | N | DFL | N |
| Historic Property: | N | Remodel Property: | N |
| Multi-Family Redevelopment: | N | | |
| Township: | | Section: | |
| Range: | |
Location |
| Address: | 1700 SW MULBERRY PLACE UNIT A102 OAK HARBOR, WA 98277 | Mapsco: | |
| Neighborhood: | 3A*OH-summer wind | Map ID: | 90 |
| Neighborhood CD: | 3A*OHsmrwi |
Owner |
| Name: | FELTY, JACK | Owner ID: | 308676 |
| Mailing Address: | ARIANA FELTY 1700 SW MULBERRY PL, A102 OAK HARBOR, WA 98277 | % Ownership: | 100.0000000000% |
| | | Exemptions: | |
Taxes and Assessment Details
Values
| (+) Improvement Homesite Value: | + | $0 | |
| (+) Improvement Non-Homesite Value: | + | $197,365 | |
| (+) Land Homesite Value: | + | $0 | |
| (+) Land Non-Homesite Value: | + | $90,000 | |
| (+) Curr Use (HS): | + | $0 | $0 |
| (+) Curr Use (NHS): | + | $0 | $0 |
| | | -------------------------- | |
| (=) Market Value: | = | $287,365 | |
| (–) Productivity Loss: | – | $0 | |
| | | -------------------------- | |
| (=) Subtotal: | = | $287,365 | |
| (+) Senior Appraised Value: | + | $0 | |
| (+) Non-Senior Appraised Value: | + | $287,365 | |
| | | -------------------------- | |
| (=) Total Appraised Value: | = | $287,365 | |
| (–) Senior Exemption Loss: | – | $0 | |
| (–) Exemption Loss: | – | $0 | |
| | | -------------------------- | |
| (=) Taxable Value: | = | $287,365 | |
Taxing Jurisdiction
| Owner: | FELTY, JACK | | |
| % Ownership: | 100.0000000000% | | |
| Total Value: | $287,365 | | |
| Tax Area: | 100 - APPRAISER-OH Schl Dist, in OH |
| CF | Conservation Futures | 0.0316035091 | $287,365 | $287,365 | $9.08 | | |
| CEM1 | Cemetery #1 | 0.0040320932 | $287,365 | $287,365 | $1.16 | | |
| COH | City of Oak Harbor | 2.3001546061 | $287,365 | $287,365 | $660.98 | | |
| OAKBOND | City of Oak Harbor BOND | 0.1926904192 | $287,365 | $287,365 | $55.37 | | |
| HOBOND | Hospital BOND | 0.1910887512 | $287,365 | $287,365 | $54.91 | | |
| HOGEN | Hospital GEN | 0.3902502903 | $287,365 | $287,365 | $112.14 | | |
| CE | County Current Expense | 0.3708482477 | $287,365 | $287,365 | $106.57 | | |
| ISLANDEMS | Hospital GEN (EMS) | 0.5000000000 | $287,365 | $287,365 | $143.68 | | |
| LIB | Library Sno-Isle GEN | 0.3153421757 | $287,365 | $287,365 | $90.62 | | |
| NWHIDPRMT | P & R N Whidbey GEN | 0.2004466701 | $287,365 | $287,365 | $57.60 | | |
| SCH201MO | School 201 Enrichment | 1.8559231640 | $287,365 | $287,365 | $533.33 | | |
| ST | State School | 1.3035497053 | $287,365 | $287,365 | $374.59 | | |
| ST2 | State School Part 2 | 0.8169543533 | $287,365 | $287,365 | $234.76 | | |
| | Total Tax Rate: | 8.4728839852 | | | | | |
| | | | | Taxes w/Current Exemptions: | $2,434.79 | | |
| | | | | Taxes w/o Exemptions: | $2,434.79 | | |
Improvement / Building
| Improvement #1: | RESIDENTIAL | State Code: | A1 | 965.5 sqft | Value: | $197,365 |
| Bathrooms: | 3 | Bedrooms: | 2 | | Ceiling: | DRYWALL PAINTED | Exterior Wall/Cover: | CEMENT FIBER | | Floor Covering: | CARPET/VINYL 80-20 | Floor Structure: | WOOD W/SUBFLOOR | | Foundation: | CONCRETE | Heating: | FHA GAS | | Interior Finish: | DRYWALL PAINT | Plumbing Fixture Cnt: | 10 | | Roof Slope: | 4" IN 12" | Roof Structure/Cover: | CJ ASPHALT |
|
| | Type | Description | Class CD | Sub Class CD | Year Built | Area |
| | BAS | BASE/MAIN FLOOR | 3 | 0 | 2007 | 965.5 |
| | OP4 | OPEN PORCH W/CEILING-ROOF | 3 | 0 | 2007 | 66.0 |
| | OP4 | OPEN PORCH W/CEILING-ROOF | 3 | 0 | 2007 | 88.0 |
| | COMA | Common Area Improvement | 3 | 0 | 2007 | 0.0 |
Sketch
Property Image
Land
| 1 | 61 | MULTIPLE RESIDENCES | 0.0000 | 961.00 | 0.00 | 0.00 | 1.00 | $90,000 | $0 |
Roll Value History
| 2026 | N/A | N/A | N/A | N/A | N/A |
| 2025 | $197,365 | $90,000 | $0 | $287,365 | $287,365 |
| 2024 | $159,767 | $90,000 | $0 | $249,767 | $249,767 |
| 2023 | $161,642 | $90,000 | $0 | $251,642 | $251,642 |
| 2022 | $148,410 | $65,000 | $0 | $213,410 | $213,410 |
| 2021 | $131,013 | $50,000 | $0 | $181,013 | $181,013 |
| 2020 | $127,081 | $40,000 | $0 | $167,081 | $167,081 |
| 2019 | $88,457 | $75,000 | $0 | $163,457 | $163,457 |
| 2018 | $88,697 | $65,000 | $0 | $153,697 | $153,697 |
| 2017 | $89,157 | $8,600 | $0 | $97,757 | $97,757 |
| 2016 | $90,117 | $8,600 | $0 | $98,717 | $98,717 |
| 2015 | $77,415 | $8,600 | $0 | $86,015 | $86,015 |
| 2014 | $78,232 | $8,600 | $0 | $86,832 | $86,832 |
| 2013 | $88,008 | $8,600 | $0 | $96,608 | $96,608 |
| 2012 | $89,735 | $8,600 | $0 | $98,335 | $98,335 |
| 2011 | $124,851 | $6,727 | $0 | $131,578 | $131,578 |
| 2010 | $126,521 | $4,411 | $0 | $130,932 | $130,932 |
| 2009 | $131,753 | $28,830 | $0 | $160,583 | $160,583 |
| 2008 | $131,819 | $36,824 | $0 | $168,643 | $168,643 |
| 2007 | $126,568 | $36,824 | $0 | $163,392 | $163,392 |
Deed and Sales History
| 1 | 05/18/2023 | WD | Warranty Deed | KIM, KI TAE | FELTY, JACK | | | $289,500.00 | 56763 | 4560131 |
| 2 | 05/11/2021 | WD | Warranty Deed | BECKETT, KARL AARON | KIM, KI TAE | | | $270,000.00 | 48733 | 4522155 |
| 3 | 05/02/2007 | WD | Warranty Deed | SUMMERWINDS VENTURES LLC, | BECKETT, KARL AARON | | | $175,000.00 | 71502 | 4201419 |
| 4 | 08/01/2006 | QCD | Quit Claim Deed | WALDRON CONSTRUCTION INC, | SUMMERWINDS VENTURES LLC, | | | $0.00 | 63538 | 4179131 |
| 5 | 01/01/1900 | OTHER | Other - Misc. Documents | Unknown | WALDRON CONSTRUCTION INC, | | | $0.00 | 0 | 0 |
Payout Agreement
| No payout information available.. |