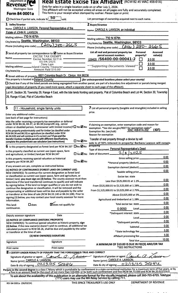
Property
Account |
| Property ID: | 807520 | Abbreviated Legal Description: | 1974 HEARTHSIDE 24X48 VIN# 3338 TPO #95479 FROM K-631953 |
| Geographic ID: | M913000000340 | Agent Code: | |
| Type: | Mobile Home | | |
| Tax Area: | 300 - APPRAISER-Cpvl Schl Dist, in Cpvl | Land Use Code | 11 |
| Open Space: | N | DFL | N |
| Historic Property: | N | Remodel Property: | N |
| Multi-Family Redevelopment: | N | | |
| Township: | | Section: | |
| Range: | |
Location |
| Address: | 204 SW TERRY RD # 34 COUPEVILLE, WA 98239 | Mapsco: | |
| Neighborhood: | Cycle 2 | Map ID: | |
| Neighborhood CD: | 2 |
Owner |
| Name: | HUME, HOLLY | Owner ID: | 194793 |
| Mailing Address: | 204 SW TERRY RD TRLR 34 COUPEVILLE, WA 98239-3036 | % Ownership: | 100.0000000000% |
| | | Exemptions: | |
Taxes and Assessment Details
Values
| (+) Improvement Homesite Value: | + | $0 | |
| (+) Improvement Non-Homesite Value: | + | $53,370 | |
| (+) Land Homesite Value: | + | $0 | |
| (+) Land Non-Homesite Value: | + | $0 | |
| (+) Curr Use (HS): | + | $0 | $0 |
| (+) Curr Use (NHS): | + | $0 | $0 |
| | | -------------------------- | |
| (=) Market Value: | = | $53,370 | |
| (–) Productivity Loss: | – | $0 | |
| | | -------------------------- | |
| (=) Subtotal: | = | $53,370 | |
| (+) Senior Appraised Value: | + | $0 | |
| (+) Non-Senior Appraised Value: | + | $53,370 | |
| | | -------------------------- | |
| (=) Total Appraised Value: | = | $53,370 | |
| (–) Senior Exemption Loss: | – | $0 | |
| (–) Exemption Loss: | – | $0 | |
| | | -------------------------- | |
| (=) Taxable Value: | = | $53,370 | |
Taxing Jurisdiction
| Owner: | HUME, HOLLY | | |
| % Ownership: | 100.0000000000% | | |
| Total Value: | $53,370 | | |
| Tax Area: | 300 - APPRAISER-Cpvl Schl Dist, in Cpvl |
| CF | Conservation Futures | 0.0316035091 | $53,370 | $53,370 | $1.69 | | |
| CEM2 | Cemetery #2 | 0.0095056933 | $53,370 | $53,370 | $0.51 | | |
| COUP | City: Town of Coupeville | 0.8426414490 | $53,370 | $53,370 | $44.97 | | |
| FIRE5 | Fire & Rescue Dist #5 C Whidbey GEN | 1.2008080668 | $53,370 | $53,370 | $64.09 | | |
| FIRE5BOND | Fire & Rescue Dist #5 C Whidbey BOND | 0.1400090713 | $53,370 | $53,370 | $7.47 | | |
| HOBOND | Hospital BOND | 0.1910887512 | $53,370 | $53,370 | $10.20 | | |
| HOGEN | Hospital GEN | 0.3902502903 | $53,370 | $53,370 | $20.83 | | |
| CE | County Current Expense | 0.3708482477 | $53,370 | $53,370 | $19.79 | | |
| ISLANDEMS | Hospital GEN (EMS) | 0.5000000000 | $53,370 | $53,370 | $26.69 | | |
| LIB | Library Sno-Isle GEN | 0.3153421757 | $53,370 | $53,370 | $16.83 | | |
| LIBCAP | Library Sno-Isle BOND (Cap Fac Imp Area) | 0.0543427938 | $53,370 | $53,370 | $2.90 | | |
| POCOUP | Port of Coupeville GEN | 0.1093371703 | $53,370 | $53,370 | $5.84 | | |
| POCOUPIDD | Port of Coupeville IDD | 0.3409740022 | $53,370 | $53,370 | $18.20 | | |
| COUPSDTECH | School 204 CP (TECH) | 0.7545480007 | $53,370 | $53,370 | $40.27 | | |
| SCH204MO | School 204 Enrichment | 0.6716186034 | $53,370 | $53,370 | $35.84 | | |
| ST | State School | 1.3035497053 | $53,370 | $53,370 | $69.57 | | |
| ST2 | State School Part 2 | 0.8169543533 | $53,370 | $53,370 | $43.60 | | |
| | Total Tax Rate: | 8.0434218834 | | | | | |
| | | | | Taxes w/Current Exemptions: | $429.29 | | |
| | | | | Taxes w/o Exemptions: | $429.29 | | |
Improvement / Building
| Improvement #1: | MANUFACTURED HOME | State Code: | Y | 1152.0 sqft | Value: | $53,370 |
| Bathrooms: | 2 | Bedrooms: | 3 | | Ceiling: | PLASTER PAINTED | Cooling: | EVAP NO DUCT | | Exterior Wall/Cover: | VINYL | Floor Covering: | CARPET 100% | | Floor Structure: | SLAB ON GRADE | Foundation: | SLAB | | Heating: | FHA ELECTRIC | Interior Finish: | PLASTER | | Plumbing Fixture Cnt: | 1 | Roof Slope: | FLAT | | Roof Structure/Cover: | CJ ALUMINIUM HEAVY |   |   |
|
Sketch
Property Image
Land
No land segments exist for this property.
Roll Value History
| 2026 | N/A | N/A | N/A | N/A | N/A |
| 2025 | $53,370 | $0 | $0 | $53,370 | $53,370 |
| 2024 | $53,370 | $0 | $0 | $53,370 | $53,370 |
| 2023 | $25,065 | $0 | $0 | $25,065 | $25,065 |
| 2022 | $24,071 | $0 | $0 | $24,071 | $24,071 |
| 2021 | $22,726 | $0 | $0 | $22,726 | $22,726 |
| 2020 | $23,224 | $0 | $0 | $23,224 | $23,224 |
| 2019 | $19,207 | $0 | $0 | $19,207 | $19,207 |
| 2018 | $10,011 | $0 | $0 | $10,011 | $10,011 |
| 2017 | $10,921 | $0 | $0 | $10,921 | $10,921 |
| 2016 | $11,376 | $0 | $0 | $11,376 | $11,376 |
| 2015 | $12,286 | $0 | $0 | $12,286 | $12,286 |
| 2014 | $12,742 | $0 | $0 | $12,742 | $12,742 |
| 2013 | $13,652 | $0 | $0 | $13,652 | $13,652 |
| 2012 | $13,061 | $0 | $0 | $13,061 | $13,061 |
| 2011 | $17,106 | $0 | $0 | $17,106 | $17,106 |
| 2010 | $17,473 | $0 | $0 | $17,473 | $17,473 |
| 2009 | $18,005 | $0 | $0 | $18,005 | $18,005 |
| 2008 | $18,024 | $0 | $0 | $18,024 | $18,024 |
| 2007 | $18,055 | $0 | $0 | $18,055 | $18,055 |
Deed and Sales History
| 1 | 03/02/2006 | OTHER | Other - Misc. Documents | BINGISSER, GREGORY B | HUME, HOLLY | | | $23,000.00 | 73104 | 0 |
| 2 | 01/01/1900 | OTHER | Other - Misc. Documents | Unknown | BINGISSER, GREGORY B | | | $0.00 | 0 | 0 |
Payout Agreement
| No payout information available.. |