Property
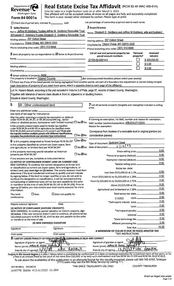
Account |
| Property ID: | 807529 | Abbreviated Legal Description: | IN NE SE: BG NECR OF NE SE N88*W ALG NLN SD NE SE 560.13' S10*W821.70' N75*E717.78' TP ON ELN SD NE SE N02*E ALG SD ELN 607.56' TPB |
| Geographic ID: | R23203-230-4980 | Agent Code: | |
| Type: | Real | | |
| Tax Area: | 112 - APPRAISER-OH Schl Dist, outside OH, improved, greater than 1 acre | Land Use Code | 11 |
| Open Space: | N | DFL | N |
| Historic Property: | N | Remodel Property: | N |
| Multi-Family Redevelopment: | N | | |
| Township: | 32 | Section: | 03 |
| Range: | R2 |
Location |
| Address: | 1598 VIEW HAVEN DR OAK HARBOR, WA 98277 | Mapsco: | |
| Neighborhood: | Cycle 6 | Map ID: | 541 |
| Neighborhood CD: | 6 |
Owner |
| Name: | CINCO, VIRGILIO PEREZ | Owner ID: | 293678 |
| Mailing Address: | AMELIA LOPEZ CINCO 1598 VIEW HAVEN DR OAK HARBOR, WA 98277 | % Ownership: | 100.0000000000% |
| | | Exemptions: | |
Taxes and Assessment Details
Values
| (+) Improvement Homesite Value: | + | $0 | |
| (+) Improvement Non-Homesite Value: | + | $348,185 | |
| (+) Land Homesite Value: | + | $0 | |
| (+) Land Non-Homesite Value: | + | $340,000 | |
| (+) Curr Use (HS): | + | $0 | $0 |
| (+) Curr Use (NHS): | + | $0 | $0 |
| | | -------------------------- | |
| (=) Market Value: | = | $688,185 | |
| (–) Productivity Loss: | – | $0 | |
| | | -------------------------- | |
| (=) Subtotal: | = | $688,185 | |
| (+) Senior Appraised Value: | + | $0 | |
| (+) Non-Senior Appraised Value: | + | $688,185 | |
| | | -------------------------- | |
| (=) Total Appraised Value: | = | $688,185 | |
| (–) Senior Exemption Loss: | – | $0 | |
| (–) Exemption Loss: | – | $0 | |
| | | -------------------------- | |
| (=) Taxable Value: | = | $688,185 | |
Taxing Jurisdiction
| Owner: | CINCO, VIRGILIO PEREZ | | |
| % Ownership: | 100.0000000000% | | |
| Total Value: | $688,185 | | |
| Tax Area: | 112 - APPRAISER-OH Schl Dist, outside OH, improved, greater than 1 acre |
| CF | Conservation Futures | 0.0316035091 | $688,185 | $688,185 | $21.75 | | |
| CEM1 | Cemetery #1 | 0.0040320932 | $688,185 | $688,185 | $2.77 | | |
| FIRE2 | Fire & Rescue Dist #2 N Whidbey GEN | 0.5475949600 | $688,185 | $688,185 | $376.85 | | |
| HOBOND | Hospital BOND | 0.1910887512 | $688,185 | $688,185 | $131.50 | | |
| HOGEN | Hospital GEN | 0.3902502903 | $688,185 | $688,185 | $268.56 | | |
| CE | County Current Expense | 0.3708482477 | $688,185 | $688,185 | $255.21 | | |
| CR | County Roads | 0.4584763726 | $688,185 | $688,185 | $315.52 | | |
| ISLANDEMS | Hospital GEN (EMS) | 0.5000000000 | $688,185 | $688,185 | $344.09 | | |
| LIB | Library Sno-Isle GEN | 0.3153421757 | $688,185 | $688,185 | $217.01 | | |
| NWHIDPRMT | P & R N Whidbey GEN | 0.2004466701 | $688,185 | $688,185 | $137.94 | | |
| SCH201MO | School 201 Enrichment | 1.8559231640 | $688,185 | $688,185 | $1,277.22 | | |
| ST | State School | 1.3035497053 | $688,185 | $688,185 | $897.08 | | |
| ST2 | State School Part 2 | 0.8169543533 | $688,185 | $688,185 | $562.22 | | |
| | Total Tax Rate: | 6.9861102925 | | | | | |
| | | | | Taxes w/Current Exemptions: | $4,807.72 | | |
| | | | | Taxes w/o Exemptions: | $4,807.72 | | |
Improvement / Building
| Improvement #1: | RESIDENTIAL | State Code: | Y | 2285.7 sqft | Value: | $0 |
| Bathrooms: | 3.5 | Bedrooms: | 2 | | Ceiling: | (NONE) | Cooling: | HEAT PUMP/CONV/V | | Exterior Wall/Cover: | (NONE) | Floor Covering: | (NONE) | | Floor Structure: | (NONE) | Foundation: | (NONE) | | Interior Finish: | (NONE) | Plumbing Fixture Cnt: | 16 | | Roof Slope: | 6" IN 12" | Roof Structure/Cover: | (NONE) |
|
| | Type | Description | Class CD | Sub Class CD | Year Built | Area |
| | BAS | BASE/MAIN FLOOR | 3 | 0 | 2025 | 1295.0 |
| | UPS | UPPER STORY | 3 | 0 | 2025 | 990.7 |
| | AGR | ATTACHED GARAGE | 3 | 0 | 2025 | 624.0 |
| | OWP | OPEN WOOD PORCH W/STEPS | 3 | 0 | 2025 | 120.0 |
| | OWC | OPEN WOOD PORCH W/STEPS/ROOF/C | 3 | 0 | 2025 | 879.7 |
| Improvement #2: | RESIDENTIAL | State Code: | Y | 759.0 sqft | Value: | $348,185 |
| Bathrooms: | 0.75 | Bedrooms: | 1 | | Ceiling: | DRYWALL PAINTED | Exterior Wall/Cover: | WOOD SIDING | | Floor Covering: | VINYL 100% | Floor Structure: | SLAB ON GRADE | | Foundation: | SLAB | Heating: | FHA GAS | | Interior Finish: | DRYWALL PAINT | Plumbing Fixture Cnt: | 6 | | Roof Slope: | 4" IN 12" | Roof Structure/Cover: | CJ ALUMINIUM HEAVY |
|
| | Type | Description | Class CD | Sub Class CD | Year Built | Area |
| | BAS | BASE/MAIN FLOOR | 3 | 0 | 2012 | 759.0 |
| | ATU | ATTIC UNFINISHED | 3 | 0 | 2012 | 1071.0 |
| | AGR | ATTACHED GARAGE | 3 | 0 | 2012 | 2312.5 |
| | ATU | ATTIC UNFINISHED | 3 | 0 | 2012 | 500.0 |
| | OP4 | OPEN PORCH W/CEILING-ROOF | 3 | 0 | 2012 | 81.0 |
| | OCP | OPEN CARPORT | 3 | 0 | 2012 | 200.0 |
| | OCP | OPEN CARPORT | 3 | 0 | 2012 | 200.0 |
| | OCP | OPEN CARPORT | 3 | 0 | 2012 | 200.0 |
Sketch
Property Image
Land
| 1 | 35 | AC (10.00-30.99) | 10.0000 | 435600.00 | 0.00 | 0.00 | 1.00 | $340,000 | $0 |
Roll Value History
| 2026 | N/A | N/A | N/A | N/A | N/A |
| 2025 | $348,185 | $340,000 | $0 | $688,185 | $688,185 |
| 2024 | $353,431 | $300,000 | $0 | $653,431 | $653,431 |
| 2023 | $353,989 | $280,000 | $0 | $633,989 | $633,989 |
| 2022 | $344,527 | $330,000 | $0 | $674,527 | $674,527 |
| 2021 | $313,516 | $250,000 | $0 | $563,516 | $563,516 |
| 2020 | $307,919 | $230,000 | $0 | $537,919 | $537,919 |
| 2019 | $150,260 | $270,000 | $0 | $420,260 | $420,260 |
| 2018 | $150,260 | $245,000 | $0 | $395,260 | $395,260 |
| 2017 | $150,260 | $200,000 | $0 | $350,260 | $350,260 |
| 2016 | $35,500 | $160,000 | $0 | $195,500 | $195,500 |
| 2015 | $35,500 | $155,000 | $0 | $190,500 | $190,500 |
| 2014 | $35,500 | $170,000 | $0 | $205,500 | $205,500 |
| 2013 | $35,500 | $170,000 | $0 | $205,500 | $205,500 |
| 2012 | $25,500 | $130,000 | $0 | $155,500 | $155,500 |
| 2011 | $0 | $130,000 | $0 | $130,000 | $130,000 |
| 2010 | $0 | $130,000 | $0 | $130,000 | $130,000 |
| 2009 | $0 | $200,000 | $0 | $200,000 | $200,000 |
| 2008 | $0 | $160,000 | $0 | $160,000 | $160,000 |
| 2007 | $0 | $0 | $0 | $159,500 | $159,500 |
Deed and Sales History
| 1 | 03/02/2020 | WD | Warranty Deed | WHITEMAN, STEVE A | CINCO, VIRGILIO PEREZ | | | $519,000.00 | 42312 | 4482574 |
| 2 | 03/13/2018 | WD | Warranty Deed | VALLEY HIGH INVESTMENTS INC | WHITEMAN, STEVE A | | | $400,000.00 | 33290 | 4440779 |
| 3 | 09/18/2007 | SEG | DNU - Segregation | Unknown | VALLEY HIGH INVESTMTS INC, | | | $0.00 | 80360 | 0 |
Payout Agreement
| No payout information available.. |