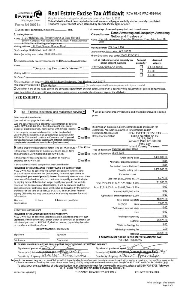
Property
Account |
| Property ID: | 807533 | Abbreviated Legal Description: | E182' OF W512' OF GL 9 LY S OF ARNOLD RD EX PENN CV RD |
| Geographic ID: | R13221-044-1070 | Agent Code: | |
| Type: | Real | | |
| Tax Area: | 332 - APPRAISER-Cpvl Schl Dist, Special Dist, improved, greater than 1 acre | Land Use Code | 11 |
| Open Space: | N | DFL | N |
| Historic Property: | N | Remodel Property: | N |
| Multi-Family Redevelopment: | N | | |
| Township: | 32 | Section: | 21 |
| Range: | R1 |
Location |
| Address: | 1519 ARNOLD RD OAK HARBOR, WA 98277 | Mapsco: | |
| Neighborhood: | Cycle 2 | Map ID: | 149 |
| Neighborhood CD: | 2 |
Owner |
| Name: | ROBART JTWROS, CARL VICTOR | Owner ID: | 265532 |
| Mailing Address: | CHWUN C DEERING JTWROS BOX 1712 COUPEVILLE, WA 98239-1712 | % Ownership: | 100.0000000000% |
| | | Exemptions: | |
Taxes and Assessment Details
Values
| (+) Improvement Homesite Value: | + | $0 | |
| (+) Improvement Non-Homesite Value: | + | $773,536 | |
| (+) Land Homesite Value: | + | $0 | |
| (+) Land Non-Homesite Value: | + | $324,763 | |
| (+) Curr Use (HS): | + | $0 | $0 |
| (+) Curr Use (NHS): | + | $0 | $0 |
| | | -------------------------- | |
| (=) Market Value: | = | $1,098,299 | |
| (–) Productivity Loss: | – | $0 | |
| | | -------------------------- | |
| (=) Subtotal: | = | $1,098,299 | |
| (+) Senior Appraised Value: | + | $0 | |
| (+) Non-Senior Appraised Value: | + | $1,098,299 | |
| | | -------------------------- | |
| (=) Total Appraised Value: | = | $1,098,299 | |
| (–) Senior Exemption Loss: | – | $0 | |
| (–) Exemption Loss: | – | $0 | |
| | | -------------------------- | |
| (=) Taxable Value: | = | $1,098,299 | |
Taxing Jurisdiction
| Owner: | ROBART JTWROS, CARL VICTOR | | |
| % Ownership: | 100.0000000000% | | |
| Total Value: | $1,098,299 | | |
| Tax Area: | 332 - APPRAISER-Cpvl Schl Dist, Special Dist, improved, greater than 1 acre |
| CF | Conservation Futures | 0.0316035091 | $1,098,299 | $1,098,299 | $34.71 | | |
| CEM2 | Cemetery #2 | 0.0095056933 | $1,098,299 | $1,098,299 | $10.44 | | |
| FIRE2 | Fire & Rescue Dist #2 N Whidbey GEN | 0.5475949600 | $1,098,299 | $1,098,299 | $601.42 | | |
| HOBOND | Hospital BOND | 0.1910887512 | $1,098,299 | $1,098,299 | $209.87 | | |
| HOGEN | Hospital GEN | 0.3902502903 | $1,098,299 | $1,098,299 | $428.61 | | |
| CE | County Current Expense | 0.3708482477 | $1,098,299 | $1,098,299 | $407.30 | | |
| CR | County Roads | 0.4584763726 | $1,098,299 | $1,098,299 | $503.54 | | |
| ISLANDEMS | Hospital GEN (EMS) | 0.5000000000 | $1,098,299 | $1,098,299 | $549.15 | | |
| LIB | Library Sno-Isle GEN | 0.3153421757 | $1,098,299 | $1,098,299 | $346.34 | | |
| LIBCAP | Library Sno-Isle BOND (Cap Fac Imp Area) | 0.0543427938 | $1,098,299 | $1,098,299 | $59.68 | | |
| POCOUP | Port of Coupeville GEN | 0.1093371703 | $1,098,299 | $1,098,299 | $120.08 | | |
| POCOUPIDD | Port of Coupeville IDD | 0.3409740022 | $1,098,299 | $1,098,299 | $374.49 | | |
| COUPSDTECH | School 204 CP (TECH) | 0.7545480007 | $1,098,299 | $1,098,299 | $828.72 | | |
| SCH204MO | School 204 Enrichment | 0.6716186034 | $1,098,299 | $1,098,299 | $737.64 | | |
| ST | State School | 1.3035497053 | $1,098,299 | $1,098,299 | $1,431.69 | | |
| ST2 | State School Part 2 | 0.8169543533 | $1,098,299 | $1,098,299 | $897.26 | | |
| | Total Tax Rate: | 6.8660346289 | | | | | |
| | | | | Taxes w/Current Exemptions: | $7,540.94 | | |
| | | | | Taxes w/o Exemptions: | $7,540.94 | | |
Improvement / Building
| Improvement #1: | RESIDENTIAL | State Code: | Y | 2360.6 sqft | Value: | $773,536 |
| Bathrooms: | 2.25 | Bedrooms: | 2 | | Ceiling: | TONGUE & GROOVE | Exterior Wall/Cover: | STUCCO | | Floor Covering: | CERAMIC TILE/HWD 40/60 | Floor Structure: | WOOD W/SUBFLOOR | | Foundation: | CONCRETE | Heating: | B/B HOT WATER-GAS | | Interior Finish: | DRYWALL PAINT | Plumbing Fixture Cnt: | 13 | | Roof Slope: | 10" IN 12" | Roof Structure/Cover: | CJ ASPHALT |
|
| | Type | Description | Class CD | Sub Class CD | Year Built | Area |
| | BAS | BASE/MAIN FLOOR | 5 | 0 | 2005 | 2327.7 |
| | UB8 | BASEMENT UNFINISHED 8" | 5 | 0 | 2005 | 1748.8 |
| | AGR | ATTACHED GARAGE | 5 | 0 | 2005 | 559.9 |
| | OWP | OPEN WOOD PORCH W/STEPS | 5 | 0 | 2005 | 184.0 |
| | OWP | OPEN WOOD PORCH W/STEPS | 5 | 0 | 2005 | 172.4 |
| | OWC | OPEN WOOD PORCH W/STEPS/ROOF/C | 5 | 0 | 2005 | 9.0 |
| | DWN | DOWNSTAIRS LIVING AREA | 5 | 0 | 2005 | 32.9 |
Sketch
Property Image
Land
| 1 | HS | HOMESITE | 1.0000 | 43560.00 | 0.00 | 0.00 | 1.00 | $270,000 | $0 |
| 2 | 91 | UNDEVELOPED LAND-METES AND BOUNDS | 2.6000 | 113256.00 | 0.00 | 0.00 | 1.00 | $54,763 | $0 |
Roll Value History
| 2026 | N/A | N/A | N/A | N/A | N/A |
| 2025 | $773,536 | $324,763 | $0 | $1,098,299 | $1,098,299 |
| 2024 | $746,313 | $320,000 | $0 | $1,066,313 | $1,066,313 |
| 2023 | $755,388 | $310,000 | $0 | $1,065,388 | $1,065,388 |
| 2022 | $692,220 | $290,000 | $0 | $982,220 | $982,220 |
| 2021 | $609,081 | $220,000 | $0 | $829,081 | $829,081 |
| 2020 | $593,235 | $200,000 | $0 | $793,235 | $793,235 |
| 2019 | $466,077 | $250,000 | $0 | $716,077 | $716,077 |
| 2018 | $467,413 | $170,000 | $0 | $637,413 | $637,413 |
| 2017 | $469,365 | $170,000 | $0 | $639,365 | $639,365 |
| 2016 | $474,698 | $160,000 | $0 | $634,698 | $634,698 |
| 2015 | $480,032 | $150,000 | $0 | $630,032 | $630,032 |
| 2014 | $485,365 | $150,000 | $0 | $635,365 | $635,365 |
| 2013 | $490,700 | $119,880 | $0 | $610,580 | $610,580 |
| 2012 | $516,234 | $119,880 | $0 | $636,114 | $636,114 |
| 2011 | $521,751 | $133,200 | $0 | $654,951 | $654,951 |
| 2010 | $517,935 | $133,200 | $0 | $651,135 | $651,135 |
| 2009 | $539,562 | $162,000 | $0 | $701,562 | $701,562 |
| 2008 | $545,351 | $220,968 | $0 | $766,319 | $766,319 |
| 2007 | $545,640 | $200,880 | $0 | $746,520 | $746,520 |
Deed and Sales History
| 1 | 04/01/2014 | QCD | Quit Claim Deed | ROBART, CARL V | ROBART JTWROS, CARL VICTOR | | | $0.00 | 14761 | 4357294 |
| 2 | 10/10/2006 | BLA | DNU - Boundary Line Adjustment | Unknown | ROBART, CARL V | | | $0.00 | 80035 | 4125288 |
Payout Agreement
| No payout information available.. |