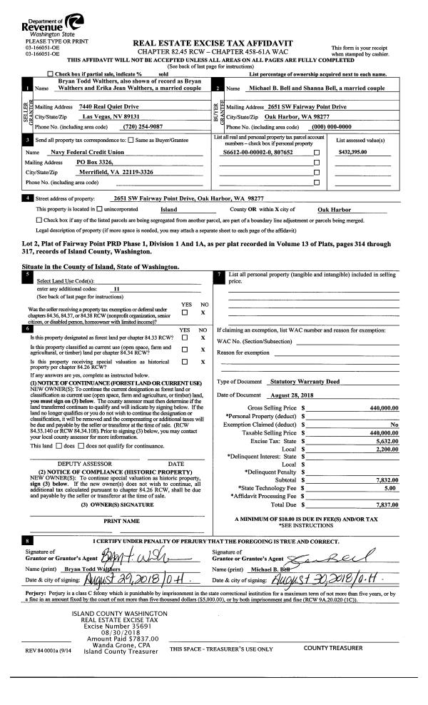
Property
Account |
| Property ID: | 807537 | Abbreviated Legal Description: | IN GL4: BG MC SEC 7&18 N6*E1705.40' N38*E865.90' N44*E2041.40' N52*E380.80' N59*E698.9' N70*E120.79' TPB N70*E50.85' N30*W151.64' S65*W50.28' S30*E147.63' TPB EX PT LY IN TR TO DRIFTWOOD SHORES WATER SYSTEM, INC. AF#118721 TGW PT GL4: BG MC SEC 7 & 18 N |
| Geographic ID: | R33107-507-4530 | Agent Code: | |
| Type: | Real | | |
| Tax Area: | 510 - APPRAISER-Stan/Cam Schl Dist, improved & 1 acre or less | Land Use Code | 11 |
| Open Space: | N | DFL | N |
| Historic Property: | N | Remodel Property: | N |
| Multi-Family Redevelopment: | N | | |
| Township: | 31 | Section: | 07 |
| Range: | R3 |
Location |
| Address: | 335 DRIFTWOOD SHORES RD CAMANO ISLAND, WA 98282 | Mapsco: | |
| Neighborhood: | Cycle 5 | Map ID: | 924 |
| Neighborhood CD: | 5 |
Owner |
| Name: | SPRAGUE, JEFFREY N | Owner ID: | 286224 |
| Mailing Address: | KATHRYN J VERRAN 15528 135TH AVE E PUYALLUP, WA 98374 | % Ownership: | 100.0000000000% |
| | | Exemptions: | |
Taxes and Assessment Details
Values
| (+) Improvement Homesite Value: | + | $0 | |
| (+) Improvement Non-Homesite Value: | + | $507,736 | |
| (+) Land Homesite Value: | + | $0 | |
| (+) Land Non-Homesite Value: | + | $900,000 | |
| (+) Curr Use (HS): | + | $0 | $0 |
| (+) Curr Use (NHS): | + | $0 | $0 |
| | | -------------------------- | |
| (=) Market Value: | = | $1,407,736 | |
| (–) Productivity Loss: | – | $0 | |
| | | -------------------------- | |
| (=) Subtotal: | = | $1,407,736 | |
| (+) Senior Appraised Value: | + | $0 | |
| (+) Non-Senior Appraised Value: | + | $1,407,736 | |
| | | -------------------------- | |
| (=) Total Appraised Value: | = | $1,407,736 | |
| (–) Senior Exemption Loss: | – | $0 | |
| (–) Exemption Loss: | – | $0 | |
| | | -------------------------- | |
| (=) Taxable Value: | = | $1,407,736 | |
Taxing Jurisdiction
| Owner: | SPRAGUE, JEFFREY N | | |
| % Ownership: | 100.0000000000% | | |
| Total Value: | $1,407,736 | | |
| Tax Area: | 510 - APPRAISER-Stan/Cam Schl Dist, improved & 1 acre or less |
| CF | Conservation Futures | 0.0316035091 | $1,407,736 | $1,407,736 | $44.49 | | |
| EMS1 | Fire & Rescue Dist #1 Camano GEN (EMS) | 0.3677864386 | $1,407,736 | $1,407,736 | $517.75 | | |
| FIRE1 | Fire & Rescue Dist #1 Camano GEN | 1.2502910536 | $1,407,736 | $1,407,736 | $1,760.08 | | |
| FIRE1BOND | Fire & Rescue Dist #1 Camano BOND | 0.1570001679 | $1,407,736 | $1,407,736 | $221.01 | | |
| CE | County Current Expense | 0.3708482477 | $1,407,736 | $1,407,736 | $522.06 | | |
| CR | County Roads | 0.4584763726 | $1,407,736 | $1,407,736 | $645.41 | | |
| LCIB | Library Sno-Isle BOND (Camano Island) | 0.0396325772 | $1,407,736 | $1,407,736 | $55.79 | | |
| LIB | Library Sno-Isle GEN | 0.3153421757 | $1,407,736 | $1,407,736 | $443.92 | | |
| SCH205_401 | School 205-401 Enrichment | 1.2698420524 | $1,407,736 | $1,407,736 | $1,787.60 | | |
| SCH205BOND | School 205-401 BOND | 0.9396497583 | $1,407,736 | $1,407,736 | $1,322.78 | | |
| ST | State School | 1.3035497053 | $1,407,736 | $1,407,736 | $1,835.05 | | |
| ST2 | State School Part 2 | 0.8169543533 | $1,407,736 | $1,407,736 | $1,150.06 | | |
| | Total Tax Rate: | 7.3209764117 | | | | | |
| | | | | Taxes w/Current Exemptions: | $10,306.00 | | |
| | | | | Taxes w/o Exemptions: | $10,306.00 | | |
Improvement / Building
| Improvement #1: | RESIDENTIAL | State Code: | Y | 3030.2 sqft | Value: | $507,736 |
| Bathrooms: | 2 | Bedrooms: | 3 | | Ceiling: | DRYWALL PAINTED | Exterior Wall/Cover: | PLY/HARDBOARD T-111 | | Floor Covering: | CARPET/VINYL 60-40 | Floor Structure: | WOOD W/SUBFLOOR | | Foundation: | CONCRETE | Heating: | FHA GAS | | Interior Finish: | DRYWALL PAINT | Plumbing Fixture Cnt: | 11 | | Roof Slope: | 5" IN 12" | Roof Structure/Cover: | CJ ASPHALT |
|
| | Type | Description | Class CD | Sub Class CD | Year Built | Area |
| | BAS | BASE/MAIN FLOOR | 4 | 0 | 2009 | 2386.2 |
| | DGR | DETACHED GARAGE | 4 | 0 | 2009 | 654.0 |
| | UPS | UPPER STORY | 4 | 0 | 2009 | 644.0 |
| | OWP | OPEN WOOD PORCH W/STEPS | 4 | 0 | 2009 | 258.0 |
| | OWP | OPEN WOOD PORCH W/STEPS | 4 | 0 | 2009 | 92.0 |
| | OWC | OPEN WOOD PORCH W/STEPS/ROOF/C | 4 | 0 | 2009 | 156.0 |
Sketch
Property Image
Land
| 1 | LB | LOW BANK | 0.4000 | 17424.00 | 102.69 | 0.00 | 1.00 | $900,000 | $0 |
Roll Value History
| 2026 | N/A | N/A | N/A | N/A | N/A |
| 2025 | $507,736 | $900,000 | $0 | $1,407,736 | $1,407,736 |
| 2024 | $513,762 | $900,000 | $0 | $1,413,762 | $1,413,762 |
| 2023 | $519,790 | $850,000 | $0 | $1,369,790 | $1,369,790 |
| 2022 | $476,120 | $780,000 | $0 | $1,256,120 | $1,256,120 |
| 2021 | $422,433 | $625,000 | $0 | $1,047,433 | $1,047,433 |
| 2020 | $412,383 | $525,000 | $0 | $937,383 | $937,383 |
| 2019 | $324,336 | $525,000 | $0 | $849,336 | $849,336 |
| 2018 | $325,235 | $450,000 | $0 | $775,235 | $775,235 |
| 2017 | $326,993 | $450,000 | $0 | $776,993 | $776,993 |
| 2016 | $330,586 | $450,000 | $0 | $780,586 | $780,586 |
| 2015 | $297,427 | $450,000 | $0 | $747,427 | $747,427 |
| 2014 | $300,625 | $450,000 | $0 | $750,625 | $750,625 |
| 2013 | $303,823 | $476,521 | $0 | $780,344 | $780,344 |
| 2012 | $307,021 | $476,521 | $0 | $783,542 | $783,542 |
| 2011 | $310,219 | $595,651 | $0 | $905,870 | $905,870 |
| 2010 | $314,313 | $595,651 | $0 | $909,964 | $909,964 |
| 2009 | $329,034 | $638,712 | $0 | $967,746 | $967,746 |
| 2008 | $204,778 | $676,472 | $0 | $881,250 | $881,250 |
| 2007 | $58,446 | $590,952 | $0 | $649,398 | $649,398 |
Deed and Sales History
| 1 | 06/20/2018 | QCD | Quit Claim Deed | SPRAGUE, PATRICIA J | SPRAGUE, JEFFREY N | | | $0.00 | 35235 | 4449011 |
| 2 | 10/12/2006 | BLA | DNU - Boundary Line Adjustment | Unknown | SPRAGUE, PATRICIA J | | | $0.00 | 80039 | 4126897 |
Payout Agreement
| No payout information available.. |