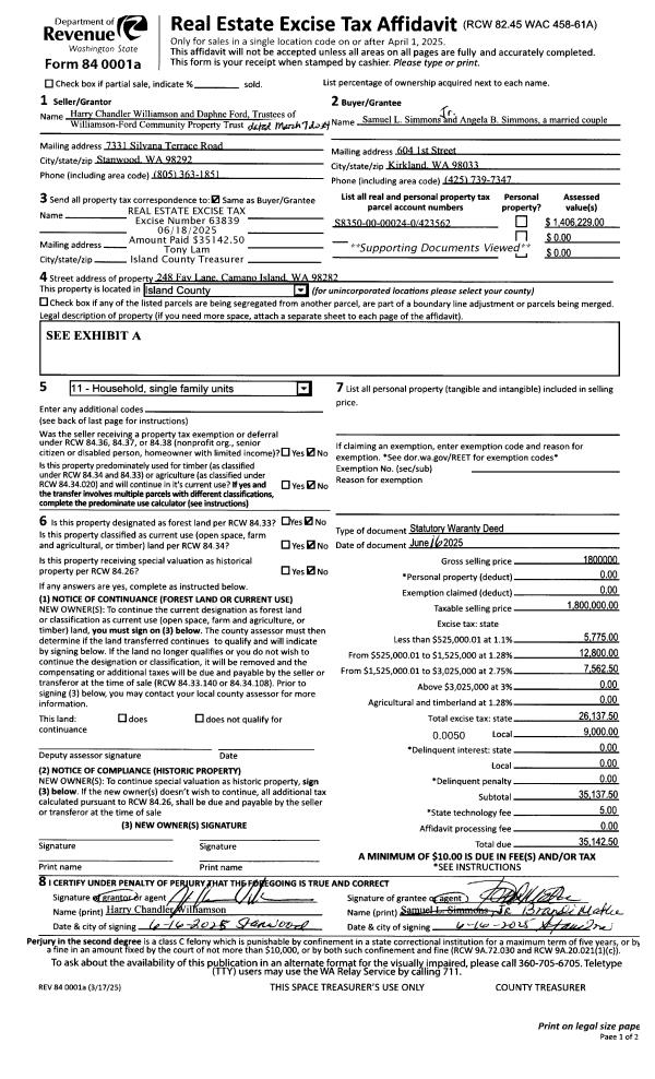
Property
Account |
| Property ID: | 807608 | Abbreviated Legal Description: | HULL ADD S30' LOTS 3 & 4 BLK 2 AND N50' LOTS 5 & 6 BLK 2 |
| Geographic ID: | S7215-00-02002-2 | Agent Code: | |
| Type: | Real | | |
| Tax Area: | 300 - APPRAISER-Cpvl Schl Dist, in Cpvl | Land Use Code | 11 |
| Open Space: | N | DFL | N |
| Historic Property: | N | Remodel Property: | N |
| Multi-Family Redevelopment: | N | | |
| Township: | | Section: | |
| Range: | |
Location |
| Address: | 706 NE LINDSAY ST COUPEVILLE, WA 98239 | Mapsco: | |
| Neighborhood: | Cycle 2 | Map ID: | 179 |
| Neighborhood CD: | 2 |
Owner |
| Name: | KELLNER, TIM | Owner ID: | 269311 |
| Mailing Address: | JENNIFER KELLNER 706 NE LINDSAY ST COUPEVILLE, WA 98239 | % Ownership: | 100.0000000000% |
| | | Exemptions: | |
Taxes and Assessment Details
Values
| (+) Improvement Homesite Value: | + | $0 | |
| (+) Improvement Non-Homesite Value: | + | $454,903 | |
| (+) Land Homesite Value: | + | $0 | |
| (+) Land Non-Homesite Value: | + | $260,000 | |
| (+) Curr Use (HS): | + | $0 | $0 |
| (+) Curr Use (NHS): | + | $0 | $0 |
| | | -------------------------- | |
| (=) Market Value: | = | $714,903 | |
| (–) Productivity Loss: | – | $0 | |
| | | -------------------------- | |
| (=) Subtotal: | = | $714,903 | |
| (+) Senior Appraised Value: | + | $0 | |
| (+) Non-Senior Appraised Value: | + | $714,903 | |
| | | -------------------------- | |
| (=) Total Appraised Value: | = | $714,903 | |
| (–) Senior Exemption Loss: | – | $0 | |
| (–) Exemption Loss: | – | $0 | |
| | | -------------------------- | |
| (=) Taxable Value: | = | $714,903 | |
Taxing Jurisdiction
| Owner: | KELLNER, TIM | | |
| % Ownership: | 100.0000000000% | | |
| Total Value: | $714,903 | | |
| Tax Area: | 300 - APPRAISER-Cpvl Schl Dist, in Cpvl |
| CF | Conservation Futures | 0.0316035091 | $714,903 | $714,903 | $22.59 | | |
| CEM2 | Cemetery #2 | 0.0095056933 | $714,903 | $714,903 | $6.80 | | |
| COUP | City: Town of Coupeville | 0.8426414490 | $714,903 | $714,903 | $602.41 | | |
| FIRE5 | Fire & Rescue Dist #5 C Whidbey GEN | 1.2008080668 | $714,903 | $714,903 | $858.46 | | |
| FIRE5BOND | Fire & Rescue Dist #5 C Whidbey BOND | 0.1400090713 | $714,903 | $714,903 | $100.09 | | |
| HOBOND | Hospital BOND | 0.1910887512 | $714,903 | $714,903 | $136.61 | | |
| HOGEN | Hospital GEN | 0.3902502903 | $714,903 | $714,903 | $278.99 | | |
| CE | County Current Expense | 0.3708482477 | $714,903 | $714,903 | $265.12 | | |
| ISLANDEMS | Hospital GEN (EMS) | 0.5000000000 | $714,903 | $714,903 | $357.45 | | |
| LIB | Library Sno-Isle GEN | 0.3153421757 | $714,903 | $714,903 | $225.44 | | |
| LIBCAP | Library Sno-Isle BOND (Cap Fac Imp Area) | 0.0543427938 | $714,903 | $714,903 | $38.85 | | |
| POCOUP | Port of Coupeville GEN | 0.1093371703 | $714,903 | $714,903 | $78.17 | | |
| POCOUPIDD | Port of Coupeville IDD | 0.3409740022 | $714,903 | $714,903 | $243.76 | | |
| COUPSDTECH | School 204 CP (TECH) | 0.7545480007 | $714,903 | $714,903 | $539.43 | | |
| SCH204MO | School 204 Enrichment | 0.6716186034 | $714,903 | $714,903 | $480.14 | | |
| ST | State School | 1.3035497053 | $714,903 | $714,903 | $931.91 | | |
| ST2 | State School Part 2 | 0.8169543533 | $714,903 | $714,903 | $584.04 | | |
| | Total Tax Rate: | 8.0434218834 | | | | | |
| | | | | Taxes w/Current Exemptions: | $5,750.26 | | |
| | | | | Taxes w/o Exemptions: | $5,750.26 | | |
Improvement / Building
| Improvement #1: | RESIDENTIAL | State Code: | Y | 2106.6 sqft | Value: | $454,903 |
| Bathrooms: | 2.5 | Bedrooms: | 3 | | Ceiling: | DRYWALL PAINTED | Exterior Wall/Cover: | CEMENT FIBER | | Floor Covering: | HARDWOOD/CARP 60-40 | Floor Structure: | WOOD W/SUBFLOOR | | Foundation: | CONCRETE | Heating: | FHA ELECTRIC | | Interior Finish: | DRYWALL PAINT | Plumbing Fixture Cnt: | 12 | | Roof Slope: | 4" IN 12" | Roof Structure/Cover: | CJ ASPHALT |
|
| | Type | Description | Class CD | Sub Class CD | Year Built | Area |
| | BAS | BASE/MAIN FLOOR | 4 | 0 | 2006 | 932.3 |
| | UPS | UPPER STORY | 4 | 0 | 2006 | 1174.3 |
| | OWP | OPEN WOOD PORCH W/STEPS | 4 | 0 | 2006 | 72.0 |
| | OWC | OPEN WOOD PORCH W/STEPS/ROOF/C | 4 | 0 | 2006 | 40.0 |
| | OWC | OPEN WOOD PORCH W/STEPS/ROOF/C | 4 | 0 | 2006 | 60.0 |
| | OWP | OPEN WOOD PORCH W/STEPS | 4 | 0 | 2006 | 60.0 |
| | BIG | BUILT IN GARAGE | 4 | 0 | 2006 | 400.0 |
Sketch
| No sketches available for this property. |
Property Image
Land
| 1 | 15 | SQ (12001-21780) | 0.1800 | 7840.80 | 0.00 | 0.00 | 1.00 | $260,000 | $0 |
Roll Value History
| 2026 | N/A | N/A | N/A | N/A | N/A |
| 2025 | $454,903 | $260,000 | $0 | $714,903 | $714,903 |
| 2024 | $474,298 | $240,000 | $0 | $714,298 | $714,298 |
| 2023 | $479,673 | $240,000 | $0 | $719,673 | $719,673 |
| 2022 | $438,000 | $200,000 | $0 | $638,000 | $638,000 |
| 2021 | $384,258 | $150,000 | $0 | $534,258 | $534,258 |
| 2020 | $373,260 | $130,000 | $0 | $503,260 | $503,260 |
| 2019 | $284,004 | $170,000 | $0 | $454,004 | $454,004 |
| 2018 | $276,928 | $150,000 | $0 | $426,928 | $426,928 |
| 2017 | $278,440 | $130,000 | $0 | $408,440 | $408,440 |
| 2016 | $281,467 | $115,000 | $0 | $396,467 | $396,467 |
| 2015 | $284,494 | $90,000 | $0 | $374,494 | $374,494 |
| 2014 | $235,559 | $85,000 | $0 | $320,559 | $320,559 |
| 2013 | $238,149 | $85,000 | $0 | $323,149 | $323,149 |
| 2012 | $240,737 | $90,950 | $0 | $331,687 | $331,687 |
| 2011 | $243,326 | $107,000 | $0 | $350,326 | $350,326 |
| 2010 | $250,446 | $107,000 | $0 | $357,446 | $357,446 |
| 2009 | $260,868 | $125,000 | $0 | $385,868 | $385,868 |
| 2008 | $263,730 | $145,000 | $0 | $408,730 | $408,730 |
| 2007 | $264,008 | $145,000 | $0 | $409,008 | $409,008 |
Deed and Sales History
| 1 | 02/10/2015 | WD | Warranty Deed | LEUSCHNER, WILLIAM R | KELLNER, TIM | | | $395,000.00 | 18595 | 4373919 |
| 2 | 06/25/2010 | WD | Warranty Deed | TERRI MONTANA | LEUSCHNER, WILLIAM R | | | $372,500.00 | 1628 | 4276542 |
| 3 | 06/30/2010 | ESTSEPPROP | Establish Separate Property | MONTANA, BRIAN | MONTANA, TERRI | | | $0.00 | 1627 | 4276541 |
| 4 | 03/13/2007 | BLA | DNU - Boundary Line Adjustment | Unknown | JOHNSON, EDWARD M | | | $0.00 | 80138 | 4133824 |
| 5 | 11/01/2005 | WD | Warranty Deed | JOHNSON, EDWARD M | MONTANA, BRIAN | | | $85,000.00 | 55627 | 4153350 |
Payout Agreement
| No payout information available.. |