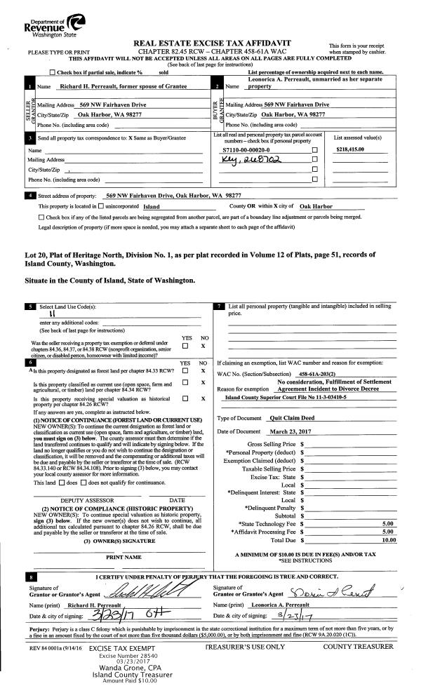
Property
Account |
| Property ID: | 807625 | Abbreviated Legal Description: | USELESS BAY COLONY #18 LOT 10 |
| Geographic ID: | S8340-18-00010-0 | Agent Code: | |
| Type: | Real | | |
| Tax Area: | 750 - APPRAISER-S Whid Schl Dist, Special District, improved & less than 1 acre | Land Use Code | 11 |
| Open Space: | N | DFL | N |
| Historic Property: | N | Remodel Property: | N |
| Multi-Family Redevelopment: | N | | |
| Township: | | Section: | |
| Range: | |
Location |
| Address: | 2442 CAMBRIDGE CT LANGLEY, WA 98260 | Mapsco: | |
| Neighborhood: | Cycle 3 | Map ID: | 785 |
| Neighborhood CD: | 3 |
Owner |
| Name: | EDWARDS, CHARLES W | Owner ID: | 278986 |
| Mailing Address: | PO BOX 340 FREELAND, WA 98249 | % Ownership: | 100.0000000000% |
| | | Exemptions: | |
Taxes and Assessment Details
Values
| (+) Improvement Homesite Value: | + | $0 | |
| (+) Improvement Non-Homesite Value: | + | $623,004 | |
| (+) Land Homesite Value: | + | $0 | |
| (+) Land Non-Homesite Value: | + | $300,000 | |
| (+) Curr Use (HS): | + | $0 | $0 |
| (+) Curr Use (NHS): | + | $0 | $0 |
| | | -------------------------- | |
| (=) Market Value: | = | $923,004 | |
| (–) Productivity Loss: | – | $0 | |
| | | -------------------------- | |
| (=) Subtotal: | = | $923,004 | |
| (+) Senior Appraised Value: | + | $0 | |
| (+) Non-Senior Appraised Value: | + | $923,004 | |
| | | -------------------------- | |
| (=) Total Appraised Value: | = | $923,004 | |
| (–) Senior Exemption Loss: | – | $0 | |
| (–) Exemption Loss: | – | $0 | |
| | | -------------------------- | |
| (=) Taxable Value: | = | $923,004 | |
Taxing Jurisdiction
| Owner: | EDWARDS, CHARLES W | | |
| % Ownership: | 100.0000000000% | | |
| Total Value: | $923,004 | | |
| Tax Area: | 750 - APPRAISER-S Whid Schl Dist, Special District, improved & less than 1 acre |
| CF | Conservation Futures | 0.0316035091 | $923,004 | $923,004 | $29.17 | | |
| FIRE3 | Fire & Rescue Dist #3 S Whidbey GEN | 1.2004855531 | $923,004 | $923,004 | $1,108.05 | | |
| HOBOND | Hospital BOND | 0.1910887512 | $923,004 | $923,004 | $176.38 | | |
| HOGEN | Hospital GEN | 0.3902502903 | $923,004 | $923,004 | $360.20 | | |
| CE | County Current Expense | 0.3708482477 | $923,004 | $923,004 | $342.29 | | |
| CR | County Roads | 0.4584763726 | $923,004 | $923,004 | $423.18 | | |
| ISLANDEMS | Hospital GEN (EMS) | 0.5000000000 | $923,004 | $923,004 | $461.50 | | |
| LIB | Library Sno-Isle GEN | 0.3153421757 | $923,004 | $923,004 | $291.06 | | |
| PORTWHID | Port of S Whidbey GEN | 0.1094540357 | $923,004 | $923,004 | $101.03 | | |
| SCH206BOND | School 206 BOND | 0.3161759235 | $923,004 | $923,004 | $291.83 | | |
| SCH206MO | School 206 Enrichment | 0.4547169547 | $923,004 | $923,004 | $419.71 | | |
| ST | State School | 1.3035497053 | $923,004 | $923,004 | $1,203.18 | | |
| ST2 | State School Part 2 | 0.8169543533 | $923,004 | $923,004 | $754.05 | | |
| SWHIDPRBD | P & R S Whidbey BOND | 0.0152817568 | $923,004 | $923,004 | $14.11 | | |
| SWHIDPRBD2 | P & R S Whidbey BOND2 | 0.0138911264 | $923,004 | $923,004 | $12.82 | | |
| SWHIDPRMT | P & R S Whidbey GEN | 0.2053334452 | $923,004 | $923,004 | $189.52 | | |
| | Total Tax Rate: | 6.6934522006 | | | | | |
| | | | | Taxes w/Current Exemptions: | $6,178.08 | | |
| | | | | Taxes w/o Exemptions: | $6,178.08 | | |
Improvement / Building
| Improvement #1: | RESIDENTIAL | State Code: | Y | 2909.2 sqft | Value: | $623,004 |
| Bathrooms: | 2.5 | Bedrooms: | 3 | | Ceiling: | DRYWALL PAINTED | Exterior Wall/Cover: | SHINGLE | | Floor Covering: | HARDWOOD/CARP 60-40 | Floor Structure: | WOOD W/SUBFLOOR | | Foundation: | CONCRETE | Heating: | FHA GAS | | Interior Finish: | DRYWALL PAINT | Plumbing Fixture Cnt: | 14 | | Roof Slope: | 8" IN 12" | Roof Structure/Cover: | CJ ASPHALT |
|
| | Type | Description | Class CD | Sub Class CD | Year Built | Area |
| | BAS | BASE/MAIN FLOOR | 5 | 0 | 2007 | 1792.4 |
| | AGR | ATTACHED GARAGE | 5 | 0 | 2007 | 726.0 |
| | UPS | UPPER STORY | 5 | 0 | 2007 | 793.8 |
| | OWP | OPEN WOOD PORCH W/STEPS | 5 | 0 | 2007 | 350.8 |
| | OWC | OPEN WOOD PORCH W/STEPS/ROOF/C | 5 | 0 | 2007 | 70.0 |
| | OWR | OPEN WOOD PORCH W/STEPS/ROOF | 5 | 0 | 2007 | 139.0 |
| | OWC | OPEN WOOD PORCH W/STEPS/ROOF/C | 5 | 0 | 2007 | 232.4 |
| | LOF | LOFT | 5 | 0 | 2007 | 323.0 |
Sketch
Property Image
Land
| 1 | 15 | SQ (12001-21780) | 0.0000 | 0.00 | 0.00 | 0.00 | 1.00 | $300,000 | $0 |
Roll Value History
| 2026 | N/A | N/A | N/A | N/A | N/A |
| 2025 | $623,004 | $300,000 | $0 | $923,004 | $923,004 |
| 2024 | $630,146 | $270,000 | $0 | $900,146 | $900,146 |
| 2023 | $637,286 | $250,000 | $0 | $887,286 | $887,286 |
| 2022 | $581,924 | $210,000 | $0 | $791,924 | $791,924 |
| 2021 | $510,516 | $180,000 | $0 | $690,516 | $690,516 |
| 2020 | $495,502 | $140,000 | $0 | $635,502 | $635,502 |
| 2019 | $398,319 | $180,000 | $0 | $578,319 | $578,319 |
| 2018 | $399,421 | $155,000 | $0 | $554,421 | $554,421 |
| 2017 | $401,510 | $120,000 | $0 | $521,510 | $521,510 |
| 2016 | $405,921 | $85,000 | $0 | $490,921 | $490,921 |
| 2015 | $410,333 | $85,000 | $0 | $495,333 | $495,333 |
| 2014 | $414,746 | $85,000 | $0 | $499,746 | $499,746 |
| 2013 | $427,177 | $75,500 | $0 | $502,677 | $502,677 |
| 2012 | $431,771 | $75,500 | $0 | $507,271 | $507,271 |
| 2011 | $436,366 | $75,500 | $0 | $511,866 | $511,866 |
| 2010 | $438,042 | $85,800 | $0 | $523,842 | $523,842 |
| 2009 | $365,560 | $185,000 | $0 | $550,560 | $550,560 |
| 2008 | $456,589 | $185,000 | $0 | $641,589 | $641,589 |
| 2007 | $56,736 | $185,000 | $0 | $241,736 | $241,736 |
Deed and Sales History
| 1 | 03/13/2017 | PRD | Personal Representatives Deed | EDWARDS, CHARLES W | EDWARDS, CHARLES W | | | $0.00 | 28485 | 4419029 |
| 2 | 03/22/2007 | 5 | DNU - Marriage License/Name Change | HILLIS DRIVE LLC, | EDWARDS, CHARLES W | | | $0.00 | 70984 | 4197612 |
| 3 | 01/01/1900 | OTHER | Other - Misc. Documents | Unknown | HILLIS DRIVE LLC, | | | $0.00 | 0 | 0 |
Payout Agreement
| No payout information available.. |