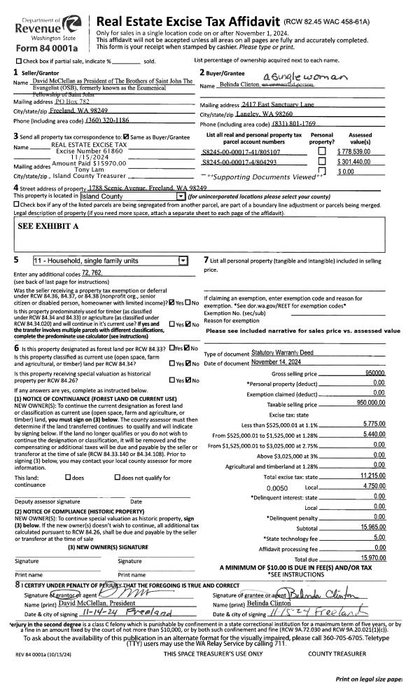
Property
Account |
| Property ID: | 807626 | Abbreviated Legal Description: | 110 - NW NW SE EX PENNINGTON WAY TGW PT LOT 7 BLK H SUNSET TERRACE LY IN SW SW NE & ALSO S32.79' OF SD SW SW NE DESC: BG SWCR OF SW SW NE N ALG WLN SD SW SW NE 32.79' S89*E PARA/TO SLN SD SW SW NE 16.70' TO CM BEING NECR OF SUNSET TERRACE S89*E648.64' T |
| Geographic ID: | R13234-233-2980 | Agent Code: | |
| Type: | Real | | |
| Tax Area: | 300 - APPRAISER-Cpvl Schl Dist, in Cpvl | Land Use Code | 11 |
| Open Space: | N | DFL | N |
| Historic Property: | N | Remodel Property: | N |
| Multi-Family Redevelopment: | N | | |
| Township: | 32 | Section: | 34 |
| Range: | R1 |
Location |
| Address: | 980 NE PENNINGTON LOOP COUPEVILLE, WA 98239 | Mapsco: | |
| Neighborhood: | Cycle 2 | Map ID: | 178 |
| Neighborhood CD: | 2 |
Owner |
| Name: | TUTTLE, MARIANNE D | Owner ID: | 52170 |
| Mailing Address: | PO BOX 462 COUPEVILLE, WA 98239-0462 | % Ownership: | 100.0000000000% |
| | | Exemptions: | |
Taxes and Assessment Details
Values
| (+) Improvement Homesite Value: | + | $0 | |
| (+) Improvement Non-Homesite Value: | + | $166,861 | |
| (+) Land Homesite Value: | + | $0 | |
| (+) Land Non-Homesite Value: | + | $355,989 | |
| (+) Curr Use (HS): | + | $0 | $0 |
| (+) Curr Use (NHS): | + | $0 | $0 |
| | | -------------------------- | |
| (=) Market Value: | = | $522,850 | |
| (–) Productivity Loss: | – | $0 | |
| | | -------------------------- | |
| (=) Subtotal: | = | $522,850 | |
| (+) Senior Appraised Value: | + | $0 | |
| (+) Non-Senior Appraised Value: | + | $522,850 | |
| | | -------------------------- | |
| (=) Total Appraised Value: | = | $522,850 | |
| (–) Senior Exemption Loss: | – | $0 | |
| (–) Exemption Loss: | – | $0 | |
| | | -------------------------- | |
| (=) Taxable Value: | = | $522,850 | |
Taxing Jurisdiction
| Owner: | TUTTLE, MARIANNE D | | |
| % Ownership: | 100.0000000000% | | |
| Total Value: | $522,850 | | |
| Tax Area: | 300 - APPRAISER-Cpvl Schl Dist, in Cpvl |
| CF | Conservation Futures | 0.0316035091 | $522,850 | $522,850 | $16.52 | | |
| CEM2 | Cemetery #2 | 0.0095056933 | $522,850 | $522,850 | $4.97 | | |
| COUP | City: Town of Coupeville | 0.8426414490 | $522,850 | $522,850 | $440.58 | | |
| FIRE5 | Fire & Rescue Dist #5 C Whidbey GEN | 1.2008080668 | $522,850 | $522,850 | $627.84 | | |
| FIRE5BOND | Fire & Rescue Dist #5 C Whidbey BOND | 0.1400090713 | $522,850 | $522,850 | $73.20 | | |
| HOBOND | Hospital BOND | 0.1910887512 | $522,850 | $522,850 | $99.91 | | |
| HOGEN | Hospital GEN | 0.3902502903 | $522,850 | $522,850 | $204.04 | | |
| CE | County Current Expense | 0.3708482477 | $522,850 | $522,850 | $193.90 | | |
| ISLANDEMS | Hospital GEN (EMS) | 0.5000000000 | $522,850 | $522,850 | $261.43 | | |
| LIB | Library Sno-Isle GEN | 0.3153421757 | $522,850 | $522,850 | $164.88 | | |
| LIBCAP | Library Sno-Isle BOND (Cap Fac Imp Area) | 0.0543427938 | $522,850 | $522,850 | $28.41 | | |
| POCOUP | Port of Coupeville GEN | 0.1093371703 | $522,850 | $522,850 | $57.17 | | |
| POCOUPIDD | Port of Coupeville IDD | 0.3409740022 | $522,850 | $522,850 | $178.28 | | |
| COUPSDTECH | School 204 CP (TECH) | 0.7545480007 | $522,850 | $522,850 | $394.52 | | |
| SCH204MO | School 204 Enrichment | 0.6716186034 | $522,850 | $522,850 | $351.16 | | |
| ST | State School | 1.3035497053 | $522,850 | $522,850 | $681.56 | | |
| ST2 | State School Part 2 | 0.8169543533 | $522,850 | $522,850 | $427.14 | | |
| | Total Tax Rate: | 8.0434218834 | | | | | |
| | | | | Taxes w/Current Exemptions: | $4,205.51 | | |
| | | | | Taxes w/o Exemptions: | $4,205.51 | | |
Improvement / Building
| Improvement #1: | RESIDENTIAL | State Code: | Y | 3654.0 sqft | Value: | $166,861 |
| Bathrooms: | 2 | Bedrooms: | 3 | | Ceiling: | DRYWALL PAINTED | Exterior Wall/Cover: | WOOD SIDING | | Floor Covering: | CARPET/VINYL 80-20 | Floor Structure: | WOOD W/SUBFLOOR | | Foundation: | CONCRETE | Heating: | CEILING ELECTRIC | | Interior Finish: | DRYWALL PAINT | Plumbing Fixture Cnt: | 9 | | Roof Slope: | 6" IN 12" | Roof Structure/Cover: | CJ ALUMINIUM HEAVY |
|
| | Type | Description | Class CD | Sub Class CD | Year Built | Area |
| | BAS | BASE/MAIN FLOOR | 3 | 0 | 1975 | 2727.0 |
| | UB8 | BASEMENT UNFINISHED 8" | 3 | 0 | 1975 | 960.0 |
| | BGR | BASEMENT GARAGE | 3 | 0 | 1975 | 840.0 |
| | UPS | UPPER STORY | 3 | 0 | 1975 | 927.0 |
| | OWP | OPEN WOOD PORCH W/STEPS | 3 | 0 | 1975 | 63.0 |
| | OWP | OPEN WOOD PORCH W/STEPS | 3 | 0 | 1975 | 70.0 |
Sketch
Property Image
Land
| 1 | 91 | UNDEVELOPED LAND-METES AND BOUNDS | 9.6900 | 422096.40 | 0.00 | 0.00 | 1.00 | $135,989 | $0 |
| 2 | HS | HOMESITE | 1.0000 | 43560.00 | 0.00 | 0.00 | 1.00 | $220,000 | $0 |
Roll Value History
| 2026 | N/A | N/A | N/A | N/A | N/A |
| 2025 | $166,861 | $355,989 | $0 | $522,850 | $522,850 |
| 2024 | $175,920 | $310,000 | $0 | $485,920 | $485,920 |
| 2023 | $178,943 | $290,000 | $0 | $468,943 | $468,943 |
| 2022 | $164,779 | $260,000 | $0 | $424,779 | $424,779 |
| 2021 | $145,665 | $225,000 | $0 | $370,665 | $370,665 |
| 2020 | $143,236 | $215,000 | $0 | $358,236 | $358,236 |
| 2019 | $119,386 | $250,000 | $0 | $369,386 | $369,386 |
| 2018 | $107,535 | $220,000 | $0 | $327,535 | $327,535 |
| 2017 | $108,410 | $200,000 | $0 | $308,410 | $308,410 |
| 2016 | $110,157 | $170,000 | $0 | $280,157 | $280,157 |
| 2015 | $111,907 | $144,315 | $0 | $256,222 | $256,222 |
| 2014 | $113,654 | $144,315 | $0 | $257,969 | $257,969 |
| 2013 | $115,403 | $144,315 | $0 | $259,718 | $259,718 |
| 2012 | $117,153 | $144,315 | $0 | $261,468 | $261,468 |
| 2011 | $87,124 | $160,350 | $0 | $247,474 | $247,474 |
| 2010 | $121,688 | $160,350 | $0 | $282,038 | $282,038 |
| 2009 | $129,017 | $181,730 | $0 | $310,747 | $310,747 |
| 2008 | $132,703 | $181,730 | $0 | $314,433 | $314,433 |
| 2007 | $318,120 | $181,730 | $85,000 | $318,120 | $318,120 |
Deed and Sales History
Payout Agreement
| No payout information available.. |