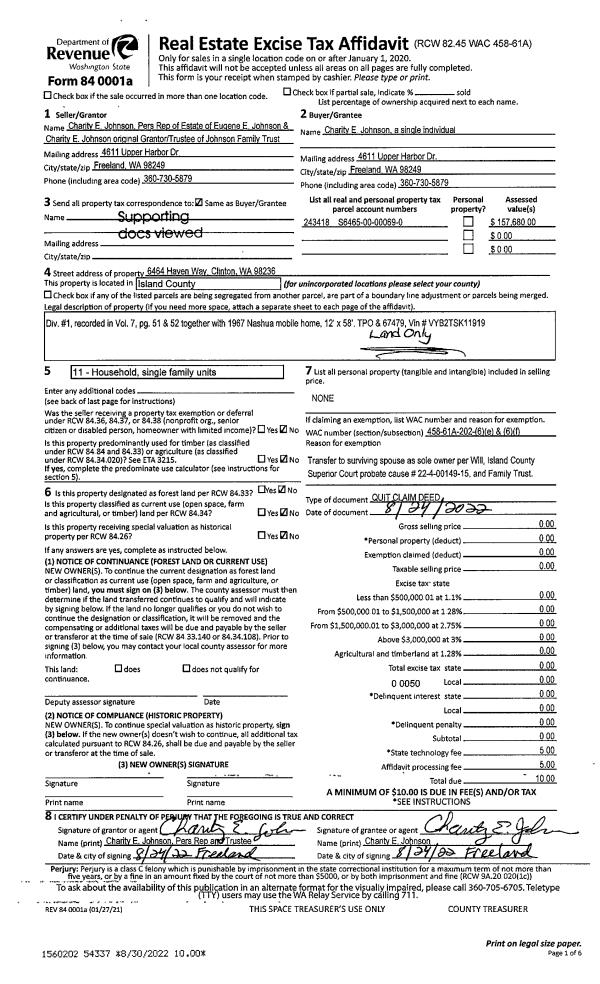
Property
Account |
| Property ID: | 807646 | Abbreviated Legal Description: | IN GL 1: BG NWCR GL 1 S0*W175' S89*E217.98'CUR/L 161.84' N45*E26.78'CUR/R 11.69'TPB CONT ALG CUR 100' S16*E177.58' S78*W36' S59*W26' N29*W175.77' TPB TGW PT GL 1 DESC: BG NWCR SD GL 1 S0*W175' S89*E217.98'CUR/L 113.76'TPB ALG CUR 46.54' N45*E26.78'CUR/R |
| Geographic ID: | R33131-114-0450 | Agent Code: | |
| Type: | Real | | |
| Tax Area: | 540 - APPRAISER-Stan/Cam Schl Dist, Special Dist, improved & less than 1 acre | Land Use Code | 11 |
| Open Space: | N | DFL | N |
| Historic Property: | N | Remodel Property: | N |
| Multi-Family Redevelopment: | N | | |
| Township: | 31 | Section: | 31 |
| Range: | R3 |
Location |
| Address: | 2318 HONEYCOMB LN CAMANO ISLAND, WA 98282 | Mapsco: | |
| Neighborhood: | Cycle 5 | Map ID: | 940 |
| Neighborhood CD: | 5 |
Owner |
| Name: | LIU, CHENG PING | Owner ID: | 261318 |
| Mailing Address: | 2001 HOLDCOMBE BLVD, UNIT 1805 HOUSTON, TX 77030 | % Ownership: | 100.0000000000% |
| | | Exemptions: | |
Taxes and Assessment Details
Values
| (+) Improvement Homesite Value: | + | $0 | |
| (+) Improvement Non-Homesite Value: | + | $469,883 | |
| (+) Land Homesite Value: | + | $0 | |
| (+) Land Non-Homesite Value: | + | $300,000 | |
| (+) Curr Use (HS): | + | $0 | $0 |
| (+) Curr Use (NHS): | + | $0 | $0 |
| | | -------------------------- | |
| (=) Market Value: | = | $769,883 | |
| (–) Productivity Loss: | – | $0 | |
| | | -------------------------- | |
| (=) Subtotal: | = | $769,883 | |
| (+) Senior Appraised Value: | + | $0 | |
| (+) Non-Senior Appraised Value: | + | $769,883 | |
| | | -------------------------- | |
| (=) Total Appraised Value: | = | $769,883 | |
| (–) Senior Exemption Loss: | – | $0 | |
| (–) Exemption Loss: | – | $0 | |
| | | -------------------------- | |
| (=) Taxable Value: | = | $769,883 | |
Taxing Jurisdiction
| Owner: | LIU, CHENG PING | | |
| % Ownership: | 100.0000000000% | | |
| Total Value: | $769,883 | | |
| Tax Area: | 540 - APPRAISER-Stan/Cam Schl Dist, Special Dist, improved & less than 1 acre |
| CF | Conservation Futures | 0.0316035091 | $769,883 | $769,883 | $24.33 | | |
| EMS1 | Fire & Rescue Dist #1 Camano GEN (EMS) | 0.3677864386 | $769,883 | $769,883 | $283.15 | | |
| FIRE1 | Fire & Rescue Dist #1 Camano GEN | 1.2502910536 | $769,883 | $769,883 | $962.58 | | |
| FIRE1BOND | Fire & Rescue Dist #1 Camano BOND | 0.1570001679 | $769,883 | $769,883 | $120.87 | | |
| CE | County Current Expense | 0.3708482477 | $769,883 | $769,883 | $285.51 | | |
| CR | County Roads | 0.4584763726 | $769,883 | $769,883 | $352.97 | | |
| LCIB | Library Sno-Isle BOND (Camano Island) | 0.0396325772 | $769,883 | $769,883 | $30.51 | | |
| LIB | Library Sno-Isle GEN | 0.3153421757 | $769,883 | $769,883 | $242.78 | | |
| SCH205_401 | School 205-401 Enrichment | 1.2698420524 | $769,883 | $769,883 | $977.63 | | |
| SCH205BOND | School 205-401 BOND | 0.9396497583 | $769,883 | $769,883 | $723.42 | | |
| ST | State School | 1.3035497053 | $769,883 | $769,883 | $1,003.58 | | |
| ST2 | State School Part 2 | 0.8169543533 | $769,883 | $769,883 | $628.96 | | |
| | Total Tax Rate: | 7.3209764117 | | | | | |
| | | | | Taxes w/Current Exemptions: | $5,636.29 | | |
| | | | | Taxes w/o Exemptions: | $5,636.29 | | |
Improvement / Building
| Improvement #1: | RESIDENTIAL | State Code: | Y | 1703.1 sqft | Value: | $469,883 |
| Bathrooms: | 2 | Bedrooms: | 2 | | Ceiling: | DRYWALL PAINTED | Exterior Wall/Cover: | CEMENT FIBER | | Floor Covering: | HARDWOOD/CARP 80-20 | Floor Structure: | WOOD W/SUBFLOOR | | Foundation: | CONCRETE | Heating: | FHA ELECTRIC | | Interior Finish: | DRYWALL PAINT | Plumbing Fixture Cnt: | 9 | | Roof Slope: | 12" IN 12" | Roof Structure/Cover: | CJ CLAY TILE |
|
| | Type | Description | Class CD | Sub Class CD | Year Built | Area |
| | BAS | BASE/MAIN FLOOR | 4 | 0 | 2007 | 951.8 |
| | OP4 | OPEN PORCH W/CEILING-ROOF | 4 | 0 | 2007 | 43.3 |
| | BIG | BUILT IN GARAGE | 4 | 0 | 2007 | 951.5 |
| | UPS | UPPER STORY | 4 | 0 | 2007 | 751.3 |
| | BAW | BALCONY WOOD RAIL | 4 | 0 | 2007 | 68.4 |
| | BAW | BALCONY WOOD RAIL | 4 | 0 | 2007 | 68.4 |
| | OWP | OPEN WOOD PORCH W/STEPS | 4 | 0 | 2007 | 356.8 |
| | OWP | OPEN WOOD PORCH W/STEPS | 4 | 0 | 2007 | 96.0 |
| | OP1 | OPEN PORCH SLAB | 4 | 0 | 2007 | 0.0 |
Sketch
Property Image
Land
| 1 | 16 | AC (00.51-01.00) | 0.0000 | 0.00 | 0.00 | 0.00 | 1.00 | $300,000 | $0 |
Roll Value History
| 2026 | N/A | N/A | N/A | N/A | N/A |
| 2025 | $469,883 | $300,000 | $0 | $769,883 | $769,883 |
| 2024 | $475,301 | $290,000 | $0 | $765,301 | $765,301 |
| 2023 | $480,719 | $280,000 | $0 | $760,719 | $760,719 |
| 2022 | $440,944 | $260,000 | $0 | $700,944 | $700,944 |
| 2021 | $374,756 | $160,000 | $0 | $534,756 | $534,756 |
| 2020 | $365,539 | $150,000 | $0 | $515,539 | $515,539 |
| 2019 | $274,756 | $210,000 | $0 | $484,756 | $484,756 |
| 2018 | $275,495 | $200,000 | $0 | $475,495 | $475,495 |
| 2017 | $276,893 | $150,000 | $0 | $426,893 | $426,893 |
| 2016 | $279,846 | $110,000 | $0 | $389,846 | $389,846 |
| 2015 | $278,288 | $108,624 | $0 | $386,912 | $386,912 |
| 2014 | $281,241 | $108,624 | $0 | $389,865 | $389,865 |
| 2013 | $284,197 | $108,624 | $0 | $392,821 | $392,821 |
| 2012 | $287,151 | $108,624 | $0 | $395,775 | $395,775 |
| 2011 | $290,107 | $135,780 | $0 | $425,887 | $425,887 |
| 2010 | $299,014 | $135,780 | $0 | $434,794 | $434,794 |
| 2009 | $310,989 | $150,000 | $0 | $460,989 | $460,989 |
| 2008 | $172,991 | $125,269 | $0 | $298,260 | $298,260 |
| 2007 | $0 | $72,900 | $0 | $72,900 | $72,900 |
Deed and Sales History
| 1 | 03/06/2013 | DECREE | Divorce Decree/Legal Separation | XUE, BIN | LIU, CHENG PING | | | $0.00 | 10826 | 4336555 |
| 2 | 05/14/2007 | BLA | DNU - Boundary Line Adjustment | Unknown | XUE, BIN | | | $0.00 | 80199 | 4169306 |
Payout Agreement
| No payout information available.. |