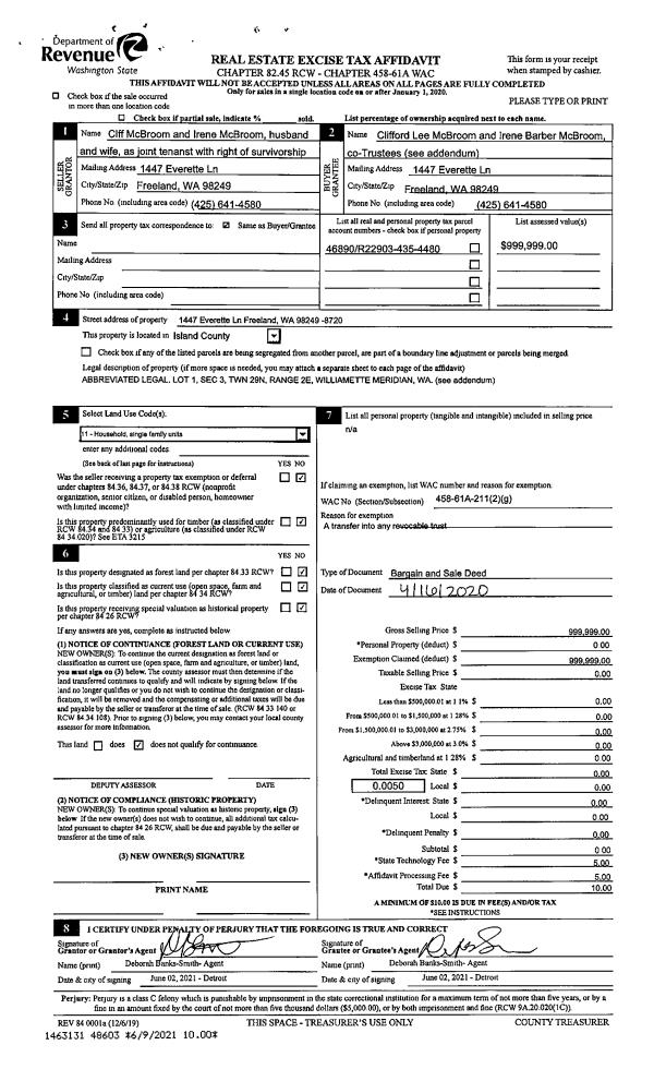
Property
Account |
| Property ID: | 807725 | Abbreviated Legal Description: | PT S/2 NE SE DESC FOLL: BG NECR SD S/2 NE SE (SD PT 648.15' S OF E/4 CR SD SEC 15) N86*W ALG NLN SD S/2 20.01' TP ON WLN CO RD LANGLEY RD S02*W ALG SD WLN 307' TPB N86*W392.17' S02*W345.46' TP ON SLN SD S/2 S87*E ALG SD SLN 392.08' TP ON WLN SD CO RD N02* |
| Geographic ID: | R32915-147-5430 | Agent Code: | |
| Type: | Real | | |
| Tax Area: | 712 - APPRAISER-S Whid Schl Dist, outside Langley, improved, greater than 1 acre | Land Use Code | 11 |
| Open Space: | N | DFL | N |
| Historic Property: | N | Remodel Property: | N |
| Multi-Family Redevelopment: | N | | |
| Township: | 29 | Section: | 15 |
| Range: | R3 |
Location |
| Address: | 5876 LANGLEY RD LANGLEY, WA 98260 | Mapsco: | |
| Neighborhood: | Cycle 4 | Map ID: | 771 |
| Neighborhood CD: | 4 |
Owner |
| Name: | BAUERLE, HEATHER MARIE | Owner ID: | 298894 |
| Mailing Address: | WILLIAM CHARLES BAUERLE 5876 LANGLEY RD LANGLEY, WA 98260 | % Ownership: | 100.0000000000% |
| | | Exemptions: | |
Taxes and Assessment Details
Values
| (+) Improvement Homesite Value: | + | $0 | |
| (+) Improvement Non-Homesite Value: | + | $773,560 | |
| (+) Land Homesite Value: | + | $0 | |
| (+) Land Non-Homesite Value: | + | $370,000 | |
| (+) Curr Use (HS): | + | $0 | $0 |
| (+) Curr Use (NHS): | + | $0 | $0 |
| | | -------------------------- | |
| (=) Market Value: | = | $1,143,560 | |
| (–) Productivity Loss: | – | $0 | |
| | | -------------------------- | |
| (=) Subtotal: | = | $1,143,560 | |
| (+) Senior Appraised Value: | + | $0 | |
| (+) Non-Senior Appraised Value: | + | $1,143,560 | |
| | | -------------------------- | |
| (=) Total Appraised Value: | = | $1,143,560 | |
| (–) Senior Exemption Loss: | – | $0 | |
| (–) Exemption Loss: | – | $0 | |
| | | -------------------------- | |
| (=) Taxable Value: | = | $1,143,560 | |
Taxing Jurisdiction
| Owner: | BAUERLE, HEATHER MARIE | | |
| % Ownership: | 100.0000000000% | | |
| Total Value: | $1,143,560 | | |
| Tax Area: | 712 - APPRAISER-S Whid Schl Dist, outside Langley, improved, greater than 1 acre |
| CF | Conservation Futures | 0.0316035091 | $1,143,560 | $1,143,560 | $36.14 | | |
| FIRE3 | Fire & Rescue Dist #3 S Whidbey GEN | 1.2004855531 | $1,143,560 | $1,143,560 | $1,372.83 | | |
| HOBOND | Hospital BOND | 0.1910887512 | $1,143,560 | $1,143,560 | $218.52 | | |
| HOGEN | Hospital GEN | 0.3902502903 | $1,143,560 | $1,143,560 | $446.27 | | |
| CE | County Current Expense | 0.3708482477 | $1,143,560 | $1,143,560 | $424.09 | | |
| CR | County Roads | 0.4584763726 | $1,143,560 | $1,143,560 | $524.30 | | |
| ISLANDEMS | Hospital GEN (EMS) | 0.5000000000 | $1,143,560 | $1,143,560 | $571.78 | | |
| LIB | Library Sno-Isle GEN | 0.3153421757 | $1,143,560 | $1,143,560 | $360.61 | | |
| PORTWHID | Port of S Whidbey GEN | 0.1094540357 | $1,143,560 | $1,143,560 | $125.17 | | |
| SCH206BOND | School 206 BOND | 0.3161759235 | $1,143,560 | $1,143,560 | $361.57 | | |
| SCH206MO | School 206 Enrichment | 0.4547169547 | $1,143,560 | $1,143,560 | $520.00 | | |
| ST | State School | 1.3035497053 | $1,143,560 | $1,143,560 | $1,490.69 | | |
| ST2 | State School Part 2 | 0.8169543533 | $1,143,560 | $1,143,560 | $934.24 | | |
| SWHIDPRBD | P & R S Whidbey BOND | 0.0152817568 | $1,143,560 | $1,143,560 | $17.48 | | |
| SWHIDPRBD2 | P & R S Whidbey BOND2 | 0.0138911264 | $1,143,560 | $1,143,560 | $15.89 | | |
| SWHIDPRMT | P & R S Whidbey GEN | 0.2053334452 | $1,143,560 | $1,143,560 | $234.81 | | |
| | Total Tax Rate: | 6.6934522006 | | | | | |
| | | | | Taxes w/Current Exemptions: | $7,654.39 | | |
| | | | | Taxes w/o Exemptions: | $7,654.39 | | |
Improvement / Building
| Improvement #1: | RESIDENTIAL | State Code: | Y | 3192.0 sqft | Value: | $773,560 |
| Bathrooms: | 2.5 | Bedrooms: | 4 | | Ceiling: | DRYWALL PAINTED | Cooling: | HEAT PUMP/CONV/V | | Exterior Wall/Cover: | WOOD SIDING | Floor Covering: | HARDWOOD/CARP 20-80 | | Floor Structure: | WOOD W/SUBFLOOR | Foundation: | CONCRETE | | Interior Finish: | DRYWALL PAINT | Plumbing Fixture Cnt: | 14 | | Roof Slope: | 6" IN 12" | Roof Structure/Cover: | CJ ASPHALT |
|
| | Type | Description | Class CD | Sub Class CD | Year Built | Area |
| | BAS | BASE/MAIN FLOOR | 4 | 0 | 2008 | 1829.0 |
| | UTY | STORAGE/UTILITY | 4 | 0 | 2008 | 460.0 |
| | BIG | BUILT IN GARAGE | 4 | 0 | 2008 | 736.0 |
| | UPS | UPPER STORY | 4 | 0 | 2008 | 1363.0 |
| | OWC | OPEN WOOD PORCH W/STEPS/ROOF/C | 4 | 0 | 2008 | 97.0 |
| | DGR | DETACHED GARAGE | 4 | 0 | 2008 | 3440.0 |
Sketch
Property Image
Land
| 1 | 32 | AC (03.01-09.99) | 0.0000 | 0.00 | 0.00 | 0.00 | 1.00 | $370,000 | $0 |
Roll Value History
| 2026 | N/A | N/A | N/A | N/A | N/A |
| 2025 | $773,560 | $370,000 | $0 | $1,143,560 | $1,143,560 |
| 2024 | $782,635 | $350,000 | $0 | $1,132,635 | $1,132,635 |
| 2023 | $791,708 | $330,000 | $0 | $1,121,708 | $1,121,708 |
| 2022 | $725,101 | $280,000 | $0 | $1,005,101 | $1,005,101 |
| 2021 | $637,676 | $230,000 | $0 | $867,676 | $867,676 |
| 2020 | $538,040 | $190,000 | $0 | $728,040 | $728,040 |
| 2019 | $408,237 | $250,000 | $0 | $658,237 | $658,237 |
| 2018 | $409,381 | $210,000 | $0 | $619,381 | $619,381 |
| 2017 | $411,667 | $190,000 | $0 | $601,667 | $601,667 |
| 2016 | $416,241 | $165,000 | $0 | $581,241 | $581,241 |
| 2015 | $420,816 | $135,000 | $0 | $555,816 | $555,816 |
| 2014 | $382,839 | $100,000 | $0 | $482,839 | $482,839 |
| 2013 | $386,956 | $114,750 | $0 | $501,706 | $501,706 |
| 2012 | $391,071 | $114,750 | $0 | $505,821 | $505,821 |
| 2011 | $303,906 | $135,000 | $0 | $438,906 | $438,906 |
| 2010 | $309,118 | $135,000 | $0 | $444,118 | $444,118 |
| 2009 | $318,676 | $135,000 | $0 | $453,676 | $453,676 |
| 2008 | $0 | $135,491 | $0 | $135,491 | $135,491 |
| 2007 | $0 | $135,491 | $0 | $135,491 | $135,491 |
Deed and Sales History
| 1 | 03/24/2021 | WD | Warranty Deed | BAKER, STAN J | BAUERLE, HEATHER MARIE | | | $998,000.00 | 47784 | 4516538 |
| 2 | 09/30/2009 | WD | Warranty Deed | GORDON, S CURTIS | BAKER, STAN J | | | $463,000.00 | 4261184 | 92357 |
| 3 | 10/24/2008 | BLA | DNU - Boundary Line Adjustment | LALONE, JAMES | GORDON, S CURTIS | | | $0.00 | 80978 | 4178570 |
| 4 | 07/26/2007 | WD | Warranty Deed | Unknown | LALONE, JAMES | | | $160,000.00 | 72590 | 4208419 |
Payout Agreement
| No payout information available.. |