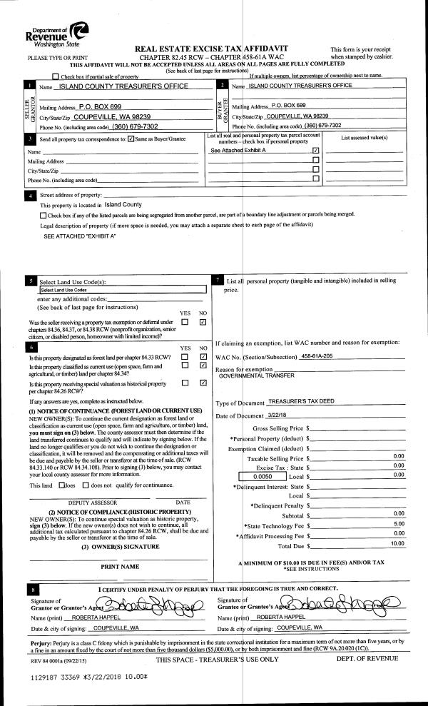
Property
Account |
| Property ID: | 807762 | Abbreviated Legal Description: | CROSBY COMMONS LOT 36 |
| Geographic ID: | S6439-00-00036-0 | Agent Code: | |
| Type: | Real | | |
| Tax Area: | 100 - APPRAISER-OH Schl Dist, in OH | Land Use Code | 11 |
| Open Space: | N | DFL | N |
| Historic Property: | N | Remodel Property: | N |
| Multi-Family Redevelopment: | N | | |
| Township: | | Section: | |
| Range: | |
Location |
| Address: | 916 NW LONGVIEW DR OAK HARBOR, WA 98277 | Mapsco: | |
| Neighborhood: | Cycle 1 | Map ID: | 254 |
| Neighborhood CD: | 1 |
Owner |
| Name: | BOWER, MICHAEL | Owner ID: | 316531 |
| Mailing Address: | PRITI VAGE 916 NW LONGVIEW DR OAK HARBOR, WA 98277 | % Ownership: | 100.0000000000% |
| | | Exemptions: | |
Taxes and Assessment Details
Values
| (+) Improvement Homesite Value: | + | $0 | |
| (+) Improvement Non-Homesite Value: | + | $311,009 | |
| (+) Land Homesite Value: | + | $0 | |
| (+) Land Non-Homesite Value: | + | $210,000 | |
| (+) Curr Use (HS): | + | $0 | $0 |
| (+) Curr Use (NHS): | + | $0 | $0 |
| | | -------------------------- | |
| (=) Market Value: | = | $521,009 | |
| (–) Productivity Loss: | – | $0 | |
| | | -------------------------- | |
| (=) Subtotal: | = | $521,009 | |
| (+) Senior Appraised Value: | + | $0 | |
| (+) Non-Senior Appraised Value: | + | $521,009 | |
| | | -------------------------- | |
| (=) Total Appraised Value: | = | $521,009 | |
| (–) Senior Exemption Loss: | – | $0 | |
| (–) Exemption Loss: | – | $0 | |
| | | -------------------------- | |
| (=) Taxable Value: | = | $521,009 | |
Taxing Jurisdiction
| Owner: | BOWER, MICHAEL | | |
| % Ownership: | 100.0000000000% | | |
| Total Value: | $521,009 | | |
| Tax Area: | 100 - APPRAISER-OH Schl Dist, in OH |
| CF | Conservation Futures | 0.0316035091 | $521,009 | $521,009 | $16.47 | | |
| CEM1 | Cemetery #1 | 0.0040320932 | $521,009 | $521,009 | $2.10 | | |
| COH | City of Oak Harbor | 2.3001546061 | $521,009 | $521,009 | $1,198.40 | | |
| OAKBOND | City of Oak Harbor BOND | 0.1926904192 | $521,009 | $521,009 | $100.39 | | |
| HOBOND | Hospital BOND | 0.1910887512 | $521,009 | $521,009 | $99.56 | | |
| HOGEN | Hospital GEN | 0.3902502903 | $521,009 | $521,009 | $203.32 | | |
| CE | County Current Expense | 0.3708482477 | $521,009 | $521,009 | $193.22 | | |
| ISLANDEMS | Hospital GEN (EMS) | 0.5000000000 | $521,009 | $521,009 | $260.50 | | |
| LIB | Library Sno-Isle GEN | 0.3153421757 | $521,009 | $521,009 | $164.30 | | |
| NWHIDPRMT | P & R N Whidbey GEN | 0.2004466701 | $521,009 | $521,009 | $104.43 | | |
| SCH201MO | School 201 Enrichment | 1.8559231640 | $521,009 | $521,009 | $966.95 | | |
| ST | State School | 1.3035497053 | $521,009 | $521,009 | $679.16 | | |
| ST2 | State School Part 2 | 0.8169543533 | $521,009 | $521,009 | $425.64 | | |
| | Total Tax Rate: | 8.4728839852 | | | | | |
| | | | | Taxes w/Current Exemptions: | $4,414.44 | | |
| | | | | Taxes w/o Exemptions: | $4,414.44 | | |
Improvement / Building
| Improvement #1: | RESIDENTIAL | State Code: | Y | 2096.0 sqft | Value: | $311,009 |
| Bathrooms: | 2.5 | Bedrooms: | 4 | | Ceiling: | DRYWALL PAINTED | Exterior Wall/Cover: | CEMENT FIBER | | Floor Covering: | CARPET/VINYL 80-20 | Floor Structure: | WOOD W/SUBFLOOR | | Foundation: | CONCRETE | Heating: | FHA GAS | | Interior Finish: | DRYWALL PAINT | Plumbing Fixture Cnt: | 11 | | Roof Slope: | 6" IN 12" | Roof Structure/Cover: | CJ ASPHALT |
|
| | Type | Description | Class CD | Sub Class CD | Year Built | Area |
| | BAS | BASE/MAIN FLOOR | 3 | 0 | 2007 | 784.0 |
| | BIG | BUILT IN GARAGE | 3 | 0 | 2007 | 528.0 |
| | UPS | UPPER STORY | 3 | 0 | 2007 | 1312.0 |
| | OWC | OPEN WOOD PORCH W/STEPS/ROOF/C | 3 | 0 | 2007 | 80.0 |
Sketch
Property Image
Land
| 1 | 13 | SQ (06001-08000) | 0.1647 | 7172.32 | 0.00 | 0.00 | 1.00 | $210,000 | $0 |
Roll Value History
| 2026 | N/A | N/A | N/A | N/A | N/A |
| 2025 | $311,009 | $210,000 | $0 | $521,009 | $521,009 |
| 2024 | $314,658 | $190,000 | $0 | $504,658 | $504,658 |
| 2023 | $307,361 | $190,000 | $0 | $497,361 | $497,361 |
| 2022 | $281,621 | $180,000 | $0 | $461,621 | $461,621 |
| 2021 | $247,761 | $120,000 | $0 | $367,761 | $367,761 |
| 2020 | $241,514 | $100,000 | $0 | $341,514 | $341,514 |
| 2019 | $184,432 | $150,000 | $0 | $334,432 | $334,432 |
| 2018 | $184,954 | $130,000 | $0 | $314,954 | $314,954 |
| 2017 | $185,999 | $110,000 | $0 | $295,999 | $295,999 |
| 2016 | $193,961 | $90,000 | $0 | $283,961 | $283,961 |
| 2015 | $196,116 | $70,000 | $0 | $266,116 | $266,116 |
| 2014 | $198,272 | $55,000 | $0 | $253,272 | $253,272 |
| 2013 | $200,428 | $55,000 | $0 | $255,428 | $255,428 |
| 2012 | $202,582 | $65,000 | $0 | $267,582 | $267,582 |
| 2011 | $198,062 | $50,000 | $0 | $248,062 | $248,062 |
| 2010 | $204,870 | $50,000 | $0 | $254,870 | $254,870 |
| 2009 | $213,337 | $70,000 | $0 | $283,337 | $283,337 |
| 2008 | $213,482 | $90,000 | $0 | $303,482 | $303,482 |
| 2007 | $235,781 | $90,000 | $0 | $325,781 | $325,781 |
Deed and Sales History
| 1 | 05/10/2025 | WD | Warranty Deed | YOUNG, ERIC M | BOWER, MICHAEL | | | $572,000.00 | 63505 | 4586038 |
| 2 | 11/01/2016 | WD | Warranty Deed | SMITH II, BRYANT W | YOUNG, ERIC M | | | $325,000.00 | 26932 | 4411527 |
| 3 | 09/19/2007 | WD | Warranty Deed | WINDWARD CONSULTING LLC, | SMITH II, BRYANT W | | | $296,750.00 | 73273 | 4213028 |
| 4 | 01/01/1900 | OTHER | Other - Misc. Documents | Unknown | WINDWARD CONSULTING LLC, | | | $0.00 | 0 | 0 |
Payout Agreement
| No payout information available.. |