Property
Account |
| Property ID: | 807764 | Abbreviated Legal Description: | CROSBY COMMONS LOT 38 |
| Geographic ID: | S6439-00-00038-0 | Agent Code: | |
| Type: | Real | | |
| Tax Area: | 100 - APPRAISER-OH Schl Dist, in OH | Land Use Code | 11 |
| Open Space: | N | DFL | N |
| Historic Property: | N | Remodel Property: | N |
| Multi-Family Redevelopment: | N | | |
| Township: | | Section: | |
| Range: | |
Location |
| Address: | 892 NW LONGVIEW DR OAK HARBOR, WA 98277 | Mapsco: | |
| Neighborhood: | Cycle 1 | Map ID: | 254 |
| Neighborhood CD: | 1 |
Owner |
| Name: | MCGRUDER, DELORES V | Owner ID: | 314007 |
| Mailing Address: | 892 NW LONGVIEW DR OAK HARBOR, WA 98277 | % Ownership: | 100.0000000000% |
| | | Exemptions: | |
Taxes and Assessment Details
Values
| (+) Improvement Homesite Value: | + | $0 | |
| (+) Improvement Non-Homesite Value: | + | $258,771 | |
| (+) Land Homesite Value: | + | $0 | |
| (+) Land Non-Homesite Value: | + | $210,000 | |
| (+) Curr Use (HS): | + | $0 | $0 |
| (+) Curr Use (NHS): | + | $0 | $0 |
| | | -------------------------- | |
| (=) Market Value: | = | $468,771 | |
| (–) Productivity Loss: | – | $0 | |
| | | -------------------------- | |
| (=) Subtotal: | = | $468,771 | |
| (+) Senior Appraised Value: | + | $0 | |
| (+) Non-Senior Appraised Value: | + | $468,771 | |
| | | -------------------------- | |
| (=) Total Appraised Value: | = | $468,771 | |
| (–) Senior Exemption Loss: | – | $0 | |
| (–) Exemption Loss: | – | $0 | |
| | | -------------------------- | |
| (=) Taxable Value: | = | $468,771 | |
Taxing Jurisdiction
| Owner: | MCGRUDER, DELORES V | | |
| % Ownership: | 100.0000000000% | | |
| Total Value: | $468,771 | | |
| Tax Area: | 100 - APPRAISER-OH Schl Dist, in OH |
| CF | Conservation Futures | 0.0316035091 | $468,771 | $468,771 | $14.81 | | |
| CEM1 | Cemetery #1 | 0.0040320932 | $468,771 | $468,771 | $1.89 | | |
| COH | City of Oak Harbor | 2.3001546061 | $468,771 | $468,771 | $1,078.25 | | |
| OAKBOND | City of Oak Harbor BOND | 0.1926904192 | $468,771 | $468,771 | $90.33 | | |
| HOBOND | Hospital BOND | 0.1910887512 | $468,771 | $468,771 | $89.58 | | |
| HOGEN | Hospital GEN | 0.3902502903 | $468,771 | $468,771 | $182.94 | | |
| CE | County Current Expense | 0.3708482477 | $468,771 | $468,771 | $173.84 | | |
| ISLANDEMS | Hospital GEN (EMS) | 0.5000000000 | $468,771 | $468,771 | $234.39 | | |
| LIB | Library Sno-Isle GEN | 0.3153421757 | $468,771 | $468,771 | $147.82 | | |
| NWHIDPRMT | P & R N Whidbey GEN | 0.2004466701 | $468,771 | $468,771 | $93.96 | | |
| SCH201MO | School 201 Enrichment | 1.8559231640 | $468,771 | $468,771 | $870.00 | | |
| ST | State School | 1.3035497053 | $468,771 | $468,771 | $611.07 | | |
| ST2 | State School Part 2 | 0.8169543533 | $468,771 | $468,771 | $382.96 | | |
| | Total Tax Rate: | 8.4728839852 | | | | | |
| | | | | Taxes w/Current Exemptions: | $3,971.84 | | |
| | | | | Taxes w/o Exemptions: | $3,971.84 | | |
Improvement / Building
| Improvement #1: | RESIDENTIAL | State Code: | Y | 1288.0 sqft | Value: | $258,771 |
| Bathrooms: | 2 | Bedrooms: | 3 | | Ceiling: | DRYWALL PAINTED | Exterior Wall/Cover: | CEMENT FIBER | | Floor Covering: | CARPET/VINYL 80-20 | Floor Structure: | WOOD W/SUBFLOOR | | Foundation: | CONCRETE | Heating: | FHA GAS | | Interior Finish: | DRYWALL PAINT | Plumbing Fixture Cnt: | 9 | | Roof Slope: | 6" IN 12" | Roof Structure/Cover: | CJ ASPHALT |
|
| | Type | Description | Class CD | Sub Class CD | Year Built | Area |
| | BAS | BASE/MAIN FLOOR | 3 | 0 | 2008 | 1288.0 |
| | AGR | ATTACHED GARAGE | 3 | 0 | 2008 | 484.0 |
| | OWC | OPEN WOOD PORCH W/STEPS/ROOF/C | 3 | 0 | 2008 | 50.0 |
Sketch
Property Image
Land
| 1 | 13 | SQ (06001-08000) | 0.1825 | 7950.49 | 0.00 | 0.00 | 1.00 | $210,000 | $0 |
Roll Value History
| 2026 | N/A | N/A | N/A | N/A | N/A |
| 2025 | $258,771 | $210,000 | $0 | $468,771 | $468,771 |
| 2024 | $261,736 | $190,000 | $0 | $451,736 | $451,736 |
| 2023 | $258,771 | $190,000 | $0 | $448,771 | $448,771 |
| 2022 | $237,001 | $180,000 | $0 | $417,001 | $417,001 |
| 2021 | $208,430 | $120,000 | $0 | $328,430 | $328,430 |
| 2020 | $202,114 | $100,000 | $0 | $302,114 | $302,114 |
| 2019 | $144,776 | $150,000 | $0 | $294,776 | $294,776 |
| 2018 | $145,172 | $130,000 | $0 | $275,172 | $275,172 |
| 2017 | $146,840 | $110,000 | $0 | $256,840 | $256,840 |
| 2016 | $148,472 | $90,000 | $0 | $238,472 | $238,472 |
| 2015 | $150,103 | $70,000 | $0 | $220,103 | $220,103 |
| 2014 | $151,733 | $55,000 | $0 | $206,733 | $206,733 |
| 2013 | $153,365 | $55,000 | $0 | $208,365 | $208,365 |
| 2012 | $154,997 | $65,000 | $0 | $219,997 | $219,997 |
| 2011 | $179,666 | $50,000 | $0 | $229,666 | $229,666 |
| 2010 | $184,825 | $50,000 | $0 | $234,825 | $234,825 |
| 2009 | $190,621 | $70,000 | $0 | $260,621 | $260,621 |
| 2008 | $0 | $70,000 | $0 | $70,000 | $70,000 |
| 2007 | $0 | $70,000 | $0 | $70,000 | $70,000 |
Deed and Sales History
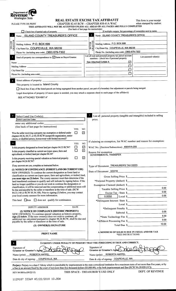
| 1 | 09/24/2024 | QCD | Quit Claim Deed | MCGRUDER, RICHARD | MCGRUDER, DELORES V | | | $0.00 | 61390 | 4577572 |
| 2 | 01/02/2018 | WD | Warranty Deed | FOURNEY, KEITH T | MCGRUDER, RICHARD | | | $305,000.00 | 32559 | 4437209 |
| 3 | 02/24/2009 | WD | Warranty Deed | WINDWARD CONSULTING LLC, | FOURNEY, KEITH T AND LESLYANN | | | $256,879.00 | 90425 | 4245519 |
| 4 | 01/01/1900 | OTHER | Other - Misc. Documents | Unknown | WINDWARD CONSULTING LLC, | | | $0.00 | 0 | 0 |
Payout Agreement
| No payout information available.. |