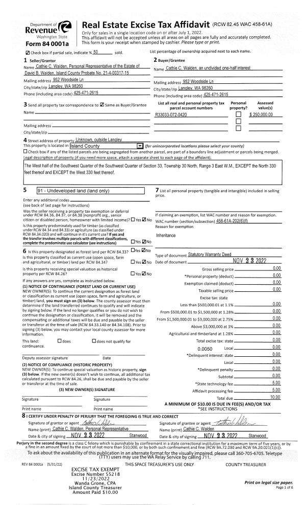
Property
Account |
| Property ID: | 807815 | Abbreviated Legal Description: | THE MEADOWS LOT 13 |
| Geographic ID: | S7496-00-00013-0 | Agent Code: | |
| Type: | Real | | |
| Tax Area: | 510 - APPRAISER-Stan/Cam Schl Dist, improved & 1 acre or less | Land Use Code | 11 |
| Open Space: | N | DFL | N |
| Historic Property: | N | Remodel Property: | N |
| Multi-Family Redevelopment: | N | | |
| Township: | | Section: | |
| Range: | |
Location |
| Address: | 910 SECORD CT CAMANO ISLAND, WA 98282 | Mapsco: | |
| Neighborhood: | Cycle 5 | Map ID: | 483 |
| Neighborhood CD: | 5 |
Owner |
| Name: | FRIDLUND, COLLIN | Owner ID: | 314527 |
| Mailing Address: | CHLOEY CURTIS 910 SECORD COURT CAMANO ISLAND, WA 98282 | % Ownership: | 100.0000000000% |
| | | Exemptions: | |
Taxes and Assessment Details
Values
| (+) Improvement Homesite Value: | + | $0 | |
| (+) Improvement Non-Homesite Value: | + | $340,225 | |
| (+) Land Homesite Value: | + | $0 | |
| (+) Land Non-Homesite Value: | + | $220,000 | |
| (+) Curr Use (HS): | + | $0 | $0 |
| (+) Curr Use (NHS): | + | $0 | $0 |
| | | -------------------------- | |
| (=) Market Value: | = | $560,225 | |
| (–) Productivity Loss: | – | $0 | |
| | | -------------------------- | |
| (=) Subtotal: | = | $560,225 | |
| (+) Senior Appraised Value: | + | $0 | |
| (+) Non-Senior Appraised Value: | + | $560,225 | |
| | | -------------------------- | |
| (=) Total Appraised Value: | = | $560,225 | |
| (–) Senior Exemption Loss: | – | $0 | |
| (–) Exemption Loss: | – | $0 | |
| | | -------------------------- | |
| (=) Taxable Value: | = | $560,225 | |
Taxing Jurisdiction
| Owner: | FRIDLUND, COLLIN | | |
| % Ownership: | 100.0000000000% | | |
| Total Value: | $560,225 | | |
| Tax Area: | 510 - APPRAISER-Stan/Cam Schl Dist, improved & 1 acre or less |
| CF | Conservation Futures | 0.0316035091 | $560,225 | $560,225 | $17.71 | | |
| EMS1 | Fire & Rescue Dist #1 Camano GEN (EMS) | 0.3677864386 | $560,225 | $560,225 | $206.04 | | |
| FIRE1 | Fire & Rescue Dist #1 Camano GEN | 1.2502910536 | $560,225 | $560,225 | $700.44 | | |
| FIRE1BOND | Fire & Rescue Dist #1 Camano BOND | 0.1570001679 | $560,225 | $560,225 | $87.96 | | |
| CE | County Current Expense | 0.3708482477 | $560,225 | $560,225 | $207.76 | | |
| CR | County Roads | 0.4584763726 | $560,225 | $560,225 | $256.85 | | |
| LCIB | Library Sno-Isle BOND (Camano Island) | 0.0396325772 | $560,225 | $560,225 | $22.20 | | |
| LIB | Library Sno-Isle GEN | 0.3153421757 | $560,225 | $560,225 | $176.66 | | |
| SCH205_401 | School 205-401 Enrichment | 1.2698420524 | $560,225 | $560,225 | $711.40 | | |
| SCH205BOND | School 205-401 BOND | 0.9396497583 | $560,225 | $560,225 | $526.42 | | |
| ST | State School | 1.3035497053 | $560,225 | $560,225 | $730.28 | | |
| ST2 | State School Part 2 | 0.8169543533 | $560,225 | $560,225 | $457.68 | | |
| | Total Tax Rate: | 7.3209764117 | | | | | |
| | | | | Taxes w/Current Exemptions: | $4,101.40 | | |
| | | | | Taxes w/o Exemptions: | $4,101.40 | | |
Improvement / Building
| Improvement #1: | RESIDENTIAL | State Code: | Y | 1408.6 sqft | Value: | $340,225 |
| Bathrooms: | 2 | Bedrooms: | 3 | | Ceiling: | DRYWALL PAINTED | Cooling: | HEAT PUMP/CONV/V | | Exterior Wall/Cover: | CEMENT FIBER | Floor Covering: | CERAMIC TILE/CPT 40-60 | | Floor Structure: | WOOD W/SUBFLOOR | Foundation: | CONCRETE | | Interior Finish: | DRYWALL PAINT | Plumbing Fixture Cnt: | 10 | | Roof Slope: | 8" IN 12" | Roof Structure/Cover: | CJ ASPHALT |
|
| | Type | Description | Class CD | Sub Class CD | Year Built | Area |
| | BAS | BASE/MAIN FLOOR | 4 | 0 | 2007 | 1408.6 |
| | OP4 | OPEN PORCH W/CEILING-ROOF | 4 | 0 | 2007 | 84.8 |
| | AGR | ATTACHED GARAGE | 4 | 0 | 2007 | 397.8 |
Sketch
Property Image
Land
| 1 | 15 | SQ (12001-21780) | 0.2900 | 12632.40 | 0.00 | 0.00 | 1.00 | $220,000 | $0 |
Roll Value History
| 2026 | N/A | N/A | N/A | N/A | N/A |
| 2025 | $340,225 | $220,000 | $0 | $560,225 | $560,225 |
| 2024 | $344,126 | $220,000 | $0 | $564,126 | $564,126 |
| 2023 | $348,026 | $220,000 | $0 | $568,026 | $568,026 |
| 2022 | $317,783 | $220,000 | $0 | $537,783 | $537,783 |
| 2021 | $281,368 | $150,000 | $0 | $431,368 | $431,368 |
| 2020 | $272,604 | $150,000 | $0 | $422,604 | $422,604 |
| 2019 | $199,366 | $200,000 | $0 | $399,366 | $399,366 |
| 2018 | $171,047 | $140,000 | $0 | $311,047 | $311,047 |
| 2017 | $171,929 | $100,000 | $0 | $271,929 | $271,929 |
| 2016 | $173,861 | $100,000 | $0 | $273,861 | $273,861 |
| 2015 | $175,792 | $65,000 | $0 | $240,792 | $240,792 |
| 2014 | $177,725 | $65,000 | $0 | $242,725 | $242,725 |
| 2013 | $179,655 | $41,600 | $0 | $221,255 | $221,255 |
| 2012 | $181,587 | $41,600 | $0 | $223,187 | $223,187 |
| 2011 | $183,519 | $52,000 | $0 | $235,519 | $235,519 |
| 2010 | $189,948 | $52,000 | $0 | $241,948 | $241,948 |
| 2009 | $224,309 | $130,000 | $0 | $354,309 | $354,309 |
| 2008 | $224,673 | $104,000 | $0 | $328,673 | $328,673 |
| 2007 | $287,552 | $104,000 | $0 | $391,552 | $391,552 |
Deed and Sales History
| 1 | 11/05/2024 | WD | Warranty Deed | THE JOANNE MAE FRIDLUND LIVING TRUST | FRIDLUND, COLLIN | | | $515,000.00 | 61811 | 4579285 |
| 2 | 03/24/2023 | WD | Warranty Deed | FRIDLUND, JOANNE M | THE JOANNE MAE FRIDLUND LIVING TRUST | | | $0.00 | 57257 | 4562109 |
| 3 | 04/12/2018 | WD | Warranty Deed | SCHMITZ, MARK B | FRIDLUND, JOANNE M | | | $367,450.00 | 33794 | 4443114 |
| 4 | 07/18/2008 | QCD | Quit Claim Deed | MARTHA LAKE BUILDERS LLC, | SCHMITZ, MARK B | | | $0.00 | 81906 | 4233303 |
| 5 | 11/10/2006 | WD | Warranty Deed | MUELLER, RAYMOND D | MARTHA LAKE BUILDERS LLC, | | | $117,647.00 | 64892 | 4187090 |
| 6 | 01/01/1900 | OTHER | Other - Misc. Documents | Unknown | MUELLER, RAYMOND D | | | $0.00 | 0 | 0 |
Payout Agreement
| No payout information available.. |