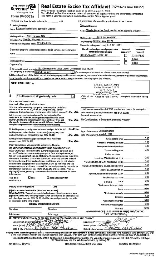
Property
Account |
| Property ID: | 807824 | Abbreviated Legal Description: | S/2 SW NW SE EX W30' TGW SE NW SE TGW N/2 NW SE EX CO RD TGW W/2 SE SW NE TGW N/2 SW NW SE EX CO RD TGW & SUB EZ |
| Geographic ID: | R33023-220-3310 | Agent Code: | |
| Type: | Real | | |
| Tax Area: | 542 - APPRAISER-Stan/Cam Schl Dist, Special Dist, improved, greater than 1 acre | Land Use Code | 88 |
| Open Space: | N | DFL | Y |
| Historic Property: | N | Remodel Property: | N |
| Multi-Family Redevelopment: | N | | |
| Township: | 30 | Section: | 23 |
| Range: | R3 |
Location |
| Address: | | Mapsco: | |
| Neighborhood: | 58SofTamarackAC | Map ID: | 883 |
| Neighborhood CD: | 58RstamAC |
Owner |
| Name: | GLADSTONE, DAVID | Owner ID: | 188411 |
| Mailing Address: | MELINDA GLADSTONE FOUNDATION PO BOX 803 SNOHOMISH, WA 98291-0803 | % Ownership: | 100.0000000000% |
| | | Exemptions: | |
Taxes and Assessment Details
Values
| (+) Improvement Homesite Value: | + | $0 | |
| (+) Improvement Non-Homesite Value: | + | $30,000 | |
| (+) Land Homesite Value: | + | $0 | |
| (+) Land Non-Homesite Value: | + | $0 | |
| (+) Curr Use (HS): | + | $0 | $0 |
| (+) Curr Use (NHS): | + | $430,000 | $7,484 |
| | | -------------------------- | |
| (=) Market Value: | = | $460,000 | |
| (–) Productivity Loss: | – | $422,516 | |
| | | -------------------------- | |
| (=) Subtotal: | = | $37,484 | |
| (+) Senior Appraised Value: | + | $0 | |
| (+) Non-Senior Appraised Value: | + | $37,484 | |
| | | -------------------------- | |
| (=) Total Appraised Value: | = | $37,484 | |
| (–) Senior Exemption Loss: | – | $0 | |
| (–) Exemption Loss: | – | $0 | |
| | | -------------------------- | |
| (=) Taxable Value: | = | $37,484 | |
Taxing Jurisdiction
| Owner: | GLADSTONE, DAVID | | |
| % Ownership: | 100.0000000000% | | |
| Total Value: | $460,000 | | |
| Tax Area: | 542 - APPRAISER-Stan/Cam Schl Dist, Special Dist, improved, greater than 1 acre |
| CF | Conservation Futures | 0.0316035091 | $37,484 | $37,484 | $1.18 | | |
| EMS1 | Fire & Rescue Dist #1 Camano GEN (EMS) | 0.3677864386 | $37,484 | $37,484 | $13.79 | | |
| FIRE1 | Fire & Rescue Dist #1 Camano GEN | 1.2502910536 | $37,484 | $37,484 | $46.87 | | |
| FIRE1BOND | Fire & Rescue Dist #1 Camano BOND | 0.1570001679 | $37,484 | $37,484 | $5.88 | | |
| CE | County Current Expense | 0.3708482477 | $37,484 | $37,484 | $13.90 | | |
| CR | County Roads | 0.4584763726 | $37,484 | $37,484 | $17.19 | | |
| LCIB | Library Sno-Isle BOND (Camano Island) | 0.0396325772 | $37,484 | $37,484 | $1.49 | | |
| LIB | Library Sno-Isle GEN | 0.3153421757 | $37,484 | $37,484 | $11.82 | | |
| SCH205_401 | School 205-401 Enrichment | 1.2698420524 | $37,484 | $37,484 | $47.60 | | |
| SCH205BOND | School 205-401 BOND | 0.9396497583 | $37,484 | $37,484 | $35.22 | | |
| ST | State School | 1.3035497053 | $37,484 | $37,484 | $48.86 | | |
| ST2 | State School Part 2 | 0.8169543533 | $37,484 | $37,484 | $30.62 | | |
| | Total Tax Rate: | 7.3209764117 | | | | | |
| | | | | Taxes w/Current Exemptions: | $274.42 | | |
| | | | | Taxes w/o Exemptions: | $274.42 | | |
Improvement / Building
| Improvement #1: | RESIDENTIAL | State Code: | Y | 0.0 sqft | Value: | $30,000 |
Sketch
Property Image
Land
| 1 | 88 | DESIGNATED FOREST | 22.5400 | 981842.40 | 0.00 | 0.00 | 1.00 | $216,537 | $4,192 |
| 2 | 88 | DESIGNATED FOREST | 17.6400 | 768398.40 | 0.00 | 0.00 | 1.00 | $169,464 | $2,628 |
| 3 | 88 | DESIGNATED FOREST | 4.5800 | 199504.80 | 0.00 | 0.00 | 1.00 | $43,999 | $664 |
Roll Value History
| 2026 | N/A | N/A | N/A | N/A | N/A |
| 2025 | $30,000 | $430,000 | $7,484 | $37,484 | $37,484 |
| 2024 | $30,000 | $410,000 | $7,530 | $37,530 | $37,530 |
| 2023 | $30,000 | $500,000 | $7,216 | $37,216 | $37,216 |
| 2022 | $30,000 | $500,000 | $7,216 | $37,216 | $37,216 |
| 2021 | $0 | $460,000 | $7,216 | $7,216 | $7,216 |
| 2020 | $0 | $440,000 | $7,216 | $7,216 | $7,216 |
| 2019 | $0 | $440,000 | $6,969 | $6,969 | $6,969 |
| 2018 | $0 | $350,000 | $6,880 | $6,880 | $6,880 |
| 2017 | $0 | $350,000 | $6,880 | $6,880 | $6,880 |
| 2016 | $0 | $350,000 | $4,521 | $4,521 | $4,521 |
| 2015 | $0 | $345,912 | $4,521 | $4,521 | $4,521 |
| 2014 | $0 | $345,912 | $4,521 | $4,521 | $4,521 |
| 2013 | $1 | $345,912 | $4,521 | $4,522 | $4,522 |
| 2012 | $1 | $345,912 | $4,521 | $4,522 | $4,522 |
| 2011 | $1 | $345,912 | $4,521 | $4,522 | $4,522 |
| 2010 | $0 | $345,912 | $4,521 | $4,521 | $4,521 |
| 2009 | $0 | $9,042 | $4,521 | $4,521 | $4,521 |
| 2008 | $0 | $9,042 | $4,521 | $4,521 | $4,521 |
| 2007 | $45 | $8,997 | $4,521 | $4,521 | $4,521 |
Deed and Sales History
| 1 | 06/04/2007 | BLA | DNU - Boundary Line Adjustment | Unknown | GLADSTONE, DAVID | | | $0.00 | 80210 | 4137903 |
Payout Agreement
| No payout information available.. |