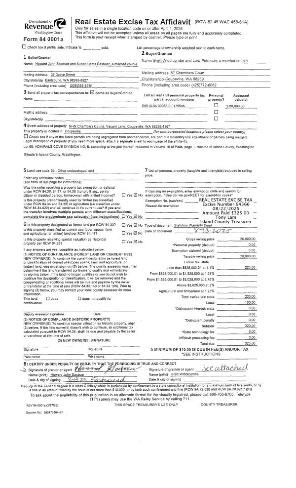
Property
Account |
| Property ID: | 807852 | Abbreviated Legal Description: | ISLAND PLACE #1 LOT 17 |
| Geographic ID: | S7234-00-00017-0 | Agent Code: | |
| Type: | Real | | |
| Tax Area: | 100 - APPRAISER-OH Schl Dist, in OH | Land Use Code | 11 |
| Open Space: | N | DFL | N |
| Historic Property: | N | Remodel Property: | N |
| Multi-Family Redevelopment: | N | | |
| Township: | | Section: | |
| Range: | |
Location |
| Address: | 643 NW OXFORD PLACE OAK HARBOR, WA 98277 | Mapsco: | |
| Neighborhood: | Cycle 1 | Map ID: | 252 |
| Neighborhood CD: | 1 |
Owner |
| Name: | LIESSE, RYAN | Owner ID: | 315615 |
| Mailing Address: | SARA LIESSE 643 NW OXFORD PL OAK HARBOR, WA 98277 | % Ownership: | 100.0000000000% |
| | | Exemptions: | |
Taxes and Assessment Details
Values
| (+) Improvement Homesite Value: | + | $0 | |
| (+) Improvement Non-Homesite Value: | + | $347,929 | |
| (+) Land Homesite Value: | + | $0 | |
| (+) Land Non-Homesite Value: | + | $155,000 | |
| (+) Curr Use (HS): | + | $0 | $0 |
| (+) Curr Use (NHS): | + | $0 | $0 |
| | | -------------------------- | |
| (=) Market Value: | = | $502,929 | |
| (–) Productivity Loss: | – | $0 | |
| | | -------------------------- | |
| (=) Subtotal: | = | $502,929 | |
| (+) Senior Appraised Value: | + | $0 | |
| (+) Non-Senior Appraised Value: | + | $502,929 | |
| | | -------------------------- | |
| (=) Total Appraised Value: | = | $502,929 | |
| (–) Senior Exemption Loss: | – | $0 | |
| (–) Exemption Loss: | – | $0 | |
| | | -------------------------- | |
| (=) Taxable Value: | = | $502,929 | |
Taxing Jurisdiction
| Owner: | LIESSE, RYAN | | |
| % Ownership: | 100.0000000000% | | |
| Total Value: | $502,929 | | |
| Tax Area: | 100 - APPRAISER-OH Schl Dist, in OH |
| CF | Conservation Futures | 0.0316035091 | $502,929 | $502,929 | $15.89 | | |
| CEM1 | Cemetery #1 | 0.0040320932 | $502,929 | $502,929 | $2.03 | | |
| COH | City of Oak Harbor | 2.3001546061 | $502,929 | $502,929 | $1,156.81 | | |
| OAKBOND | City of Oak Harbor BOND | 0.1926904192 | $502,929 | $502,929 | $96.91 | | |
| HOBOND | Hospital BOND | 0.1910887512 | $502,929 | $502,929 | $96.10 | | |
| HOGEN | Hospital GEN | 0.3902502903 | $502,929 | $502,929 | $196.27 | | |
| CE | County Current Expense | 0.3708482477 | $502,929 | $502,929 | $186.51 | | |
| ISLANDEMS | Hospital GEN (EMS) | 0.5000000000 | $502,929 | $502,929 | $251.46 | | |
| LIB | Library Sno-Isle GEN | 0.3153421757 | $502,929 | $502,929 | $158.59 | | |
| NWHIDPRMT | P & R N Whidbey GEN | 0.2004466701 | $502,929 | $502,929 | $100.81 | | |
| SCH201MO | School 201 Enrichment | 1.8559231640 | $502,929 | $502,929 | $933.40 | | |
| ST | State School | 1.3035497053 | $502,929 | $502,929 | $655.59 | | |
| ST2 | State School Part 2 | 0.8169543533 | $502,929 | $502,929 | $410.87 | | |
| | Total Tax Rate: | 8.4728839852 | | | | | |
| | | | | Taxes w/Current Exemptions: | $4,261.24 | | |
| | | | | Taxes w/o Exemptions: | $4,261.24 | | |
Improvement / Building
| Improvement #1: | RESIDENTIAL | State Code: | Y | 1748.0 sqft | Value: | $347,929 |
| Bathrooms: | 2.5 | Bedrooms: | 3 | | Ceiling: | DRYWALL PAINTED | Exterior Wall/Cover: | CEMENT FIBER | | Floor Covering: | CARPET/VINYL 60-40 | Floor Structure: | WOOD W/SUBFLOOR | | Foundation: | CONCRETE | Heating: | FHA GAS | | Interior Finish: | DRYWALL PAINT | Plumbing Fixture Cnt: | 13 | | Roof Slope: | 6" IN 12" | Roof Structure/Cover: | CJ ASPHALT |
|
| | Type | Description | Class CD | Sub Class CD | Year Built | Area |
| | BAS | BASE/MAIN FLOOR | 3 | 0 | 2013 | 880.0 |
| | OP4 | OPEN PORCH W/CEILING-ROOF | 3 | 0 | 2013 | 120.0 |
| | AGR | ATTACHED GARAGE | 3 | 0 | 2013 | 480.0 |
| | UPS | UPPER STORY | 3 | 0 | 2013 | 868.0 |
| | OP4 | OPEN PORCH W/CEILING-ROOF | 3 | 0 | 2013 | 120.0 |
Sketch
Property Image
Land
| 1 | 12 | SQ (00000-06000) | 0.0000 | 0.00 | 0.00 | 0.00 | 1.00 | $155,000 | $0 |
Roll Value History
| 2026 | N/A | N/A | N/A | N/A | N/A |
| 2025 | $347,929 | $155,000 | $0 | $502,929 | $502,929 |
| 2024 | $350,613 | $145,000 | $0 | $495,613 | $495,613 |
| 2023 | $347,929 | $140,000 | $0 | $487,929 | $487,929 |
| 2022 | $317,483 | $125,000 | $0 | $442,483 | $442,483 |
| 2021 | $278,338 | $110,000 | $0 | $388,338 | $388,338 |
| 2020 | $269,693 | $85,000 | $0 | $354,693 | $354,693 |
| 2019 | $198,727 | $130,000 | $0 | $328,727 | $328,727 |
| 2018 | $199,248 | $125,000 | $0 | $324,248 | $324,248 |
| 2017 | $211,679 | $105,000 | $0 | $316,679 | $316,679 |
| 2016 | $213,908 | $70,000 | $0 | $283,908 | $283,908 |
| 2015 | $204,203 | $55,000 | $0 | $259,203 | $259,203 |
| 2014 | $206,307 | $55,000 | $0 | $261,307 | $261,307 |
| 2013 | $169,527 | $50,000 | $0 | $219,527 | $219,527 |
| 2012 | $0 | $35,000 | $0 | $35,000 | $35,000 |
| 2011 | $0 | $35,000 | $0 | $35,000 | $35,000 |
| 2010 | $0 | $35,000 | $0 | $35,000 | $35,000 |
| 2009 | $0 | $55,000 | $0 | $55,000 | $55,000 |
| 2008 | $0 | $55,000 | $0 | $55,000 | $55,000 |
| 2007 | $0 | $55,000 | $0 | $55,000 | $55,000 |
Deed and Sales History
| 1 | 02/23/2025 | WD | Warranty Deed | JACKSON, SHANE WILLIAM | LIESSE, RYAN | | | $522,500.00 | 62694 | 4582783 |
| 2 | 03/01/2021 | WD | Warranty Deed | CASTLEBERRY, ASHLEY | JACKSON, SHANE WILLIAM | | | $426,000.00 | 47201 | 4512629 |
| 3 | 11/21/2017 | WD | Warranty Deed | TU, TOMMY T | CASTLEBERRY, ASHLEY | | | $324,500.00 | 32071 | 4434874 |
| 4 | 06/16/2015 | WD | Warranty Deed | ANDRASCHKO, RICHARD LEE | TU, TOMMY T | | | $281,000.00 | 20183 | 4380946 |
| 5 | 11/13/2013 | WD | Warranty Deed | OMEGA HOME CONSTRUCTION LLC | ANDRASCHKO, RICHARD LEE | | | $238,000.00 | 13410 | 4351241 |
| 6 | 10/02/2012 | WD | Warranty Deed | ROOT, MARGARET | OMEGA HOME CONSTRUCTION LLC | | | $45,000.00 | 9096 | 4324544 |
| 7 | 04/13/2011 | QCD | Quit Claim Deed | HOMESTEAD NW DEV CO | ROOT, MARGARET | | | $0.00 | 4169 | 4293881 |
| 8 | 01/01/1900 | OTHER | Other - Misc. Documents | Unknown | HOMESTEAD NW DEV CO, | | | $0.00 | 0 | 0 |
Payout Agreement
| No payout information available.. |