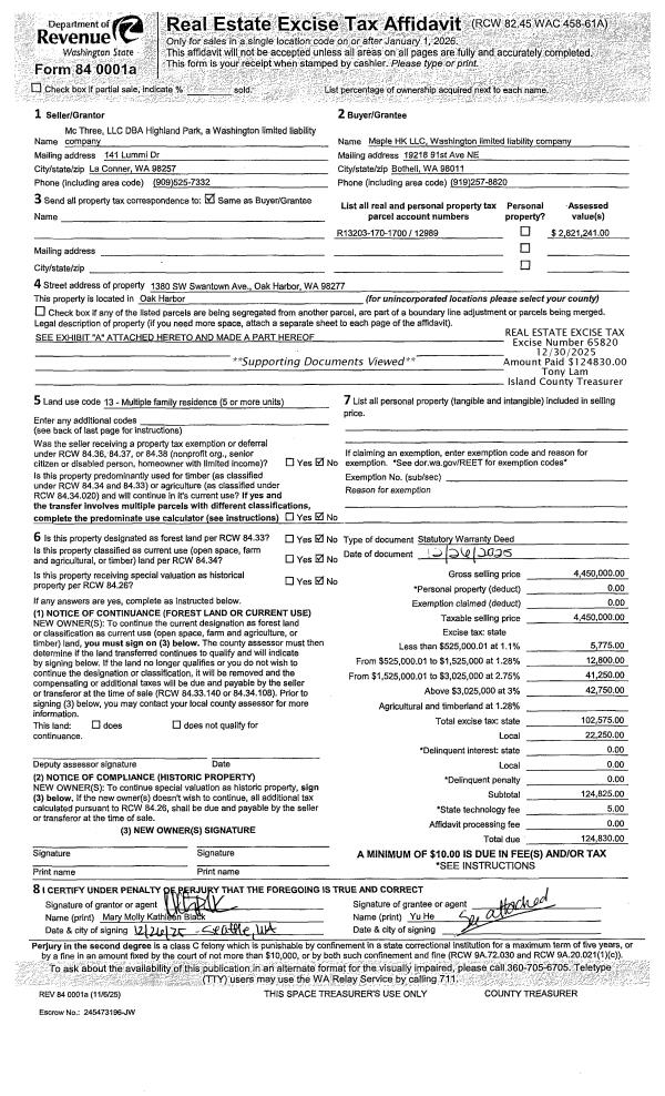
Property
Account |
| Property ID: | 807861 | Abbreviated Legal Description: | ISLAND PLACE #1 LOT 26 |
| Geographic ID: | S7234-00-00026-0 | Agent Code: | |
| Type: | Real | | |
| Tax Area: | 100 - APPRAISER-OH Schl Dist, in OH | Land Use Code | 11 |
| Open Space: | N | DFL | N |
| Historic Property: | N | Remodel Property: | N |
| Multi-Family Redevelopment: | N | | |
| Township: | | Section: | |
| Range: | |
Location |
| Address: | 1530 NW 5TH AVE OAK HARBOR, WA 98277 | Mapsco: | |
| Neighborhood: | Cycle 1 | Map ID: | 252 |
| Neighborhood CD: | 1 |
Owner |
| Name: | VAZQUEZ, DOMINGO D | Owner ID: | 315637 |
| Mailing Address: | ROSA I VAZQUEZ 1126 RAINIER CIR OAK HARBOR, WA 98277 | % Ownership: | 100.0000000000% |
| | | Exemptions: | |
Taxes and Assessment Details
Values
| (+) Improvement Homesite Value: | + | $0 | |
| (+) Improvement Non-Homesite Value: | + | $358,095 | |
| (+) Land Homesite Value: | + | $0 | |
| (+) Land Non-Homesite Value: | + | $155,000 | |
| (+) Curr Use (HS): | + | $0 | $0 |
| (+) Curr Use (NHS): | + | $0 | $0 |
| | | -------------------------- | |
| (=) Market Value: | = | $513,095 | |
| (–) Productivity Loss: | – | $0 | |
| | | -------------------------- | |
| (=) Subtotal: | = | $513,095 | |
| (+) Senior Appraised Value: | + | $0 | |
| (+) Non-Senior Appraised Value: | + | $513,095 | |
| | | -------------------------- | |
| (=) Total Appraised Value: | = | $513,095 | |
| (–) Senior Exemption Loss: | – | $0 | |
| (–) Exemption Loss: | – | $0 | |
| | | -------------------------- | |
| (=) Taxable Value: | = | $513,095 | |
Taxing Jurisdiction
| Owner: | VAZQUEZ, DOMINGO D | | |
| % Ownership: | 100.0000000000% | | |
| Total Value: | $513,095 | | |
| Tax Area: | 100 - APPRAISER-OH Schl Dist, in OH |
| CF | Conservation Futures | 0.0316035091 | $513,095 | $513,095 | $16.22 | | |
| CEM1 | Cemetery #1 | 0.0040320932 | $513,095 | $513,095 | $2.07 | | |
| COH | City of Oak Harbor | 2.3001546061 | $513,095 | $513,095 | $1,180.20 | | |
| OAKBOND | City of Oak Harbor BOND | 0.1926904192 | $513,095 | $513,095 | $98.87 | | |
| HOBOND | Hospital BOND | 0.1910887512 | $513,095 | $513,095 | $98.05 | | |
| HOGEN | Hospital GEN | 0.3902502903 | $513,095 | $513,095 | $200.24 | | |
| CE | County Current Expense | 0.3708482477 | $513,095 | $513,095 | $190.28 | | |
| ISLANDEMS | Hospital GEN (EMS) | 0.5000000000 | $513,095 | $513,095 | $256.55 | | |
| LIB | Library Sno-Isle GEN | 0.3153421757 | $513,095 | $513,095 | $161.80 | | |
| NWHIDPRMT | P & R N Whidbey GEN | 0.2004466701 | $513,095 | $513,095 | $102.85 | | |
| SCH201MO | School 201 Enrichment | 1.8559231640 | $513,095 | $513,095 | $952.26 | | |
| ST | State School | 1.3035497053 | $513,095 | $513,095 | $668.84 | | |
| ST2 | State School Part 2 | 0.8169543533 | $513,095 | $513,095 | $419.18 | | |
| | Total Tax Rate: | 8.4728839852 | | | | | |
| | | | | Taxes w/Current Exemptions: | $4,347.41 | | |
| | | | | Taxes w/o Exemptions: | $4,347.41 | | |
Improvement / Building
| Improvement #1: | RESIDENTIAL | State Code: | Y | 2280.0 sqft | Value: | $358,095 |
| Bathrooms: | 2.5 | Bedrooms: | 4 | | Ceiling: | DRYWALL PAINTED | Exterior Wall/Cover: | CEMENT FIBER | | Floor Covering: | CARPET/VINYL 80-20 | Floor Structure: | WOOD W/SUBFLOOR | | Foundation: | CONCRETE | Heating: | FHA GAS | | Interior Finish: | DRYWALL PAINT | Plumbing Fixture Cnt: | 13 | | Roof Slope: | 6" IN 12" | Roof Structure/Cover: | CJ ASPHALT |
|
| | Type | Description | Class CD | Sub Class CD | Year Built | Area |
| | BAS | BASE/MAIN FLOOR | 3 | 0 | 2007 | 880.0 |
| | OP4 | OPEN PORCH W/CEILING-ROOF | 3 | 0 | 2007 | 120.0 |
| | BIG | BUILT IN GARAGE | 3 | 0 | 2007 | 520.0 |
| | UPS | UPPER STORY | 3 | 0 | 2007 | 1400.0 |
| | OWC | OPEN WOOD PORCH W/STEPS/ROOF/C | 3 | 0 | 2007 | 100.0 |
Sketch
Property Image
Land
| 1 | 12 | SQ (00000-06000) | 0.0000 | 0.00 | 0.00 | 0.00 | 1.00 | $155,000 | $0 |
Roll Value History
| 2026 | N/A | N/A | N/A | N/A | N/A |
| 2025 | $358,095 | $155,000 | $0 | $513,095 | $513,095 |
| 2024 | $362,296 | $145,000 | $0 | $507,296 | $507,296 |
| 2023 | $366,496 | $140,000 | $0 | $506,496 | $506,496 |
| 2022 | $335,671 | $125,000 | $0 | $460,671 | $460,671 |
| 2021 | $295,195 | $110,000 | $0 | $405,195 | $405,195 |
| 2020 | $286,682 | $85,000 | $0 | $371,682 | $371,682 |
| 2019 | $219,787 | $130,000 | $0 | $349,787 | $349,787 |
| 2018 | $220,389 | $125,000 | $0 | $345,389 | $345,389 |
| 2017 | $194,913 | $105,000 | $0 | $299,913 | $299,913 |
| 2016 | $197,102 | $70,000 | $0 | $267,102 | $267,102 |
| 2015 | $199,293 | $55,000 | $0 | $254,293 | $254,293 |
| 2014 | $201,483 | $55,000 | $0 | $256,483 | $256,483 |
| 2013 | $203,673 | $50,000 | $0 | $253,673 | $253,673 |
| 2012 | $205,863 | $50,000 | $0 | $255,863 | $255,863 |
| 2011 | $194,409 | $50,000 | $0 | $244,409 | $244,409 |
| 2010 | $199,885 | $35,000 | $0 | $234,885 | $234,885 |
| 2009 | $208,158 | $75,000 | $0 | $283,158 | $283,158 |
| 2008 | $208,366 | $90,000 | $0 | $298,366 | $298,366 |
| 2007 | $84,769 | $90,000 | $0 | $174,769 | $174,769 |
Deed and Sales History
| 1 | 02/27/2025 | WD | Warranty Deed | STA.MARIA, CHRISTOPHER C | VAZQUEZ, DOMINGO D | | | $536,900.00 | 62702 | 4582818 |
| 2 | 06/29/2020 | WD | Warranty Deed | GUEDEA, NICHOLAS A | STA.MARIA, CHRISTOPHER C | | | $401,000.00 | 43662 | 4490554 |
| 3 | 12/20/2007 | WD | Warranty Deed | HOMESTEAD NW DEV CO, | GUEDEA, NICHOLAS A | | | $299,950.00 | 74115 | 4218739 |
| 4 | 01/01/1900 | OTHER | Other - Misc. Documents | Unknown | HOMESTEAD NW DEV CO, | | | $0.00 | 0 | 0 |
Payout Agreement
| No payout information available.. |