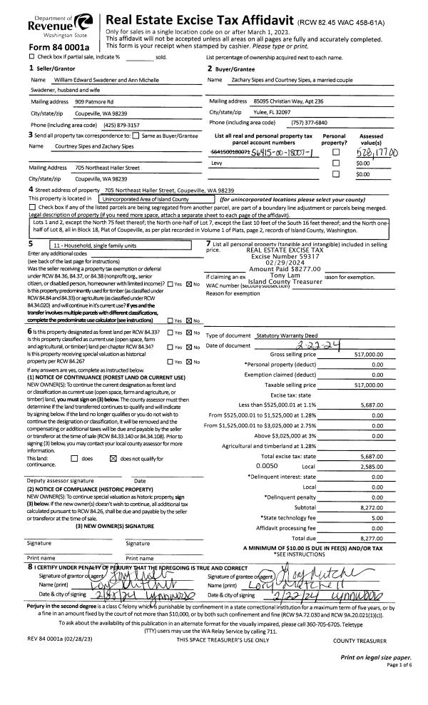
Property
Account |
| Property ID: | 807867 | Abbreviated Legal Description: | ISLAND PLACE #1 LOT 32 |
| Geographic ID: | S7234-00-00032-0 | Agent Code: | |
| Type: | Real | | |
| Tax Area: | 100 - APPRAISER-OH Schl Dist, in OH | Land Use Code | 11 |
| Open Space: | N | DFL | N |
| Historic Property: | N | Remodel Property: | N |
| Multi-Family Redevelopment: | N | | |
| Township: | | Section: | |
| Range: | |
Location |
| Address: | 1461 NW 5TH AVE OAK HARBOR, WA 98277 | Mapsco: | |
| Neighborhood: | Cycle 1 | Map ID: | 252 |
| Neighborhood CD: | 1 |
Owner |
| Name: | WEST JR, DALE I | Owner ID: | 275864 |
| Mailing Address: | SHEENA L WEST 1461 NW 5TH AVE OAK HARBOR, WA 98277 | % Ownership: | 100.0000000000% |
| | | Exemptions: | |
Taxes and Assessment Details
Values
| (+) Improvement Homesite Value: | + | $0 | |
| (+) Improvement Non-Homesite Value: | + | $264,826 | |
| (+) Land Homesite Value: | + | $0 | |
| (+) Land Non-Homesite Value: | + | $155,000 | |
| (+) Curr Use (HS): | + | $0 | $0 |
| (+) Curr Use (NHS): | + | $0 | $0 |
| | | -------------------------- | |
| (=) Market Value: | = | $419,826 | |
| (–) Productivity Loss: | – | $0 | |
| | | -------------------------- | |
| (=) Subtotal: | = | $419,826 | |
| (+) Senior Appraised Value: | + | $0 | |
| (+) Non-Senior Appraised Value: | + | $419,826 | |
| | | -------------------------- | |
| (=) Total Appraised Value: | = | $419,826 | |
| (–) Senior Exemption Loss: | – | $0 | |
| (–) Exemption Loss: | – | $0 | |
| | | -------------------------- | |
| (=) Taxable Value: | = | $419,826 | |
Taxing Jurisdiction
| Owner: | WEST JR, DALE I | | |
| % Ownership: | 100.0000000000% | | |
| Total Value: | $419,826 | | |
| Tax Area: | 100 - APPRAISER-OH Schl Dist, in OH |
| CF | Conservation Futures | 0.0316035091 | $419,826 | $419,826 | $13.27 | | |
| CEM1 | Cemetery #1 | 0.0040320932 | $419,826 | $419,826 | $1.69 | | |
| COH | City of Oak Harbor | 2.3001546061 | $419,826 | $419,826 | $965.66 | | |
| OAKBOND | City of Oak Harbor BOND | 0.1926904192 | $419,826 | $419,826 | $80.90 | | |
| HOBOND | Hospital BOND | 0.1910887512 | $419,826 | $419,826 | $80.22 | | |
| HOGEN | Hospital GEN | 0.3902502903 | $419,826 | $419,826 | $163.84 | | |
| CE | County Current Expense | 0.3708482477 | $419,826 | $419,826 | $155.69 | | |
| ISLANDEMS | Hospital GEN (EMS) | 0.5000000000 | $419,826 | $419,826 | $209.91 | | |
| LIB | Library Sno-Isle GEN | 0.3153421757 | $419,826 | $419,826 | $132.39 | | |
| NWHIDPRMT | P & R N Whidbey GEN | 0.2004466701 | $419,826 | $419,826 | $84.15 | | |
| SCH201MO | School 201 Enrichment | 1.8559231640 | $419,826 | $419,826 | $779.16 | | |
| ST | State School | 1.3035497053 | $419,826 | $419,826 | $547.26 | | |
| ST2 | State School Part 2 | 0.8169543533 | $419,826 | $419,826 | $342.98 | | |
| | Total Tax Rate: | 8.4728839852 | | | | | |
| | | | | Taxes w/Current Exemptions: | $3,557.12 | | |
| | | | | Taxes w/o Exemptions: | $3,557.12 | | |
Improvement / Building
| Improvement #1: | RESIDENTIAL | State Code: | Y | 1425.2 sqft | Value: | $264,826 |
| Bathrooms: | 2.5 | Bedrooms: | 3 | | Ceiling: | DRYWALL PAINTED | Cooling: | HEAT PUMP/CONV/V | | Exterior Wall/Cover: | CEMENT FIBER | Floor Covering: | CARPET/VINYL 60-40 | | Floor Structure: | WOOD W/SUBFLOOR | Foundation: | CONCRETE | | Interior Finish: | DRYWALL PAINT | Plumbing Fixture Cnt: | 11 | | Roof Slope: | 6" IN 12" | Roof Structure/Cover: | CJ ASPHALT |
|
| | Type | Description | Class CD | Sub Class CD | Year Built | Area |
| | BAS | BASE/MAIN FLOOR | 3 | 0 | 2009 | 560.0 |
| | OP1 | OPEN PORCH SLAB | 3 | 0 | 2009 | 125.0 |
| | BIG | BUILT IN GARAGE | 3 | 0 | 2009 | 387.2 |
| | UPS | UPPER STORY | 3 | 0 | 2009 | 865.2 |
| | OWC | OPEN WOOD PORCH W/STEPS/ROOF/C | 3 | 0 | 2009 | 24.8 |
Sketch
Property Image
Land
| 1 | 12 | SQ (00000-06000) | 0.0000 | 0.00 | 0.00 | 0.00 | 1.00 | $155,000 | $0 |
Roll Value History
| 2026 | N/A | N/A | N/A | N/A | N/A |
| 2025 | $264,826 | $155,000 | $0 | $419,826 | $419,826 |
| 2024 | $267,861 | $145,000 | $0 | $412,861 | $412,861 |
| 2023 | $270,896 | $145,000 | $0 | $415,896 | $415,896 |
| 2022 | $247,371 | $120,000 | $0 | $367,371 | $367,371 |
| 2021 | $217,016 | $95,000 | $0 | $312,016 | $312,016 |
| 2020 | $210,130 | $80,000 | $0 | $290,130 | $290,130 |
| 2019 | $151,575 | $125,000 | $0 | $276,575 | $276,575 |
| 2018 | $151,981 | $105,000 | $0 | $256,981 | $256,981 |
| 2017 | $145,700 | $85,000 | $0 | $230,700 | $230,700 |
| 2016 | $142,322 | $70,000 | $0 | $212,322 | $212,322 |
| 2015 | $143,868 | $35,000 | $0 | $178,868 | $178,868 |
| 2014 | $145,415 | $35,000 | $0 | $180,415 | $180,415 |
| 2013 | $146,962 | $35,000 | $0 | $181,962 | $181,962 |
| 2012 | $148,509 | $35,000 | $0 | $183,509 | $183,509 |
| 2011 | $154,304 | $50,000 | $0 | $204,304 | $204,304 |
| 2010 | $157,097 | $35,000 | $0 | $192,097 | $192,097 |
| 2009 | $163,552 | $55,000 | $0 | $218,552 | $218,552 |
| 2008 | $0 | $55,000 | $0 | $55,000 | $55,000 |
| 2007 | $0 | $55,000 | $0 | $55,000 | $55,000 |
Deed and Sales History
| 1 | 06/23/2016 | WD | Warranty Deed | LUGO, JARIEL J COLON | WEST JR, DALE I | | | $235,000.00 | 25004 | 4402154 |
| 2 | 11/21/2011 | WD | Warranty Deed | KETTERLING, ZACHARY | LUGO, JARIEL J COLON | | | $195,000.00 | 6206 | 4305194 |
| 3 | 11/05/2008 | WD | Warranty Deed | HOMESTEAD NW DEV CO, | KETTERLING, ZACHARY | | | $209,015.00 | 82909 | 4239799 |
| 4 | 01/01/1900 | OTHER | Other - Misc. Documents | Unknown | HOMESTEAD NW DEV CO, | | | $0.00 | 0 | 0 |
Payout Agreement
| No payout information available.. |