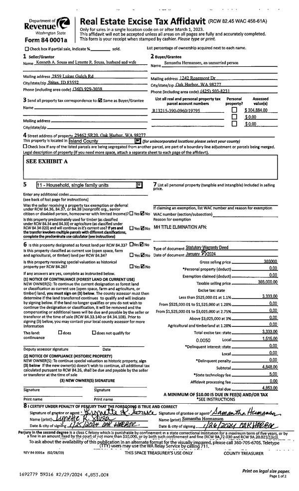
Property
Account |
| Property ID: | 807868 | Abbreviated Legal Description: | ISLAND PLACE #1 LOT 33 |
| Geographic ID: | S7234-00-00033-0 | Agent Code: | |
| Type: | Real | | |
| Tax Area: | 100 - APPRAISER-OH Schl Dist, in OH | Land Use Code | 11 |
| Open Space: | N | DFL | N |
| Historic Property: | N | Remodel Property: | N |
| Multi-Family Redevelopment: | N | | |
| Township: | | Section: | |
| Range: | |
Location |
| Address: | 1467 NW 5TH AVE OAK HARBOR, WA 98277 | Mapsco: | |
| Neighborhood: | Cycle 1 | Map ID: | 252 |
| Neighborhood CD: | 1 |
Owner |
| Name: | BARNUM, SARAH ALVERIE-LAVERNE | Owner ID: | 286921 |
| Mailing Address: | 1467 NW 5TH AVE OAK HARBOR, WA 98277 | % Ownership: | 100.0000000000% |
| | | Exemptions: | |
Taxes and Assessment Details
Values
| (+) Improvement Homesite Value: | + | $0 | |
| (+) Improvement Non-Homesite Value: | + | $257,705 | |
| (+) Land Homesite Value: | + | $0 | |
| (+) Land Non-Homesite Value: | + | $155,000 | |
| (+) Curr Use (HS): | + | $0 | $0 |
| (+) Curr Use (NHS): | + | $0 | $0 |
| | | -------------------------- | |
| (=) Market Value: | = | $412,705 | |
| (–) Productivity Loss: | – | $0 | |
| | | -------------------------- | |
| (=) Subtotal: | = | $412,705 | |
| (+) Senior Appraised Value: | + | $0 | |
| (+) Non-Senior Appraised Value: | + | $412,705 | |
| | | -------------------------- | |
| (=) Total Appraised Value: | = | $412,705 | |
| (–) Senior Exemption Loss: | – | $0 | |
| (–) Exemption Loss: | – | $0 | |
| | | -------------------------- | |
| (=) Taxable Value: | = | $412,705 | |
Taxing Jurisdiction
| Owner: | BARNUM, SARAH ALVERIE-LAVERNE | | |
| % Ownership: | 100.0000000000% | | |
| Total Value: | $412,705 | | |
| Tax Area: | 100 - APPRAISER-OH Schl Dist, in OH |
| CF | Conservation Futures | 0.0316035091 | $412,705 | $412,705 | $13.04 | | |
| CEM1 | Cemetery #1 | 0.0040320932 | $412,705 | $412,705 | $1.66 | | |
| COH | City of Oak Harbor | 2.3001546061 | $412,705 | $412,705 | $949.29 | | |
| OAKBOND | City of Oak Harbor BOND | 0.1926904192 | $412,705 | $412,705 | $79.52 | | |
| HOBOND | Hospital BOND | 0.1910887512 | $412,705 | $412,705 | $78.86 | | |
| HOGEN | Hospital GEN | 0.3902502903 | $412,705 | $412,705 | $161.06 | | |
| CE | County Current Expense | 0.3708482477 | $412,705 | $412,705 | $153.05 | | |
| ISLANDEMS | Hospital GEN (EMS) | 0.5000000000 | $412,705 | $412,705 | $206.35 | | |
| LIB | Library Sno-Isle GEN | 0.3153421757 | $412,705 | $412,705 | $130.14 | | |
| NWHIDPRMT | P & R N Whidbey GEN | 0.2004466701 | $412,705 | $412,705 | $82.73 | | |
| SCH201MO | School 201 Enrichment | 1.8559231640 | $412,705 | $412,705 | $765.95 | | |
| ST | State School | 1.3035497053 | $412,705 | $412,705 | $537.98 | | |
| ST2 | State School Part 2 | 0.8169543533 | $412,705 | $412,705 | $337.16 | | |
| | Total Tax Rate: | 8.4728839852 | | | | | |
| | | | | Taxes w/Current Exemptions: | $3,496.79 | | |
| | | | | Taxes w/o Exemptions: | $3,496.79 | | |
Improvement / Building
| Improvement #1: | RESIDENTIAL | State Code: | Y | 1425.2 sqft | Value: | $257,705 |
| Bathrooms: | 2.5 | Bedrooms: | 3 | | Ceiling: | DRYWALL PAINTED | Exterior Wall/Cover: | CEMENT FIBER | | Floor Covering: | CARPET/VINYL 60-40 | Floor Structure: | WOOD W/SUBFLOOR | | Foundation: | CONCRETE | Heating: | WALL HEAT ELECTRIC | | Interior Finish: | DRYWALL PAINT | Plumbing Fixture Cnt: | 11 | | Roof Slope: | 6" IN 12" | Roof Structure/Cover: | CJ ASPHALT |
|
| | Type | Description | Class CD | Sub Class CD | Year Built | Area |
| | BAS | BASE/MAIN FLOOR | 3 | 0 | 2009 | 560.0 |
| | OWP | OPEN WOOD PORCH W/STEPS | 3 | 0 | 2009 | 170.0 |
| | BIG | BUILT IN GARAGE | 3 | 0 | 2009 | 387.3 |
| | UPS | UPPER STORY | 3 | 0 | 2009 | 865.2 |
| | OWC | OPEN WOOD PORCH W/STEPS/ROOF/C | 3 | 0 | 2009 | 24.8 |
Sketch
Property Image
Land
| 1 | 12 | SQ (00000-06000) | 0.0000 | 0.00 | 0.00 | 0.00 | 1.00 | $155,000 | $0 |
Roll Value History
| 2026 | N/A | N/A | N/A | N/A | N/A |
| 2025 | $257,705 | $155,000 | $0 | $412,705 | $412,705 |
| 2024 | $260,659 | $145,000 | $0 | $405,659 | $405,659 |
| 2023 | $260,659 | $145,000 | $0 | $405,659 | $405,659 |
| 2022 | $238,705 | $120,000 | $0 | $358,705 | $358,705 |
| 2021 | $209,326 | $95,000 | $0 | $304,326 | $304,326 |
| 2020 | $202,856 | $80,000 | $0 | $282,856 | $282,856 |
| 2019 | $145,477 | $125,000 | $0 | $270,477 | $270,477 |
| 2018 | $145,872 | $105,000 | $0 | $250,872 | $250,872 |
| 2017 | $134,660 | $85,000 | $0 | $219,660 | $219,660 |
| 2016 | $136,140 | $70,000 | $0 | $206,140 | $206,140 |
| 2015 | $137,620 | $35,000 | $0 | $172,620 | $172,620 |
| 2014 | $139,099 | $35,000 | $0 | $174,099 | $174,099 |
| 2013 | $140,580 | $35,000 | $0 | $175,580 | $175,580 |
| 2012 | $142,059 | $35,000 | $0 | $177,059 | $177,059 |
| 2011 | $147,632 | $50,000 | $0 | $197,632 | $197,632 |
| 2010 | $149,989 | $35,000 | $0 | $184,989 | $184,989 |
| 2009 | $156,152 | $55,000 | $0 | $211,152 | $211,152 |
| 2008 | $0 | $55,000 | $0 | $55,000 | $55,000 |
| 2007 | $0 | $55,000 | $0 | $55,000 | $55,000 |
Deed and Sales History
| 1 | 09/12/2018 | WD | Warranty Deed | MUELLER, ERICK | BARNUM, SARAH ALVERIE-LAVERNE | | | $286,000.00 | 35903 | 4451768 |
| 2 | 03/06/2017 | WD | Warranty Deed | MCLAUGHLIN JR, RICHIE SAMUEL | MUELLER, ERICK | | | $242,000.00 | 28357 | 4418503 |
| 3 | 11/05/2008 | WD | Warranty Deed | HOMESTEAD NW DEV CO, | MCLAUGHLIN JR, RICHIE SAMUEL | | | $204,950.00 | 82932 | 4239980 |
| 4 | 01/01/1900 | OTHER | Other - Misc. Documents | Unknown | HOMESTEAD NW DEV CO, | | | $0.00 | 0 | 0 |
Payout Agreement
| No payout information available.. |