Property
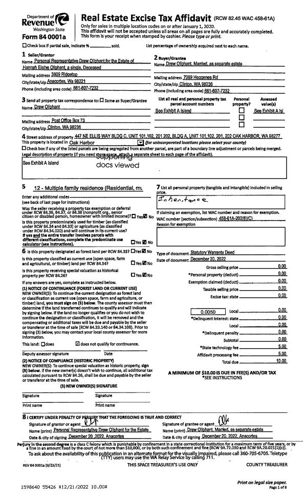
Account |
| Property ID: | 807887 | Abbreviated Legal Description: | SUM DC - BG SWCR SUMNER DLC N2*E138.68' S87*E29.00' TP ON ELY LN SR20 TPB N2*E147.48' N2*E215.62' ALG CUR/R 31.83' N75*E163.54' S1*W427.16' S71*W118.70' ALG CUR/R 89.86' TPB |
| Geographic ID: | R13202-202-0330 | Agent Code: | |
| Type: | Real | | |
| Tax Area: | 100 - APPRAISER-OH Schl Dist, in OH | Land Use Code | 53 |
| Open Space: | N | DFL | N |
| Historic Property: | N | Remodel Property: | N |
| Multi-Family Redevelopment: | N | | |
| Township: | 32 | Section: | 02 |
| Range: | R1 |
Location |
| Address: | 31490 SR20 OAK HARBOR, WA 98277 | Mapsco: | |
| Neighborhood: | 11cOH-highway 20 | Map ID: | 86 |
| Neighborhood CD: | 11cOHhwy20 |
Owner |
| Name: | DS OAK HARBOR WA LANDLORD, LLC | Owner ID: | 305037 |
| Mailing Address: | 3333 PEACHTREE RD NE 7TH FLOOR ATLANTA, GA 30326 | % Ownership: | 100.0000000000% |
| | | Exemptions: | |
Taxes and Assessment Details
Values
| (+) Improvement Homesite Value: | + | $0 | |
| (+) Improvement Non-Homesite Value: | + | $2,625,302 | |
| (+) Land Homesite Value: | + | $0 | |
| (+) Land Non-Homesite Value: | + | $1,515,888 | |
| (+) Curr Use (HS): | + | $0 | $0 |
| (+) Curr Use (NHS): | + | $0 | $0 |
| | | -------------------------- | |
| (=) Market Value: | = | $4,141,190 | |
| (–) Productivity Loss: | – | $0 | |
| | | -------------------------- | |
| (=) Subtotal: | = | $4,141,190 | |
| (+) Senior Appraised Value: | + | $0 | |
| (+) Non-Senior Appraised Value: | + | $4,141,190 | |
| | | -------------------------- | |
| (=) Total Appraised Value: | = | $4,141,190 | |
| (–) Senior Exemption Loss: | – | $0 | |
| (–) Exemption Loss: | – | $0 | |
| | | -------------------------- | |
| (=) Taxable Value: | = | $4,141,190 | |
Taxing Jurisdiction
| Owner: | DS OAK HARBOR WA LANDLORD, LLC | | |
| % Ownership: | 100.0000000000% | | |
| Total Value: | $4,141,190 | | |
| Tax Area: | 100 - APPRAISER-OH Schl Dist, in OH |
| CF | Conservation Futures | 0.0316035091 | $4,141,190 | $4,141,190 | $130.88 | | |
| CEM1 | Cemetery #1 | 0.0040320932 | $4,141,190 | $4,141,190 | $16.70 | | |
| COH | City of Oak Harbor | 2.3001546061 | $4,141,190 | $4,141,190 | $9,525.38 | | |
| OAKBOND | City of Oak Harbor BOND | 0.1926904192 | $4,141,190 | $4,141,190 | $797.97 | | |
| HOBOND | Hospital BOND | 0.1910887512 | $4,141,190 | $4,141,190 | $791.33 | | |
| HOGEN | Hospital GEN | 0.3902502903 | $4,141,190 | $4,141,190 | $1,616.10 | | |
| CE | County Current Expense | 0.3708482477 | $4,141,190 | $4,141,190 | $1,535.75 | | |
| ISLANDEMS | Hospital GEN (EMS) | 0.5000000000 | $4,141,190 | $4,141,190 | $2,070.60 | | |
| LIB | Library Sno-Isle GEN | 0.3153421757 | $4,141,190 | $4,141,190 | $1,305.89 | | |
| NWHIDPRMT | P & R N Whidbey GEN | 0.2004466701 | $4,141,190 | $4,141,190 | $830.09 | | |
| SCH201MO | School 201 Enrichment | 1.8559231640 | $4,141,190 | $4,141,190 | $7,685.73 | | |
| ST | State School | 1.3035497053 | $4,141,190 | $4,141,190 | $5,398.25 | | |
| ST2 | State School Part 2 | 0.8169543533 | $4,141,190 | $4,141,190 | $3,383.16 | | |
| | Total Tax Rate: | 8.4728839852 | | | | | |
| | | | | Taxes w/Current Exemptions: | $35,087.83 | | |
| | | | | Taxes w/o Exemptions: | $35,087.83 | | |
Improvement / Building
| Improvement #1: | COMMERCIAL | State Code: | F1 | 14738.7 sqft | Value: | $2,625,302 |
| Bathrooms: | 2 | Ceiling: | SUSPENDED | | Exterior Wall/Cover: | 12" COM BRK/CONC FRM | Floor Covering: | VINYL TILE | | Floor Structure: | CONCRETE ON GROUND | Foundation: | SLAB | | Heating: | ZONED AC/HEAT | Interior Finish: | DISCOUNT STORE | | Plumbing Fixture Cnt: | 6 | Roof Structure/Cover: | TRANSITE/OPEN STEEL |
|
| | Type | Description | Class CD | Sub Class CD | Year Built | Area |
| | BAS | BASE/MAIN FLOOR | 3 | 0 | 2007 | 10258.7 |
| | OP1 | OPEN PORCH SLAB | 3 | 0 | 2007 | 2280.0 |
| | OP1 | OPEN PORCH SLAB | 3 | 0 | 2007 | 1596.6 |
| | OP3 | OPEN PORCH W/ROOF | 3 | 0 | 2007 | 98.0 |
| | OP3 | OPEN PORCH W/ROOF | 3 | 0 | 2007 | 82.5 |
| | STG | STORAGE | 3 | 0 | 2007 | 4480.0 |
| | oLIT | LITE POLE | 3 | 0 | 2007 | 5.0 |
| | oPV2 | PV/ASPH 3" | 3 | 0 | 2007 | 37026.0 |
Sketch
Property Image
Land
| 1 | 68 | COMMERCIAL RETAIL | 1.0331 | 75794.40 | 0.00 | 0.00 | 1.00 | $1,515,888 | $0 |
Roll Value History
| 2026 | N/A | N/A | N/A | N/A | N/A |
| 2025 | $2,625,302 | $1,515,888 | $0 | $4,141,190 | $4,141,190 |
| 2024 | $2,714,692 | $1,515,888 | $0 | $4,230,580 | $4,230,580 |
| 2023 | $2,768,958 | $1,515,888 | $0 | $4,284,846 | $4,284,846 |
| 2022 | $2,083,328 | $1,515,888 | $0 | $3,599,216 | $3,599,216 |
| 2021 | $1,994,056 | $1,515,888 | $0 | $3,509,944 | $3,509,944 |
| 2020 | $1,982,354 | $1,515,888 | $0 | $3,498,242 | $3,498,242 |
| 2019 | $1,769,694 | $1,364,299 | $0 | $3,133,993 | $3,133,993 |
| 2018 | $1,771,124 | $1,136,916 | $0 | $2,908,040 | $2,908,040 |
| 2017 | $1,823,330 | $1,898,337 | $0 | $3,721,667 | $3,721,667 |
| 2016 | $1,823,829 | $1,898,337 | $0 | $3,722,166 | $3,722,166 |
| 2015 | $1,842,580 | $1,898,337 | $0 | $3,740,917 | $3,740,917 |
| 2014 | $1,817,379 | $1,930,473 | $0 | $3,747,852 | $3,747,852 |
| 2013 | $1,728,494 | $1,930,473 | $0 | $3,658,967 | $3,658,967 |
| 2012 | $1,957,423 | $1,930,473 | $0 | $3,887,896 | $3,887,896 |
| 2011 | $1,957,423 | $1,930,473 | $0 | $3,887,896 | $3,887,896 |
| 2010 | $2,014,968 | $1,930,473 | $0 | $3,945,441 | $3,945,441 |
| 2009 | $2,059,632 | $2,843,033 | $0 | $4,902,665 | $4,902,665 |
| 2008 | $2,084,111 | $2,992,347 | $0 | $5,076,458 | $5,076,458 |
| 2007 | $52,101 | $1,994,898 | $0 | $2,046,999 | $2,046,999 |
Deed and Sales History
| 1 | 04/27/2022 | WD | Warranty Deed | WALTRUST PROPERTIES INC | DS OAK HARBOR WA LANDLORD, LLC | | | $6,709,940.00 | 53797 | 4548252 |
| 2 | 02/05/2008 | WD | Warranty Deed | WALGREEN CO, | WALTRUST PROPERTIES INC, | | | $0.00 | 80334 | 4221609 |
| 3 | 01/31/2008 | WD | Warranty Deed | OAK HARBOR NWLLC, | WALGREEN CO, | | | $6,525,000.00 | 80333 | 4221608 |
| 4 | 06/26/2007 | BLA | DNU - Boundary Line Adjustment | Unknown | OAK HARBOR NWLLC, | | | $0.00 | 80227 | 4195023 |
Payout Agreement
| No payout information available.. |